Информационная система
«Ёшкин Кот»

Скачать базу одним архивом
Скачать обновления
История создания базы
Карта сайта

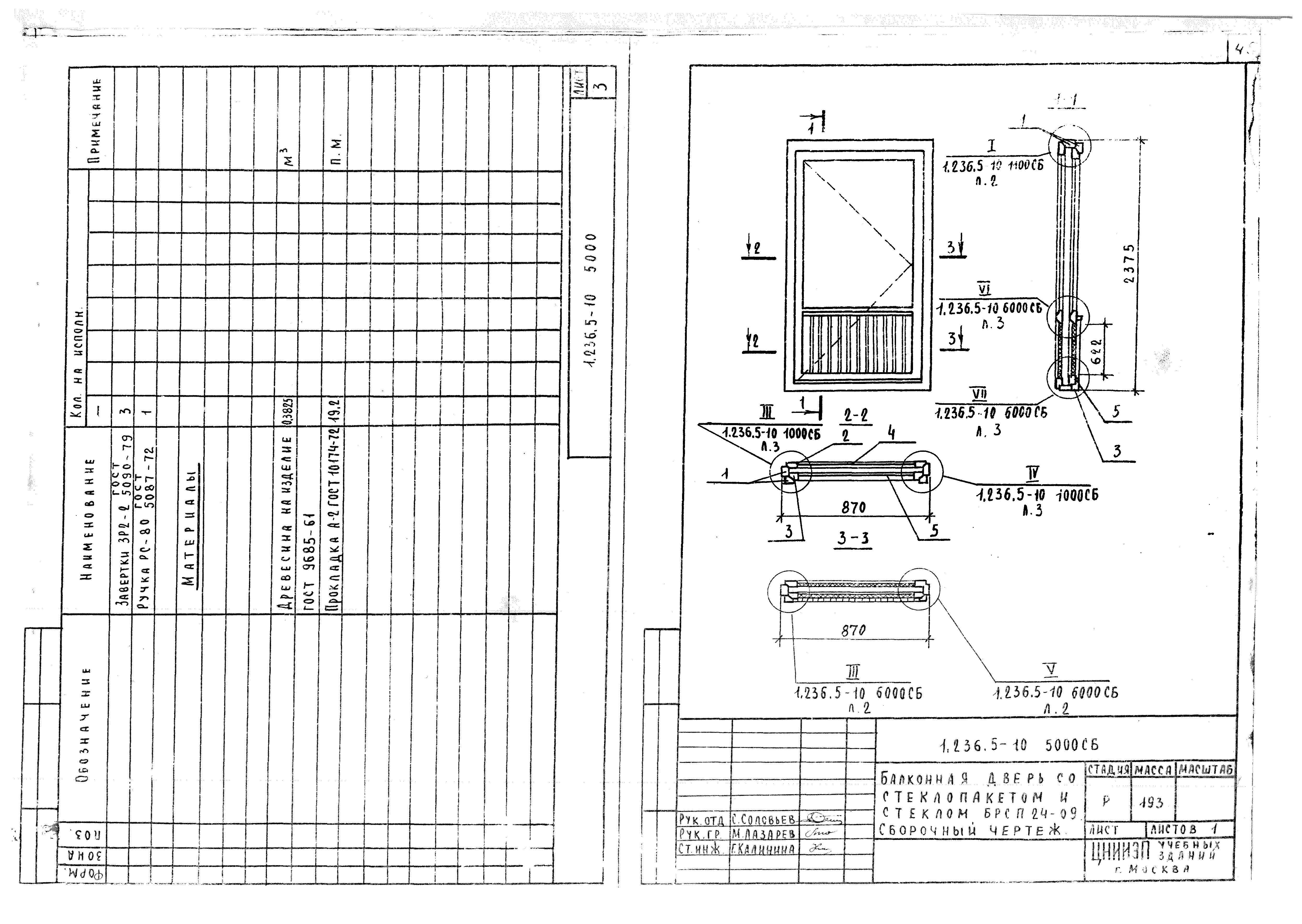
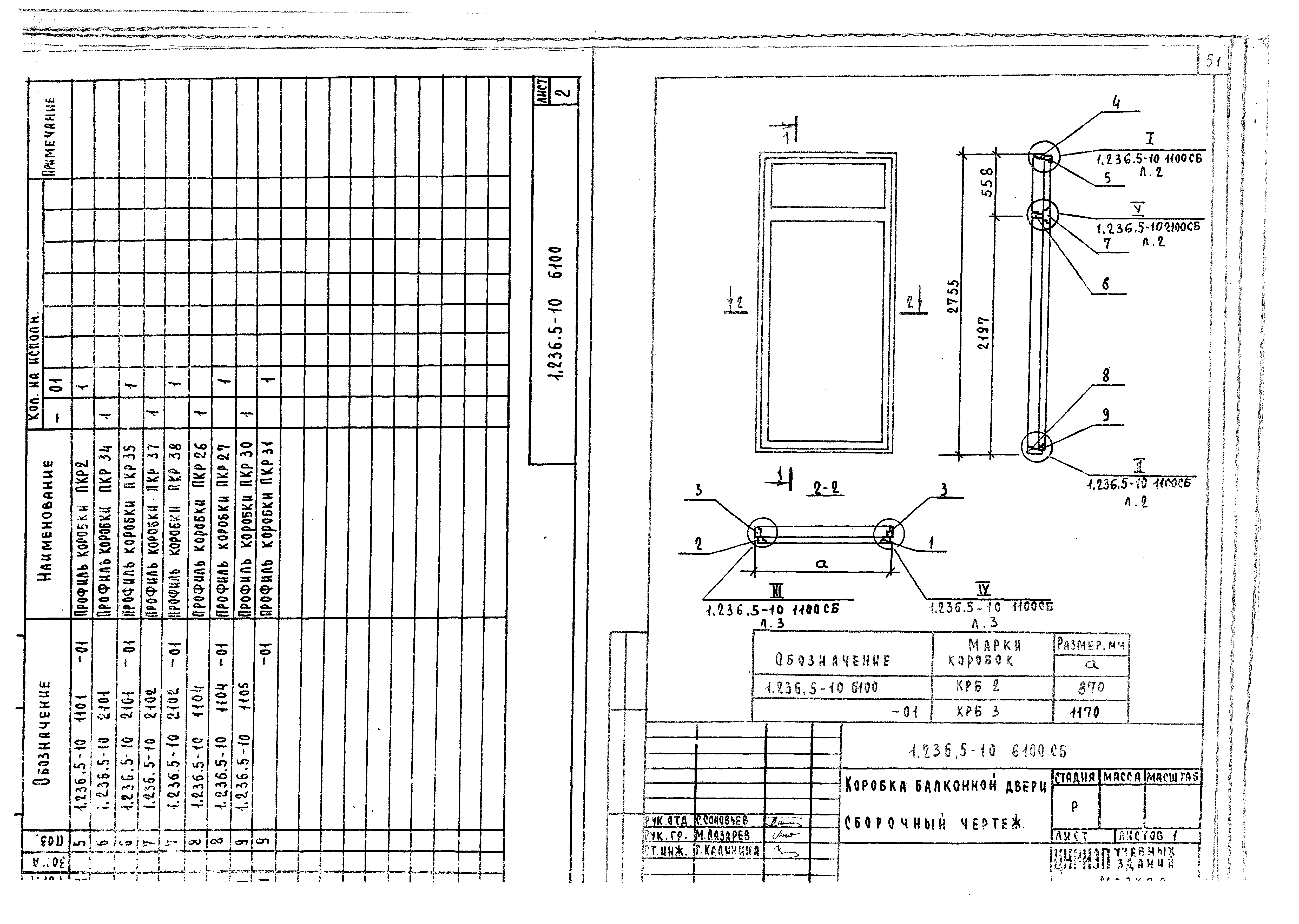
Скачать Серия 1.236.5-10 Окна и балконные двери деревянные со стеклопакетами и стеклами для общественных зданий

Дата актуализации: 10.08.2017

Серия 1.236.5-10

Окна и балконные двери деревянные со стеклопакетами и стеклами для общественных зданий

Обозначение: Серия 1.236.5-10
Обозначение англ: Series 1.236.5-10
Статус:не определен законодательством
Название рус.:Окна и балконные двери деревянные со стеклопакетами и стеклами для общественных зданий
Дата добавления в базу:01.09.2013
Дата актуализации:05.05.2017
Дата введения:15.03.1982
Разработан: ЦНИИЭП учебных зданий Госгражданстроя
Утверждён:03.03.1982 Государственный комитет по гражданскому строительству и архитектуре при Госстрое СССР (68)
Издан: ЦИТП Госстроя СССР (CITP, Gosstroy (USSR) 1983 г. )
Расположен в:Техническая документация Строительство Справочные документы Типовые строительные конструкции, изделия и узлы Общероссийский строительный каталог Строительные конструкции, изделия и узлы зданий и сооружений для всех видов строительства Конструкции, изделия и узлы зданий Ограждающие конструкции Окна и балконные двери
Серия 1.236.5-10Серия 1.236.5-10Серия 1.236.5-10Серия 1.236.5-10Серия 1.236.5-10Серия 1.236.5-10Серия 1.236.5-10Серия 1.236.5-10Серия 1.236.5-10Серия 1.236.5-10Серия 1.236.5-10Серия 1.236.5-10Серия 1.236.5-10Серия 1.236.5-10Серия 1.236.5-10Серия 1.236.5-10Серия 1.236.5-10Серия 1.236.5-10Серия 1.236.5-10Серия 1.236.5-10Серия 1.236.5-10Серия 1.236.5-10Серия 1.236.5-10Серия 1.236.5-10Серия 1.236.5-10Серия 1.236.5-10Серия 1.236.5-10Серия 1.236.5-10Серия 1.236.5-10Серия 1.236.5-10Серия 1.236.5-10Серия 1.236.5-10Серия 1.236.5-10Серия 1.236.5-10Серия 1.236.5-10Серия 1.236.5-10Серия 1.236.5-10Серия 1.236.5-10Серия 1.236.5-10Серия 1.236.5-10Серия 1.236.5-10Серия 1.236.5-10Серия 1.236.5-10Серия 1.236.5-10Серия 1.236.5-10Серия 1.236.5-10Серия 1.236.5-10Серия 1.236.5-10Серия 1.236.5-10Серия 1.236.5-10Серия 1.236.5-10Серия 1.236.5-10Серия 1.236.5-10Серия 1.236.5-10Серия 1.236.5-10Серия 1.236.5-10Серия 1.236.5-10Серия 1.236.5-10Серия 1.236.5-10Серия 1.236.5-10Серия 1.236.5-10Серия 1.236.5-10Серия 1.236.5-10Серия 1.236.5-10

© 2013 Ёшкин Кот :-) Карта сайта