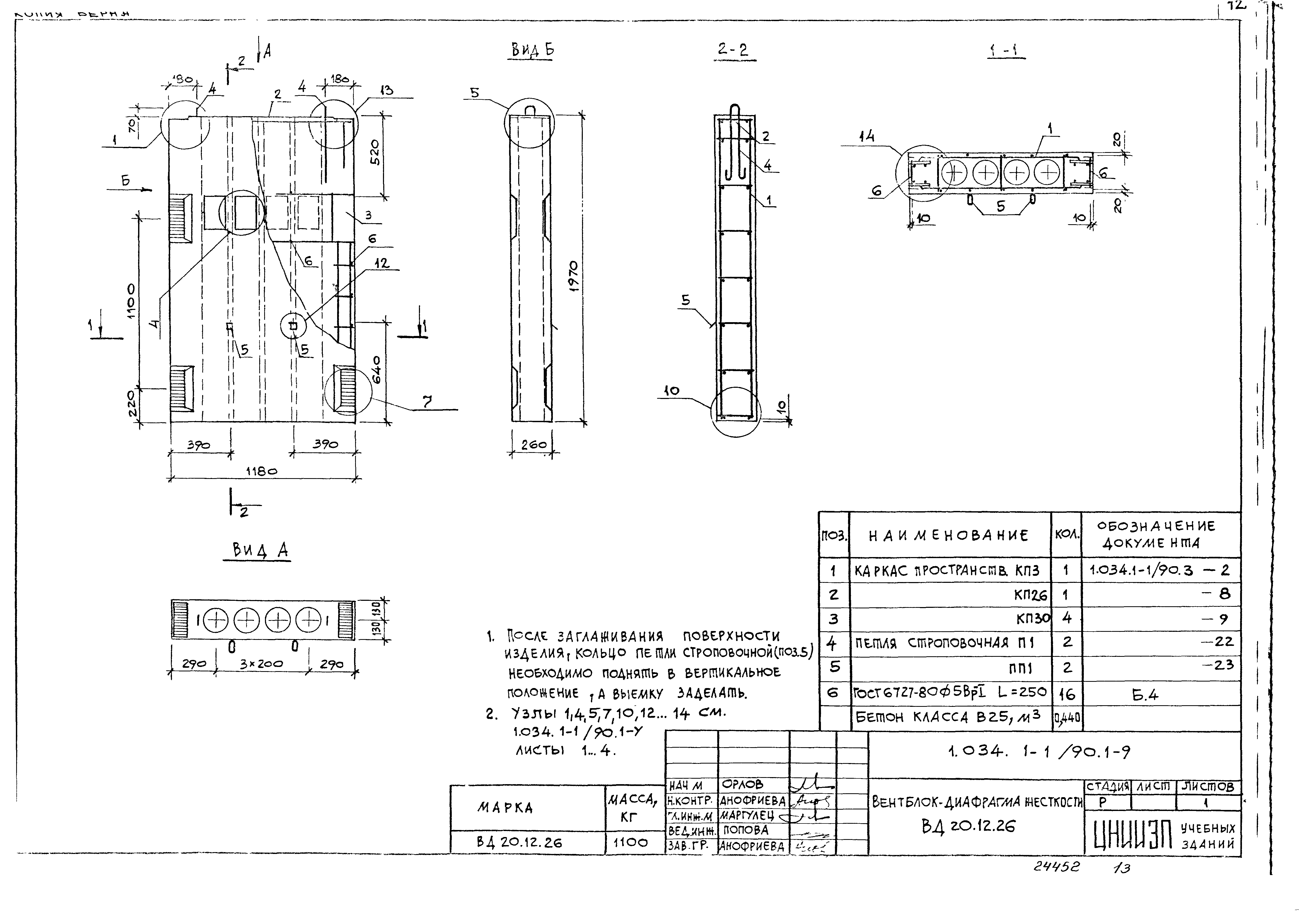
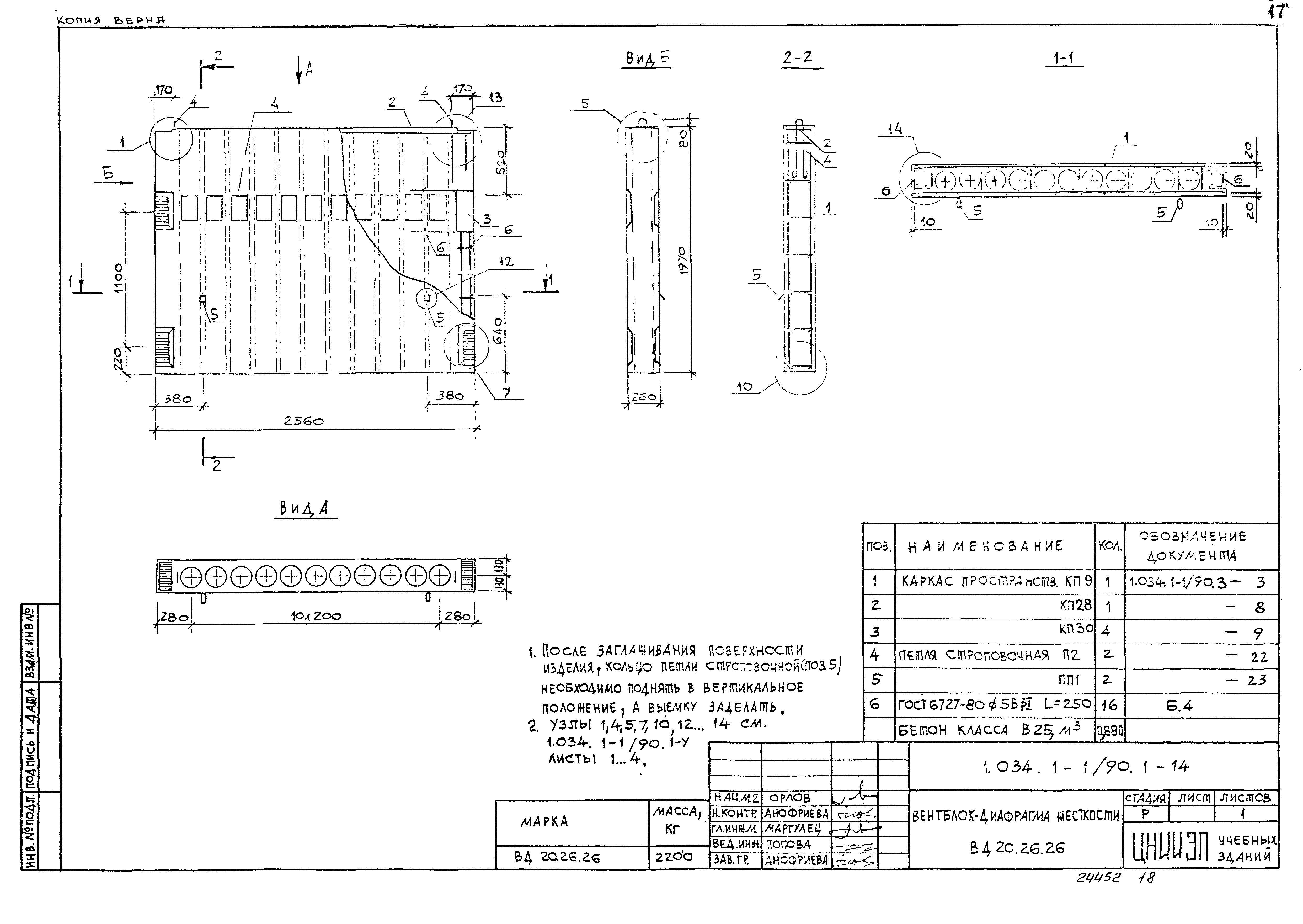
Скачать Серия 1.034.1-1/90 Выпуск 1. Вентиляционные блоки, вентиляционные блоки-диафрагмы жесткости, вентиляционные крышные блоки с отверстиями диаметром 159 мм. Рабочие чертежиДата актуализации: 10.08.2017 Серия 1.034.1-1/90
Выпуск 1. Вентиляционные блоки, вентиляционные блоки-диафрагмы жесткости, вентиляционные крышные блоки с отверстиями диаметром 159 мм. Рабочие чертежи| Обозначение: | Серия 1.034.1-1/90 | | Обозначение англ: | Series 1.034.1-1/90 | | Статус: | не определен законодательством | | Название рус.: | Выпуск 1. Вентиляционные блоки, вентиляционные блоки-диафрагмы жесткости, вентиляционные крышные блоки с отверстиями диаметром 159 мм. Рабочие чертежи | | Дата добавления в базу: | 01.09.2013 | | Дата актуализации: | 05.05.2017 | | Дата введения: | 01.10.1990 | | Разработан: | ЦНИИЭП реконструкции городов Госкомархитектуры ЦНИИЭП учебных зданий Госгражданстроя
| | Утверждён: | 24.04.1990 Госстрой СССР (Государственный комитет Совета Министров СССР по делам строительства) (USSR Gosstroy АЧ-8)
| | Издан: | ЦИТП Госстроя СССР (CITP, Gosstroy (USSR) 1990 г. )
| | Расположен в: |
| | Заменяет собой: | |
                                                            
|