Информационная система
«Ёшкин Кот»

Скачать базу одним архивом
Скачать обновления
История создания базы
Карта сайта

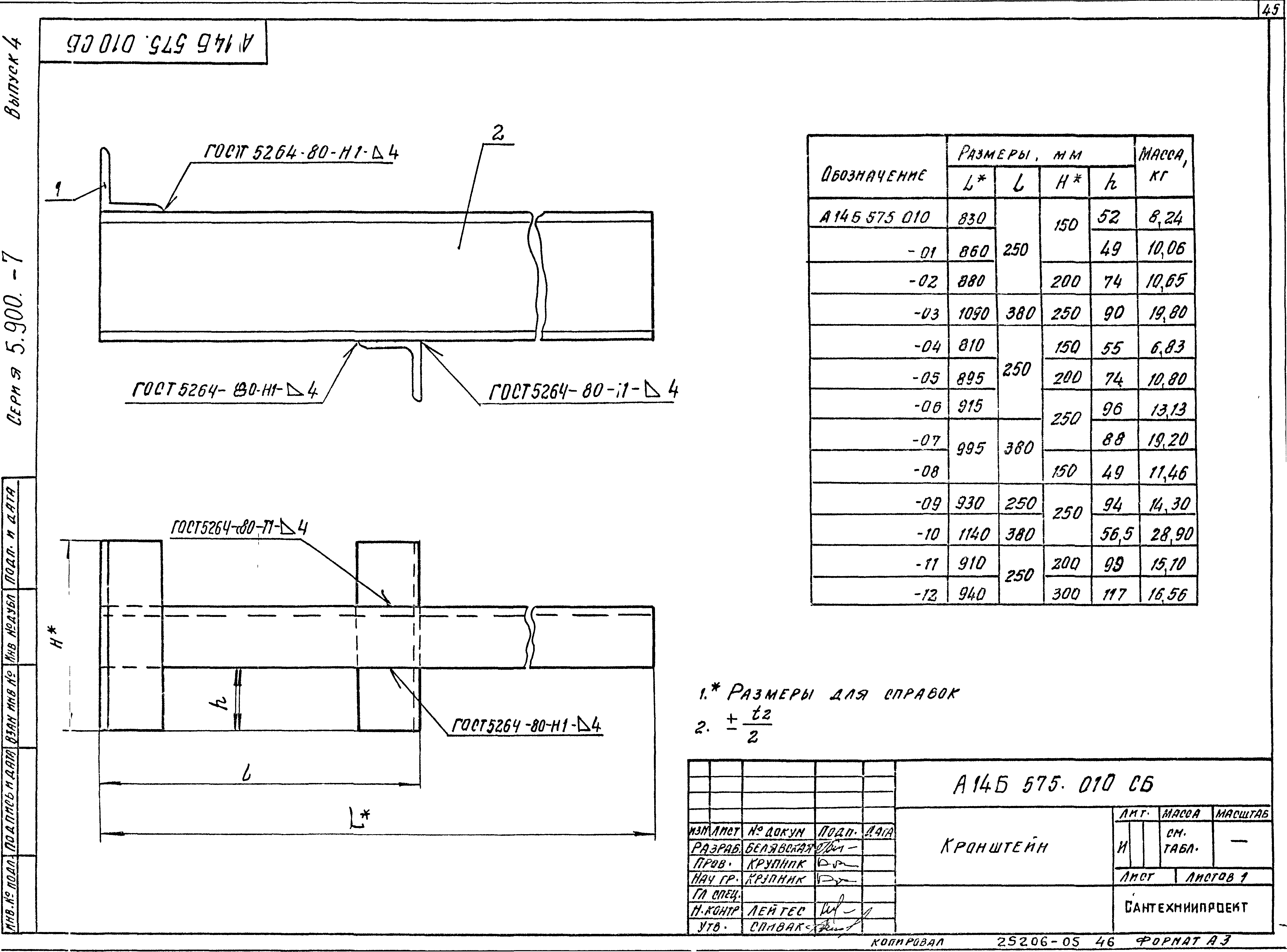
Скачать Серия 5.900-7 Выпуск 4. Опорные конструкции и средства крепления трубопроводов к стенам перекрытиям и к полу. Рабочие чертежи

Дата актуализации: 10.08.2017

Серия 5.900-7

Выпуск 4. Опорные конструкции и средства крепления трубопроводов к стенам перекрытиям и к полу. Рабочие чертежи

Обозначение: Серия 5.900-7
Обозначение англ: Series 5.900-7
Статус:не определен законодательством
Название рус.:Выпуск 4. Опорные конструкции и средства крепления трубопроводов к стенам перекрытиям и к полу. Рабочие чертежи
Дата добавления в базу:01.09.2013
Дата актуализации:05.05.2017
Дата введения:01.03.1992
Разработан: ГПКНИИ Сантехниипроект
Утверждён:31.10.1991 ГПКНИИ Сантехниипроект (50)
Издан: ЦИТП Госстроя СССР (CITP, Gosstroy (USSR) 1992 г. )
Расположен в:Техническая документация Экология СТРОИТЕЛЬНЫЕ МАТЕРИАЛЫ И СТРОИТЕЛЬСТВО Установки в зданиях Санитарно-техническое оборудование Строительство Справочные документы Типовые строительные конструкции, изделия и узлы Общероссийский строительный каталог Строительные конструкции, изделия и узлы зданий и сооружений для всех видов строительства Конструкции и изделия сооружений и оборудования зданий Надземные сооружения Узлы и детали сооружений
Серия 5.900-7Серия 5.900-7Серия 5.900-7Серия 5.900-7Серия 5.900-7Серия 5.900-7Серия 5.900-7Серия 5.900-7Серия 5.900-7Серия 5.900-7Серия 5.900-7Серия 5.900-7Серия 5.900-7Серия 5.900-7Серия 5.900-7Серия 5.900-7Серия 5.900-7Серия 5.900-7Серия 5.900-7Серия 5.900-7Серия 5.900-7Серия 5.900-7Серия 5.900-7Серия 5.900-7Серия 5.900-7Серия 5.900-7Серия 5.900-7Серия 5.900-7Серия 5.900-7Серия 5.900-7Серия 5.900-7Серия 5.900-7Серия 5.900-7Серия 5.900-7Серия 5.900-7Серия 5.900-7Серия 5.900-7Серия 5.900-7Серия 5.900-7Серия 5.900-7Серия 5.900-7Серия 5.900-7Серия 5.900-7Серия 5.900-7Серия 5.900-7Серия 5.900-7Серия 5.900-7Серия 5.900-7Серия 5.900-7Серия 5.900-7Серия 5.900-7Серия 5.900-7Серия 5.900-7Серия 5.900-7Серия 5.900-7Серия 5.900-7Серия 5.900-7Серия 5.900-7Серия 5.900-7Серия 5.900-7Серия 5.900-7Серия 5.900-7Серия 5.900-7Серия 5.900-7Серия 5.900-7Серия 5.900-7Серия 5.900-7Серия 5.900-7Серия 5.900-7Серия 5.900-7Серия 5.900-7Серия 5.900-7Серия 5.900-7Серия 5.900-7Серия 5.900-7Серия 5.900-7Серия 5.900-7Серия 5.900-7Серия 5.900-7Серия 5.900-7Серия 5.900-7Серия 5.900-7Серия 5.900-7Серия 5.900-7Серия 5.900-7Серия 5.900-7Серия 5.900-7Серия 5.900-7Серия 5.900-7Серия 5.900-7Серия 5.900-7Серия 5.900-7Серия 5.900-7Серия 5.900-7Серия 5.900-7Серия 5.900-7Серия 5.900-7Серия 5.900-7Серия 5.900-7Серия 5.900-7Серия 5.900-7Серия 5.900-7Серия 5.900-7Серия 5.900-7Серия 5.900-7Серия 5.900-7Серия 5.900-7Серия 5.900-7Серия 5.900-7

© 2013 Ёшкин Кот :-) Карта сайта