Информационная система
«Ёшкин Кот»

Скачать базу одним архивом
Скачать обновления
История создания базы
Карта сайта

Скачать НП 5.1.1.1-71 Основные помещения зданий зрелищного культурно-просветительного назначения и спортивных сооружений. Зрелищные здания. Клубы. Кружковые помещения клубов

Дата актуализации: 10.08.2017

НП 5.1.1.1-71

Основные помещения зданий зрелищного культурно-просветительного назначения и спортивных сооружений. Зрелищные здания. Клубы. Кружковые помещения клубов

Обозначение: НП 5.1.1.1-71
Обозначение англ: NP 5.1.1.1-71
Статус:действует
Название рус.:Основные помещения зданий зрелищного культурно-просветительного назначения и спортивных сооружений. Зрелищные здания. Клубы. Кружковые помещения клубов
Дата добавления в базу:01.09.2013
Дата актуализации:05.05.2017
Оглавление:1. Исходные габариты
2. Исходные габариты
3. Исходные габариты
4. Исходные габариты
5. Исходные габариты
6. Мебель и оборудование
7. Мебель и оборудование
8. Мебель и оборудование
9. Мебель и оборудование
10. Мебель и оборудование
11. Номенклатура мебели и оборудования
12. Функциональная схема расположения хора
13. Функциональные схемы оркестров
14. Функциональная схема расположения оркестра
15. Функциональная схема ансамблей
16. Функциональные требования к параметрам репетиционных залов
17. Помещения музыкальных коллективов
18. Помещения музыкальных коллективов
19. Помещения музыкальных коллективов
20. Помещения музыкальных коллективов
21. Функциональная схема танцевальных коллективов
22. Помещения танцевальных коллективов
23. Функциональная схема театрального коллектива
24. Помещения театральных коллективов
25. Кружковые комнаты универсального назначения
26. Исходные габариты
27. Исходные габариты
28. Исходные габариты
29. Исходные габариты
30. Габариты мебели
31. Габариты мебели и оборудования
32. Габариты мебели и оборудования
33. Габариты мебели и оборудования
34. Габариты мебели и оборудования
35. Габариты оборудования
36. Габариты оборудования
37. Габариты оборудования
38. Габариты оборудования
39. Встроенные шкафы
40. Встроенные шкафы
41. Группировка мебели в кружковых помещениях
42. Группировка мебели в кружковых помещениях
43. Кабинет политпросвещения и передового опыта
44. Кабинет культуры быта
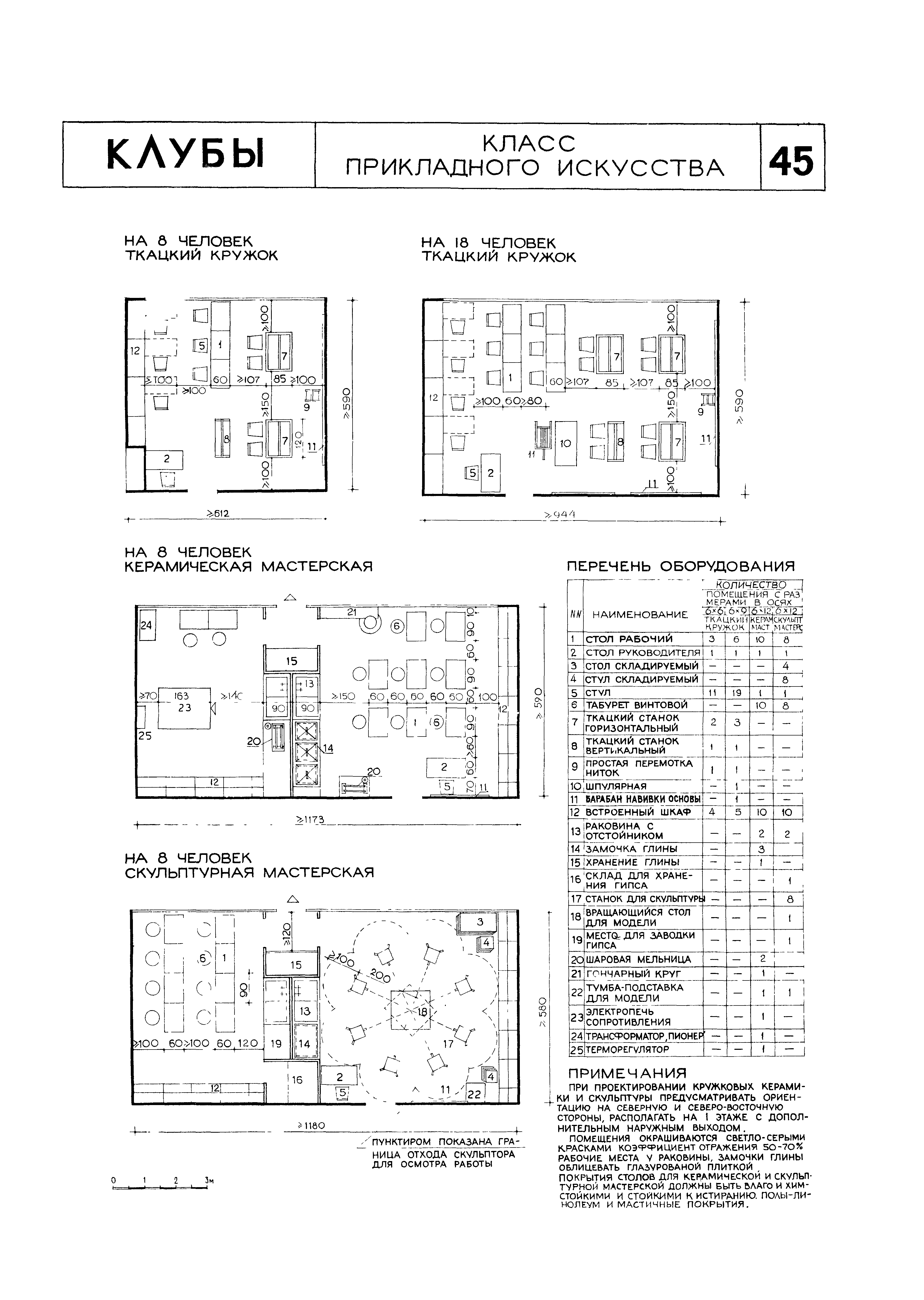
45. Класс прикладного искусства
46. Класс ИЗО
47. Класс циркового искусства
48. Кинофотокласс
49. Мастерская обработки дерева
50. Мастерская обработки металла
51. Астрономический кружок
52. Номенклатура мебели и оборудования
Разработан: ЦНИИЭП зрелищных зданий и спортивных сооружений Госгражданстроя
КиевЗНИИЭП
ЦНИИЭП учебных зданий Госгражданстроя
ЦНИИЭП жилища
Утверждён:14.05.1971 Госгражданстрой (Gosgrazhdanstroy 85)
Издан: ЦИТП Госстроя СССР (CITP, Gosstroy (USSR) 1971 г. )
Расположен в:Техническая документация Экология СТРОИТЕЛЬНЫЕ МАТЕРИАЛЫ И СТРОИТЕЛЬСТВО Строительство Общественные здания Строительство Справочные документы Нормали основных планировочных элементов жилых и общественных зданий
НП 5.1.1.1-71НП 5.1.1.1-71НП 5.1.1.1-71НП 5.1.1.1-71НП 5.1.1.1-71НП 5.1.1.1-71НП 5.1.1.1-71НП 5.1.1.1-71НП 5.1.1.1-71НП 5.1.1.1-71НП 5.1.1.1-71НП 5.1.1.1-71НП 5.1.1.1-71НП 5.1.1.1-71НП 5.1.1.1-71НП 5.1.1.1-71НП 5.1.1.1-71НП 5.1.1.1-71НП 5.1.1.1-71НП 5.1.1.1-71НП 5.1.1.1-71НП 5.1.1.1-71НП 5.1.1.1-71НП 5.1.1.1-71НП 5.1.1.1-71НП 5.1.1.1-71НП 5.1.1.1-71НП 5.1.1.1-71НП 5.1.1.1-71НП 5.1.1.1-71НП 5.1.1.1-71НП 5.1.1.1-71НП 5.1.1.1-71НП 5.1.1.1-71НП 5.1.1.1-71НП 5.1.1.1-71НП 5.1.1.1-71НП 5.1.1.1-71НП 5.1.1.1-71НП 5.1.1.1-71НП 5.1.1.1-71НП 5.1.1.1-71НП 5.1.1.1-71НП 5.1.1.1-71НП 5.1.1.1-71НП 5.1.1.1-71НП 5.1.1.1-71НП 5.1.1.1-71НП 5.1.1.1-71НП 5.1.1.1-71НП 5.1.1.1-71НП 5.1.1.1-71НП 5.1.1.1-71НП 5.1.1.1-71НП 5.1.1.1-71НП 5.1.1.1-71НП 5.1.1.1-71

© 2013 Ёшкин Кот :-) Карта сайта