Информационная система
«Ёшкин Кот»

Скачать базу одним архивом
Скачать обновления
История создания базы
Карта сайта

Скачать НП 2.5-74 Основные помещения техникумов

Дата актуализации: 10.08.2017

НП 2.5-74

Основные помещения техникумов

Обозначение: НП 2.5-74
Обозначение англ: NP 2.5-74
Статус:не действует
Название рус.:Основные помещения техникумов
Дата добавления в базу:01.09.2013
Дата актуализации:05.05.2017
Дата введения:01.01.2003
Оглавление:Аннотация
Предисловие
Функциональная структура
Антропометрические и эргономические данные
Исходные эргономические данные
Функциональные зоны
Номенклатура мебели и оборудования
Шкафные секции
Кабинеты общеобразовательного цикла. Функционально-габаритные схемы
Кабинет иностранного языка. Функционально-габаритные схемы
Кабинет черчения. Функционально-габаритные схемы
Кабинет курсового и дипломного проектирования, групповая аудитория. Функционально-габаритные схемы
Кабинеты общеобразовательного цикла и общих предметов специального цикла. Функционально-габаритные схемы
Кабинеты общеобразовательного цикла, требующие крупногабаритного оборудования. Функционально-габаритные схемы
Кабинет начальной военной подготовки. Функционально-габаритные схемы
Лаборатория и кабинет химии. Функционально-габаритные схемы
Кабинет-лаборатория электротехники. Функционально-габаритные схемы
Лаборатория основ автоматизации производства и КИП. Функционально-габаритные схемы
Лаборатория промышленного электрооборудования. Функционально-габаритные схемы
Лаборатория механической обработки металлов. Функционально-габаритные схемы
Лаборатория испытания материалов. Функционально-габаритные схемы
Кабинет технических средств обучения. Функционально-габаритные схемы
Кабинет технических средств обучения с комнатой просмотра информации. Функционально-габаритные схемы
Класс тренажеров. Функционально-габаритные схемы
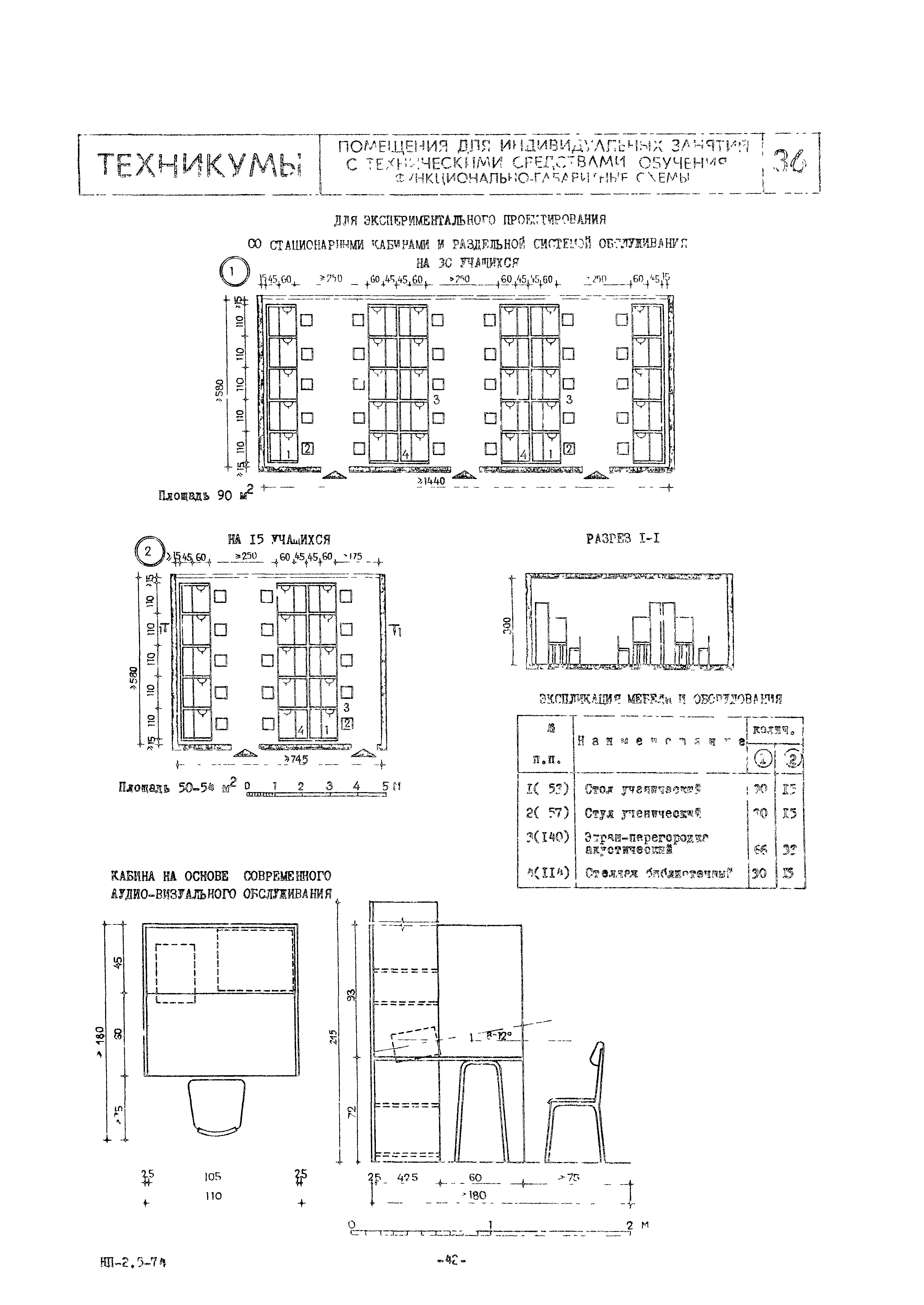
Помещения для индивидуальных занятий с техническими средствами обучения. Функционально-габаритные схемы
Вспомогательные помещения для технических средств обучения. Функционально-габаритные схемы
Технические средства обучения. Кинофикация учебных помещений
Пример конструктивного решения кабинетов и лабораторий
Учебно-производственные мастерские. Нормативно исходные данные
Функциональные зоны мастерских
Слесарная мастерская. Функционально-габаритные схемы
Электромонтажная мастерская. Функционально-габаритные схемы
Механическая мастерская. Функционально-габаритные схемы
Производственно-вспомогательные помещения мастерских. Функционально-габаритные схемы
Бытовые помещения мастерских. Состав оборудования
Бытовые помещения мастерских. Примеры планировочных решений
Пример конструктивного решения мастерских в сетке опор 6х12 м
Естественное освещение учебных помещений
Внутренняя отделка помещений
Разработан: ЦНИИЭП учебных зданий Госгражданстроя
ЦНИИЭП жилища
Утверждён:10.01.1975 Госгражданстрой (Gosgrazhdanstroy 3)
Издан: ЦИТП Госстроя СССР (CITP, Gosstroy (USSR) 1974 г. )
Расположен в:Техническая документация Экология СТРОИТЕЛЬНЫЕ МАТЕРИАЛЫ И СТРОИТЕЛЬСТВО Строительство Общественные здания Строительство Справочные документы Нормали основных планировочных элементов жилых и общественных зданий
НП 2.5-74НП 2.5-74НП 2.5-74НП 2.5-74НП 2.5-74НП 2.5-74НП 2.5-74НП 2.5-74НП 2.5-74НП 2.5-74НП 2.5-74НП 2.5-74НП 2.5-74НП 2.5-74НП 2.5-74НП 2.5-74НП 2.5-74НП 2.5-74НП 2.5-74НП 2.5-74НП 2.5-74НП 2.5-74НП 2.5-74НП 2.5-74НП 2.5-74НП 2.5-74НП 2.5-74НП 2.5-74НП 2.5-74НП 2.5-74НП 2.5-74НП 2.5-74НП 2.5-74НП 2.5-74НП 2.5-74НП 2.5-74НП 2.5-74НП 2.5-74НП 2.5-74НП 2.5-74НП 2.5-74НП 2.5-74НП 2.5-74НП 2.5-74НП 2.5-74НП 2.5-74НП 2.5-74НП 2.5-74НП 2.5-74НП 2.5-74НП 2.5-74НП 2.5-74НП 2.5-74НП 2.5-74НП 2.5-74НП 2.5-74НП 2.5-74НП 2.5-74НП 2.5-74НП 2.5-74НП 2.5-74НП 2.5-74НП 2.5-74

© 2013 Ёшкин Кот :-) Карта сайта