Информационная система
«Ёшкин Кот»

Скачать базу одним архивом
Скачать обновления
История создания базы
Карта сайта

Скачать НП 2.3-71 Аудитории вузов и средних специальных учебных заведений

Дата актуализации: 10.08.2017

НП 2.3-71

Аудитории вузов и средних специальных учебных заведений

Обозначение: НП 2.3-71
Обозначение англ: NP 2.3-71
Статус:не действует
Название рус.:Аудитории вузов и средних специальных учебных заведений
Дата добавления в базу:01.09.2013
Дата актуализации:05.05.2017
Область применения:Нормали содержат иллюстрированное изложение нормативных требований к планировке элементов зданий и их оборудованию на основе прогрессивных функциональных и технических требований и являются справочным пособием по проектированию.
Оглавление:Предисловие
Общие положения по проектированию аудиторий
1. Нормы проектирования аудиторий по СНиП П-Л.6-67
2. Профиль линии размещения мест по продольному разрезу
3-4. Исходные габариты
5. Кинофикация аудиторий. Исходные данные
6. Кинофикация аудиторий. Варианты размещения кинопроекторов
7. Кинотехнологическое оборудование
8. Телевидение. Исходные данные
9. Технические средства обучения. Примеры
10. Номенклатура оборудования аудиторий и препараторских
11. Габариты меловой доски кассетного типа с экраном
12-13. Габариты оборудования препараторских
14-15. Габариты оборудования аудиторий
16. Типы аудиторий. Различные системы эвакуации
17. Номенклатура специализированных аудиторий с киноаппаратными
18. Номенклатура специализированных аудиторий без киноаппаратных с кинопроектором в аудитории
19. Номенклатура неспециализированных аудиторий без киноаппаратных с кинопроектором в аудитории
20. Номенклатура киноаудиторий средних специальных учебных заведений (техникумов)
21. Габариты поточных аудиторий в плане
22. Основные конструктивные схемы железобетонного каркаса и перекрытий аудиторий
23. Аудитория химии и физики на 250 мест. Тип 1-250. План 1-го этажа
24. Аудитория химии и физики на 250 мест. Тип 1-250. План 2-го этажа
25. Аудитория химии и физики на 250 мест. Тип 1-250. Продольные разрезы
26. Аудитория химии и физики на 300 мест. Тип 1-300. План 1-го этажа
27. Аудитория химии и физики на 300 мест. Тип 1-300. План 2-го этажа
28. Аудитория химии и физики на 300 мест. Тип 1-300. Продольные разрезы
29. Аудитория химии и физики на 250 и 300 мест. Тип 1-250 и 1-300. Поперечные разрезы
30. Аудитория химии и физики на 400 мест. Тип 1-400. План 1-го этажа
31. Аудитория химии и физики на 400 мест. Тип 1-400. План 2-го этажа
32-33. Аудитория химии и физики на 400 мест. Тип 1-400. Продольные разрезы
34. Аудитория химии и физики на 400 мест. Тип 1-400. Поперечные разрезы
35. Препараторская при аудитории химии на 250 мест. Тип 1-250. Планы 1-го и 2-го этажей
36. Препараторская при аудитории физики на 250 мест. Тип 1-250. Планы 1-го и 2-го этажей
37. Препараторская при аудитории химии на 300 и 400 мест. Тип 1-300 и 1-400. Планы 1-го и 2-го этажей
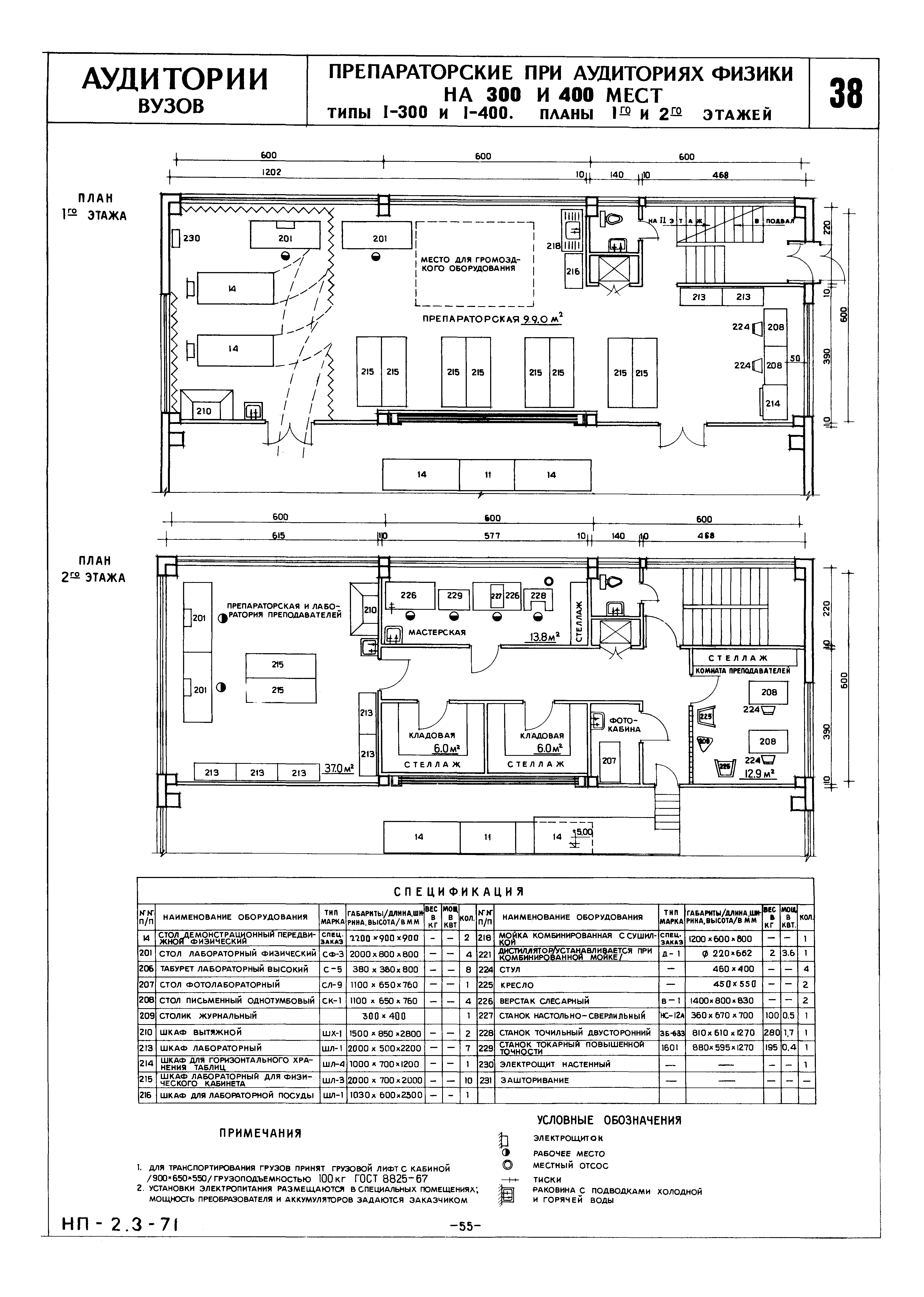
38. Препараторская при аудиториях физики на 300 и 400 мест. Тип 1-300 и 1-400. Планы 1-го и 2-го этажей
39. Препараторская при аудитории физики на 250, 300 и 400 мест. Тип 1-250, 1-300 и 1-400. Одноэтажные варианты
40. Кинофикация аудиторий на 250, 300 и 400 мест. Типы 1-250, 1-300 и 1-400. Схемы видимости
41. Киноаппаратная для проекторов с 35 мм горючей пленкой. Тип "А"
42. Киноаппаратная для проекторов с 16 мм горючей пленкой. Тип "Б"
43. Аудитория химии и физики на 100 мест. Тип П-100. План и разрезы
44. Аудитория химии и физики на 150 мест. Тип 1-150. План
45. Аудитория химии и физики на 150 мест. Тип 1-150. Разрезы
46. Аудитория химии и физики на 150 мест. Тип П-150. План и разрезы
47. Аудитория химии и физики на 200 мест. Тип 1-200. План
48. Аудитория химии и физики на 200 мест. Тип 1-200. Разрезы
49. Аудитория химии и физики на 200 мест. Тип П-200. План
50. Аудитория химии и физики на 200 мест. Тип П-200. Разрезы
51. Препараторские аудиторий химии и физики на 100, 150 и 200 мест. Планы. Типы П-100, П-150 и П-200.
52. Кинофикация аудиторий на 150 и 200 мест. Типы 1-150 и 1-200. Схемы видимости
53. Кинофикация аудиторий на 100, 150 и 200 мест. Типы П-100, П150 и П-200. Схемы видимости
54. Групповые аудитории на 14 и 26 мест. Планы и разрезы.
55. Телевидение в групповых аудиториях на 14 и 26 мест
56. Кинофикация групповых аудиторий на 14 и 26 мест
57. Лекционные аудитории на 50 мест. Планы и разрезы
58. Телевидение в лекционных аудиториях ВУЗов на 50 мест.
59. Кинофикация лекционных аудиторий на 50 мест
60. Лекционная аудитория на 100 мест тип Ш-100. Планы и разрезы
61. Лекционная аудитория на 150 мест тип Ш-150. План
62. Лекционная аудитория на 200 мест тип Ш-200. План
63. Лекционная аудитория на 150 и 200 мест. Типы Ш-150 и Ш-200. Разрезы
64. Кинофикация лекционных аудиторий ВУЗов на 100, 150 и 200 мест. Типы Ш-100, Ш-150 и Ш-200. Схемы видимости
65. Киноаудитория на 60 мест. План и разрезы
66. Киноаудитория на 90 мест. План и разрезы
67. Кинофикация аудиторий на 60 и 90 мест. Схемы видимости
68. Киноаудитория на 120 мест. План и разрезы
69. Киноаудитория на 150 мест. План и разрезы
70. Кинофикация аудиторий на 120 и 150 мест. Схемы видимости
71. Искусственное освещение аудиторий на 200 мест. Расчетные графики освещенности
72. Искусственное освещение аудиторий на 200 мест. Варианты
73. Искусственное освещение аудиторий на 200 мест. Варианты
74. Искусственное освещение аудиторий на 100 мест. Варианты
75. Искусственное освещение аудиторий на 150 мест. Варианты
76. Искусственное освещение аудиторий на 250 мест. Варианты
77. Искусственное освещение аудиторий на 300 мест. Варианты
Разработан: ЦНИИЭП учебных зданий Госгражданстроя
ЦНИИЭП жилища
Утверждён:14.05.1971 Госгражданстрой (Gosgrazhdanstroy 84)
Издан: ЦИТП Госстроя СССР (CITP, Gosstroy (USSR) 1971 г. )
Расположен в:Техническая документация Экология СТРОИТЕЛЬНЫЕ МАТЕРИАЛЫ И СТРОИТЕЛЬСТВО Строительство Общественные здания Строительство Справочные документы Нормали основных планировочных элементов жилых и общественных зданий
Нормативные ссылки:
НП 2.3-71НП 2.3-71НП 2.3-71НП 2.3-71НП 2.3-71НП 2.3-71НП 2.3-71НП 2.3-71НП 2.3-71НП 2.3-71НП 2.3-71НП 2.3-71НП 2.3-71НП 2.3-71НП 2.3-71НП 2.3-71НП 2.3-71НП 2.3-71НП 2.3-71НП 2.3-71НП 2.3-71НП 2.3-71НП 2.3-71НП 2.3-71НП 2.3-71НП 2.3-71НП 2.3-71НП 2.3-71НП 2.3-71НП 2.3-71НП 2.3-71НП 2.3-71НП 2.3-71НП 2.3-71НП 2.3-71НП 2.3-71НП 2.3-71НП 2.3-71НП 2.3-71НП 2.3-71НП 2.3-71НП 2.3-71НП 2.3-71НП 2.3-71НП 2.3-71НП 2.3-71НП 2.3-71НП 2.3-71НП 2.3-71НП 2.3-71НП 2.3-71НП 2.3-71НП 2.3-71НП 2.3-71НП 2.3-71НП 2.3-71НП 2.3-71НП 2.3-71НП 2.3-71НП 2.3-71НП 2.3-71НП 2.3-71НП 2.3-71НП 2.3-71НП 2.3-71НП 2.3-71НП 2.3-71НП 2.3-71НП 2.3-71НП 2.3-71НП 2.3-71НП 2.3-71НП 2.3-71НП 2.3-71НП 2.3-71НП 2.3-71НП 2.3-71НП 2.3-71НП 2.3-71НП 2.3-71НП 2.3-71НП 2.3-71НП 2.3-71НП 2.3-71НП 2.3-71НП 2.3-71НП 2.3-71НП 2.3-71НП 2.3-71НП 2.3-71НП 2.3-71НП 2.3-71НП 2.3-71НП 2.3-71НП 2.3-71НП 2.3-71НП 2.3-71НП 2.3-71НП 2.3-71НП 2.3-71НП 2.3-71

© 2013 Ёшкин Кот :-) Карта сайта