Информационная система
«Ёшкин Кот»

Скачать базу одним архивом
Скачать обновления
История создания базы
Карта сайта

Скачать НП 1.4-75 Дома-интернаты для престарелых

Дата актуализации: 10.08.2017

НП 1.4-75

Дома-интернаты для престарелых

Обозначение: НП 1.4-75
Обозначение англ: NP 1.4-75
Статус:действует
Название рус.:Дома-интернаты для престарелых
Дата добавления в базу:01.09.2013
Дата актуализации:05.05.2017
Область применения:Документ предназначен для архитекторов, инженеров, а также работников министерств и ведомств.
Оглавление:Введение
Раздел 1. Общие данные
Раздел 2. Помещения жилых групп и отделений для практически здоровых
Раздел 3. Помещения жилых групп и отделений для немощных
Раздел 4. Клубные помещения
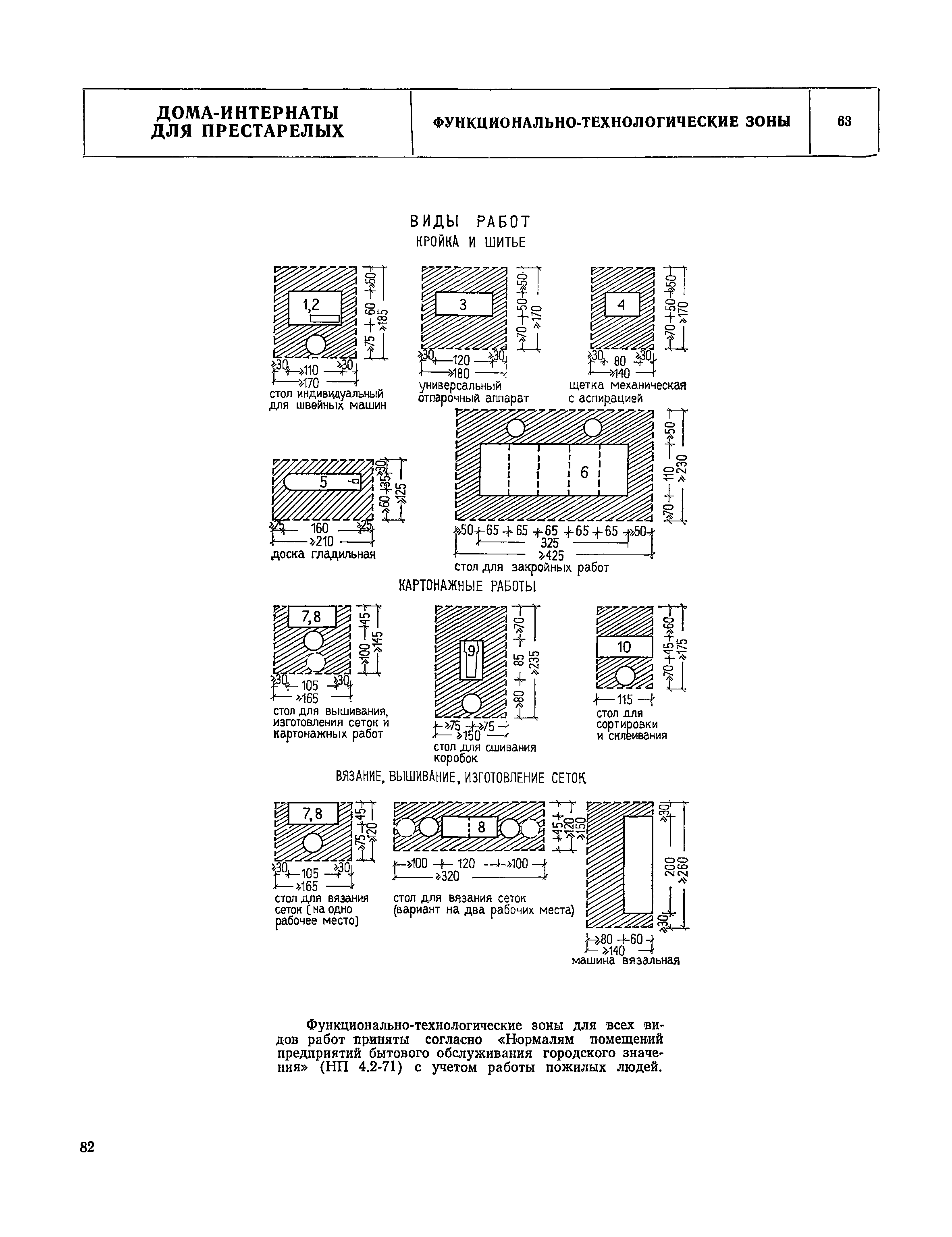
Раздел 5. Помещения мастерских трудотерапии
Раздел 6. Помещения столовой
Раздел 7. Помещения медицинского пункта с приемным отделением и изолятором-боксом
Разработан: ЦНИИЭП жилища
Утверждён:15.08.1975 Госгражданстрой (Gosgrazhdanstroy 182)
Издан: Стройиздат (1977 г. )
ЦИТП Госстроя СССР (CITP, Gosstroy (USSR) 1975 г. )
Расположен в:Техническая документация Экология СТРОИТЕЛЬНЫЕ МАТЕРИАЛЫ И СТРОИТЕЛЬСТВО Строительство Общественные здания Строительство Справочные документы Нормали основных планировочных элементов жилых и общественных зданий
НП 1.4-75НП 1.4-75НП 1.4-75НП 1.4-75НП 1.4-75НП 1.4-75НП 1.4-75НП 1.4-75НП 1.4-75НП 1.4-75НП 1.4-75НП 1.4-75НП 1.4-75НП 1.4-75НП 1.4-75НП 1.4-75НП 1.4-75НП 1.4-75НП 1.4-75НП 1.4-75НП 1.4-75НП 1.4-75НП 1.4-75НП 1.4-75НП 1.4-75НП 1.4-75НП 1.4-75НП 1.4-75НП 1.4-75НП 1.4-75НП 1.4-75НП 1.4-75НП 1.4-75НП 1.4-75НП 1.4-75НП 1.4-75НП 1.4-75НП 1.4-75НП 1.4-75НП 1.4-75НП 1.4-75НП 1.4-75НП 1.4-75НП 1.4-75НП 1.4-75НП 1.4-75НП 1.4-75НП 1.4-75НП 1.4-75НП 1.4-75НП 1.4-75НП 1.4-75НП 1.4-75НП 1.4-75НП 1.4-75НП 1.4-75НП 1.4-75НП 1.4-75НП 1.4-75НП 1.4-75НП 1.4-75НП 1.4-75НП 1.4-75НП 1.4-75НП 1.4-75НП 1.4-75НП 1.4-75НП 1.4-75НП 1.4-75НП 1.4-75НП 1.4-75НП 1.4-75НП 1.4-75НП 1.4-75НП 1.4-75НП 1.4-75НП 1.4-75НП 1.4-75НП 1.4-75НП 1.4-75НП 1.4-75НП 1.4-75НП 1.4-75НП 1.4-75НП 1.4-75НП 1.4-75НП 1.4-75НП 1.4-75НП 1.4-75НП 1.4-75НП 1.4-75НП 1.4-75НП 1.4-75НП 1.4-75НП 1.4-75НП 1.4-75НП 1.4-75НП 1.4-75НП 1.4-75НП 1.4-75НП 1.4-75НП 1.4-75НП 1.4-75НП 1.4-75НП 1.4-75НП 1.4-75НП 1.4-75НП 1.4-75НП 1.4-75НП 1.4-75НП 1.4-75НП 1.4-75НП 1.4-75НП 1.4-75

© 2013 Ёшкин Кот :-) Карта сайта