Информационная система
«Ёшкин Кот»

Скачать базу одним архивом
Скачать обновления
История создания базы
Карта сайта

Скачать НП 5.3.5-76 Спортивные залы. Залы для учебно-тренировочных занятий по боксу, борьбе и тяжелой атлетике

Дата актуализации: 10.08.2017

НП 5.3.5-76

Спортивные залы. Залы для учебно-тренировочных занятий по боксу, борьбе и тяжелой атлетике

Обозначение: НП 5.3.5-76
Обозначение англ: NP 5.3.5-76
Статус:действует
Название рус.:Спортивные залы. Залы для учебно-тренировочных занятий по боксу, борьбе и тяжелой атлетике
Дата добавления в базу:01.09.2013
Дата актуализации:05.05.2017
Область применения:Выпуск содержит общие требования к проектированию, акустике, естественному и искусственному освещению, отоплению и вентиляции, габаритным схемам, схемам установки и размещению спортивного оборудования и инвентаря. Приведены планы однокомплектных и двухкомплектных залов для бокса, борьбы и тяжелой атлетики. Для архитекторов и инженерно-технических работников соответствующих министерств и ведомств.
Оглавление:Введение
Раздел I Общие требования
   Общие требования к проектированию
Раздел II. Залы для учебно-тренировочных занятий по боксу, борьбе и тяжелой атлетике
   Основные положения для проектирования
   Табель-экспликация спортивного оборудования и инвентаря
   Спортивное оборудование
   Крепление спортивного оборудования и схемы расположения закладных деталей
   Закладные детали для крепления спортивного оборудования
   Полы залов
   Зал для бокса размером 18 Х 12 м (однокомплектный)
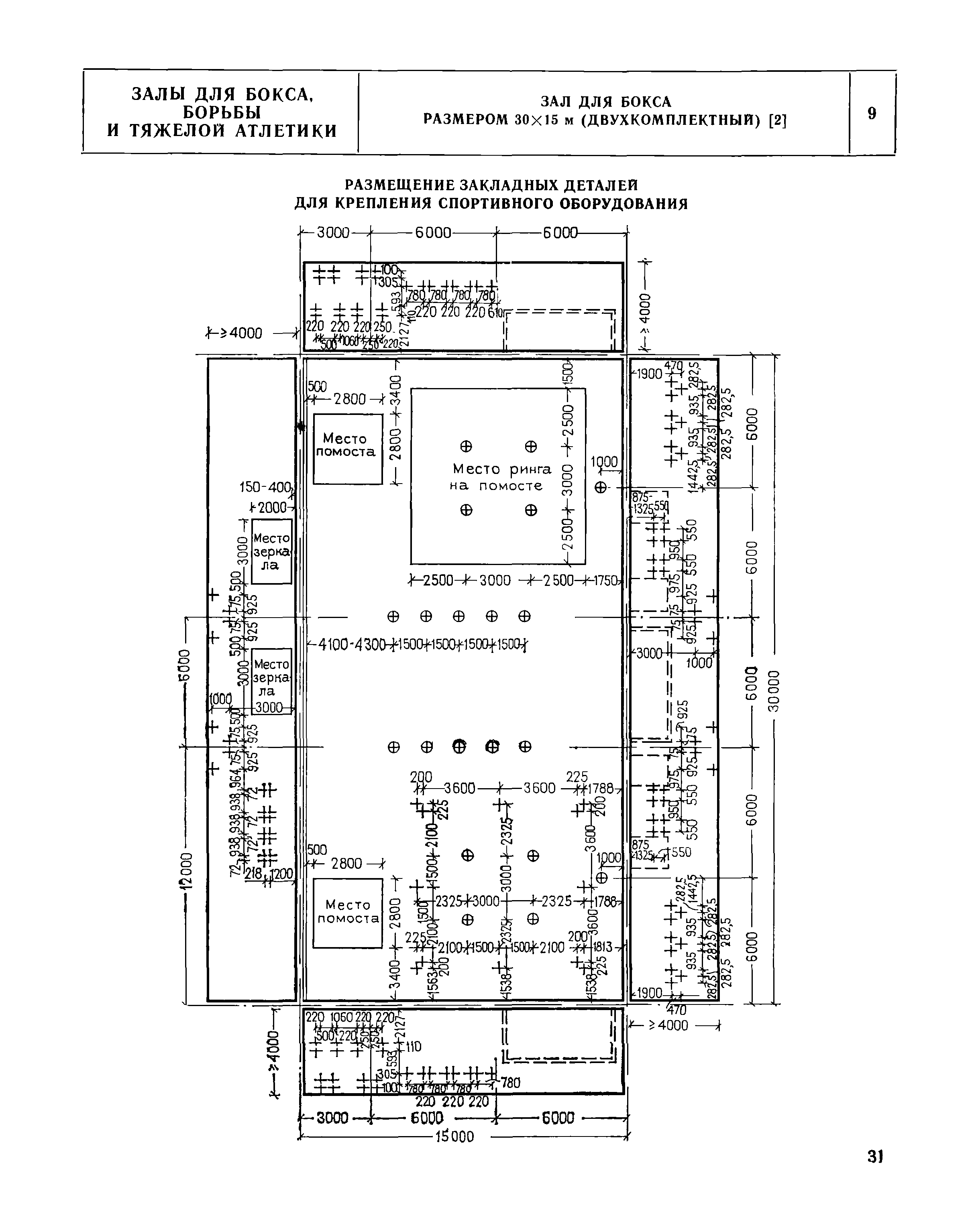
   Зал для бокса размером 30 Х 15 м (двухкомплектный)
   Зал для борьбы размером 24 Х 15м (однокомплектный)
   Зал для борьбы размером 30 Х 18м (двухкомплектный)
   Зал для тяжелой атлетики размером 18 Х 9 м (однокомплектный)
   Зал для тяжелой атлетики размером 24 Х 12 м (двухкомплектный)
   Инвентарные
Разработан: ЦНИИЭП зрелищных зданий и спортивных сооружений Госгражданстроя
ЦНИИЭП жилища
Утверждён:07.02.1977 Госгражданстрой (Gosgrazhdanstroy 28)
Принят:16.07.1976 ЦНИИЭП комплексов и зданий культуры, спорта и управления им. Б.С. Мезенцева (7)
Издан: Стройиздат (1982 г. )
ЦИТП Госстроя СССР (CITP, Gosstroy (USSR) 1976 г. )
Расположен в:Техническая документация Экология СТРОИТЕЛЬНЫЕ МАТЕРИАЛЫ И СТРОИТЕЛЬСТВО Строительство Общественные здания Строительство Справочные документы Нормали основных планировочных элементов жилых и общественных зданий
Список изменений:
НП 5.3.5-76НП 5.3.5-76НП 5.3.5-76НП 5.3.5-76НП 5.3.5-76НП 5.3.5-76НП 5.3.5-76НП 5.3.5-76НП 5.3.5-76НП 5.3.5-76НП 5.3.5-76НП 5.3.5-76НП 5.3.5-76НП 5.3.5-76НП 5.3.5-76НП 5.3.5-76НП 5.3.5-76НП 5.3.5-76НП 5.3.5-76НП 5.3.5-76НП 5.3.5-76НП 5.3.5-76НП 5.3.5-76НП 5.3.5-76НП 5.3.5-76НП 5.3.5-76НП 5.3.5-76НП 5.3.5-76НП 5.3.5-76НП 5.3.5-76НП 5.3.5-76НП 5.3.5-76НП 5.3.5-76НП 5.3.5-76НП 5.3.5-76НП 5.3.5-76НП 5.3.5-76НП 5.3.5-76НП 5.3.5-76НП 5.3.5-76НП 5.3.5-76НП 5.3.5-76НП 5.3.5-76НП 5.3.5-76НП 5.3.5-76НП 5.3.5-76

Текстовое изменение опечатки

опечатки

© 2013 Ёшкин Кот :-) Карта сайта