Информационная система
«Ёшкин Кот»

Скачать базу одним архивом
Скачать обновления
История создания базы
Карта сайта

Скачать Серия 1.169.1-2с Выпуск 2. Доборные изделия. Рабочие чертежи

Дата актуализации: 10.08.2017

Серия 1.169.1-2с

Выпуск 2. Доборные изделия. Рабочие чертежи

Обозначение: Серия 1.169.1-2с
Обозначение англ: Series 1.169.1-2с
Статус:не определен законодательством
Название рус.:Выпуск 2. Доборные изделия. Рабочие чертежи
Дата добавления в базу:01.09.2013
Дата актуализации:05.05.2017
Дата введения:15.02.1987
Оглавление:1.169.1-2с.2-01000 Панель парапетная ПП 36.14.3-Л-С; ПП 36.13.3-Л-С
1.169.1-2с.2-01000 СБ Панель парапетная ПП 36.14.3-Л-С; ПП 36.13.3-Л-С. Сборочный чертеж
1.169.1-2с.2-01010 Пространственный каркас ПКР 36.14.3; ПКР 36.13.3
1.169.1-2с.2-01010 СБ Пространственный каркас ПКР 36.14.3; ПКР 36.13.3. Сборочный чертеж
1.169.1-2с.2-02000 Панель парапетная ПП 30.14.3-Л-С; ПП 30.13.3-Л-С
1.169.1-2с.2-02000 СБ Панель парапетная ПП 30.14.3-Л-С; ПП 30.13.3-Л-С. Сборочный чертеж
1.169.1-2с.2-02010 Пространственный каркас ПКР 30.14.3; ПКР 30.13.3
1.169.1-2с.2-02010 СБ Пространственный каркас ПКР 30.14.3; ПКР 30.13.3. Сборочный чертеж
1.169.1-2с.2-03000 Панель парапетная ПП 36.22.3-Л-С; ПП 36.20.3-Л-С
1.169.1-2с.2-03000 СБ Панель парапетная ПП 36.22.3-Л-С; ПП 36.20.3-Л-С. Сборочный чертеж
1.169.1-2с.2-03010 Пространственный каркас ПКР 36.22.3; ПКР 36.20.3
1.169.1-2с.2-03010 СБ Пространственный каркас ПКР 36.22.3; ПКР 36.20.3. Сборочный чертеж
1.169.1-2с.2-04000 Панель парапетная ПП 30.22.3-Л-С; ПП 30.20.3-Л-С
1.169.1-2с.2-04000 СБ Панель парапетная ПП 30.22.3-Л-С; ПП 30.20.3-Л-С. Сборочный чертеж
1.169.1-2с.2-04010 Пространственный каркас ПКР 30.22.3; ПКР 30.20.3
1.169.1-2с.2-04010 СБ Пространственный каркас ПКР 30.22.3; ПКР 30.20.3. Сборочный чертеж
1.169.1-2с.2-05000 Панель парапетная ПП 30.31.4-Л-С
1.169.1-2с.2-05000 СБ Панель парапетная ПП 30.31.4-Л-С. Сборочный чертеж
1.169.1-2с.2-05010 Пространственный каркас ПКР 30.31.4
1.169.1-2с.2-05010 СБ Пространственный каркас ПКР 30.31.4. Сборочный чертеж
1.169.1-2с.2-06000 Панель парапетная ПП 30.31.3-Л-С1; ПП 30.31.3-Л-С2; ПП 30.31.3-Л-С
1.169.1-2с.2-06000 СБ Панель парапетная ПП 30.31.3-Л-С1; ПП 30.31.3-Л-С2; ПП 30.31.3-Л-С. Сборочный чертеж
1.169.1-2с.2-06010 Пространственный каркас ПКР3 0.31.3-1; ПКР 30.31.3-2; ПКР 30.31.3
1.169.1-2с.2-06010 СБ Пространственный каркас ПКР3 0.31.3-1; ПКР 30.31.3-2; ПКР 30.31.3. Сборочный чертеж
1.169.1-2с.2-07000 Панель парапетная ПП 56.27.3-Л-С1; ПП 56.27.3-Л-С2; ПП 56.31.3-Л-С1; ПП 56.31.3-Л-С2
1.169.1-2с.2-07000 СБ Панель парапетная ПП 56.27.3-Л-С1; ПП 56.27.3-Л-С2; ПП 56.31.3-Л-С1; ПП 56.31.3-Л-С2. Сборочный чертеж
1.169.1-2с.2-07010 Пространственный каркас ПКР 56.27.3-1; ПКР 56.27.3-2; ПКР 56.31.3-1; ПКР 56.31.3-2
1.169.1-2с.2-07010 СБ Пространственный каркас ПКР 56.27.3-1; ПКР 56.27.3-2; ПКР 56.31.3-1; ПКР 56.31.3-2. Сборочный чертеж
1.169.1-2с.2-08000 Панель парапетная ПП 56.31.3-Л-С3; ПП 56.31.3-Л-С4
1.169.1-2с.2-08000 СБ Панель парапетная ПП 56.31.3-Л-С3; ПП 56.31.3-Л-С4. Сборочный чертеж
1.169.1-2с.2-08010 Пространственный каркас ПКР 56.31.3-3; ПКР 56.31.3-4
1.169.1-2с.2-08010 СБ Пространственный каркас ПКР 56.31.3-3; ПКР 56.31.3-4. Сборочный чертеж
1.169.1-2с.2-09000 Панель парапетная ПП 57.31.4-Л-С1; ПП 57.31.4-Л-С2
1.169.1-2с.2-09000 СБ Панель парапетная ПП 57.31.4-Л-С1; ПП 57.31.4-Л-С2. Сборочный чертеж
1.169.1-2с.2-09010 Пространственный каркас ПКР 57.31.4-1; ПКР 57.31.4-2
1.169.1-2с.2-09010 СБ Пространственный каркас ПКР 57.31.4-1; ПКР 57.31.4-2. Сборочный чертеж
1.169.1-2с.2-10000 Панель парапетная ПП 30.17.4-Л-С; ПП 47.17.4-Л-С1; ПП 47.17.4-Л-С2
1.169.1-2с.2-10000 СБ Панель парапетная ПП 30.17.4-Л-С; ПП 47.17.4-Л-С1; ПП 47.17.4-Л-С2. Сборочный чертеж
1.169.1-2с.2-10010 Пространственный каркас ПКР 30.17.4; ПКР 30.17.4-1; ПКР 30.17.4-2
1.169.1-2с.2-10010 СБ Пространственный каркас ПКР 30.17.4; ПКР 30.17.4-1; ПКР 30.17.4-2. Сборочный чертеж
1.169.1-2с.2-11000 Панель парапетная ПП 30.17.3-Л-С1; ПП 30.17.3-Л-С2
1.169.1-2с.2-11000 СБ Панель парапетная ПП 30.17.3-Л-С1; ПП 30.17.3-Л-С2. Сборочный чертеж
1.169.1-2с.2-11010 Пространственный каркас ПКР 30.17.3-1; ПКР 30.17.3-2
1.169.1-2с.2-11010 СБ Пространственный каркас ПКР 30.17.3-1; ПКР 30.17.3-2. Сборочный чертеж
1.169.1-2с.2-12000 Панель парапетная ПП 41.17.3-Л-С1; ПП 41.17.3-Л-С2
1.169.1-2с.2-12000 СБ Панель парапетная ПП 41.17.3-Л-С1; ПП 41.17.3-Л-С2. Сборочный чертеж
1.169.1-2с.2-12010 Пространственный каркас ПКР 41.17.3-1; ПКР 41.17.3-2
1.169.1-2с.2-12010 СБ Пространственный каркас ПКР 41.17.3-1; ПКР 41.17.3-2. Сборочный чертеж
1.169.1-2с.2-13000 Блок распорный БР 20.13-Т-С1; БР 20.13-Т-С2
1.169.1-2с.2-13000 СБ Блок распорный БР 20.13-Т-С1; БР 20.13-Т-С2. Сборочный чертеж
1.169.1-2с.2-14000 Блок распорный БР 20.20-Т-С. Опорная подушка ОП 13.13-Т-С
1.169.1-2с.2-14000 СБ Блок распорный БР 20.20-Т-С. Опорная подушка ОП 13.13-Т-С. Сборочный чертеж
1.169.1-2с.2-14010 Пространственный каркас ПК20.20; ПК13.13
1.169.1-2с.2-14010 СБ Пространственный каркас ПК20.20; ПК13.13. Сборочный чертеж
1.169.1-2с.2-15000 Вентиляционная шахта ВШ 26.7.6-Л-С; ВШ 26.9.6-Л-С
1.169.1-2с.2-15000 СБ Вентиляционная шахта ВШ 26.7.6-Л-С; ВШ 26.9.6-Л-С. Сборочный чертеж
1.169.1-2с.2-16000 Опорная балка ОБ 36.4.2-Т-С; ОБ 30.4.2-Т-С
1.169.1-2с.2-16000 СБ Опорная балка ОБ 36.4.2-Т-С; ОБ 30.4.2-Т-С. Сборочный чертеж
1.169.1-2с.2-17000 Вентиляционный короб высотой 400 мм
1.169.1-2с.2-17000 СБ Вентиляционный короб высотой 400 мм. Сборочный чертеж
1.169.1-2с.2-18000 Вентиляционный короб ВК 12.10-Т-С1; ВК 12.10-Т-С2
1.169.1-2с.2-18000 СБ Вентиляционный короб ВК 12.10-Т-С1; ВК 12.10-Т-С2. Сборочный чертеж
1.169.1-2с.2-19000 Вентиляционный короб ВК 17.10-Т-С1; ВК 17.10-Т-С2
1.169.1-2с.2-19000 СБ Вентиляционный короб ВК 17.10-Т-С1; ВК 17.10-Т-С2. Сборочный чертеж
1.169.1-2с.2-20000 Вентиляционный короб ВК 24.11-Т-С; ВК 12.7-Т-С
1.169.1-2с.2-20000 Вентиляционный короб ВК 24.11-Т-С; ВК 12.7-Т-С. Сборочный чертеж
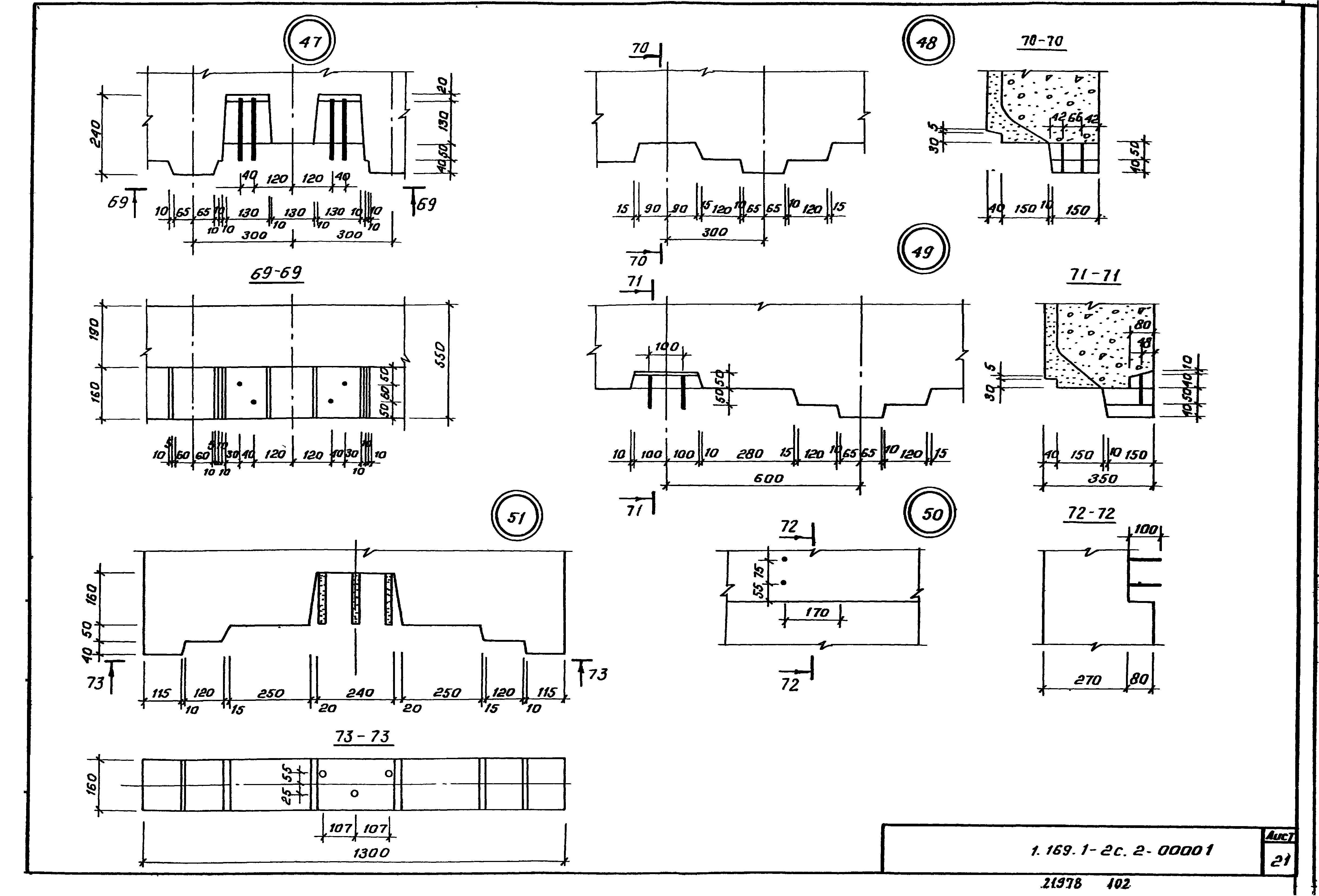
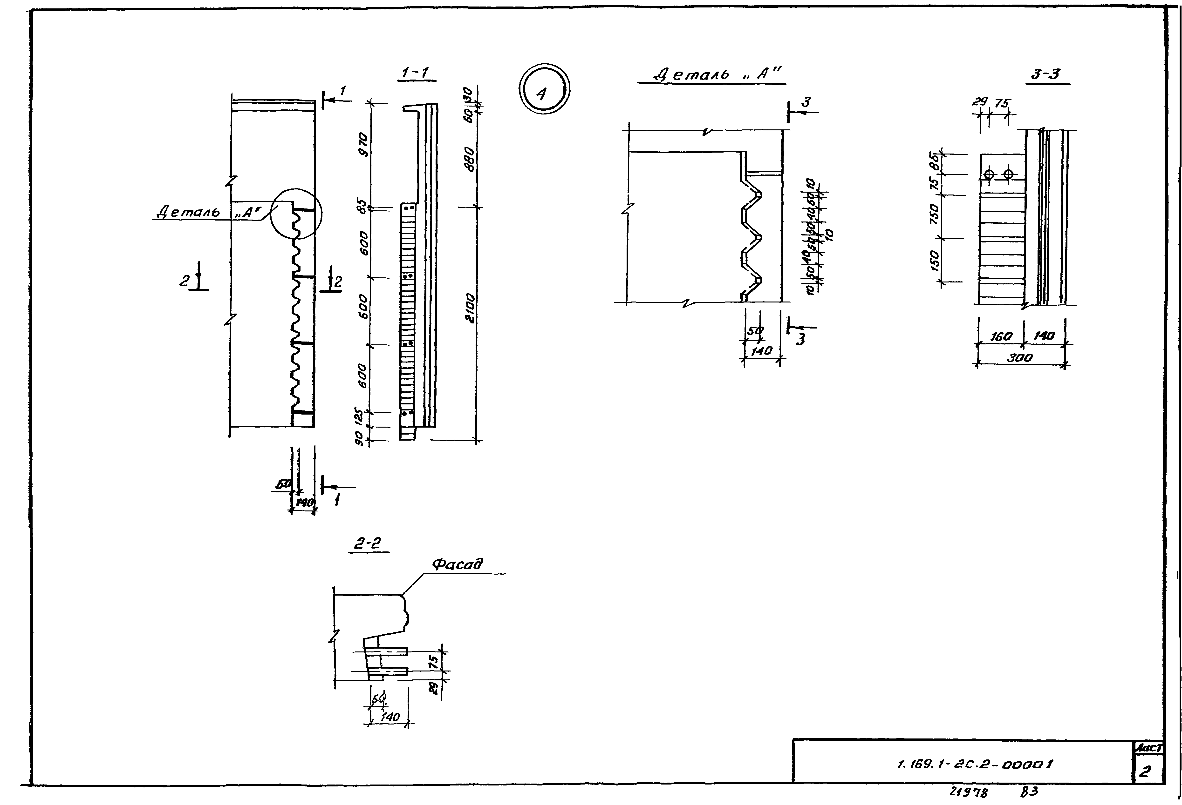
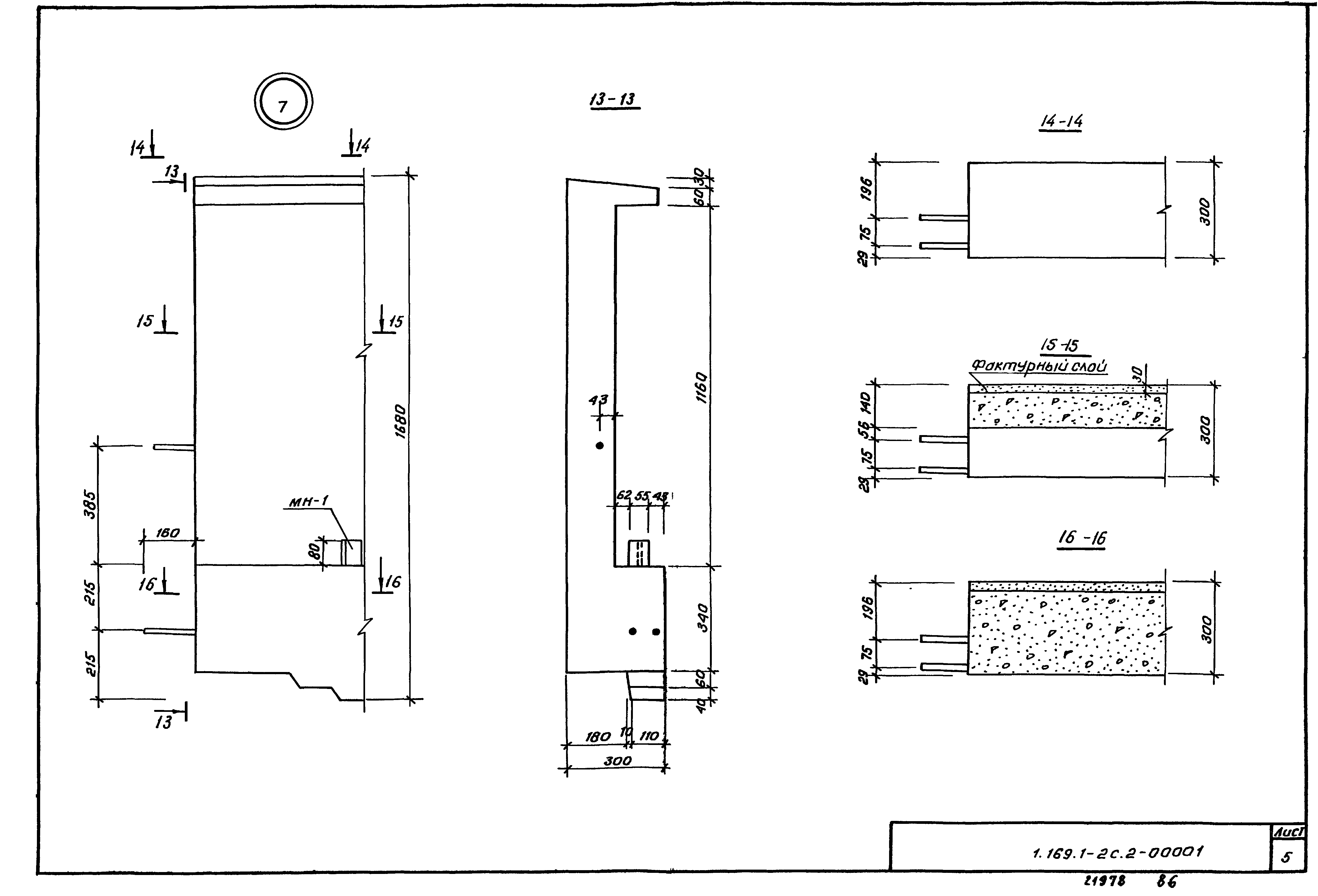
1.169.1-2с.2-00001 Узлы опалубочные и арматурные
1.169.1-2с.2-20000 РС Ведомость расхода стали на элемент
Разработан: ТашЗНИИЭП Госгражданстроя
Утверждён:03.02.1987 Госгражданстрой (Gosgrazhdanstroy 22)
Расположен в:Техническая документация Строительство Справочные документы Типовые строительные конструкции, изделия и узлы Общероссийский строительный каталог Строительные конструкции, изделия и узлы зданий и сооружений для всех видов строительства Конструкции, изделия и узлы зданий Ограждающие конструкции Покрытия Разные элементы
Серия 1.169.1-2сСерия 1.169.1-2сСерия 1.169.1-2сСерия 1.169.1-2сСерия 1.169.1-2сСерия 1.169.1-2сСерия 1.169.1-2сСерия 1.169.1-2сСерия 1.169.1-2сСерия 1.169.1-2сСерия 1.169.1-2сСерия 1.169.1-2сСерия 1.169.1-2сСерия 1.169.1-2сСерия 1.169.1-2сСерия 1.169.1-2сСерия 1.169.1-2сСерия 1.169.1-2сСерия 1.169.1-2сСерия 1.169.1-2сСерия 1.169.1-2сСерия 1.169.1-2сСерия 1.169.1-2сСерия 1.169.1-2сСерия 1.169.1-2сСерия 1.169.1-2сСерия 1.169.1-2сСерия 1.169.1-2сСерия 1.169.1-2сСерия 1.169.1-2сСерия 1.169.1-2сСерия 1.169.1-2сСерия 1.169.1-2сСерия 1.169.1-2сСерия 1.169.1-2сСерия 1.169.1-2сСерия 1.169.1-2сСерия 1.169.1-2сСерия 1.169.1-2сСерия 1.169.1-2сСерия 1.169.1-2сСерия 1.169.1-2сСерия 1.169.1-2сСерия 1.169.1-2сСерия 1.169.1-2сСерия 1.169.1-2сСерия 1.169.1-2сСерия 1.169.1-2сСерия 1.169.1-2сСерия 1.169.1-2сСерия 1.169.1-2сСерия 1.169.1-2сСерия 1.169.1-2сСерия 1.169.1-2сСерия 1.169.1-2сСерия 1.169.1-2сСерия 1.169.1-2сСерия 1.169.1-2сСерия 1.169.1-2сСерия 1.169.1-2сСерия 1.169.1-2сСерия 1.169.1-2сСерия 1.169.1-2сСерия 1.169.1-2сСерия 1.169.1-2сСерия 1.169.1-2сСерия 1.169.1-2сСерия 1.169.1-2сСерия 1.169.1-2сСерия 1.169.1-2сСерия 1.169.1-2сСерия 1.169.1-2сСерия 1.169.1-2сСерия 1.169.1-2сСерия 1.169.1-2сСерия 1.169.1-2сСерия 1.169.1-2сСерия 1.169.1-2сСерия 1.169.1-2сСерия 1.169.1-2сСерия 1.169.1-2сСерия 1.169.1-2сСерия 1.169.1-2сСерия 1.169.1-2сСерия 1.169.1-2сСерия 1.169.1-2сСерия 1.169.1-2сСерия 1.169.1-2сСерия 1.169.1-2сСерия 1.169.1-2сСерия 1.169.1-2сСерия 1.169.1-2сСерия 1.169.1-2сСерия 1.169.1-2сСерия 1.169.1-2сСерия 1.169.1-2сСерия 1.169.1-2сСерия 1.169.1-2сСерия 1.169.1-2сСерия 1.169.1-2сСерия 1.169.1-2сСерия 1.169.1-2сСерия 1.169.1-2сСерия 1.169.1-2сСерия 1.169.1-2сСерия 1.169.1-2сСерия 1.169.1-2с

© 2013 Ёшкин Кот :-) Карта сайта