Информационная система
«Ёшкин Кот»

Скачать базу одним архивом
Скачать обновления
История создания базы
Карта сайта

Скачать Серия 1.465.1-18 Выпуск 2. Плиты комплексные типа КПГ и КПВ длиной 12 м. Рабочие чертежи

Дата актуализации: 10.08.2017

Серия 1.465.1-18

Выпуск 2. Плиты комплексные типа КПГ и КПВ длиной 12 м. Рабочие чертежи

Обозначение: Серия 1.465.1-18
Обозначение англ: Series 1.465.1-18
Статус:действует
Название рус.:Выпуск 2. Плиты комплексные типа КПГ и КПВ длиной 12 м. Рабочие чертежи
Дата добавления в базу:01.09.2013
Дата актуализации:05.05.2017
Оглавление:1.465.1-18.2-ТУ Технические условия
1.465.1-18.2-1 Плита 1КПГ12-ХАХА-АХ-НР-АХ.Х-НР с плитной теплоизоляцией
1.465.1-18.2-2 Плита 1КПГ12-ХАХА-АХ-НР-АХ.Х-БНР с теплоизоляцией из плит пенополистирольных
1.465.1-18.2-3 Плита 1КПГ12-ХАХА-АХ-НР-АХ.Х-НР с монолитной теплоизоляцией
1.465.1-18.2-4 Плита 1КПГ12-ХАХА-АХ-НР-АХ.Х-НР с засыпной теплоизоляцией
1.465.1-18.2-5 Плита 1КПГ12-ХАХА-АХ-НР-АХ.Х-НР с засыпной теплоизоляцией и ограждающими бортиками
1.465.1-18.2-6 Плиты 1КПВ12-ХАХА-4АХ-НР-АХ.Х-НР, 1КПВ12-ХАХА-7АХ-НР-АХ.Х-НР, 1КПВ12-ХАХА-10АХ-НР-АХ.Х-НР с плитной теплоизоляцией
1.465.1-18.2-7 Плиты 1КПВ12-ХАХА-4АХ-НР-АХ.Х-БНР, 1КПВ12-ХАХА-7АХ-НР-АХ.Х-БНР, 1КПВ12-ХАХА-10АХ-НР-АХ.Х-БНР с теплоизоляцией из плит пенополистирольных
1.465.1-18.2-8 Плиты 1КПВ12-ХАХА-4АХ-НР-АХ.Х-НР, 1КПВ12-ХАХА-7АХ-НР-АХ.Х-НР, 1КПВ12-ХАХА-10АХ-НР-АХ.Х-НР с монолитной теплоизоляцией
1.465.1-18.2-9 Плиты 1КПВ12-ХАХА-4АХ-НР-АХ.Х-НР, 1КПВ12-ХАХА-7АХ-НР-АХ.Х-НР, 1КПВ12-ХАХА-10АХ-НР-АХ.Х-НР с засыпной теплоизоляцией
1.465.1-18.2-10 Плиты 1КПВ12-ХАХА-4АХ-НР-АХ.Х-НР, 1КПВ12-ХАХА-7АХ-НР-АХ.Х-НР, 1КПВ12-ХАХА-10АХ-НР-АХ.Х-НР с засыпной теплоизоляцией и ограждающими бортиками
1.465.1-18.2-11 Плита 1КПВ12-ХАХА-14АХ-НР-АХ.Х-НР с плитной теплоизоляцией
1.465.1-18.2-12 Плита 1КПВ12-ХАХА-14АХ-НР-АХ.Х-БНР с теплоизоляцией из плит пенополистирольных
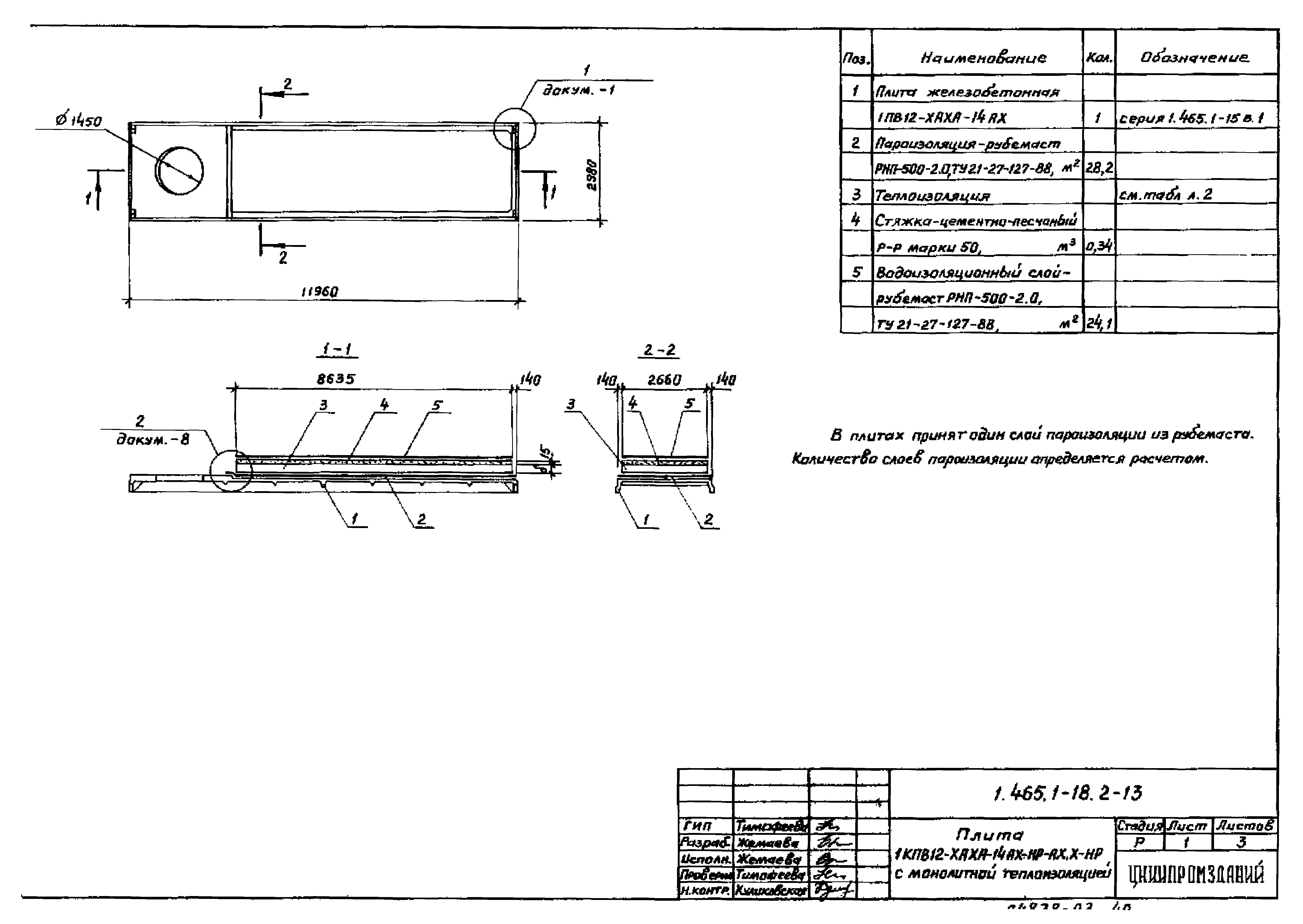
1.465.1-18.2-13 Плита 1КПВ12-ХАХА-14АХ-НР-АХ.Х-НР с монолитной теплоизоляцией
1.465.1-18.2-14 Плита 1КПВ12-ХАХА-14АХ-НР-АХ.Х-НР с засыпной теплоизоляцией
1.465.1-18.2-15 Плита 1КПВ12-ХАХА-14АХ-НР-АХ.Х-НР с засыпной теплоизоляцией и ограждающими бортиками
1.465.1-18.2-16 Плита 2КПГ12-ХАХА-АХ-НР-АХ.Х-НР с плитной теплоизоляцией
1.465.1-18.2-17 Плита 2КПГ12-ХАХА-АХ-НР-АХ.Х-БНР с теплоизоляцией из плит пенополистирольных
1.465.1-18.2-18 Плита 2КПГ12-ХАХА-АХ-НР-АХ.Х-НР с монолитной теплоизоляцией
1.465.1-18.2-19 Плита 2КПГ12-ХАХА-АХ-НР-АХ.Х-НР с засыпной теплоизоляцией
1.465.1-18.2-20 Плита 2КПГ12-ХАХА-АХ-НР-АХ.Х-НР с засыпной теплоизоляцией и ограждающими бортиками
1.465.1-18.2-21 Плиты 2КПВ12-ХАХА-4АХ-НР-АХ.Х-НР, 2КПВ12-ХАХА-7АХ-НР-АХ.Х-НР с плитной теплоизоляцией
1.465.1-18.2-22 Плиты 2КПВ12-ХАХА-4АХ-НР-АХ.Х-БНР, 2КПВ12-ХАХА-7АХ-НР-АХ.Х-БНР с теплоизоляцией из плит пенополистирольных
1.465.1-18.2-23 Плиты 2КПВ12-ХАХА-4АХ-НР-АХ.Х-НР, 2КПВ12-ХАХА-7АХ-НР-АХ.Х-НР с монолитной теплоизоляцией
1.465.1-18.2-24 Плиты 2КПВ12-ХАХА-4АХ-НР-АХ.Х-НР, 2КПВ12-ХАХА-7АХ-НР-АХ.Х-НР с засыпной теплоизоляцией
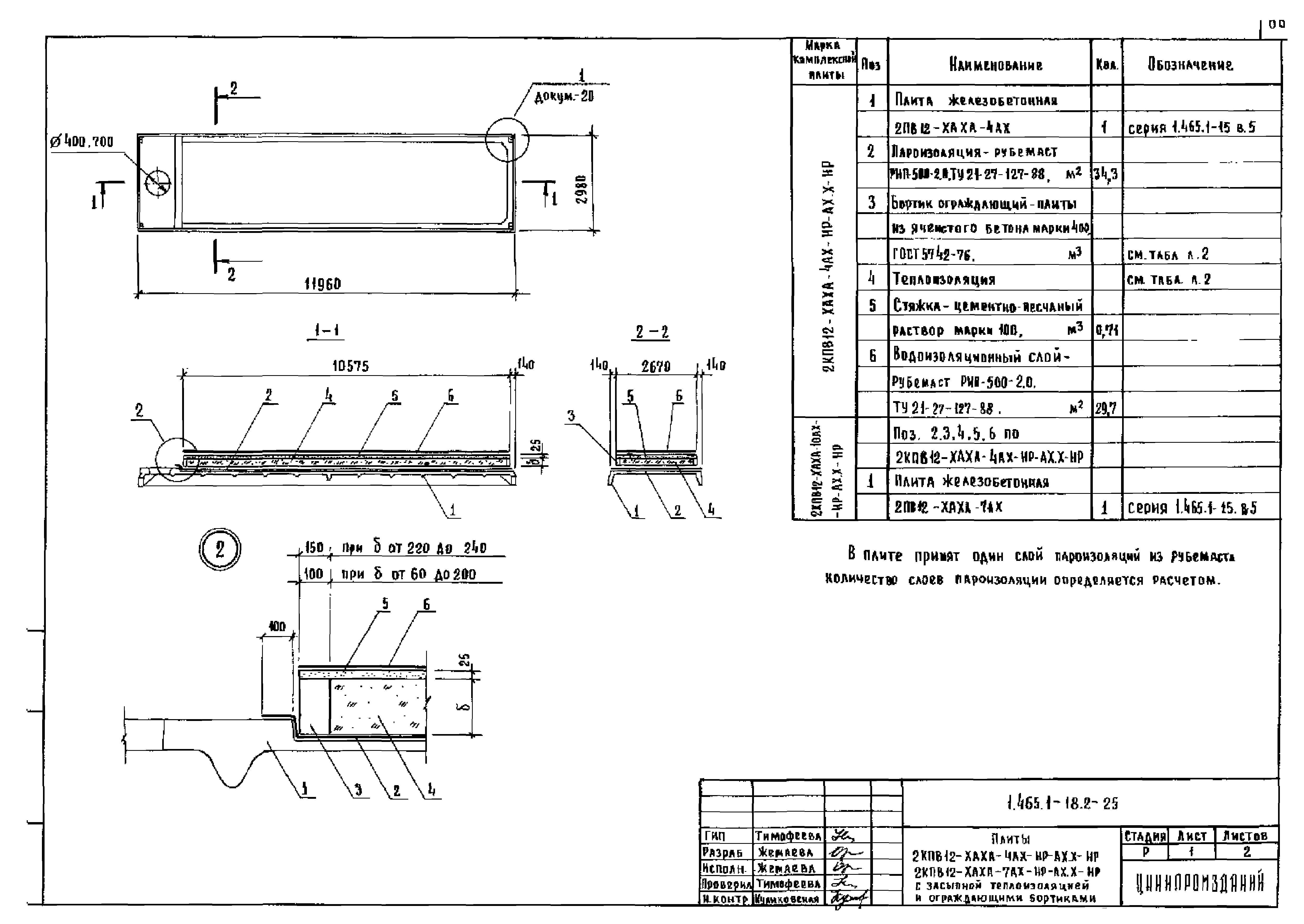
1.465.1-18.2-25 Плиты 2КПВ12-ХАХА-4АХ-НР-АХ.Х-НР, 2КПВ12-ХАХА-7АХ-НР-АХ.Х-НР с засыпной теплоизоляцией и ограждающими бортиками
1.465.1-18.2-26 Плиты 2КПВ12-ХАХА-10АХ-НР-АХ.Х-НР, 2КПВ12-ХАХА-14АХ-НР-АХ.Х-НР с плитной теплоизоляцией
1.465.1-18.2-27 Плиты 2КПВ12-ХАХА-10АХ-НР-АХ.Х-БНР, 2КПВ12-ХАХА-14АХ-НР-АХ.Х-БНР с теплоизоляцией из плит пенополистирольных
1.465.1-18.2-28 Плиты 2КПВ12-ХАХА-10АХ-НР-АХ.Х-НР, 2КПВ12-ХАХА-14АХ-НР-АХ.Х-НР с монолитной теплоизоляцией
1.465.1-18.2-29 Плиты 2КПВ12-ХАХА-10АХ-НР-АХ.Х-НР, 2КПВ12-ХАХА-14АХ-НР-АХ.Х-НР с засыпной теплоизоляцией
1.465.1-18.2-30 Плиты 2КПВ12-ХАХА-10АХ-НР-АХ.Х-НР, 2КПВ12-ХАХА-14АХ-НР-АХ.Х-НР с засыпной теплоизоляцией и ограждающими бортиками
1.465.1-18.2-31 Плита 3КПГ12-ХАХА-АХ-НР-АХ.Х-НР с плитной теплоизоляцией
1.465.1-18.2-32 Плита 3КПГ12-ХАХА-АХ-НР-АХ.Х-БНР с теплоизоляцией из плит пенополистирольных
1.465.1-18.2-33 Плита 3КПГ12-ХАХА-АХ-НР-АХ.Х-НР с монолитной теплоизоляцией
1.465.1-18.2-34 Плита 3КПГ12-ХАХА-АХ-НР-АХ.Х-НР с засыпной теплоизоляцией
1.465.1-18.2-35 Плита 3КПГ12-ХАХА-АХ-НР-АХ.Х-НР с засыпной теплоизоляцией и ограждающими бортиками
1.465.1-18.2-36 Плиты 3КПВ12-ХАХА-4АХ-НР-АХ.Х-НР, 3КПВ12-ХАХА-7АХ-НР-АХ.Х-НР, 3КПВ12-ХАХА-10АХ-НР-АХ.Х-НР с плитной теплоизоляцией
1.465.1-18.2-37 Плиты 3КПВ12-ХАХА-4АХ-НР-АХ.Х-БНР, 3КПВ12-ХАХА-7АХ-НР-АХ.Х-БНР, 3КПВ12-ХАХА-10АХ-НР-АХ.Х-БНР с теплоизоляцией из плит пенополистирольных
1.465.1-18.2-38 Плиты 3КПВ12-ХАХА-4АХ-НР-АХ.Х-НР, 3КПВ12-ХАХА-7АХ-НР-АХ.Х-НР, 3КПВ12-ХАХА-10АХ-НР-АХ.Х-НР с монолитной теплоизоляцией
1.465.1-18.2-39 Плиты 3КПВ12-ХАХА-4АХ-НР-АХ.Х-НР, 3КПВ12-ХАХА-7АХ-НР-АХ.Х-НР, 3КПВ12-ХАХА-10АХ-НР-АХ.Х-НР с засыпной теплоизоляцией
1.465.1-18.2-40 Плиты 3КПВ12-ХАХА-4АХ-НР-АХ.Х-НР, 3КПВ12-ХАХА-7АХ-НР-АХ.Х-НР, 3КПВ12-ХАХА-10АХ-НР-АХ.Х-НР с засыпной теплоизоляцией и ограждающими бортиками
1.465.1-18.2-ТУ Технические условия
1.465.1-18.2-1 Плита 1КПГ12-ХАХА-АХ-НР-АХ.Х-НР с плитной теплоизоляцией
1.465.1-18.2-2 Плита 1КПГ12-ХАХА-АХ-НР-АХ.Х-БНР с теплоизоляцией из плит пенополистирольных
1.465.1-18.2-3 Плита 1КПГ12-ХАХА-АХ-НР-АХ.Х-НР с монолитной теплоизоляцией
1.465.1-18.2-4 Плита 1КПГ12-ХАХА-АХ-НР-АХ.Х-НР с засыпной теплоизоляцией
1.465.1-18.2-5 Плита 1КПГ12-ХАХА-АХ-НР-АХ.Х-НР с засыпной теплоизоляцией и ограждающими бортиками
1.465.1-18.2-6 Плиты 1КПВ12-ХАХА-4АХ-НР-АХ.Х-НР, 1КПВ12-ХАХА-7АХ-НР-АХ.Х-НР, 1КПВ12-ХАХА-10АХ-НР-АХ.Х-НР с плитной теплоизоляцией
1.465.1-18.2-7 Плиты 1КПВ12-ХАХА-4АХ-НР-АХ.Х-БНР, 1КПВ12-ХАХА-7АХ-НР-АХ.Х-БНР, 1КПВ12-ХАХА-10АХ-НР-АХ.Х-БНР с теплоизоляцией из плит пенополистирольных
1.465.1-18.2-8 Плиты 1КПВ12-ХАХА-4АХ-НР-АХ.Х-НР, 1КПВ12-ХАХА-7АХ-НР-АХ.Х-НР, 1КПВ12-ХАХА-10АХ-НР-АХ.Х-НР с монолитной теплоизоляцией
1.465.1-18.2-9 Плиты 1КПВ12-ХАХА-4АХ-НР-АХ.Х-НР, 1КПВ12-ХАХА-7АХ-НР-АХ.Х-НР, 1КПВ12-ХАХА-10АХ-НР-АХ.Х-НР с засыпной теплоизоляцией
1.465.1-18.2-10 Плиты 1КПВ12-ХАХА-4АХ-НР-АХ.Х-НР, 1КПВ12-ХАХА-7АХ-НР-АХ.Х-НР, 1КПВ12-ХАХА-10АХ-НР-АХ.Х-НР с засыпной теплоизоляцией и ограждающими бортиками
1.465.1-18.2-11 Плита 1КПВ12-ХАХА-14АХ-НР-АХ.Х-НР с плитной теплоизоляцией
1.465.1-18.2-12 Плита 1КПВ12-ХАХА-14АХ-НР-АХ.Х-БНР с теплоизоляцией из плит пенополистирольных
1.465.1-18.2-13 Плита 1КПВ12-ХАХА-14АХ-НР-АХ.Х-НР с монолитной теплоизоляцией
1.465.1-18.2-14 Плита 1КПВ12-ХАХА-14АХ-НР-АХ.Х-НР с засыпной теплоизоляцией
1.465.1-18.2-15 Плита 1КПВ12-ХАХА-14АХ-НР-АХ.Х-НР с засыпной теплоизоляцией и ограждающими бортиками
1.465.1-18.2-16 Плита 2КПГ12-ХАХА-АХ-НР-АХ.Х-НР с плитной теплоизоляцией
1.465.1-18.2-17 Плита 2КПГ12-ХАХА-АХ-НР-АХ.Х-БНР с теплоизоляцией из плит пенополистирольных
1.465.1-18.2-18 Плита 2КПГ12-ХАХА-АХ-НР-АХ.Х-НР с монолитной теплоизоляцией
1.465.1-18.2-19 Плита 2КПГ12-ХАХА-АХ-НР-АХ.Х-НР с засыпной теплоизоляцией
1.465.1-18.2-20 Плита 2КПГ12-ХАХА-АХ-НР-АХ.Х-НР с засыпной теплоизоляцией и ограждающими бортиками
1.465.1-18.2-21 Плиты 2КПВ12-ХАХА-4АХ-НР-АХ.Х-НР, 2КПВ12-ХАХА-7АХ-НР-АХ.Х-НР с плитной теплоизоляцией
1.465.1-18.2-22 Плиты 2КПВ12-ХАХА-4АХ-НР-АХ.Х-БНР, 2КПВ12-ХАХА-7АХ-НР-АХ.Х-БНР с теплоизоляцией из плит пенополистирольных
1.465.1-18.2-23 Плиты 2КПВ12-ХАХА-4АХ-НР-АХ.Х-НР, 2КПВ12-ХАХА-7АХ-НР-АХ.Х-НР с монолитной теплоизоляцией
1.465.1-18.2-24 Плиты 2КПВ12-ХАХА-4АХ-НР-АХ.Х-НР, 2КПВ12-ХАХА-7АХ-НР-АХ.Х-НР с засыпной теплоизоляцией
1.465.1-18.2-25 Плиты 2КПВ12-ХАХА-4АХ-НР-АХ.Х-НР, 2КПВ12-ХАХА-7АХ-НР-АХ.Х-НР с засыпной теплоизоляцией и ограждающими бортиками
1.465.1-18.2-26 Плиты 2КПВ12-ХАХА-10АХ-НР-АХ.Х-НР, 2КПВ12-ХАХА-14АХ-НР-АХ.Х-НР с плитной теплоизоляцией
1.465.1-18.2-27 Плиты 2КПВ12-ХАХА-10АХ-НР-АХ.Х-БНР, 2КПВ12-ХАХА-14АХ-НР-АХ.Х-БНР с теплоизоляцией из плит пенополистирольных
1.465.1-18.2-28 Плиты 2КПВ12-ХАХА-10АХ-НР-АХ.Х-НР, 2КПВ12-ХАХА-14АХ-НР-АХ.Х-НР с монолитной теплоизоляцией
1.465.1-18.2-29 Плиты 2КПВ12-ХАХА-10АХ-НР-АХ.Х-НР, 2КПВ12-ХАХА-14АХ-НР-АХ.Х-НР с засыпной теплоизоляцией
1.465.1-18.2-30 Плиты 2КПВ12-ХАХА-10АХ-НР-АХ.Х-НР, 2КПВ12-ХАХА-14АХ-НР-АХ.Х-НР с засыпной теплоизоляцией и ограждающими бортиками
1.465.1-18.2-31 Плита 3КПГ12-ХАХА-АХ-НР-АХ.Х-НР с плитной теплоизоляцией
1.465.1-18.2-32 Плита 3КПГ12-ХАХА-АХ-НР-АХ.Х-БНР с теплоизоляцией из плит пенополистирольных
1.465.1-18.2-33 Плита 3КПГ12-ХАХА-АХ-НР-АХ.Х-НР с монолитной теплоизоляцией
1.465.1-18.2-34 Плита 3КПГ12-ХАХА-АХ-НР-АХ.Х-НР с засыпной теплоизоляцией
1.465.1-18.2-35 Плита 3КПГ12-ХАХА-АХ-НР-АХ.Х-НР с засыпной теплоизоляцией и ограждающими бортиками
1.465.1-18.2-36 Плиты 3КПВ12-ХАХА-4АХ-НР-АХ.Х-НР, 3КПВ12-ХАХА-7АХ-НР-АХ.Х-НР, 3КПВ12-ХАХА-10АХ-НР-АХ.Х-НР с плитной теплоизоляцией
1.465.1-18.2-37 Плиты 3КПВ12-ХАХА-4АХ-НР-АХ.Х-БНР, 3КПВ12-ХАХА-7АХ-НР-АХ.Х-БНР, 3КПВ12-ХАХА-10АХ-НР-АХ.Х-БНР с теплоизоляцией из плит пенополистирольных
1.465.1-18.2-38 Плиты 3КПВ12-ХАХА-4АХ-НР-АХ.Х-НР, 3КПВ12-ХАХА-7АХ-НР-АХ.Х-НР, 3КПВ12-ХАХА-10АХ-НР-АХ.Х-НР с монолитной теплоизоляцией
1.465.1-18.2-39 Плиты 3КПВ12-ХАХА-4АХ-НР-АХ.Х-НР, 3КПВ12-ХАХА-7АХ-НР-АХ.Х-НР, 3КПВ12-ХАХА-10АХ-НР-АХ.Х-НР с засыпной теплоизоляцией
1.465.1-18.2-40 Плиты 3КПВ12-ХАХА-4АХ-НР-АХ.Х-НР, 3КПВ12-ХАХА-7АХ-НР-АХ.Х-НР, 3КПВ12-ХАХА-10АХ-НР-АХ.Х-НР с засыпной теплоизоляцией и ограждающими бортиками
Разработан: АО ЦНИИпромзданий
НИИЖБ
НИИСФ
Утверждён:11.06.1990 Главпроект Госстроя России
Расположен в:Техническая документация Строительство Справочные документы Типовые строительные конструкции, изделия и узлы Общероссийский строительный каталог Строительные конструкции, изделия и узлы зданий и сооружений для всех видов строительства Конструкции, изделия и узлы зданий Ограждающие конструкции Покрытия Сборные железобетонные плиты и панели
Серия 1.465.1-18Серия 1.465.1-18Серия 1.465.1-18Серия 1.465.1-18Серия 1.465.1-18Серия 1.465.1-18Серия 1.465.1-18Серия 1.465.1-18Серия 1.465.1-18Серия 1.465.1-18Серия 1.465.1-18Серия 1.465.1-18Серия 1.465.1-18Серия 1.465.1-18Серия 1.465.1-18Серия 1.465.1-18Серия 1.465.1-18Серия 1.465.1-18Серия 1.465.1-18Серия 1.465.1-18Серия 1.465.1-18Серия 1.465.1-18Серия 1.465.1-18Серия 1.465.1-18Серия 1.465.1-18Серия 1.465.1-18Серия 1.465.1-18Серия 1.465.1-18Серия 1.465.1-18Серия 1.465.1-18Серия 1.465.1-18Серия 1.465.1-18Серия 1.465.1-18Серия 1.465.1-18Серия 1.465.1-18Серия 1.465.1-18Серия 1.465.1-18Серия 1.465.1-18Серия 1.465.1-18Серия 1.465.1-18Серия 1.465.1-18Серия 1.465.1-18Серия 1.465.1-18Серия 1.465.1-18Серия 1.465.1-18Серия 1.465.1-18Серия 1.465.1-18Серия 1.465.1-18Серия 1.465.1-18Серия 1.465.1-18Серия 1.465.1-18Серия 1.465.1-18Серия 1.465.1-18Серия 1.465.1-18Серия 1.465.1-18Серия 1.465.1-18Серия 1.465.1-18Серия 1.465.1-18Серия 1.465.1-18Серия 1.465.1-18Серия 1.465.1-18Серия 1.465.1-18Серия 1.465.1-18Серия 1.465.1-18Серия 1.465.1-18Серия 1.465.1-18Серия 1.465.1-18Серия 1.465.1-18Серия 1.465.1-18Серия 1.465.1-18Серия 1.465.1-18Серия 1.465.1-18Серия 1.465.1-18Серия 1.465.1-18Серия 1.465.1-18Серия 1.465.1-18Серия 1.465.1-18Серия 1.465.1-18Серия 1.465.1-18Серия 1.465.1-18Серия 1.465.1-18Серия 1.465.1-18Серия 1.465.1-18Серия 1.465.1-18Серия 1.465.1-18Серия 1.465.1-18Серия 1.465.1-18Серия 1.465.1-18Серия 1.465.1-18Серия 1.465.1-18Серия 1.465.1-18Серия 1.465.1-18Серия 1.465.1-18Серия 1.465.1-18Серия 1.465.1-18Серия 1.465.1-18Серия 1.465.1-18Серия 1.465.1-18Серия 1.465.1-18Серия 1.465.1-18

© 2013 Ёшкин Кот :-) Карта сайта