Информационная система
«Ёшкин Кот»

Скачать базу одним архивом
Скачать обновления
История создания базы
Карта сайта

Скачать Серия 1.165.1-18 Плиты покрытий двухслойные с термовкладышами для крупнопанельных жилых зданий с теплым чердаком и безрулонной кровлей с мастичной гидроизоляцией. Рабочие чертежи

Дата актуализации: 10.08.2017

Серия 1.165.1-18

Плиты покрытий двухслойные с термовкладышами для крупнопанельных жилых зданий с теплым чердаком и безрулонной кровлей с мастичной гидроизоляцией. Рабочие чертежи

Обозначение: Серия 1.165.1-18
Обозначение англ: Series 1.165.1-18
Статус:действует
Название рус.:Плиты покрытий двухслойные с термовкладышами для крупнопанельных жилых зданий с теплым чердаком и безрулонной кровлей с мастичной гидроизоляцией. Рабочие чертежи
Дата добавления в базу:01.09.2013
Дата актуализации:05.05.2017
Оглавление:1.165.1-18 ТУ Технические условия
1.165.1-18 000000 ТО Техническое описание
1.165.1-18 100000 Плита покрытия ПБТ
1.165.1-18 100000 СБ Плита покрытия ПБТ. Сборочный чертеж
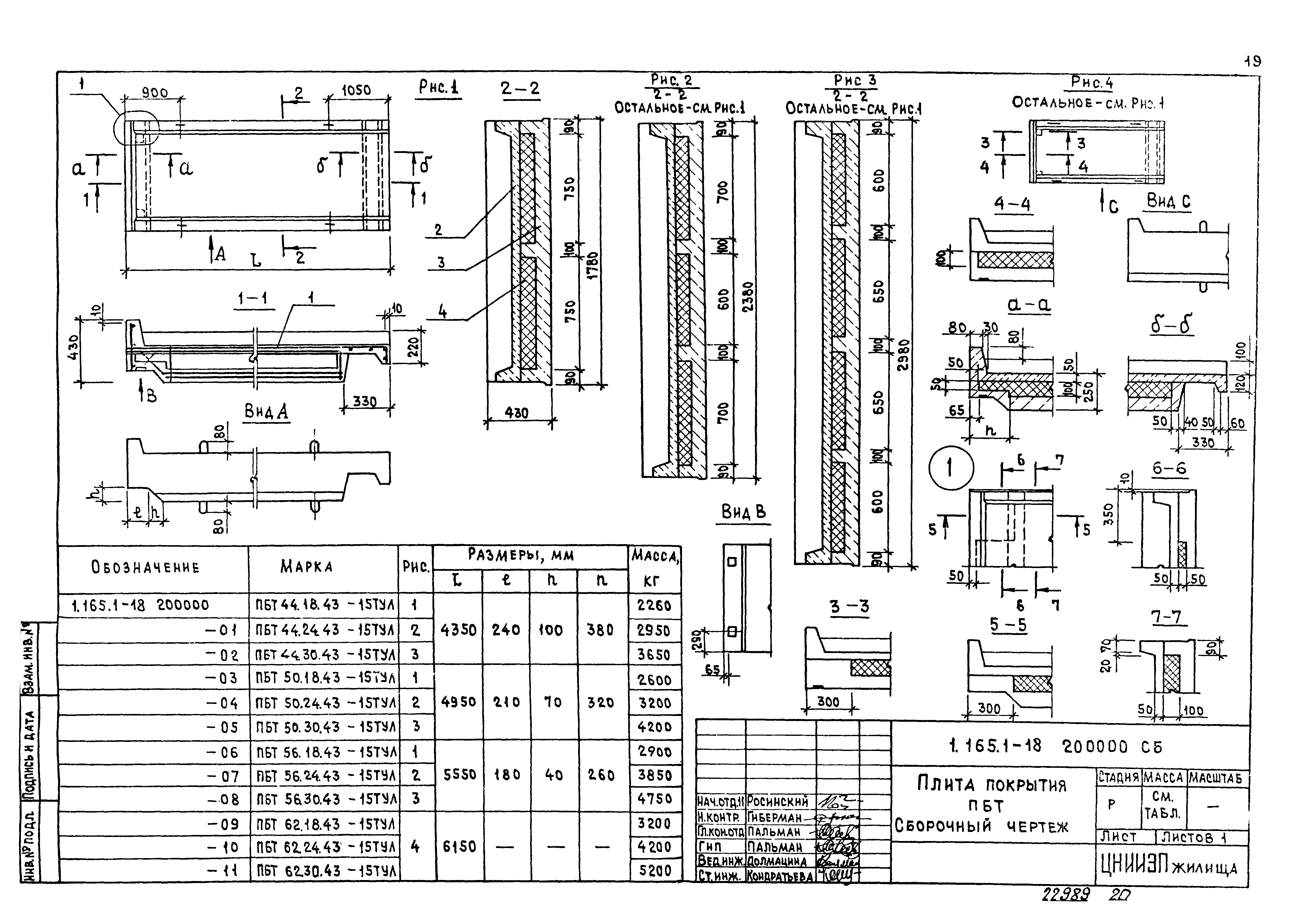
1.165.1-18 200000 Плита покрытия ПБТ
1.165.1-18 200000 СБ Плита покрытия ПБТ. Сборочный чертеж
1.165.1-18 010000 Каркас пространственный КП1…КП8
1.165.1-18 010000 СБ Каркас пространственный КП1…КП9. Сборочный чертеж
1.165.1-18 020000 Каркас пространственный КП9…КП16
1.165.1-18 020000 СБ Каркас пространственный КП9…КП17. Сборочный чертеж
1.165.1-18 030000 Каркас пространственный КП17…КП24
1.165.1-18 030000 СБ Каркас пространственный КП17…КП24. Сборочный чертеж
1.165.1-18 000100 Каркас КР1…КР4
1.165.1-18 000200 Каркас КР5…КР8
1.165.1-18 000300 Каркас КР9…КР20
1.165.1-18 000400 Каркас КР21…КР23
1.165.1-18 000500 Сетка С1…С12
1.165.1-18 000600 Сетка С13…С15
1.165.1-18 000700 Сетка С16…С27
1.165.1-18 000800 Сетка С28…С30
1.165.1-18 000900 Сетка С31…С33
1.165.1-18 000001 Стержень гнутый АН1…АН3
1.165.1-18 001000 Сетка С34…С36
1.165.1-18 000002 Петля строповочная П1…П8
1.165.1-18 001100 Изделие закладное МС3-1, МС3-2
1.165.1-18 000000 РС Ведомость расхода стали
1.165.1-18 000000 РМ Ведомость расхода материалов
1.165.1-18 ТУ Технические условия
1.165.1-18 000000 ТО Техническое описание
1.165.1-18 100000 Плита покрытия ПБТ
1.165.1-18 100000 СБ Плита покрытия ПБТ. Сборочный чертеж
1.165.1-18 200000 Плита покрытия ПБТ
1.165.1-18 200000 СБ Плита покрытия ПБТ. Сборочный чертеж
1.165.1-18 010000 Каркас пространственный КП1…КП8
1.165.1-18 010000 СБ Каркас пространственный КП1…КП9. Сборочный чертеж
1.165.1-18 020000 Каркас пространственный КП9…КП16
1.165.1-18 020000 СБ Каркас пространственный КП9…КП17. Сборочный чертеж
1.165.1-18 030000 Каркас пространственный КП17…КП24
1.165.1-18 030000 СБ Каркас пространственный КП17…КП24. Сборочный чертеж
1.165.1-18 000100 Каркас КР1…КР4
1.165.1-18 000200 Каркас КР5…КР8
1.165.1-18 000300 Каркас КР9…КР20
1.165.1-18 000400 Каркас КР21…КР23
1.165.1-18 000500 Сетка С1…С12
1.165.1-18 000600 Сетка С13…С15
1.165.1-18 000700 Сетка С16…С27
1.165.1-18 000800 Сетка С28…С30
1.165.1-18 000900 Сетка С31…С33
1.165.1-18 000001 Стержень гнутый АН1…АН3
1.165.1-18 001000 Сетка С34…С36
1.165.1-18 000002 Петля строповочная П1…П8
1.165.1-18 001100 Изделие закладное МС3-1, МС3-2
1.165.1-18 000000 РС Ведомость расхода стали
1.165.1-18 000000 РМ Ведомость расхода материалов
Разработан: ЦНИИЭП жилища
Утверждён:09.02.1988 Госкомархитектура (35)
Издан: ЦИТП Госстроя СССР (CITP, Gosstroy (USSR) 1988 г. )
Расположен в:Техническая документация Строительство Справочные документы Типовые строительные конструкции, изделия и узлы Общероссийский строительный каталог Строительные конструкции, изделия и узлы зданий и сооружений для всех видов строительства Конструкции, изделия и узлы зданий Ограждающие конструкции Покрытия Сборные железобетонные плиты и панели
Серия 1.165.1-18Серия 1.165.1-18Серия 1.165.1-18Серия 1.165.1-18Серия 1.165.1-18Серия 1.165.1-18Серия 1.165.1-18Серия 1.165.1-18Серия 1.165.1-18Серия 1.165.1-18Серия 1.165.1-18Серия 1.165.1-18Серия 1.165.1-18Серия 1.165.1-18Серия 1.165.1-18Серия 1.165.1-18Серия 1.165.1-18Серия 1.165.1-18Серия 1.165.1-18Серия 1.165.1-18Серия 1.165.1-18Серия 1.165.1-18Серия 1.165.1-18Серия 1.165.1-18Серия 1.165.1-18Серия 1.165.1-18Серия 1.165.1-18Серия 1.165.1-18Серия 1.165.1-18Серия 1.165.1-18Серия 1.165.1-18Серия 1.165.1-18Серия 1.165.1-18Серия 1.165.1-18Серия 1.165.1-18Серия 1.165.1-18Серия 1.165.1-18Серия 1.165.1-18Серия 1.165.1-18Серия 1.165.1-18Серия 1.165.1-18Серия 1.165.1-18Серия 1.165.1-18Серия 1.165.1-18

© 2013 Ёшкин Кот :-) Карта сайта