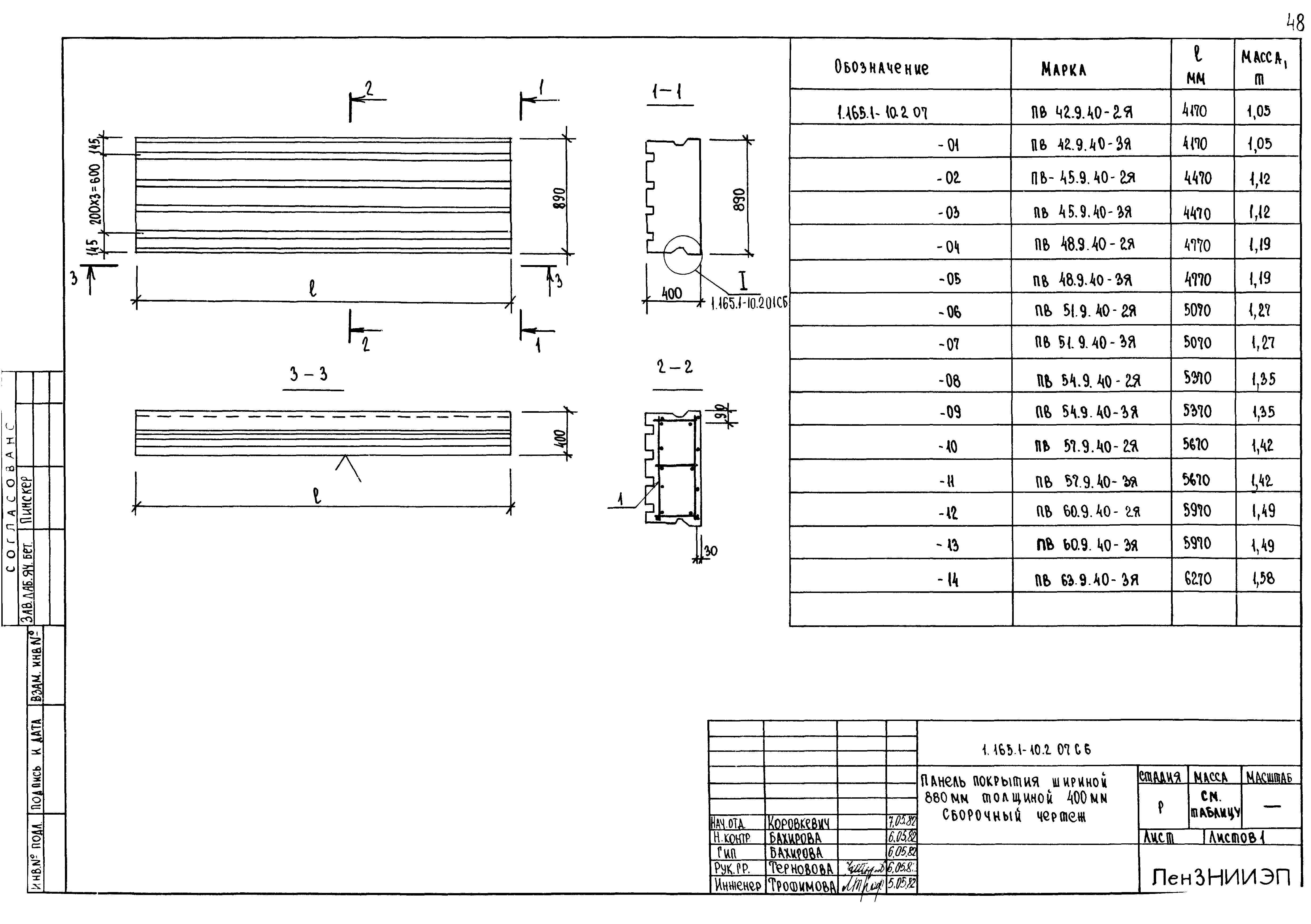
Скачать Серия 1.165.1-10 Выпуск 2. Панели вентилируемые толщиной 350, 400 мм под расчетную нагрузку 200 и 300 кгс/кв.м (без учета собственного веса). Опалубка и армирование. Рабочие чертежиДата актуализации: 10.08.2017 Серия 1.165.1-10
Выпуск 2. Панели вентилируемые толщиной 350, 400 мм под расчетную нагрузку 200 и 300 кгс/кв.м (без учета собственного веса). Опалубка и армирование. Рабочие чертежиОбозначение: | Серия 1.165.1-10 | Обозначение англ: | Series 1.165.1-10 | Статус: | действует | Название рус.: | Выпуск 2. Панели вентилируемые толщиной 350, 400 мм под расчетную нагрузку 200 и 300 кгс/кв.м (без учета собственного веса). Опалубка и армирование. Рабочие чертежи | Дата добавления в базу: | 01.09.2013 | Дата актуализации: | 05.05.2017 | Дата введения: | 01.01.1983 | Разработан: | ЛенЗНИИЭП Госгражданстроя
| Утверждён: | 13.10.1982 Госгражданстрой (Gosgrazhdanstroy 272)
| Издан: | ЦИТП Госстроя СССР (CITP, Gosstroy (USSR) 1982 г. )
| Расположен в: |
|
                                                             
|