Информационная система
«Ёшкин Кот»

Скачать базу одним архивом
Скачать обновления
История создания базы
Карта сайта

Скачать Серия 2.432-3 Выпуск 1. Монтажные узлы. Рабочие чертежи

Дата актуализации: 10.08.2017

Серия 2.432-3

Выпуск 1. Монтажные узлы. Рабочие чертежи

Обозначение: Серия 2.432-3
Обозначение англ: Series 2.432-3
Статус:действует
Название рус.:Выпуск 1. Монтажные узлы. Рабочие чертежи
Дата добавления в базу:01.09.2013
Дата актуализации:05.05.2017
Дата введения:01.04.1980
Оглавление:Содержание
Указания по применению
Крепления опорных консолей к колоннам
То же
Крепление опорных консолей к стойке фахверка
Крепление стеновых панелей глухого участка стены в уровне опорной консоли к колонне или стойке фахверка двутаврового сечения
То же к сквозной колонне с ветвью швеллерного сечения
То же к сквозной колонне с ветвью двутаврового сечения
То же к стойке фахверка коробчатого сечения
Крепление стеновых панелей глухого участка стены в уровне верха окна к колонне или стойке фахверка двутаврового сечения
То же к сквозной колонне с ветвью швеллерного сечения
То же к сквозной колонне с ветвью двутаврового сечения
То же к стойке фахверка коробчатого сечения
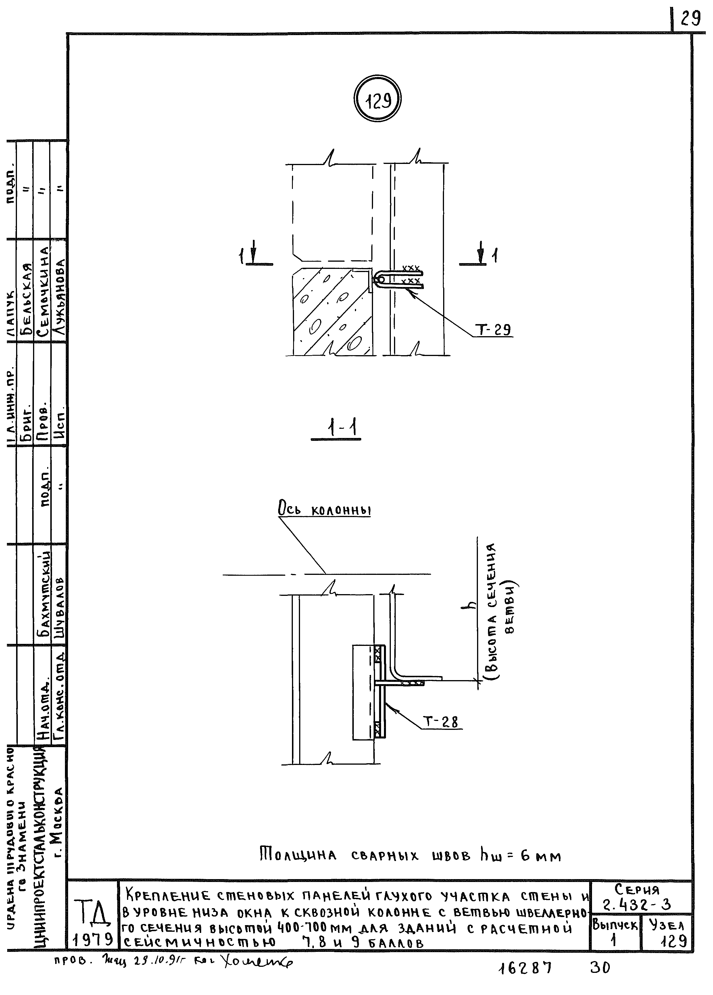
Крепление стеновых панелей глухого участка стены в уровне низа окна к колонне или стойке фахверка двутаврового сечения
То же к сквозной колонне с ветвью швеллерного сечения
То же к сквозной колонне с ветвью двутаврового сечения
То же к сквозной колонне с ветвью двутаврового сечения у температурного шва
Крепление парапетных панелей в уровне верха покрытия при стальном профилированном настиле и шаге стропильных ферм 6 м
То же и шаге стропильных ферм 12 м
Крепление стеновых панелей глухого участка стены в уровне опорной консоли к колонне двутаврового сечения для зданий с расчетной сейсмичностью 7, 8 и 9 баллов
То же к сквозной колонне с ветвью швеллерного сечения высотой 300 - 390 мм
То же к сквозной колонне с ветвью швеллерного сечения высотой 400 - 700 мм
То же к сквозной колонне с ветвью швеллерного сечения
То же к стойке фахверка коробчатого сечения
Крепление стеновых панелей глухого участка стены и в уровне низа окна к колонне или стойке фахверка двутаврового сечения для зданий с расчетной сейсмичностью 7, 8 и 9 баллов
То же к сквозной колонне с ветвью швеллерного сечения высотой 300 - 390 мм
То же к сквозной колонне с ветвью швеллерного сечения высотой 400 - 700 мм
То же к сквозной колонне с ветвью швеллерного сечения
То же к стойке фахверка коробчатого сечения
Разработан: ЦНИИпроектстальконструкция Госстроя
Утверждён:15.01.1980 Госстрой СССР (Государственный комитет Совета Министров СССР по делам строительства) (USSR Gosstroy 1)
Принят: ЦНИИ промзданий (TsNII promzdaniy )
Расположен в:Техническая документация Строительство Справочные документы Типовые строительные конструкции, изделия и узлы Общероссийский строительный каталог Строительные конструкции, изделия и узлы зданий и сооружений для всех видов строительства Конструкции, изделия и узлы зданий Ограждающие конструкции Узлы и детали стен и перегородок
Серия 2.432-3Серия 2.432-3Серия 2.432-3Серия 2.432-3Серия 2.432-3Серия 2.432-3Серия 2.432-3Серия 2.432-3Серия 2.432-3Серия 2.432-3Серия 2.432-3Серия 2.432-3Серия 2.432-3Серия 2.432-3Серия 2.432-3Серия 2.432-3Серия 2.432-3Серия 2.432-3Серия 2.432-3Серия 2.432-3Серия 2.432-3Серия 2.432-3Серия 2.432-3Серия 2.432-3Серия 2.432-3Серия 2.432-3Серия 2.432-3Серия 2.432-3Серия 2.432-3Серия 2.432-3Серия 2.432-3Серия 2.432-3

© 2013 Ёшкин Кот :-) Карта сайта