Информационная система
«Ёшкин Кот»

Скачать базу одним архивом
Скачать обновления
История создания базы
Карта сайта

Скачать Серия 2.030-1 Выпуск 1. Узлы стен неотапливаемых промышленных зданий из асбестоцементных волнистых листов. Рабочие чертежи

Дата актуализации: 10.08.2017

Серия 2.030-1

Выпуск 1. Узлы стен неотапливаемых промышленных зданий из асбестоцементных волнистых листов. Рабочие чертежи

Обозначение: Серия 2.030-1
Обозначение англ: Series 2.030-1
Статус:не определен законодательством
Название рус.:Выпуск 1. Узлы стен неотапливаемых промышленных зданий из асбестоцементных волнистых листов. Рабочие чертежи
Дата добавления в базу:01.09.2013
Дата актуализации:05.05.2017
Дата введения:01.03.1993
Оглавление:2.030-1.1-ТТ Технические требования
2.030-1.1-1 Номенклатура изделий из оцинкованной стали
2.030-1.1-2 Номенклатура изделий для крепления асбестоцементных волнистых листов
2.030-1.1-3 Маркировочная схема узлов продольных стен
2.030-1.1-4 Маркировочная схема узлов торцевых стен
2.030-1.1-5 Маркировочная схема узлов заделки оконных проемов
2.030-1.1-6 Маркировочная схема узлов заделки проема ворот
2.030-1.1-7 Спецификация доборных деталей и элементов крепления
2.030-1.1-8 Узел 1
2.030-1.1-9 Узел 2
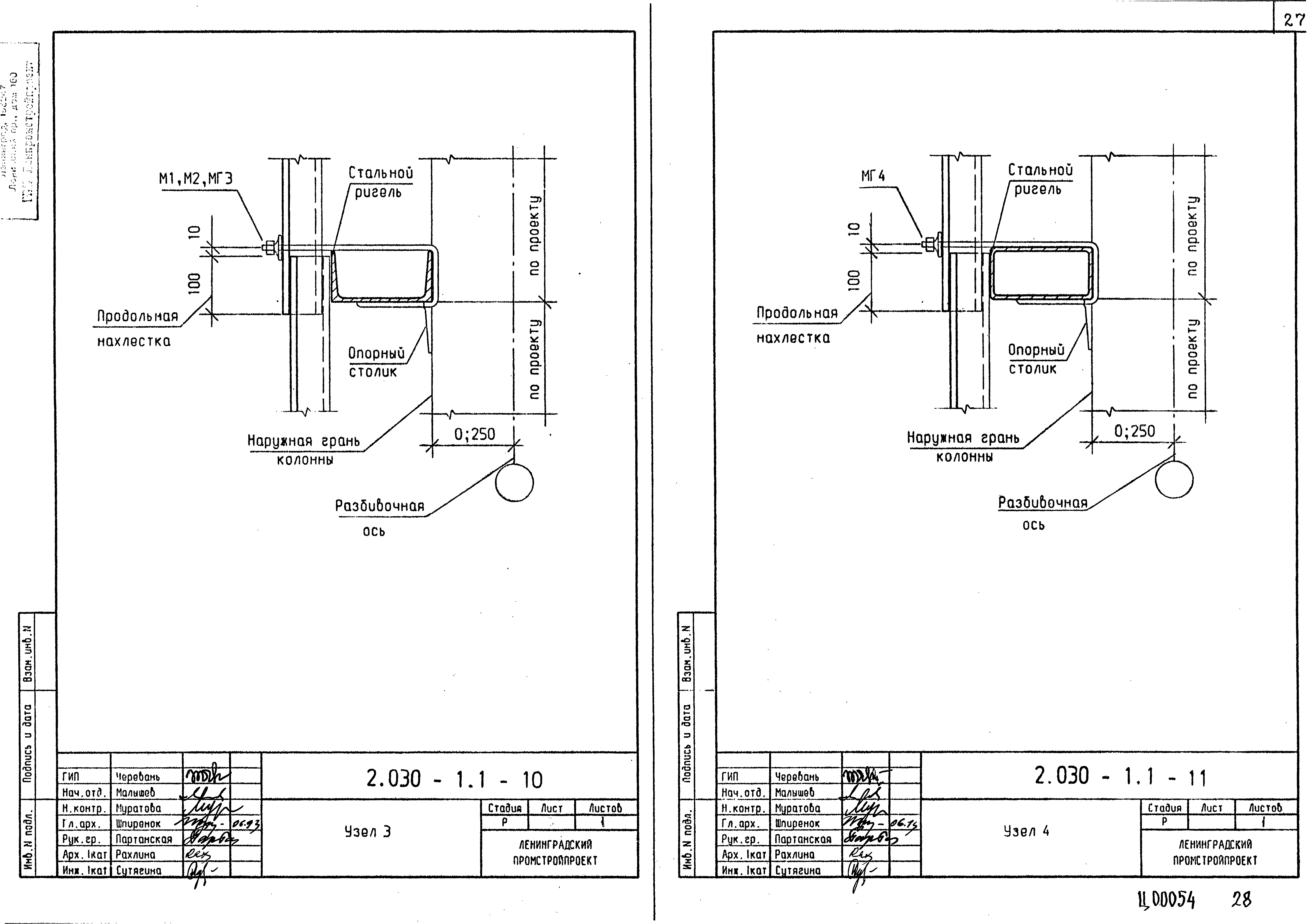
2.030-1.1-10 Узел 3
2.030-1.1-11 Узел 4
2.030-1.1-12 Узел 5
2.030-1.1-13 Узел 6
2.030-1.1-14 Узел 7
2.030-1.1-15 Узел 8
2.030-1.1-16 Узел 9
2.030-1.1-17 Узел 10
2.030-1.1-18 Узел 11
2.030-1.1-19 Узел 12
2.030-1.1-20 Узел 13
2.030-1.1-21 Узел 14
2.030-1.1-22 Узел 15
2.030-1.1-23 Узел 16
2.030-1.1-24 Узел 17
2.030-1.1-25 Узел 18
2.030-1.1-26 Узел 19
2.030-1.1-27 Узел 20
2.030-1.1-28 Узел 21
2.030-1.1-29 Узел 22
2.030-1.1-30 Узел 23
2.030-1.1-31 Узел 24
2.030-1.1-32 Узел 25
2.030-1.1-33 Узел 26
2.030-1.1-34 Узел 27
2.030-1.1-35 Узел 28
2.030-1.1-36 Узел 29
2.030-1.1-37 Узел 30
2.030-1.1-38 Узел 31
2.030-1.1-39 Узел 32
2.030-1.1-40 Узел 33
2.030-1.1-41 Узел 34
2.030-1.1-42 Узел 35
2.030-1.1-43 Узел 36
2.030-1.1-44 Узел 37
2.030-1.1-45 Узел 38
2.030-1.1-46 Узел 39
2.030-1.1-47 Узел 40
2.030-1.1-48 Узел 41
2.030-1.1-49 Узел 42
2.030-1.1-50 Узел 43
2.030-1.1-51 Узел 44
2.030-1.1-52 Узел 45
2.030-1.1-53 Узел 46
2.030-1.1-54 Узел 47
2.030-1.1-55 Узел 48
2.030-1.1-56 Узел 49
2.030-1.1-57 Узел 50
2.030-1.1-58 Узел 51
2.030-1.1-59 Узел 52
2.030-1.1-60 Узел 53
2.030-1.1-61 Узел 54
2.030-1.1-62 Узел 55
2.030-1.1-63 Узел 56
2.030-1.1-64 Узел 57
2.030-1.1-65 Узел 58
2.030-1.1-66 Узел 59
2.030-1.1-67 Узел 60
2.030-1.1-68 Узел 61
2.030-1.1-69 Узел 62
2.030-1.1-70 Узел 63
2.030-1.1-71 Узел 64
2.030-1.1-72 Узел 65
2.030-1.1-73 Узел 66
2.030-1.1-74 Узел 67
2.030-1.1-75 Узел 68
2.030-1.1-76 Узел 69
2.030-1.1-77 Узел 70
2.030-1.1-78 Узел 71
2.030-1.1-79 Узел 72
2.030-1.1-80 Узел 73
2.030-1.1-81 Узел 74
2.030-1.1-82 Узел 75
2.030-1.1-83 Узел 76
2.030-1.1-84 Узел 77
2.030-1.1-85 Узел 78
2.030-1.1-86 Узел 79
2.030-1.1-87 Узел 80
2.030-1.1-88 Узел 81
2.030-1.1-89 Узел 82
2.030-1.1-90 Узел 83
2.030-1.1-91 Узел 84
2.030-1.1-92 Узел 85
2.030-1.1-93 Узел 86
2.030-1.1-94 Узел 87
2.030-1.1-95 Узел 88
2.030-1.1-96 Узел 89
2.030-1.1-97 Узел 90
2.030-1.1-98 Узел 91
2.030-1.1-99 Узел 92
2.030-1.1-100 Узел 93
2.030-1.1-101 Узел 94
2.030-1.1-102 Узел 95
2.030-1.1-103 Узел 96
2.030-1.1-104 Гребенки ГС-1, ГС-2
2.030-1.1-105 Гребенки ГС-3, ГС-3а
2.030-1.1-106 Гребенки ГС-4
2.030-1.1-107 Угловые детали УС-1, УС-2, УС-3
2.030-1.1-108 Угловые детали УС-4
2.030-1.1-109 Угловые Детали обрамления окон УС-5, УС-6, УС-7, УС-8
2.030-1.1-110 Нащельник Н-1
2.030-1.1-111 Сливы подоконные С-1, С-2, С-3
2.030-1.1-112 Сливы подоконные С-4, С-5, С-6, С-7
2.030-1.1-113 Сливы подоконные С-8, С-9, С-10, С-11
2.030-1.1-114 Костыль цокольный КЦ1
2.030-1.1-115 Лотковые детали ЛС-1, ЛС-2
2.030-1.1-116 Костыль лотковый КЛ-1, КЛ-2
2.030-1.1-117.010 Крепежный элемент М1, МГ3
2.030-1.1-117.020 Крепежный элемент М2, МГ4
2.030-1.1-117.030 Крепежный элемент МВ1, МВ2
2.030-1.1-117.040 Крепежный элемент МТ5, МП6
2.030-1.1-117.050 Крепежный элемент МС1, МС2, МС3, МС4
2.030-1.1-117.060 Крепежный элемент МШ1, МШ2, МШ3
2.030-1.1-117.053 Скоба С4
2.030-1.1-117.011 Крюк К1, К2, КГ3, КГ4, КТ5, КП6
2.030-1.1-117.012 Шайба Ш1
2.030-1.1-117.013 Прокладка ПМ1
2.030-1.1-117.031 Шайба Ш2
2.030-1.1-117.032 Прокладка ПМ2
2.030-1.1-117.051 Скобы С2, С3
2.030-1.1-117.052 Скоба С5
2.030-1.1-117.054 Прокладка П1
Разработан: Ленинградский Промстройпроект
Утверждён:30.12.1992 Минстрой России (Russian Federation Minstroy 9-1/421)
Расположен в:Техническая документация Строительство Справочные документы Типовые строительные конструкции, изделия и узлы Общероссийский строительный каталог Строительные конструкции, изделия и узлы зданий и сооружений для всех видов строительства Конструкции, изделия и узлы зданий Ограждающие конструкции Узлы и детали стен и перегородок
Заменяет собой:
Серия 2.030-1Серия 2.030-1Серия 2.030-1Серия 2.030-1Серия 2.030-1Серия 2.030-1Серия 2.030-1Серия 2.030-1Серия 2.030-1Серия 2.030-1Серия 2.030-1Серия 2.030-1Серия 2.030-1Серия 2.030-1Серия 2.030-1Серия 2.030-1Серия 2.030-1Серия 2.030-1Серия 2.030-1Серия 2.030-1Серия 2.030-1Серия 2.030-1Серия 2.030-1Серия 2.030-1Серия 2.030-1Серия 2.030-1Серия 2.030-1Серия 2.030-1Серия 2.030-1Серия 2.030-1Серия 2.030-1Серия 2.030-1Серия 2.030-1Серия 2.030-1Серия 2.030-1Серия 2.030-1Серия 2.030-1Серия 2.030-1Серия 2.030-1Серия 2.030-1Серия 2.030-1Серия 2.030-1Серия 2.030-1Серия 2.030-1Серия 2.030-1Серия 2.030-1Серия 2.030-1Серия 2.030-1Серия 2.030-1Серия 2.030-1Серия 2.030-1Серия 2.030-1Серия 2.030-1Серия 2.030-1Серия 2.030-1Серия 2.030-1Серия 2.030-1Серия 2.030-1Серия 2.030-1Серия 2.030-1Серия 2.030-1Серия 2.030-1Серия 2.030-1Серия 2.030-1Серия 2.030-1Серия 2.030-1Серия 2.030-1Серия 2.030-1Серия 2.030-1Серия 2.030-1Серия 2.030-1Серия 2.030-1Серия 2.030-1Серия 2.030-1Серия 2.030-1Серия 2.030-1Серия 2.030-1Серия 2.030-1Серия 2.030-1Серия 2.030-1Серия 2.030-1Серия 2.030-1Серия 2.030-1Серия 2.030-1Серия 2.030-1Серия 2.030-1Серия 2.030-1Серия 2.030-1

© 2013 Ёшкин Кот :-) Карта сайта