Скачать Серия 2.230-2 Выпуск 3. Крупнопанельные перегородки каркасно-панельных зданий в конструкциях серии 1.020-1/83. Рабочие чертежиДата актуализации: 10.08.2017 Серия 2.230-2
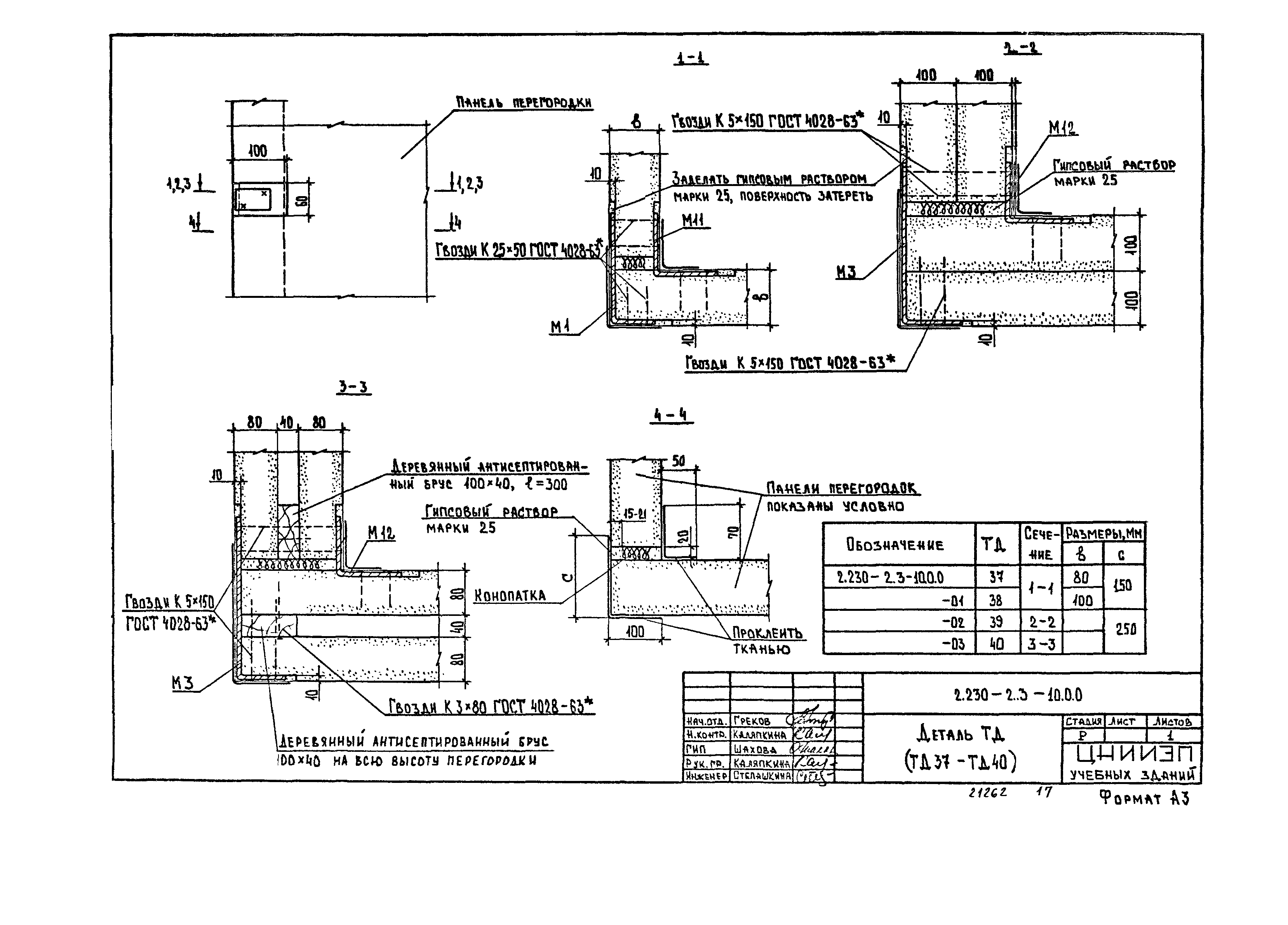
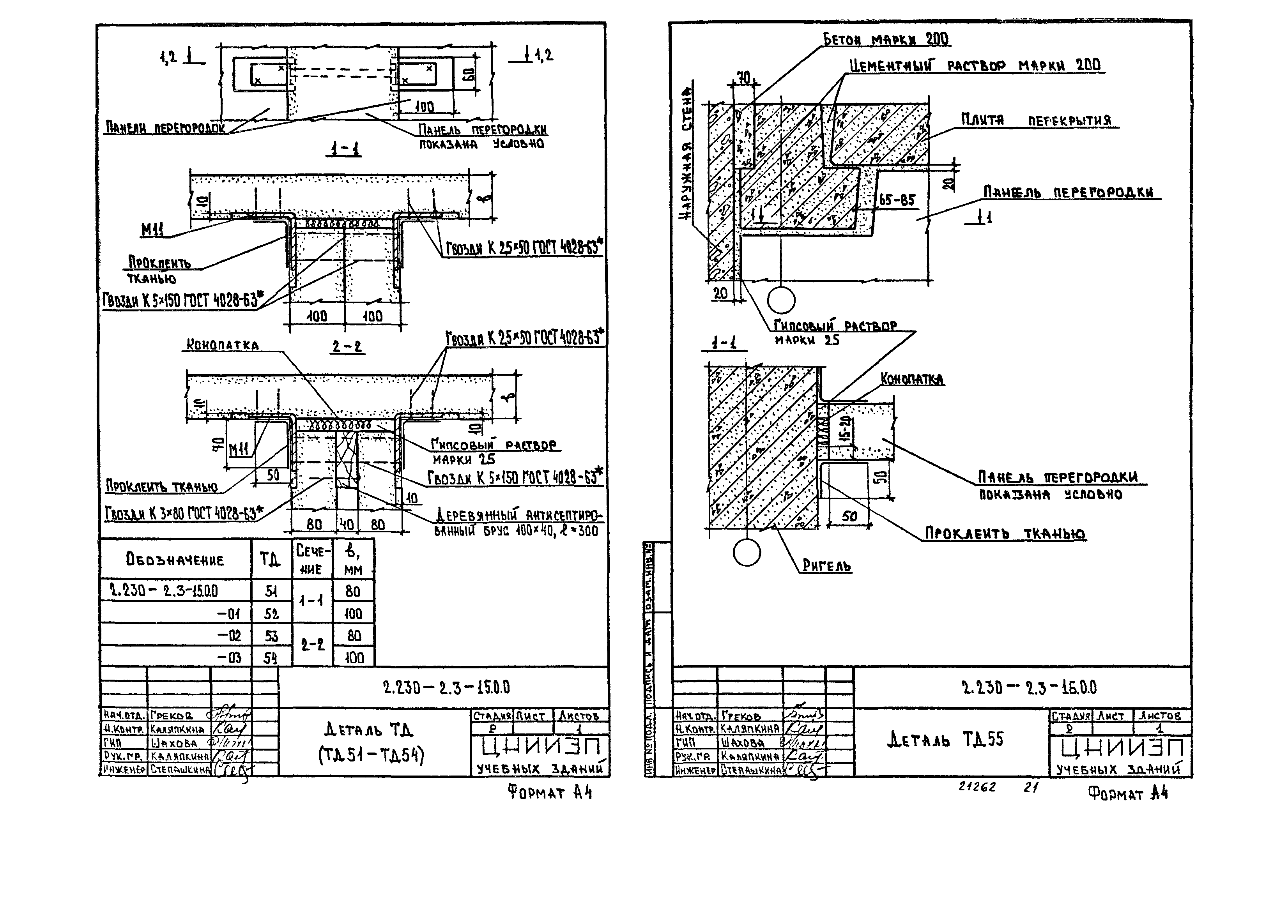
Выпуск 3. Крупнопанельные перегородки каркасно-панельных зданий в конструкциях серии 1.020-1/83. Рабочие чертежиОбозначение: | Серия 2.230-2 | Обозначение англ: | Series 2.230-2 | Статус: | действует | Название рус.: | Выпуск 3. Крупнопанельные перегородки каркасно-панельных зданий в конструкциях серии 1.020-1/83. Рабочие чертежи | Дата добавления в базу: | 01.09.2013 | Дата актуализации: | 05.05.2017 | Дата введения: | 01.05.1986 | Оглавление: | 2.230-2.3-00.0.0ТО Техническое описание 2.230-2.3-01.0.0 Деталь ТД (ТД1 - ТД4) 2.230-2.3-02.0.0 Деталь ТД (ТД5 - ТД8) 2.230-2.3-03.0.0 Деталь ТД (ТД9 - ТД12) 2.230-2.3-04.0.0 Деталь ТД (ТД13 - ТД16) 2.230-2.3-05.0.0 Деталь ТД (ТД17, ТД18) 2.230-2.3-06.0.0 Деталь ТД (ТД19, ТД20) 2.230-2.3-07.0.0 Деталь ТД (ТД21 - ТД24) 2.230-2.3-08.0.0 Деталь ТД (ТД25 - ТД32) 2.230-2.3-09.0.0 Деталь ТД (ТД33 - ТД36) 2.230-2.3-10.0.0 Деталь ТД (ТД37 - ТД40) 2.230-2.3-11.0.0 Деталь ТД (ТД41 - ТД44) 2.230-2.3-12.0.0 Деталь ТД (ТД45 - ТД48) 2.230-2.3-13.0.0 Деталь ТД49 2.230-2.3-14.0.0 Деталь ТД50 2.230-2.3-15.0.0 Деталь ТД (ТД51 - ТД54) 2.230-2.3-16.0.0 Деталь ТД55 2.230-2.3-17.0.0 Деталь ТД56 2.230-2.3-18.0.0 Деталь ТД (ТД57, ТД58) 2.230-2.3-19.0.0 Деталь ТД59 2.230-2.3-20.0.0 Деталь ТД60 2.230-2.3-21.0.0 Деталь ТД61 2.230-2.3-22.0.0 Деталь ТД62 2.230-2.3-23.0.0 Деталь ТД63 2.230-2.3-24.0.0 Деталь ТД64 2.230-2.3-25.0.0 Деталь ТД65 2.230-2.3-26.0.0 Деталь ТД66 2.230-2.3-27.0.0 Деталь ТД67 2.230-2.3-28.0.0 Деталь ТД68 2.230-2.3-29.0.0 Деталь ТД (ТД69, ТД74) 2.230-2.3-00.1.0 Изделие монтажное закладное М (М1 - М4) 2.230-2.3-00.2.0 Изделие монтажное закладное М (М5, М6) 2.230-2.3-00.2.0 СБ Изделие монтажное закладное М (М5, М6). Сборочный чертеж 2.230-2.3-00.3.0 Изделие монтажное закладное М (М7 - М10) 2.230-2.3-00.4.0 Изделие монтажное закладное М (М11, М12) 2.230-2.3-00.5.0 Изделие монтажное закладное М13 | Разработан: | ЦНИИЭП учебных зданий Госгражданстроя
| Утверждён: | 28.03.1986 Госгражданстрой (Gosgrazhdanstroy 113)
| Издан: | ЦИТП Госстроя СССР (CITP, Gosstroy (USSR) 1989 г. )
| Расположен в: |
|
                             
|