Информационная система
«Ёшкин Кот»

Скачать базу одним архивом
Скачать обновления
История создания базы
Карта сайта

Скачать Серия 2.130-6с Выпуск 1. Кирпичные стены сплошной кладки. Рабочие чертежи

Дата актуализации: 10.08.2017

Серия 2.130-6с

Выпуск 1. Кирпичные стены сплошной кладки. Рабочие чертежи

Обозначение: Серия 2.130-6с
Обозначение англ: Series 2.130-6с
Статус:не определен законодательством
Название рус.:Выпуск 1. Кирпичные стены сплошной кладки. Рабочие чертежи
Дата добавления в базу:01.09.2013
Дата актуализации:05.05.2017
Дата введения:01.01.1984
Оглавление:2.130-6с.1-0000 Содержание
2.130-6с.1-0000 ТО Техническое описание
2.130-6с.1-0001 Комплексные конструкции. Фрагмент стены с частым расположением проемов
2.130-6с.1-0002 Комплексные конструкции. Фрагмент стены с одиночным проёмом
2.130-6с.1-0003 Комплексные конструкции. Фрагмент стены с одиночным железобетонным включением
2.130-6с.1-0004 Фрагмент стены толщиной 380 мм со схемой опирания сб. ж/б перемычек. Фрагмент стены толщиной 310, 640 мм со схемой опирания сб. ж/б перемычек
2.130-6с.1-0100 Узел 1/ 16. Горизонтальное армирование стен в зданиях с расчетной сейсмичностью 7, 8 и 9 баллов
2.130-6с.1-0200 Узел 17/ 29. Комплексные конструкции. Примеры сечений железобетонных включений в стенах толщиной 380, 510 и 640 мм
2.130-6с.1-0300 Узел 30/ 32. Комплексные конструкции. Примеры сечений железобетонных включений в стенах толщиной 380, 510 и 640 мм
2.130-6с.1-0400 Узел 33/ 44. Комплексные конструкции. Примеры сечений поясов перемычек в стенах толщиной 380, 510 и 640 мм при высоте этажа 2.8 и 3.0 м
2.130-6с.1-0500 Узел 45/ 52. Комплексные конструкции. Примеры сечений сб. ж/б перемычек в стенах толщиной 380, 510 и 640 мм при высоте этажа 2.8 и 3.0 м
2.130-6с.1-0600 Узел 53; 54. Армирование стен над верхним перекрытием при чердачных и бесчердачных невентилируемых покрытиях
2.130-6с.1-0700 Узел 55. Крепление кирпичных труб при чердачных покрытиях
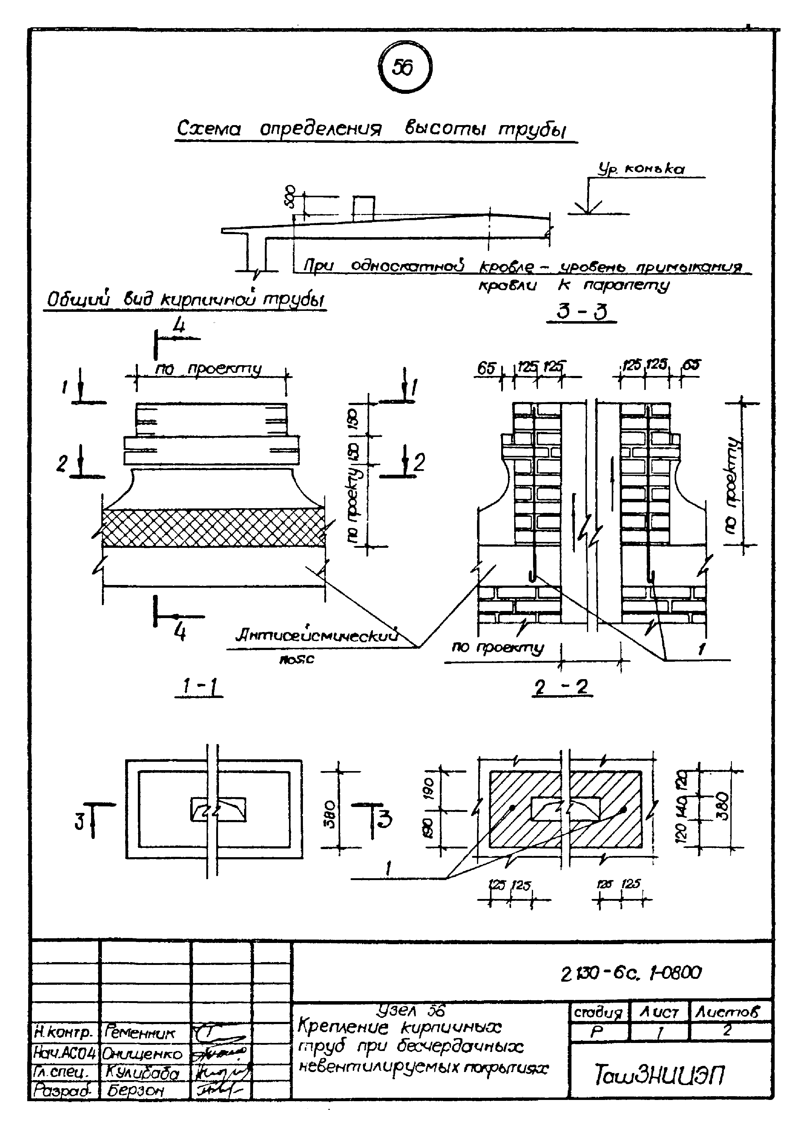
2.130-6с.1-0800 Узел 56. Крепление кирпичных труб при бесчердачных невентилируемых покрытиях
2.130-6с.1-0010 Каркас КТ
2.130-6с.1-0020 Сетка СГ-1/ СГ-3
2.130-6с.1-0030 Анкер АС-1; АС-2
Разработан: ТашЗНИИЭП Госгражданстроя
Утверждён:08.12.1983 Госгражданстрой (Gosgrazhdanstroy 378)
Расположен в:Техническая документация Строительство Справочные документы Типовые строительные конструкции, изделия и узлы Общероссийский строительный каталог Строительные конструкции, изделия и узлы зданий и сооружений для всех видов строительства Конструкции, изделия и узлы зданий Ограждающие конструкции Узлы и детали стен и перегородок
Серия 2.130-6сСерия 2.130-6сСерия 2.130-6сСерия 2.130-6сСерия 2.130-6сСерия 2.130-6сСерия 2.130-6сСерия 2.130-6сСерия 2.130-6сСерия 2.130-6сСерия 2.130-6сСерия 2.130-6сСерия 2.130-6сСерия 2.130-6сСерия 2.130-6сСерия 2.130-6сСерия 2.130-6сСерия 2.130-6сСерия 2.130-6сСерия 2.130-6сСерия 2.130-6сСерия 2.130-6сСерия 2.130-6сСерия 2.130-6сСерия 2.130-6сСерия 2.130-6сСерия 2.130-6сСерия 2.130-6сСерия 2.130-6сСерия 2.130-6сСерия 2.130-6сСерия 2.130-6сСерия 2.130-6сСерия 2.130-6с

© 2013 Ёшкин Кот :-) Карта сайта