Информационная система
«Ёшкин Кот»

Скачать базу одним архивом
Скачать обновления
История создания базы
Карта сайта

Скачать Серия 2.130-10.99 Выпуск 1. Материалы для проектирования и рабочие чертежи узлов

Дата актуализации: 10.08.2017

Серия 2.130-10.99

Выпуск 1. Материалы для проектирования и рабочие чертежи узлов

Обозначение: Серия 2.130-10.99
Обозначение англ: Series 2.130-10.99
Статус:не определен законодательством
Название рус.:Выпуск 1. Материалы для проектирования и рабочие чертежи узлов
Дата добавления в базу:01.09.2013
Дата актуализации:05.05.2017
Дата введения:29.12.1999
Оглавление:2.130-10.99.1-ПЗ Пояснительная записка
2.130-10.99.1-01 Маркировочная схема узлов для малоэтажного (до 5-ти этажей) жилого дома с поперечными несущими стенами и устройством остекленных лоджий-веранд (архитектурно-строительная система "РОИС-ГЕОКАР-Тверьгражданпроект")
2.130-10.99.1-02 Маркировочная схема узлов для малоэтажного (до 2-х этажей) жилого дома с каркасной или смешанной конструктивной схемой (при отсутствии остекленной воздушно-демпферной зоны, лоджии-веранды)
2.130-10.99.1-03 Узел 1. Двухслойная кладка наружной стены толщиной 640 мм из силикатного кирпича с применением торфоблоков и устройством воздушно-демпферной зоны (варианты с гибкими связи). Порядовка наружной стены
2.130-10.99.1-04 Узел 2. Двухслойная кладка наружной стены толщиной 640 мм из силикатного кирпича с применением торфоблоков и устройством остекленной воздушно-демпферной зоны (вариант с прокладными рядами)
2.130-10.99.1-05 Узел 3, 4, 5. Двухслойная кладка наружной стены толщиной 680 мм из силикатного кирпича с применением торфоблоков и устройством остекленной воздушно-демпферной зоны (вариант с уширенным швом). Узкий простенок 1550 х 640 (680)
2.130-10.99.1-06 Узел 6, 7, 8. Двухслойная кладка наружной стены толщиной 640 (680) мм из силикатного кирпича с применением торфоблоков и устройством остекленной воздушно-демпферной зоны. Сопряжение наружных и внутренних стен. Решения перемычек в наружных стенах
2.130-10.99.1-07 Узел 9, 10, 11. Двухслойная кладка наружной стены толщиной 640 (680) мм из силикатного кирпича с применением торфоблоков и устройством остекленной воздушно-демпферной зоны. Установка оконных блоков
2.130-10.99.1-08 Узел 12, 13, 14. Двухслойная кладка наружной стены толщиной 640 (680) мм из силикатного кирпича с применением торфоблоков и устройством остекленной воздушно-демпферной зоны. Установка оконных блоков в наружных стенах
2.130-10.99.1-09 Узел 15, 16. Двухслойная кладка наружной стены толщиной 640 (680) мм из силикатного кирпича с применением торфоблоков и устройством остекленной воздушно-демпферной зоны. Деформационные швы
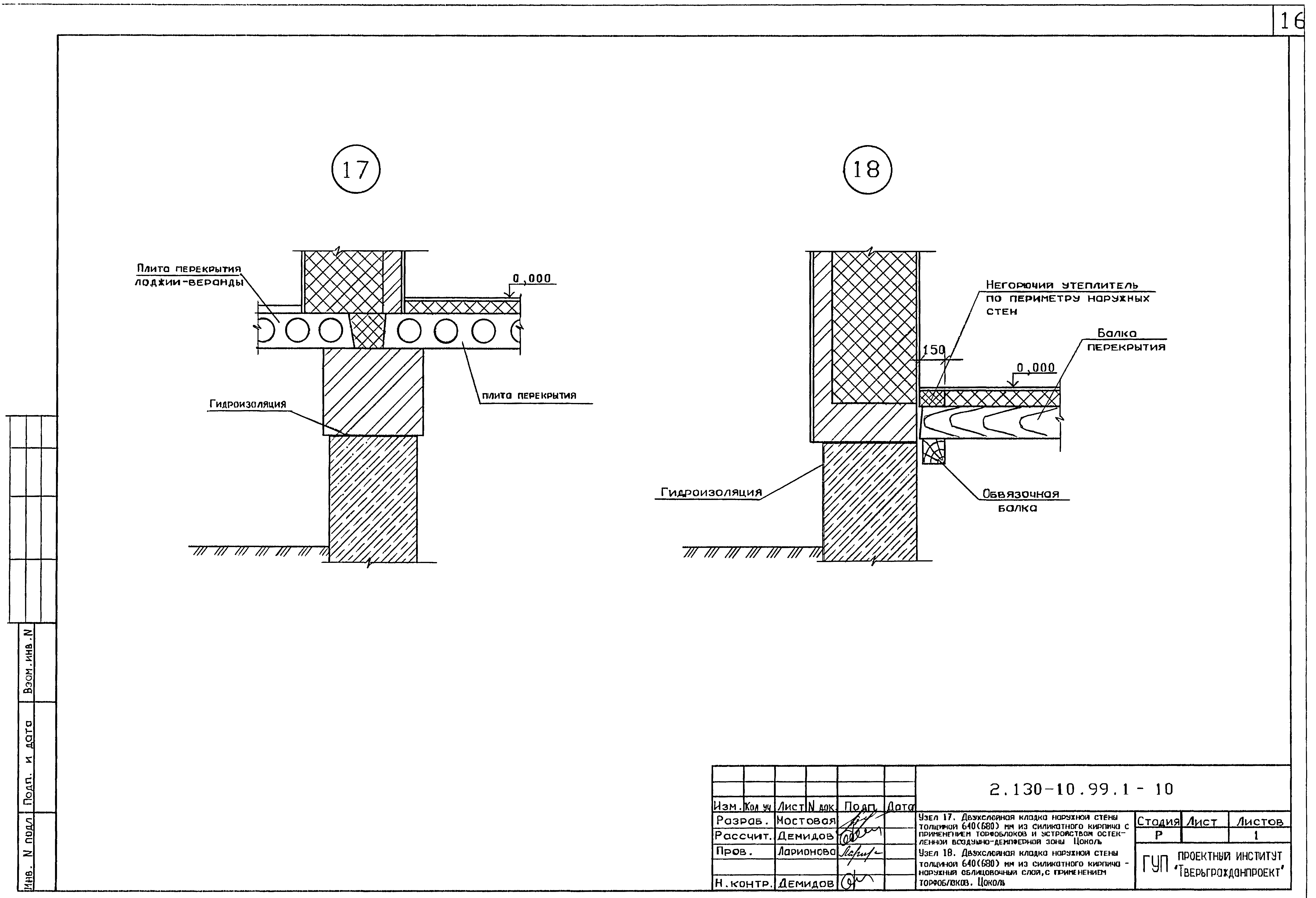
2.130-10.99.1-10 Узел 17. Двухслойная кладка наружной стены толщиной 640 (680) мм из силикатного кирпича с применением торфоблоков и устройством остекленной воздушно-демпферной зоны. Цоколь. Узел 18. Двухслойная кладка наружной стены толщиной 640 (680) мм из силикатного кирпича - наружный облицовочный слой, с применением торфоблоков. Цоколь
2.130-10.99.1-11 Узел 19, 19-1, 20, 21. Двухслойная кладка наружной стены толщиной 640 (680) мм из силикатного кирпича - наружный облицовочный слой, с применением торфоблоков. Сопряжение наружный стен с каркасом
2.130-10.99.1-12 Узел 22, 23, 24, 25. Двухслойная кладка наружной стены толщиной 640 (680) мм из силикатного кирпича - наружный облицовочный слой, с применением торфоблоков. Установка оконных блоков
2.130-10.99.1-13 Узел 26, 27, 28. Двухслойная кладка наружной стены толщиной 640 (680) мм из силикатного кирпича - наружный облицовочный слой, с применением торфоблоков. Установка оконных блоков в наружных стенах Деформационный шов
2.130-10.99.1-14 Узел 29, 30, 31, 32. Внутриквартирные и межквартирные перегородки. Примыкание перегородок к наружной стеновой панели, к колонне, к полу
2.130-10.99.1-15 Узел 33, 34. Внутриквартирные и межквартирные перегородки. Примыкание перегородок к кирпичной стене, столбу
2.130-10.99.1-16 Узел 35, 36. Внутриквартирные и межквартирные перегородки. Примыкание перегородок к плите покрытия
2.130-10.99.1-17 Узел 37, 38. Внутриквартирные и межквартирные перегородки. Примыкание перегородок к шву между плитами перекрытия
2.130-10.99.1-18 Узел 39, 40. Внутриквартирные и межквартирные перегородки. Примыкание перегородок к железобетонному ригелю, прогону
2.130-10.99.1-19 Узел 41, 42, 43. Внутриквартирные и межквартирные перегородки. Угловое и тавровое сопряжение перегородок
2.130-10.99.1-20 Узел 44, 45. Внутриквартирные и межквартирные перегородки. Крестообразное сопряжение перегородок
2.130-10.99.1-21 Изделие монтажное МД-1
2.130-10.99.1-22 Изделие монтажное МД-2, МД-3
2.130-10.99.1-23 Изделие монтажное МД-4
2.130-10.99.1-24 Изделие монтажное МД-5
2.130-10.99.1-25 Сетка С1
2.130-10.99.1-26 Сетка С2
2.130-10.99.1-27 Сетка С3
2.130-10.99.1-25 Сетка С4
2.130-10.99.1-29 Сетка С5
2.130-10.99.1-30 Сетка С6
Разработан: ГУП ПИ Тверьгражданпроект
Утверждён:28.12.1999 ГУП ПИ Тверьгражданпроект (57)
Расположен в:Техническая документация Строительство Справочные документы Типовые строительные конструкции, изделия и узлы Общероссийский строительный каталог Строительные конструкции, изделия и узлы зданий и сооружений для всех видов строительства Конструкции, изделия и узлы зданий Ограждающие конструкции Узлы и детали стен и перегородок
Серия 2.130-10.99Серия 2.130-10.99Серия 2.130-10.99Серия 2.130-10.99Серия 2.130-10.99Серия 2.130-10.99Серия 2.130-10.99Серия 2.130-10.99Серия 2.130-10.99Серия 2.130-10.99Серия 2.130-10.99Серия 2.130-10.99Серия 2.130-10.99Серия 2.130-10.99Серия 2.130-10.99Серия 2.130-10.99Серия 2.130-10.99Серия 2.130-10.99Серия 2.130-10.99Серия 2.130-10.99Серия 2.130-10.99Серия 2.130-10.99Серия 2.130-10.99Серия 2.130-10.99Серия 2.130-10.99Серия 2.130-10.99Серия 2.130-10.99Серия 2.130-10.99Серия 2.130-10.99Серия 2.130-10.99Серия 2.130-10.99Серия 2.130-10.99

© 2013 Ёшкин Кот :-) Карта сайта