Информационная система
«Ёшкин Кот»

Скачать базу одним архивом
Скачать обновления
История создания базы
Карта сайта

Скачать Серия 2.130-7 Узлы сопряжения наружных стен из трехслойных панелей с гибкими связями. Рабочие чертежи

Дата актуализации: 10.08.2017

Серия 2.130-7

Узлы сопряжения наружных стен из трехслойных панелей с гибкими связями. Рабочие чертежи

Обозначение: Серия 2.130-7
Обозначение англ: Series 2.130-7
Статус:не определен законодательством
Название рус.:Узлы сопряжения наружных стен из трехслойных панелей с гибкими связями. Рабочие чертежи
Дата добавления в базу:01.09.2013
Дата актуализации:05.05.2017
Дата введения:20.12.1986
Оглавление:2.130-7.00 ТО Техническое описание
2.130-7.01 Фрагменты схем расположения стеновых панелей и плит перекрытия. Маркировка узлов
2.130-7.02 Узел 1
2.130-7.03 Узел 2
2.130-7.04 Узел 3
2.130-7.05 Узел 4
2.130-7.06 Узел 5
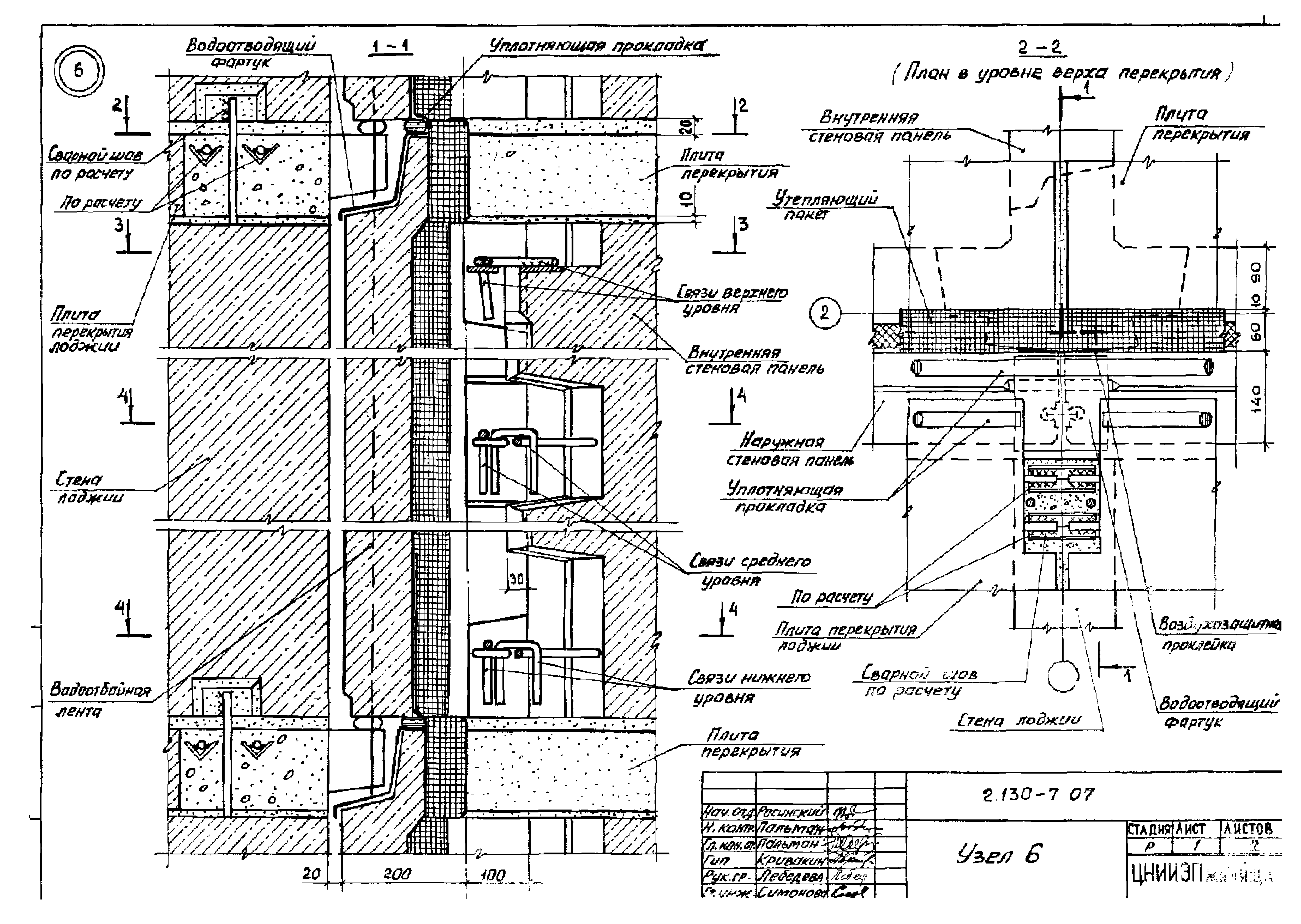
2.130-7.07 Узел 6
2.130-7.08 Узел 7
2.130-7.09 Узел 8
2.130-7.10 Узел 9
2.130-7.11 Узел 10, 11
2.130-7.12 Узел 12… 15
2.130-7.13 Узел 16
2.130-7.14 Изделие металлическое ИМ1… ИМ3
2.130-7.15 Изделие металлическое ИМ4… ИМ7
2.130-7.16 Изделие металлическое ИМ9
2.130-7.17 Изделие металлическое ИМ8, ИМ10, ИМ11
Разработан: ЦНИИЭП жилища
Утверждён:11.12.1986 Госгражданстрой (Gosgrazhdanstroy 415)
Расположен в:Техническая документация Строительство Справочные документы Типовые строительные конструкции, изделия и узлы Общероссийский строительный каталог Строительные конструкции, изделия и узлы зданий и сооружений для всех видов строительства Конструкции, изделия и узлы зданий Ограждающие конструкции Узлы и детали стен и перегородок
Серия 2.130-7Серия 2.130-7Серия 2.130-7Серия 2.130-7Серия 2.130-7Серия 2.130-7Серия 2.130-7Серия 2.130-7Серия 2.130-7Серия 2.130-7Серия 2.130-7Серия 2.130-7Серия 2.130-7Серия 2.130-7Серия 2.130-7Серия 2.130-7Серия 2.130-7Серия 2.130-7Серия 2.130-7Серия 2.130-7Серия 2.130-7Серия 2.130-7Серия 2.130-7Серия 2.130-7Серия 2.130-7Серия 2.130-7Серия 2.130-7Серия 2.130-7Серия 2.130-7Серия 2.130-7Серия 2.130-7Серия 2.130-7Серия 2.130-7

© 2013 Ёшкин Кот :-) Карта сайта