Скачать Серия 2.130-1 Выпуск 26. Узлы наружных стен из однослойных легкобетонных панелей. Рабочие чертежиДата актуализации: 10.08.2017 Серия 2.130-1
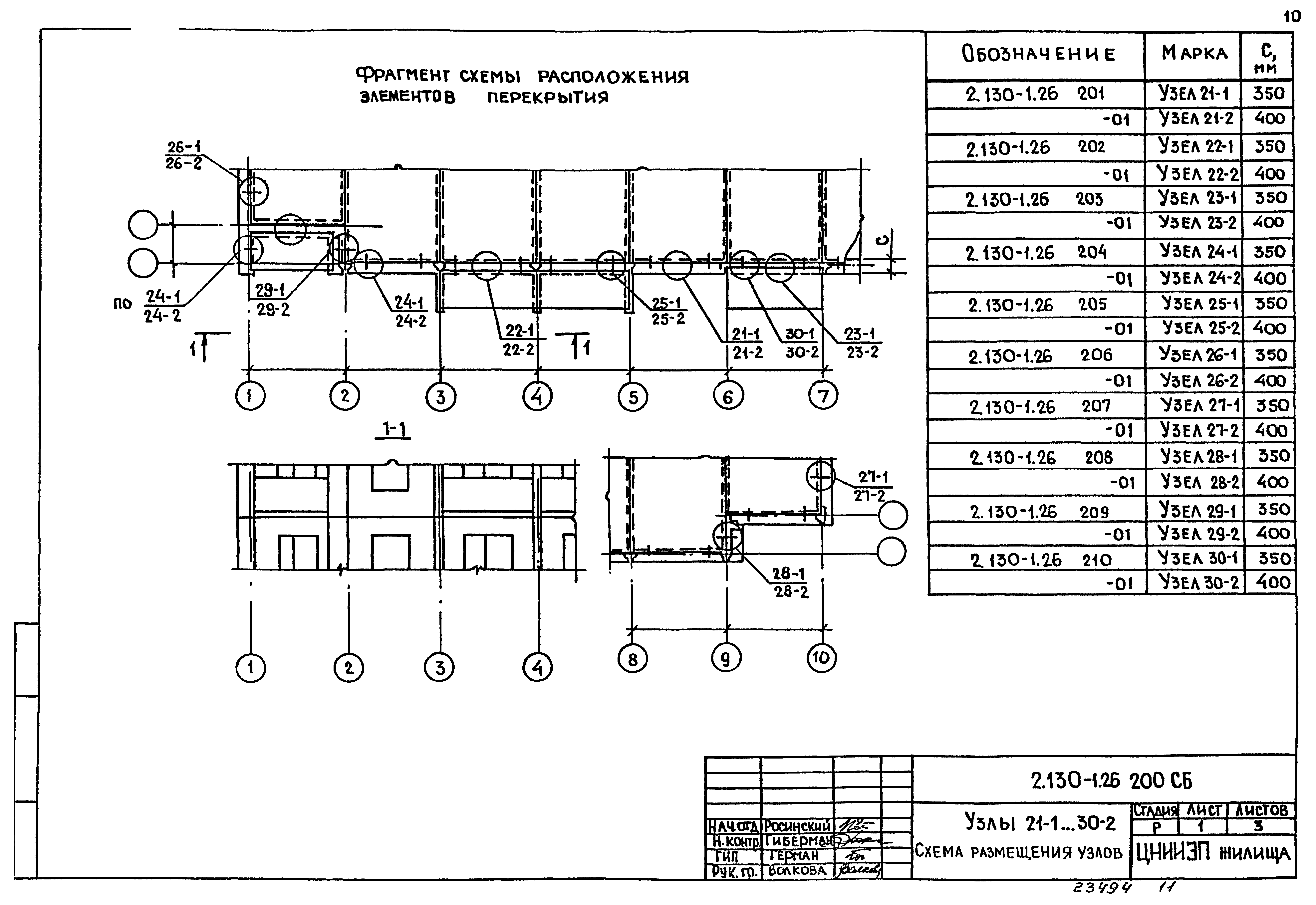
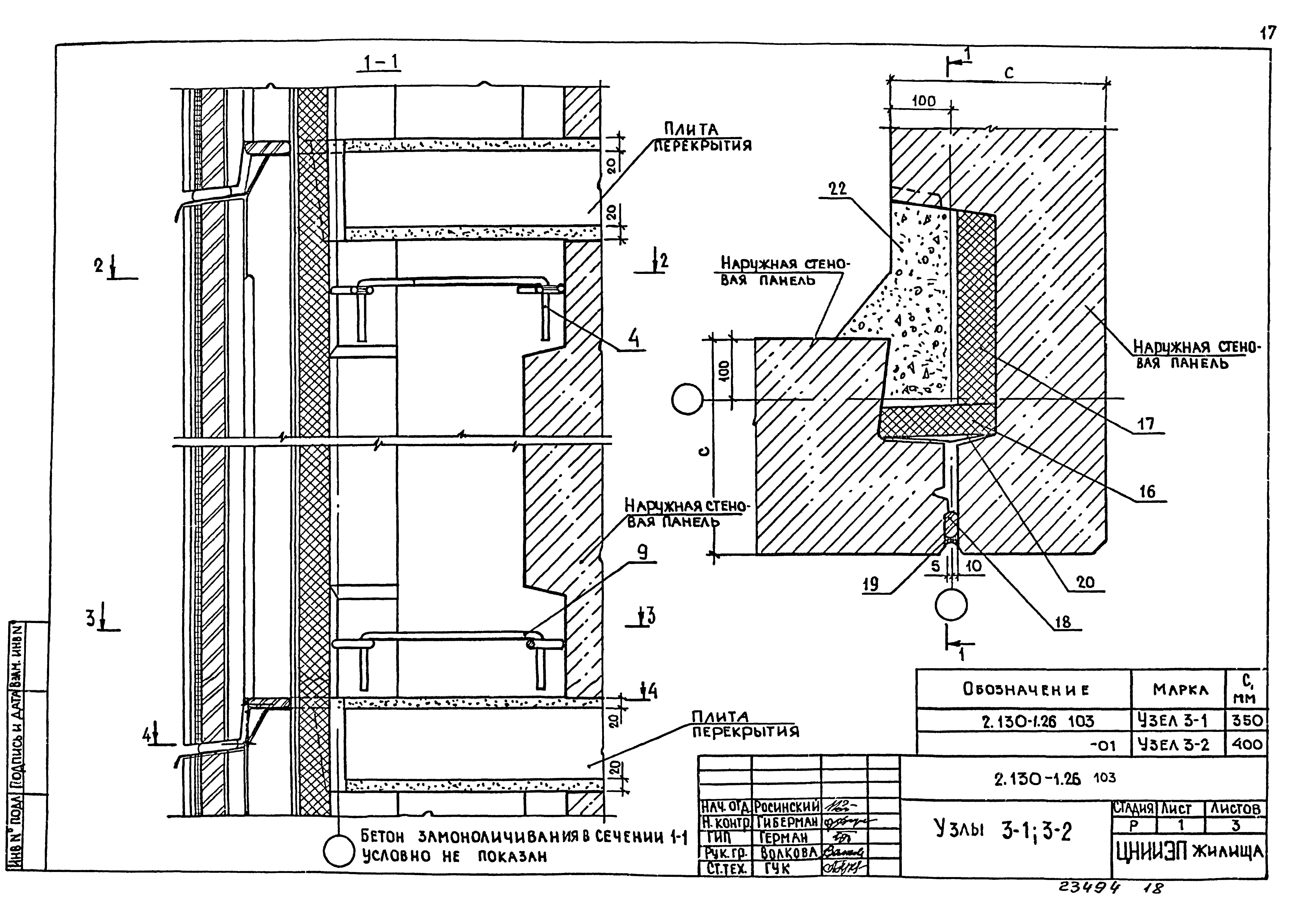
Выпуск 26. Узлы наружных стен из однослойных легкобетонных панелей. Рабочие чертежиОбозначение: | Серия 2.130-1 | Обозначение англ: | Series 2.130-1 | Статус: | cправочные материалы, мп, тпр | Название рус.: | Выпуск 26. Узлы наружных стен из однослойных легкобетонных панелей. Рабочие чертежи | Дата добавления в базу: | 01.09.2013 | Дата актуализации: | 05.05.2017 | Дата введения: | 30.11.1988 | Оглавление: | 2.130-1.26 000 ТО Техническое описание 2.130-1.26 100 Узлы 1-1…. 11-2. Схема размещения узлов 2.130-1.26 200 Узлы 21-1…. 30-2. Схема размещения узлов 2.130-1.26 101 Узлы 1-1, 1-2 2.130-1.26 102 Узлы 2-1, 2-2 2.130-1.26 103 Узлы 3-1, 3-2 2.130-1.26 104 Узлы 4-1, 4-2 2.130-1.26 105 Узлы 5-1, 5-2 2.130-1.26 106 Узлы 6-1, 6-2 2.130-1.26 107 Узлы 7-1, 7-2 2.130-1.26 108 Узлы 8-1, 8-2 2.130-1.26 109 Узлы 9-1, 9-2 2.130-1.26 110 Узлы 10-1, 10-2 2.130-1.26 111 Узлы 11-1, 11-2 2.130-1.26 201 Узлы 21-1, 21-2 2.130-1.26 202 Узлы 22-1, 22-2 2.130-1.26 203 Узлы 23-1, 23-2 2.130-1.26 204 Узлы 24-1, 24-2 2.130-1.26 205 Узлы 25-1, 25-2 2.130-1.26 206 Узлы 26-1, 26-2 2.130-1.26 207 Узлы 27-1, 27-2 2.130-1.26 208 Узлы 28-1, 28-2 2.130-1.26 209 Узлы 29-1, 29-2 2.130-1.26 210 Узлы 30-1, 30-2 2.130-1.26 001 Стержень гнутый А (А1… А5) 2.130-1.26 002 Стержень гнутый А (А6… А9) 2.130-1.26 003 Полоса 2.130-1.26 004 Стержень гнутый А (А11; А12) | Разработан: | ЦНИИЭП жилища
| Утверждён: | 15.11.1988 Госкомархитектура (306)
| Расположен в: |
|
                                                 
|