Информационная система
«Ёшкин Кот»

Скачать базу одним архивом
Скачать обновления
История создания базы
Карта сайта

Скачать Серия 1.431.9-32.96 Выпуск 0-2. Перегородки каркасные обшивные. Материал для проектирования

Дата актуализации: 10.08.2017

Серия 1.431.9-32.96

Выпуск 0-2. Перегородки каркасные обшивные. Материал для проектирования

Обозначение: Серия 1.431.9-32.96
Обозначение англ: Series 1.431.9-32.96
Статус:не определен законодательством
Название рус.:Выпуск 0-2. Перегородки каркасные обшивные. Материал для проектирования
Дата добавления в базу:01.09.2013
Дата актуализации:05.05.2017
Дата введения:01.02.1998
Область применения:Настоящий выпуск содержит материалы для проектирования противопожарных каркасно-обшивных перегородок поэлементной сборки с двуслойными и однослойными обшивками из гипсокартонных листов с пределом огнестойкости соответственно 1 и 2-го типов, а также материалы по использованию металлического профлиста в противопожарных преградах 2-го типа с пределом огнестойкости 0,25 часа
Оглавление:1.431.9-32.96.0-2-ТТ Технические требования
1.431.9-32.96.0-2-1 Поперечная противопожарная перегородка в одноэтажных зданиях в створе колонн. Огнестойкость 1,25 часа
1.431.9-32.96.0-2-2 Продольная противопожарная перегородка в одноэтажных зданиях под продольными ребрами плит. Огнестойкость 1,25 часа
1.431.9-32.96.0-2-3 Поперечная противопожарная перегородка в многоэтажных зданиях в створе колонн. Огнестойкость 1,25 часа
1.431.9-32.96.0-2-4 Продольная противопожарная перегородка в многоэтажных зданиях с перекрытиями из многопустотных плит. Огнестойкость 1,25 часа
1.431.9-32.96.0-2-5 Продольная противопожарная перегородка в многоэтажных зданиях не в створе колонн. Огнестойкость 1,25 часа
1.431.9-32.96.0-2-6 Фрагмент фасада 1. Узел 1… 4
1.431.9-32.96.0-2-7 Фрагмент фасада 2
1.431.9-32.96.0-2-8 Противопожарная перегородка в одноэтажных зданиях. Огнестойкость 0,75 часа
1.431.9-32.96.0-2-9 Поперечная противопожарная перегородка в многоэтажных зданиях в створе колонн. Огнестойкость 0,75 часа
1.431.9-32.96.0-2-10 Продольная противопожарная перегородка в многоэтажных зданиях с перекрытиями из многопустотных плит. Огнестойкость 0,75 часа
1.431.9-32.96.0-2-11 Продольная противопожарная перегородка в многоэтажных зданиях не в створе колонн. Огнестойкость 0,75 часа
1.431.9-32.96.0-2-12 Решение противопожарной перегородки с обшивкой из стальных профилированных листов. Узел 7… 10. Огнестойкость 0,25 часа
1.431.9-32.96.0-2-13 Схемы крепления обшивок из ГКЛ в два слоя
1.431.9-32.96.0-2-14 Схема крепления обшивок из ГКЛ. Узел 5; 6
1.431.9-32.96.0-2-15 Пример крепления теплоизоляции при полоном заполнении полости перегородки
1.431.9-32.96.0-2-16 Пример крепления теплоизоляции при частичном заполнении полости перегородки
1.431.9-32.96.0-2-17 Устройство дверного проема
1.431.9-32.96.0-2-18 Сопряжение перегородок с коммуникациями. Примеры решений
1.431.9-32.96.0-2-19 Узел 11; 12
1.431.9-32.96.0-2-20 Узел 13
1.431.9-32.96.0-2-21 Узел 14; 15
1.431.9-32.96.0-2-22 Узел 16; 17
1.431.9-32.96.0-2-23 Узел 18; 19; 20
1.431.9-32.96.0-2-24 Узел 21; 22; 23
1.431.9-32.96.0-2-25 Узел 24; 25
1.431.9-32.96.0-2-26 Узел 26; 27; 28
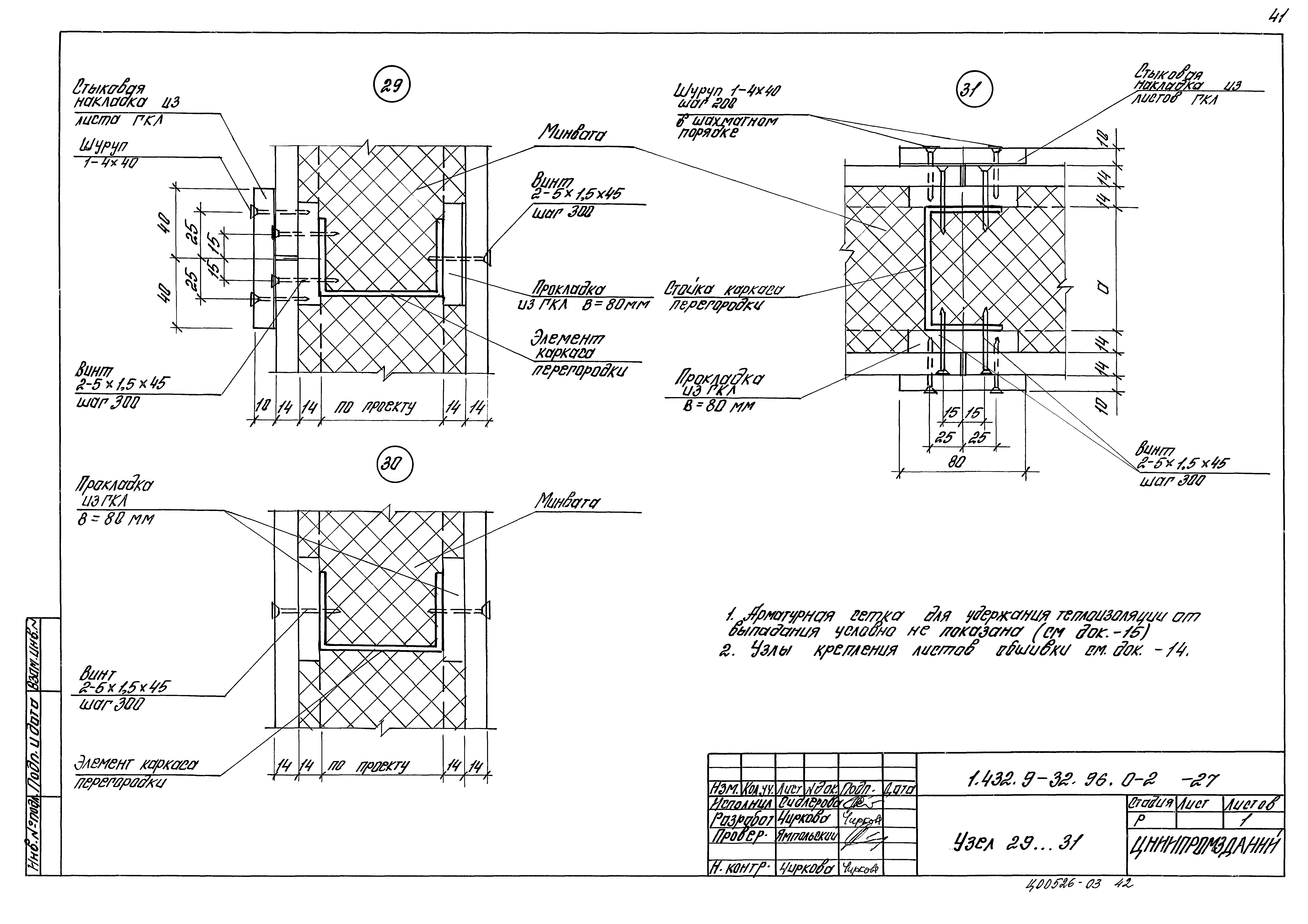
1.431.9-32.96.0-2-27 Узел 29… 31
1.431.9-32.96.0-2-28 Узел 32; 33; 34
1.431.9-32.96.0-2-29 Ригель ПР1, ПР2, ПР3, ПР4
1.431.9-32.96.0-2-30 Изделие соединительное МС1; МС2
1.431.9-32.96.0-2-31 Изделие соединительное МС3; МС4
1.431.9-32.96.0-2-32 Расход материалов
Разработан: ЦНИИпромзданий
Утверждён:02.12.1996 Департамент развития научно-технической политики и проектно-изыскательских работ Минстроя России (Department of Technical Research Policy and Design and Survey Operations, , Russian Federation Minstroy 9-1-1/122)
Расположен в:Техническая документация Строительство Справочные документы Типовые строительные конструкции, изделия и узлы Общероссийский строительный каталог Строительные конструкции, изделия и узлы зданий и сооружений для всех видов строительства Конструкции, изделия и узлы зданий Ограждающие конструкции Перегородки
Нормативные ссылки:
Серия 1.431.9-32.96Серия 1.431.9-32.96Серия 1.431.9-32.96Серия 1.431.9-32.96Серия 1.431.9-32.96Серия 1.431.9-32.96Серия 1.431.9-32.96Серия 1.431.9-32.96Серия 1.431.9-32.96Серия 1.431.9-32.96Серия 1.431.9-32.96Серия 1.431.9-32.96Серия 1.431.9-32.96Серия 1.431.9-32.96Серия 1.431.9-32.96Серия 1.431.9-32.96Серия 1.431.9-32.96Серия 1.431.9-32.96Серия 1.431.9-32.96Серия 1.431.9-32.96Серия 1.431.9-32.96Серия 1.431.9-32.96Серия 1.431.9-32.96Серия 1.431.9-32.96Серия 1.431.9-32.96Серия 1.431.9-32.96Серия 1.431.9-32.96Серия 1.431.9-32.96Серия 1.431.9-32.96Серия 1.431.9-32.96Серия 1.431.9-32.96Серия 1.431.9-32.96Серия 1.431.9-32.96Серия 1.431.9-32.96Серия 1.431.9-32.96Серия 1.431.9-32.96Серия 1.431.9-32.96Серия 1.431.9-32.96Серия 1.431.9-32.96Серия 1.431.9-32.96Серия 1.431.9-32.96Серия 1.431.9-32.96Серия 1.431.9-32.96Серия 1.431.9-32.96Серия 1.431.9-32.96Серия 1.431.9-32.96Серия 1.431.9-32.96

© 2013 Ёшкин Кот :-) Карта сайта