Информационная система
«Ёшкин Кот»

Скачать базу одним архивом
Скачать обновления
История создания базы
Карта сайта

Скачать Серия 1.431.9-32.96 Выпуск 0-1. Перегородки с применением железобетонных панелей. Материалы для проектирования

Дата актуализации: 10.08.2017

Серия 1.431.9-32.96

Выпуск 0-1. Перегородки с применением железобетонных панелей. Материалы для проектирования

Обозначение: Серия 1.431.9-32.96
Обозначение англ: Series 1.431.9-32.96
Статус:не определен законодательством
Название рус.:Выпуск 0-1. Перегородки с применением железобетонных панелей. Материалы для проектирования
Дата добавления в базу:01.09.2013
Дата актуализации:05.05.2017
Дата введения:01.02.1998
Область применения:В состав данного выпуска входят чертежи противопожарных перегородок 1-го и 2-го типа с пределом огнестойкости соответственно 0,75 и 0,25 часа, возводимых с использованием панелей железобетонных перегородок
Оглавление:1.431.9-32.96.0-1-ТТ Технические требования
1.431.9-32.96.0-1-1 Поперечные продольные противопожарные перегородки в одноэтажных зданиях без мостовых кранов
1.431.9-32.96.0-1-2 Фрагменты фасадов противопожарных перегородок одноэтажных зданий 1.Т1… 3.Т1; 1.Т2… 3Т2
1.431.9-32.96.0-1-3 Спецификация к фрагментам фасадов 1.Т1… 3.Т1; 1.Т2… 3Т2
1.431.9-32.96.0-1-4 Фрагменты фасадов противопожарных перегородок 4.Т1 - 4.Т2
1.431.9-32.96.0-1-5 Фрагменты фасадов противопожарных перегородок 5.Т1; 5.Т2
1.431.9-32.96.0-1-6 Фрагменты планов противопожарных перегородок одноэтажных зданий 6.Т1… 15.Т1; 6Т2… 15Т2
1.431.9-32.96.0-1-7 Типы крепления обшивок к металлическим элементам фрагментов 6.Т1… 15.Т1; 6Т2… 15Т2
1.431.9-32.96.0-1-8 Спецификация к фрагментам планов 6.Т1… 15.Т1; 6Т2… 15Т2
1.431.9-32.96.0-1-9 Поперечные и продольные противопожарные, перегородки многоэтажных зданий с каркасом по серии 1.020-1/87
1.431.9-32.96.0-1-10 Поперечные и продольные противопожарные, перегородки многоэтажных зданий с каркасом по серии 1.420.1-19
1.431.9-32.96.0-1-11 Фрагменты фасада противопожарных перегородок 16 Т1; 16Т2
1.431.9-32.96.0-1-12 Фрагменты фасада противопожарных перегородок 17 Т1; 17Т2
1.431.9-32.96.0-1-13 Узел 1т; 1н
1.431.9-32.96.0-1-14 Узел 2
1.431.9-32.96.0-1-15 Узел 3
1.431.9-32.96.0-1-16 Узел 4
1.431.9-32.96.0-1-17 Узел 5-1
1.431.9-32.96.0-1-18 Узел 5-2
1.431.9-32.96.0-1-19 Узел 6-1
1.431.9-32.96.0-1-20 Узел 6-2
1.431.9-32.96.0-1-21 Узел 7-1
1.431.9-32.96.0-1-22 Узел 7-2
1.431.9-32.96.0-1-23 Узел 8
1.431.9-32.96.0-1-24 Узел 9; 10
1.431.9-32.96.0-1-25 Узел 11
1.431.9-32.96.0-1-26 Узел 12
1.431.9-32.96.0-1-27 Узел 13
1.431.9-32.96.0-1-28 Узел 14-1; 14-2
1.431.9-32.96.0-1-29 Узел 15-2
1.431.9-32.96.0-1-30 Узел 15-1
1.431.9-32.96.0-1-31 Узел 16-1
1.431.9-32.96.0-1-32 Узел 17-1
1.431.9-32.96.0-1-33 Узел 16-2
1.431.9-32.96.0-1-34 Узел 17-2
1.431.9-32.96.0-1-35 Узел 18-2
1.431.9-32.96.0-1-36 Узел 18-1
1.431.9-32.96.0-1-37 Узел 19-2
1.431.9-32.96.0-1-38 Узел 19-1
1.431.9-32.96.0-1-39 Узел 20-1
1.431.9-32.96.0-1-40 Узел 20-2
1.431.9-32.96.0-1-41 Узел 21-1
1.431.9-32.96.0-1-42 Узел 21-2
1.431.9-32.96.0-1-43 Детали скрытого крепления панелей
1.431.9-32.96.0-1-44 Детали огнезащитной облицовки стальных стоек фахверка из гипсокартонных листов
1.431.9-32.96.0-1-45 Детали облицовки стальных стоек фахверка огнезащитной штукатуркой
1.431.9-32.96.0-1-46 Детали прохода коммуникаций и воздуховодов
1.431.9-32.96.0-1-47 Обшивка каркаса ОК1; ОК2
1.431.9-32.96.0-1-48 Обшивка каркаса ОК3; ОК4
1.431.9-32.96.0-1-49 Обшивка каркаса ОК5
1.431.9-32.96.0-1-50 Каркасно-обшивной щит типа КВ1-1; КВ1-2
1.431.9-32.96.0-1-51 Каркасно-обшивной щит типа КВ2-1; КВ2-2
1.431.9-32.96.0-1-52 Каркасно-обшивной щит типа КВ3а-1; 2; КВ3Б-1,2; КВ4а-1,2; КВ4б-1,2
1.431.9-32.96.0-1-53 Каркасно-обшивной щит типа КВ5; КВ6
1.431.9-32.96.0-1-54 Каркасно-обшивной щит типа КВ7-1; КВ7-2; КВ8-1; КВ8-2
1.431.9-32.96.0-1-55 Изделие соединительное МС1… МС4
1.431.9-32.96.0-1-56 Изделие соединительное МС5; МС6
1.431.9-32.96.0-1-57 Изделие соединительное МС7; МС8
1.431.9-32.96.0-1-58 Изделие соединительное МС10; МС11; МС12
1.431.9-32.96.0-1-59 Изделие соединительное МС9; МС9-1
1.431.9-32.96.0-1-60 Изделие соединительное МС23
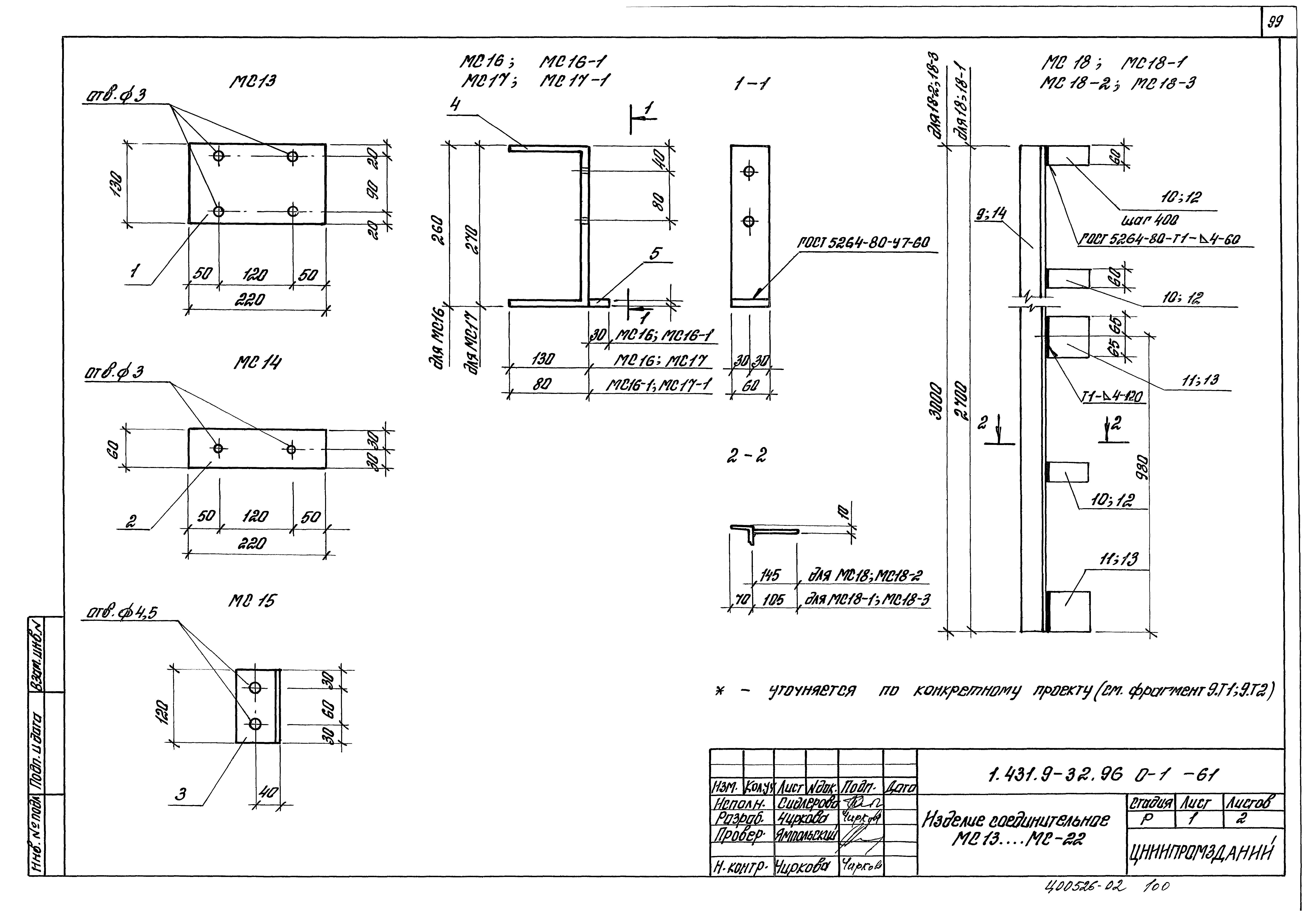
1.431.9-32.96.0-1-61 Изделие соединительное МС13… МС22
1.431.9-32.96.0-1-62 Нащельник Н3; Н3-1; Н4; Н4-1
1.431.9-32.96.0-1-63 Нащельник Н1; Н2; Н5
1.431.9-32.96.0-1-64 Нащельник Н6; Н6-1
1.431.9-32.96.0-1-65 Изделие соединительное МС24; МС24-1
Разработан: ЦНИИпромзданий
Утверждён:02.12.1996 Департамент развития научно-технической политики и проектно-изыскательских работ Минстроя России (Department of Technical Research Policy and Design and Survey Operations, , Russian Federation Minstroy 9-1-1/122)
Расположен в:Техническая документация Строительство Справочные документы Типовые строительные конструкции, изделия и узлы Общероссийский строительный каталог Строительные конструкции, изделия и узлы зданий и сооружений для всех видов строительства Конструкции, изделия и узлы зданий Ограждающие конструкции Перегородки
Нормативные ссылки:
Серия 1.431.9-32.96Серия 1.431.9-32.96Серия 1.431.9-32.96Серия 1.431.9-32.96Серия 1.431.9-32.96Серия 1.431.9-32.96Серия 1.431.9-32.96Серия 1.431.9-32.96Серия 1.431.9-32.96Серия 1.431.9-32.96Серия 1.431.9-32.96Серия 1.431.9-32.96Серия 1.431.9-32.96Серия 1.431.9-32.96Серия 1.431.9-32.96Серия 1.431.9-32.96Серия 1.431.9-32.96Серия 1.431.9-32.96Серия 1.431.9-32.96Серия 1.431.9-32.96Серия 1.431.9-32.96Серия 1.431.9-32.96Серия 1.431.9-32.96Серия 1.431.9-32.96Серия 1.431.9-32.96Серия 1.431.9-32.96Серия 1.431.9-32.96Серия 1.431.9-32.96Серия 1.431.9-32.96Серия 1.431.9-32.96Серия 1.431.9-32.96Серия 1.431.9-32.96Серия 1.431.9-32.96Серия 1.431.9-32.96Серия 1.431.9-32.96Серия 1.431.9-32.96Серия 1.431.9-32.96Серия 1.431.9-32.96Серия 1.431.9-32.96Серия 1.431.9-32.96Серия 1.431.9-32.96Серия 1.431.9-32.96Серия 1.431.9-32.96Серия 1.431.9-32.96Серия 1.431.9-32.96Серия 1.431.9-32.96Серия 1.431.9-32.96Серия 1.431.9-32.96Серия 1.431.9-32.96Серия 1.431.9-32.96Серия 1.431.9-32.96Серия 1.431.9-32.96Серия 1.431.9-32.96Серия 1.431.9-32.96Серия 1.431.9-32.96Серия 1.431.9-32.96Серия 1.431.9-32.96Серия 1.431.9-32.96Серия 1.431.9-32.96Серия 1.431.9-32.96Серия 1.431.9-32.96Серия 1.431.9-32.96Серия 1.431.9-32.96Серия 1.431.9-32.96Серия 1.431.9-32.96Серия 1.431.9-32.96Серия 1.431.9-32.96Серия 1.431.9-32.96Серия 1.431.9-32.96Серия 1.431.9-32.96Серия 1.431.9-32.96Серия 1.431.9-32.96Серия 1.431.9-32.96Серия 1.431.9-32.96Серия 1.431.9-32.96Серия 1.431.9-32.96Серия 1.431.9-32.96Серия 1.431.9-32.96Серия 1.431.9-32.96Серия 1.431.9-32.96Серия 1.431.9-32.96Серия 1.431.9-32.96Серия 1.431.9-32.96Серия 1.431.9-32.96Серия 1.431.9-32.96Серия 1.431.9-32.96Серия 1.431.9-32.96Серия 1.431.9-32.96Серия 1.431.9-32.96Серия 1.431.9-32.96Серия 1.431.9-32.96Серия 1.431.9-32.96Серия 1.431.9-32.96Серия 1.431.9-32.96Серия 1.431.9-32.96Серия 1.431.9-32.96Серия 1.431.9-32.96Серия 1.431.9-32.96Серия 1.431.9-32.96Серия 1.431.9-32.96Серия 1.431.9-32.96Серия 1.431.9-32.96Серия 1.431.9-32.96

© 2013 Ёшкин Кот :-) Карта сайта