| ||||||||||||||||||||||||||||||
Скачать Серия 1.431.9-25 Выпуск 0. Материалы для проектированияДата актуализации: 10.08.2017
|
| Обозначение: | Серия 1.431.9-25 |
| Обозначение англ: | Series 1.431.9-25 |
| Статус: | не определен законодательством |
| Название рус.: | Выпуск 0. Материалы для проектирования |
| Дата добавления в базу: | 01.09.2013 |
| Дата актуализации: | 05.05.2017 |
| Дата введения: | 01.07.1984 |
| Область применения: | Перегородки предназначены для ограждения внутрицеховых производственных и подсобных помещений |
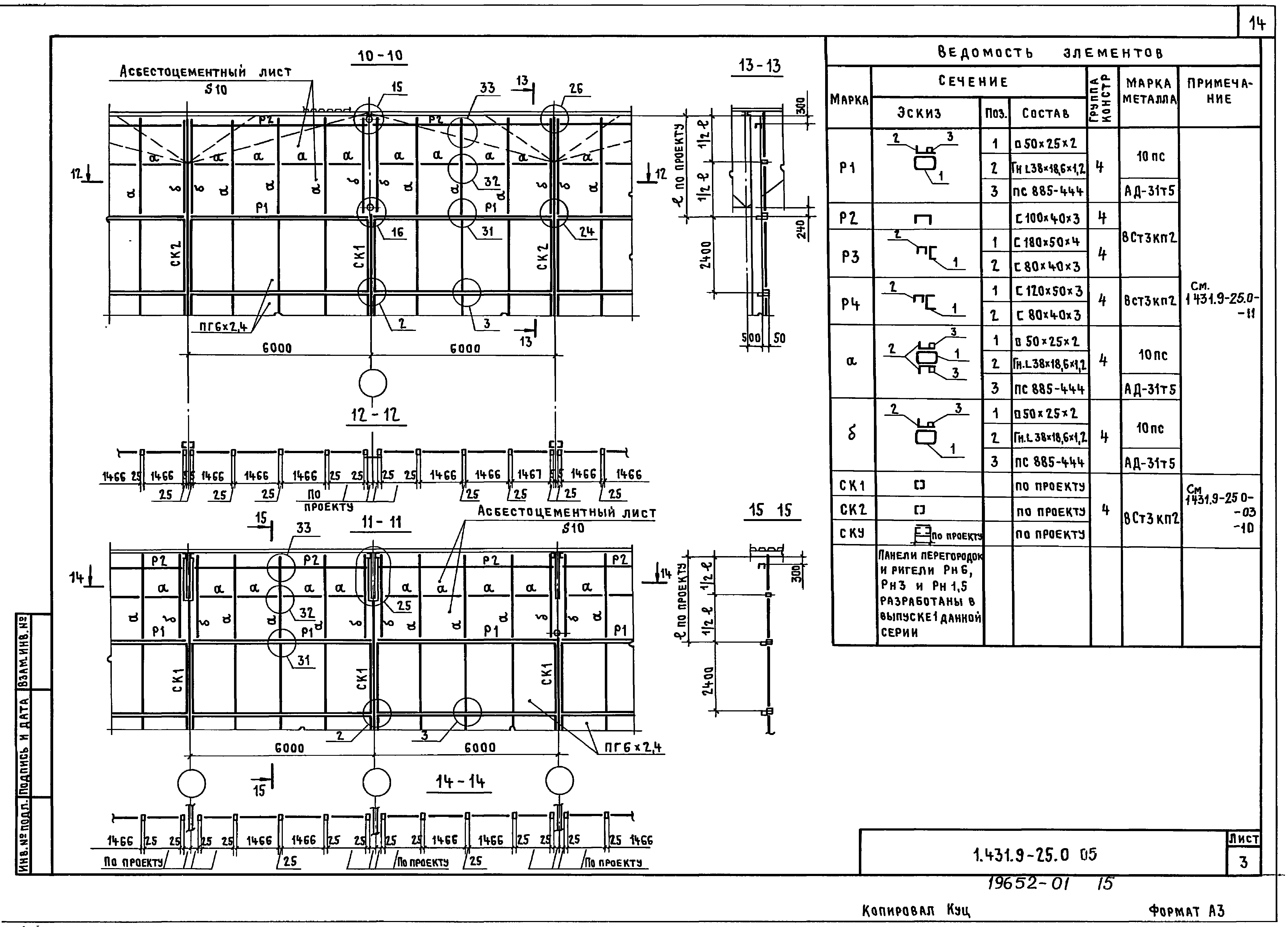
| Оглавление: | 1.431.9-25.0 00 ПЗ Пояснительная записка 1.431.9-25.0 01 Номенклатура элементов перегородок 1.431.9-25.0 02 Типы панельных перегородок 1.431.9-25.0 03 Схемы и сечения стоек перегородок типа II 1.431.9-25.0 04 Схемы расположения консольных перегородок высотой 3,6 м и 2,4 м 1.431.9-25.0 05 Схемы расположения перегородок для зданий с применением в покрытий ферм 1.431.9-25.0 06 Схема расположения перегородок в зданиях с мостовыми кранами 1.431.9-25.0 07 Схемы расположения перегородок для зданий с применением рамных конструкций типа "ОРСК" 1.431.9-25.0 08 Схемы расположения перегородок для зданий с применением конструкций покрытия из замкнутых гнутосварных профилей прямоугольного сечения типа "Молодечно" 1.431.9-25.0 09 Схемы расположения перегородок для зданий с применением структурных конструкций из прокатных профилей типа "ЦНИИСК" 1.431.9-25.0 10 Стойки перегородок типа II 1.431.9-25.0 11 Вертикальные и горизонтальные элементы каркаса для зашивки верха перегородок типа II 1.431.9-25.0 12 Спецификация материалов 1.431.9-25.0 13 Ведомость расхода материалов на элементы перегородок 1.431.9-25.0 14 Узлы 15, 16 1.431.9-25.0 15 Узлы 17, 18 1.431.9-25.0 16 Узлы 19, 20 1.431.9-25.0 17 Узлы 21, 22 1.431.9-25.0 18 Узлы 23, 24 1.431.9-25.0 19 Узлы 25, 26 1.431.9-25.0 20 Узлы 27, 28 1.431.9-25.0 21 Узлы 29, 30 1.431.9-25.0 22 Узлы 31, 32, 33 1.431.9-25.0 23 Узлы 34, 35, 36 1.431.9-25.0 24 Узлы 37, 38 1.431.9-25.0 25 Узлы 39, 40 1.431.9-25.0 26 Узлы 41, 42 1.431.9-25.0 27 Узлы 43, 44 |
| Разработан: | ГПИ Промстройпроект |
| Утверждён: | 30.03.1984 Госстрой СССР (Государственный комитет Совета Министров СССР по делам строительства) (USSR Gosstroy 37) |
| Расположен в: | |
| Нормативные ссылки: |
|





































