| ||||||||||||||||||||||||||
Скачать Серия 1.020-1/87 Выпуск 2-3. Колонны для зданий с высотой этажа 3,6 м. Рабочие чертежиДата актуализации: 10.08.2017
|
| Обозначение: | Серия 1.020-1/87 |
| Обозначение англ: | Series 1.020-1/87 |
| Статус: | не определен законодательством |
| Название рус.: | Выпуск 2-3. Колонны для зданий с высотой этажа 3,6 м. Рабочие чертежи |
| Дата добавления в базу: | 01.09.2013 |
| Дата актуализации: | 05.05.2017 |
| Дата введения: | 25.12.1991 |
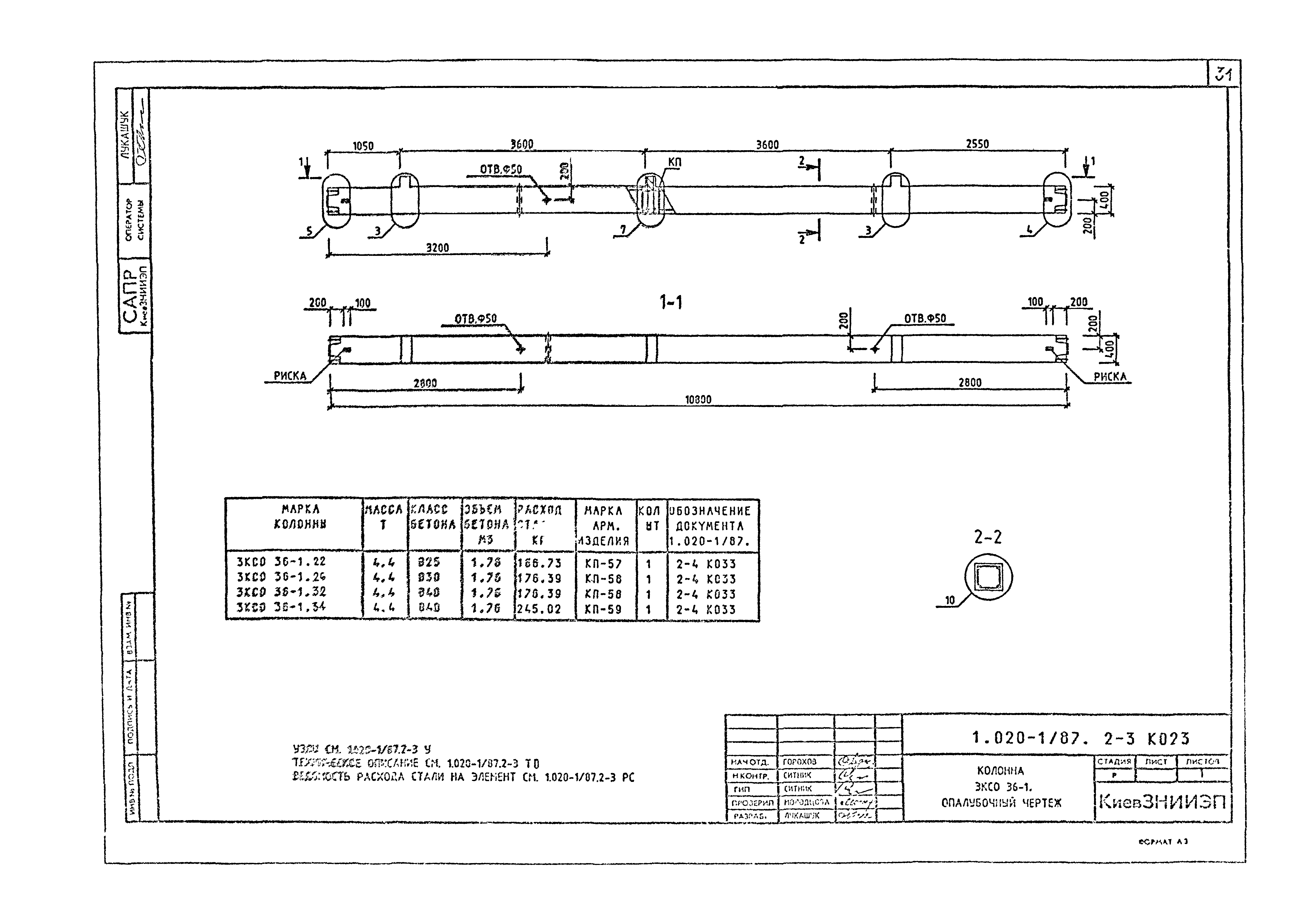
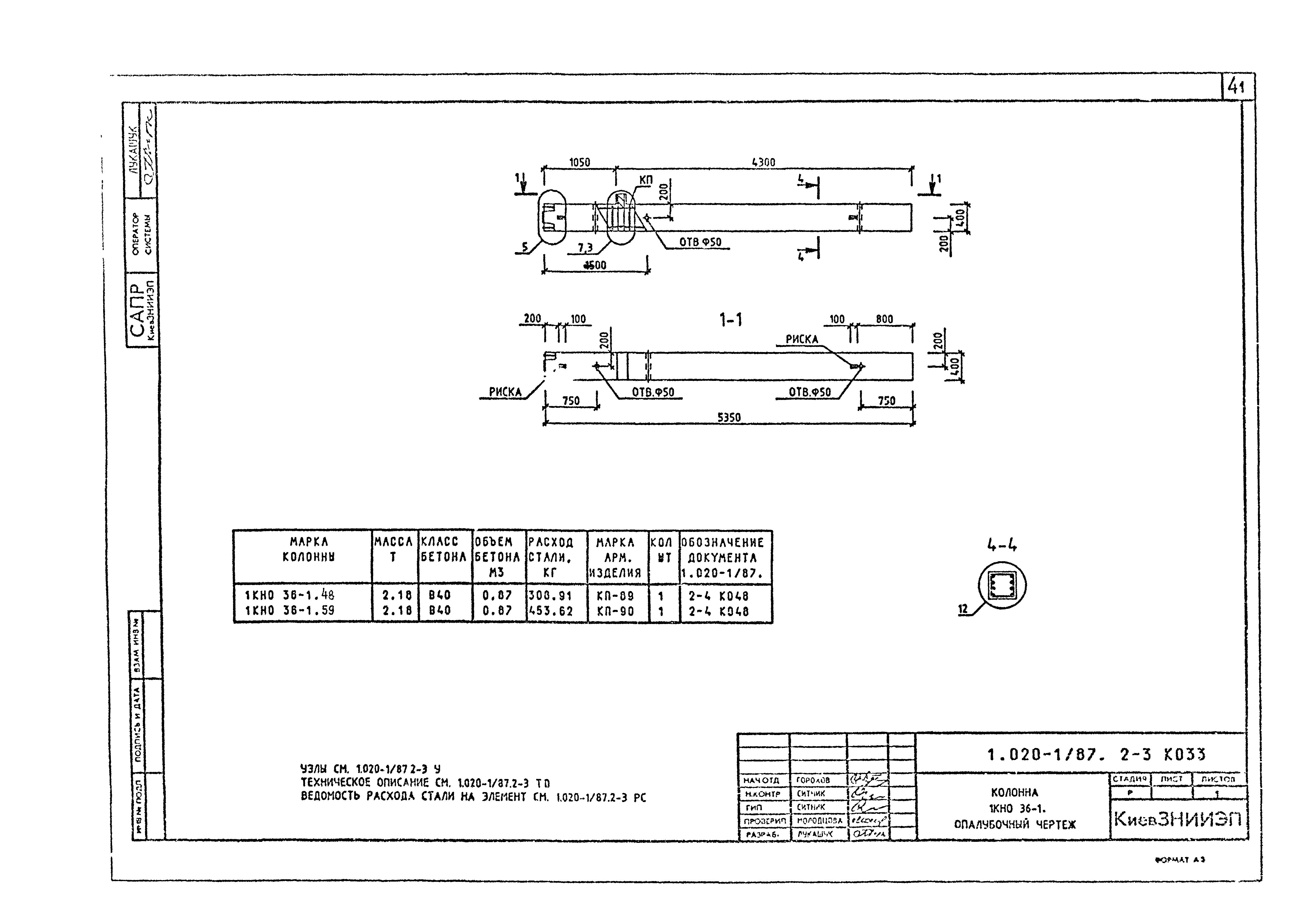
| Оглавление: | 1.020-1/87.2-3 ТО Техническое описание 1.020-1/87.2-3 К001 Колонна 1КВД 36-1.22, 1КВД 36-2.22. Опалубочный чертеж 1.020-1/87.2-3 К002 Колонна 1КВД 36-3.36. Опалубочный чертеж 1.020-1/87.2-3 К003 Колонна 1КВО 36-1.22, 1КВО 36-2.22. Опалубочный чертеж 1.020-1/87.2-3 К004 Колонна 1КВО 36-3.26. Опалубочный чертеж 1.020-1/87.2-3 К005 Колонна 1КВ 36-22, 1КВ 36-26,1 КВ 36-32. Опалубочный чертеж 1.020-1/87.2-3 К006 Колонна 2КВД 36-1.22, 2КВД 36-2.22. Опалубочный чертеж 1.020-1/87.2-3 К007 Колонна 2КВД 36-3.26. Опалубочный чертеж 1.020-1/87.2-3 К008 Колонна 2КВО 36-1.22, 2КВО 36-2.22. Опалубочный чертеж 1.020-1/87.2-3 К009 Колонна 2КВО 36-3.26. Опалубочный чертеж 1.020-1/87.2-3 К010 Колонна 2КВ 36-22, 2КВ 36-26. Опалубочный чертеж 1.020-1/87.2-3 К011 Колонна 3КВД 36-1.22, 3КВД 36-2.26. Опалубочный чертеж 1.020-1/87.2-3 К012 Колонна 3КВД 36-1.22, 3КВО 36-2.22. Опалубочный чертеж 1.020-1/87.2-3 К013 Колонна 3КВ 36-22, 3КВ 36-26. Опалубочный чертеж 1.020-1/87.2-3 К014 Колонна 1КСД 36-1.22, 1КСД 36-1.26, 1КСД 36-1.32, 1КСД 36-1.38, 1КСД 36-1.43. Опалубочный чертеж 1.020-1/87.2-3 К015 Колонна 1КСД 36-2.22, 1КСД 36-2.26, 1КСД 36-2.32,1КСД 36-2.38, 1КСД 36-2.43. Опалубочный чертеж 1.020-1/87.2-3 К016 Колонна 1КСД 36-3.26, 1КСД 36-3.32, 1КСД 36-3.38, 1КСД 36-3.43. Опалубочный чертеж 1.020-1/87.2-3 К017 Колонна 1КСО 36-1.22, 1КСО 36-1.26, 1КСО 36-1.32, 1КСО 36-1.38, 1КСО 36-1.43. Опалубочный чертеж 1.020-1/87.2-3 К018 Колонна 1КСО 36-2.22, 1КСО 36-2.26, 1КСО 36-2.32, 1КСО 36-2.38, 1КСО 36-2.43. Опалубочный чертеж 1.020-1/87.2-3 К019 Колонна 1КСО 36-3.26, 1КСО 36-3.32, 1КСО 36-3.38, 1КСО 36-3.43. Опалубочный чертеж 1.020-1/87.2-3 К020 Колонна 1КС 36-22, 1КС 36-26, 1КС 36-32, 1КС 36-38, 1КС 36-43. Опалубочный чертеж 1.020-1/87.2-3 К021 Колонна 3КСД 36-1.22, 3КСД 36-1.26, 3КСД 36-1.32, 3КСД 36-1.36, 3КСД 36-1.41, 3КСД 36-1.43. Опалубочный чертеж 1.020-1/87.2-3 К022 Колонна 3КСД 36-2.32, 3КСД 36-2.38, 3КСД 36-2.43. Опалубочный чертеж 1.020-1/87.2-3 К023 Колонна 3КСО 36-1.22, 3КСО 36-1.26, 3КСО 36-1.32, 3КСО 36-1.34. Опалубочный чертеж 1.020-1/87.2-3 К024 Колонна 3КСО 36-2.26, 3КСО 36-2.32, 3КСО 36-2.33. Опалубочный чертеж 1.020-1/87.2-3 К025 Колонна 3КС 36-22, 3КС 36-26, 3КС 36-32, 3КС 36-33, 3КС 46-34. Опалубочный чертеж 1.020-1/87.2-3 К026 Колонна 1КНД 36-1.26, 1КНД 36-1.31, 1КНД 36-1.32,1КНД 36-1.43. Опалубочный чертеж 1.020-1/87.2-3 К027 Колонна 1КНД 36-1.48, 1КНД 36-1.59. Опалубочный чертеж 1.020-1/87.2-3 К028 Колонна 1КНД 36-2.26, 1КНД 36-2.31, 1КНД 36-2.32, 1КНД 36-2.43. Опалубочный чертеж 1.020-1/87.2-3 К029 Колонна 1КНД 36-2.48, 1КНД 36-2.53, 1КНД 36-2.59 1.020-1/87.2-3 К030 Колонна 1КНД 36-2.48, 1КНД 36-3.32, 1КНД 36-3.38, 1КНД 36-3.43. Опалубочный чертеж 1.020-1/87.2-3 К031 Колонна 1КНД 36-3.48, 1КНД 36-3.59. Опалубочный чертеж 1.020-1/87.2-3 К032 Колонна 1КНО 36-1.22, 1КНО 36-1.26, 1КНО 36-1.31, 1КНО 36-1.32, 1КНО 36-1.43. Опалубочный чертеж 1.020-1/87.2-3 К033 Колонна 1КНО 36-1.48, 1КНО 36-1.59. Опалубочный чертеж 1.020-1/87.2-3 К034 Колонна 1КНО 36-2.26, 1КНО 36-2.31, 1КНО 36-2.32, 1КНО 36-2.43. Опалубочный чертеж 1.020-1/87.2-3 К035 Колонна 1КНО 36-2.48, 1КНО 36-2.53, 1КНО 36-2.59. Опалубочный чертеж 1.020-1/87.2-3 К036 Колонна 1КНО 36-3.26, 1КНО 36-3.31, 1КНО 36-3.39, 1КНО 36-3.43. Опалубочный чертеж 1.020-1/87.2-3 К037 Колонна 1КНО 36-3.48, 1КНО 36-3.59. Опалубочный чертеж 1.020-1/87.2-3 К038 Колонна 1КН 36-22, 1КН 36-26, 1КН 36-31, 1КН 36-32, 1КН 36-43. Опалубочный чертеж 1.020-1/87.2-3 К039 Колонна 1КН 36-59. Опалубочный чертеж 1.020-1/87.2-3 К040 Колонна 3КНД 36-1.22, 3КНД 36-1.26, 3КНД 36-1.32. Опалубочный чертеж 1.020-1/87.2-3 К041 Колонна 3КНД 36-1.32/36. Опалубочный чертеж 1.020-1/87.2-3 К042 Колонна 3КНД 36-1.32/39, 3КНД 36-1.36/45, 3КНД 36-1.41/48,3КНД 36-1.43/53. Опалубочный чертеж 1.020-1/87.2-3 К043 Колонна 3КНД 36-1.59. Опалубочный чертеж 1.020-1/87.2-3 К044 Колонна 3КНД 36-2.32. Опалубочный чертеж 1.020-1/87.2-3 К045 Колонна 3КНД 36-2.32/39. Опалубочный чертеж 1.020-1/87.2-3 К046 Колонна 3КНД 36-2.32/47, 3КНД 36-2.38/53. Опалубочный чертеж 1.020-1/87.2-3 К047 Колонна 3КНД 36-2.59. Опалубочный чертеж 1.020-1/87.2-3 К048 Колонна 3КНД 36-3.34/49, 3КНД 36-3.43/59. Опалубочный чертеж 1.020-1/87.2-3 К049 Колонна 3КНО 36-1.22, 3КНО 36-1.26, 3КНО 36-1.32, 3КНО 36-2.26, 3КНО 36-2.32. Опалубочный чертеж 1.020-1/87.2-3 К050 Колонна 3КНО 36-1.32/34, 3КНО 36-1.33/37, 3КНО 36-1.41/43, 3КНО 36-2.32/34. Опалубочный чертеж 1.020-1/87.2-3 К051 Колонна 3КНО 36-1.34/40, 3КНО 36-2.38/48. Опалубочный чертеж 1.020-1/87.2-3 К052 Колонна 3КНО 36-2.33/38. Опалубочный чертеж 1.020-1/87.2-3 К053 Колонна 3КНО 36-2.33/43. Опалубочный чертеж 1.020-1/87.2-3 К054 Колонна 3КНО 36-3.32. Опалубочный чертеж 1.020-1/87.2-3 К055 Колонна 3КНО 36-3.32/36. Опалубочный чертеж 1.020-1/87.2-3 К056 Колонна 3КН 36-22, 3КН 36-26, 3КН 36-32. Опалубочный чертеж 1.020-1/87.2-3 К057 Колонна 3КН 36-32/34, 3КН 36-32/36, 3КН 36-33/37, 3КН 36-41/43, 3КН 36-33/38, 3КН 36-32/42. Опалубочный чертеж 1.020-1/87.2-3 К058 Колонна 3КН 36-34/40, 3КН 36-33/43, 3КН 33-38/48. Опалубочный чертеж 1.020-1/87.2-3 К059 Колонна 1КБД 36-1.22, 1КБД 36-2.22. Опалубочный чертеж 1.020-1/87.2-3 К060 Колонна 1КБД 36-3.26. Опалубочный чертеж 1.020-1/87.2-3 К061 Колонна 1КБО 36-1.22, 1КБО 36-2.22. Опалубочный чертеж 1.020-1/87.2-3 К062 Колонна 1КБО 36-3.26. Опалубочный чертеж 1.020-1/87.2-3 К063 Колонна 1КБ 36-22. Опалубочный чертеж 1.020-1/87.2-3 К064 Колонна 2КБД 36-1.22, 2КБД 36-2.22. Опалубочный чертеж 1.020-1/87.2-3 К065 Колонна 2КБД 36-3.26. Опалубочный чертеж 1.020-1/87.2-3 К066 Колонна 2КБО 36-1.22, 2КБО 36-2.22. Опалубочный чертеж 1.020-1/87.2-3 К067 Колонна 2КБО 36-3.26. Опалубочный чертеж 1.020-1/87.2-3 К068 Колонна 2КБ 36-22, 2КБ 36-26. Опалубочный чертеж 1.020-1/87.2-3 К069 Колонна 3КБД 36-1.22, 3КБД 36-2.26. Опалубочный чертеж 1.020-1/87.2-3 К070 Колонна 3КБД 36-3.32/42. Опалубочный чертеж 1.020-1/87.2-3 К071 Колонна 3КБО 36-1.22, 3КБО 36-2.22. Опалубочный чертеж 1.020-1/87.2-3 К072 Колонна 3КБО 36-3.26. Опалубочный чертеж 1.020-1/87.2-3 К073 Колонна 3КБ 36-22, 3КБ 36-26, 3КБ 36-32. Опалубочный чертеж 1.020-1/87.2-3 К074 Колонна 3КВД 36-3.26. Опалубочный чертеж 1.020-1/87.2-3 К075 Колонна 3КВО 36-3.26. Опалубочный чертеж 1.020-1/87.2-3 К076 Колонна 3КСД 36-3.32, 3КСД 36-3.38. Опалубочный чертеж 1.020-1/87.2-3 К077 Колонна 3КСО 36-3.32, 3КСО 36-3.33. Опалубочный чертеж 1.020-1/87.2-3 РС Ведомость расхода стали на элемент, кг 1.020-1/87.2-3 У Узлы 1.020-1/87.2-3 ТО Техническое описание 1.020-1/87.2-3 К001 Колонна 1КВД 36-1.22, 1КВД 36-2.22. Опалубочный чертеж 1.020-1/87.2-3 К002 Колонна 1КВД 36-3.36. Опалубочный чертеж 1.020-1/87.2-3 К003 Колонна 1КВО 36-1.22, 1КВО 36-2.22. Опалубочный чертеж 1.020-1/87.2-3 К004 Колонна 1КВО 36-3.26. Опалубочный чертеж 1.020-1/87.2-3 К005 Колонна 1КВ 36-22, 1КВ 36-26,1 КВ 36-32. Опалубочный чертеж 1.020-1/87.2-3 К006 Колонна 2КВД 36-1.22, 2КВД 36-2.22. Опалубочный чертеж 1.020-1/87.2-3 К007 Колонна 2КВД 36-3.26. Опалубочный чертеж 1.020-1/87.2-3 К008 Колонна 2КВО 36-1.22, 2КВО 36-2.22. Опалубочный чертеж 1.020-1/87.2-3 К009 Колонна 2КВО 36-3.26. Опалубочный чертеж 1.020-1/87.2-3 К010 Колонна 2КВ 36-22, 2КВ 36-26. Опалубочный чертеж 1.020-1/87.2-3 К011 Колонна 3КВД 36-1.22, 3КВД 36-2.26. Опалубочный чертеж 1.020-1/87.2-3 К012 Колонна 3КВД 36-1.22, 3КВО 36-2.22. Опалубочный чертеж 1.020-1/87.2-3 К013 Колонна 3КВ 36-22, 3КВ 36-26. Опалубочный чертеж 1.020-1/87.2-3 К014 Колонна 1КСД 36-1.22, 1КСД 36-1.26, 1КСД 36-1.32, 1КСД 36-1.38, 1КСД 36-1.43. Опалубочный чертеж 1.020-1/87.2-3 К015 Колонна 1КСД 36-2.22, 1КСД 36-2.26, 1КСД 36-2.32,1КСД 36-2.38, 1КСД 36-2.43. Опалубочный чертеж 1.020-1/87.2-3 К016 Колонна 1КСД 36-3.26, 1КСД 36-3.32, 1КСД 36-3.38, 1КСД 36-3.43. Опалубочный чертеж 1.020-1/87.2-3 К017 Колонна 1КСО 36-1.22, 1КСО 36-1.26, 1КСО 36-1.32, 1КСО 36-1.38, 1КСО 36-1.43. Опалубочный чертеж 1.020-1/87.2-3 К018 Колонна 1КСО 36-2.22, 1КСО 36-2.26, 1КСО 36-2.32, 1КСО 36-2.38, 1КСО 36-2.43. Опалубочный чертеж 1.020-1/87.2-3 К019 Колонна 1КСО 36-3.26, 1КСО 36-3.32, 1КСО 36-3.38, 1КСО 36-3.43. Опалубочный чертеж 1.020-1/87.2-3 К020 Колонна 1КС 36-22, 1КС 36-26, 1КС 36-32, 1КС 36-38, 1КС 36-43. Опалубочный чертеж 1.020-1/87.2-3 К021 Колонна 3КСД 36-1.22, 3КСД 36-1.26, 3КСД 36-1.32, 3КСД 36-1.36, 3КСД 36-1.41, 3КСД 36-1.43. Опалубочный чертеж 1.020-1/87.2-3 К022 Колонна 3КСД 36-2.32, 3КСД 36-2.38, 3КСД 36-2.43. Опалубочный чертеж 1.020-1/87.2-3 К023 Колонна 3КСО 36-1.22, 3КСО 36-1.26, 3КСО 36-1.32, 3КСО 36-1.34. Опалубочный чертеж 1.020-1/87.2-3 К024 Колонна 3КСО 36-2.26, 3КСО 36-2.32, 3КСО 36-2.33. Опалубочный чертеж 1.020-1/87.2-3 К025 Колонна 3КС 36-22, 3КС 36-26, 3КС 36-32, 3КС 36-33, 3КС 46-34. Опалубочный чертеж 1.020-1/87.2-3 К026 Колонна 1КНД 36-1.26, 1КНД 36-1.31, 1КНД 36-1.32,1КНД 36-1.43. Опалубочный чертеж 1.020-1/87.2-3 К027 Колонна 1КНД 36-1.48, 1КНД 36-1.59. Опалубочный чертеж 1.020-1/87.2-3 К028 Колонна 1КНД 36-2.26, 1КНД 36-2.31, 1КНД 36-2.32, 1КНД 36-2.43. Опалубочный чертеж 1.020-1/87.2-3 К029 Колонна 1КНД 36-2.48, 1КНД 36-2.53, 1КНД 36-2.59 1.020-1/87.2-3 К030 Колонна 1КНД 36-2.48, 1КНД 36-3.32, 1КНД 36-3.38, 1КНД 36-3.43. Опалубочный чертеж 1.020-1/87.2-3 К031 Колонна 1КНД 36-3.48, 1КНД 36-3.59. Опалубочный чертеж 1.020-1/87.2-3 К032 Колонна 1КНО 36-1.22, 1КНО 36-1.26, 1КНО 36-1.31, 1КНО 36-1.32, 1КНО 36-1.43. Опалубочный чертеж 1.020-1/87.2-3 К033 Колонна 1КНО 36-1.48, 1КНО 36-1.59. Опалубочный чертеж 1.020-1/87.2-3 К034 Колонна 1КНО 36-2.26, 1КНО 36-2.31, 1КНО 36-2.32, 1КНО 36-2.43. Опалубочный чертеж 1.020-1/87.2-3 К035 Колонна 1КНО 36-2.48, 1КНО 36-2.53, 1КНО 36-2.59. Опалубочный чертеж 1.020-1/87.2-3 К036 Колонна 1КНО 36-3.26, 1КНО 36-3.31, 1КНО 36-3.39, 1КНО 36-3.43. Опалубочный чертеж 1.020-1/87.2-3 К037 Колонна 1КНО 36-3.48, 1КНО 36-3.59. Опалубочный чертеж 1.020-1/87.2-3 К038 Колонна 1КН 36-22, 1КН 36-26, 1КН 36-31, 1КН 36-32, 1КН 36-43. Опалубочный чертеж 1.020-1/87.2-3 К039 Колонна 1КН 36-59. Опалубочный чертеж 1.020-1/87.2-3 К040 Колонна 3КНД 36-1.22, 3КНД 36-1.26, 3КНД 36-1.32. Опалубочный чертеж 1.020-1/87.2-3 К041 Колонна 3КНД 36-1.32/36. Опалубочный чертеж 1.020-1/87.2-3 К042 Колонна 3КНД 36-1.32/39, 3КНД 36-1.36/45, 3КНД 36-1.41/48,3КНД 36-1.43/53. Опалубочный чертеж 1.020-1/87.2-3 К043 Колонна 3КНД 36-1.59. Опалубочный чертеж 1.020-1/87.2-3 К044 Колонна 3КНД 36-2.32. Опалубочный чертеж 1.020-1/87.2-3 К045 Колонна 3КНД 36-2.32/39. Опалубочный чертеж 1.020-1/87.2-3 К046 Колонна 3КНД 36-2.32/47, 3КНД 36-2.38/53. Опалубочный чертеж 1.020-1/87.2-3 К047 Колонна 3КНД 36-2.59. Опалубочный чертеж 1.020-1/87.2-3 К048 Колонна 3КНД 36-3.34/49, 3КНД 36-3.43/59. Опалубочный чертеж 1.020-1/87.2-3 К049 Колонна 3КНО 36-1.22, 3КНО 36-1.26, 3КНО 36-1.32, 3КНО 36-2.26, 3КНО 36-2.32. Опалубочный чертеж 1.020-1/87.2-3 К050 Колонна 3КНО 36-1.32/34, 3КНО 36-1.33/37, 3КНО 36-1.41/43, 3КНО 36-2.32/34. Опалубочный чертеж 1.020-1/87.2-3 К051 Колонна 3КНО 36-1.34/40, 3КНО 36-2.38/48. Опалубочный чертеж 1.020-1/87.2-3 К052 Колонна 3КНО 36-2.33/38. Опалубочный чертеж 1.020-1/87.2-3 К053 Колонна 3КНО 36-2.33/43. Опалубочный чертеж 1.020-1/87.2-3 К054 Колонна 3КНО 36-3.32. Опалубочный чертеж 1.020-1/87.2-3 К055 Колонна 3КНО 36-3.32/36. Опалубочный чертеж 1.020-1/87.2-3 К056 Колонна 3КН 36-22, 3КН 36-26, 3КН 36-32. Опалубочный чертеж 1.020-1/87.2-3 К057 Колонна 3КН 36-32/34, 3КН 36-32/36, 3КН 36-33/37, 3КН 36-41/43, 3КН 36-33/38, 3КН 36-32/42. Опалубочный чертеж 1.020-1/87.2-3 К058 Колонна 3КН 36-34/40, 3КН 36-33/43, 3КН 33-38/48. Опалубочный чертеж 1.020-1/87.2-3 К059 Колонна 1КБД 36-1.22, 1КБД 36-2.22. Опалубочный чертеж 1.020-1/87.2-3 К060 Колонна 1КБД 36-3.26. Опалубочный чертеж 1.020-1/87.2-3 К061 Колонна 1КБО 36-1.22, 1КБО 36-2.22. Опалубочный чертеж 1.020-1/87.2-3 К062 Колонна 1КБО 36-3.26. Опалубочный чертеж 1.020-1/87.2-3 К063 Колонна 1КБ 36-22. Опалубочный чертеж 1.020-1/87.2-3 К064 Колонна 2КБД 36-1.22, 2КБД 36-2.22. Опалубочный чертеж 1.020-1/87.2-3 К065 Колонна 2КБД 36-3.26. Опалубочный чертеж 1.020-1/87.2-3 К066 Колонна 2КБО 36-1.22, 2КБО 36-2.22. Опалубочный чертеж 1.020-1/87.2-3 К067 Колонна 2КБО 36-3.26. Опалубочный чертеж 1.020-1/87.2-3 К068 Колонна 2КБ 36-22, 2КБ 36-26. Опалубочный чертеж 1.020-1/87.2-3 К069 Колонна 3КБД 36-1.22, 3КБД 36-2.26. Опалубочный чертеж 1.020-1/87.2-3 К070 Колонна 3КБД 36-3.32/42. Опалубочный чертеж 1.020-1/87.2-3 К071 Колонна 3КБО 36-1.22, 3КБО 36-2.22. Опалубочный чертеж 1.020-1/87.2-3 К072 Колонна 3КБО 36-3.26. Опалубочный чертеж 1.020-1/87.2-3 К073 Колонна 3КБ 36-22, 3КБ 36-26, 3КБ 36-32. Опалубочный чертеж 1.020-1/87.2-3 К074 Колонна 3КВД 36-3.26. Опалубочный чертеж 1.020-1/87.2-3 К075 Колонна 3КВО 36-3.26. Опалубочный чертеж 1.020-1/87.2-3 К076 Колонна 3КСД 36-3.32, 3КСД 36-3.38. Опалубочный чертеж 1.020-1/87.2-3 К077 Колонна 3КСО 36-3.32, 3КСО 36-3.33. Опалубочный чертеж 1.020-1/87.2-3 РС Ведомость расхода стали на элемент, кг 1.020-1/87.2-3 У Узлы |
| Разработан: | ЦНИИпромзданий КиевЗНИИЭП НИИЖБ |
| Утверждён: | 12.12.1990 Госстрой СССР (Государственный комитет Совета Министров СССР по делам строительства) (USSR Gosstroy А4-15) |
| Расположен в: |

















































































































