Информационная система
«Ёшкин Кот»

Скачать базу одним архивом
Скачать обновления
История создания базы
Карта сайта

Скачать Серия 1.231.8-12 Перегородки из гипсовых плит по ГОСТ 6428-83 для общественных зданий. Рабочие чертежи

Дата актуализации: 10.08.2017

Серия 1.231.8-12

Перегородки из гипсовых плит по ГОСТ 6428-83 для общественных зданий. Рабочие чертежи

Обозначение: Серия 1.231.8-12
Обозначение англ: Series 1.231.8-12
Статус:не определен законодательством
Название рус.:Перегородки из гипсовых плит по ГОСТ 6428-83 для общественных зданий. Рабочие чертежи
Дата добавления в базу:01.09.2013
Дата актуализации:05.05.2017
Дата введения:30.06.2003
Область применения:Альбом содержит перечень типов перегородок, монтажные узлы, комплектующие элементы и детали, рекомендации по заделке швов и методам отделки лицевых поверхностей
Оглавление:1.231.8-12-0.00 ПЗ Пояснительная записка
1.231.8-12-1.00 Пример устройства перегородок типа ПГП-1 и ПГП-3 из гипсовых плит 667х500 мм с примыканием к плитам перекрытий
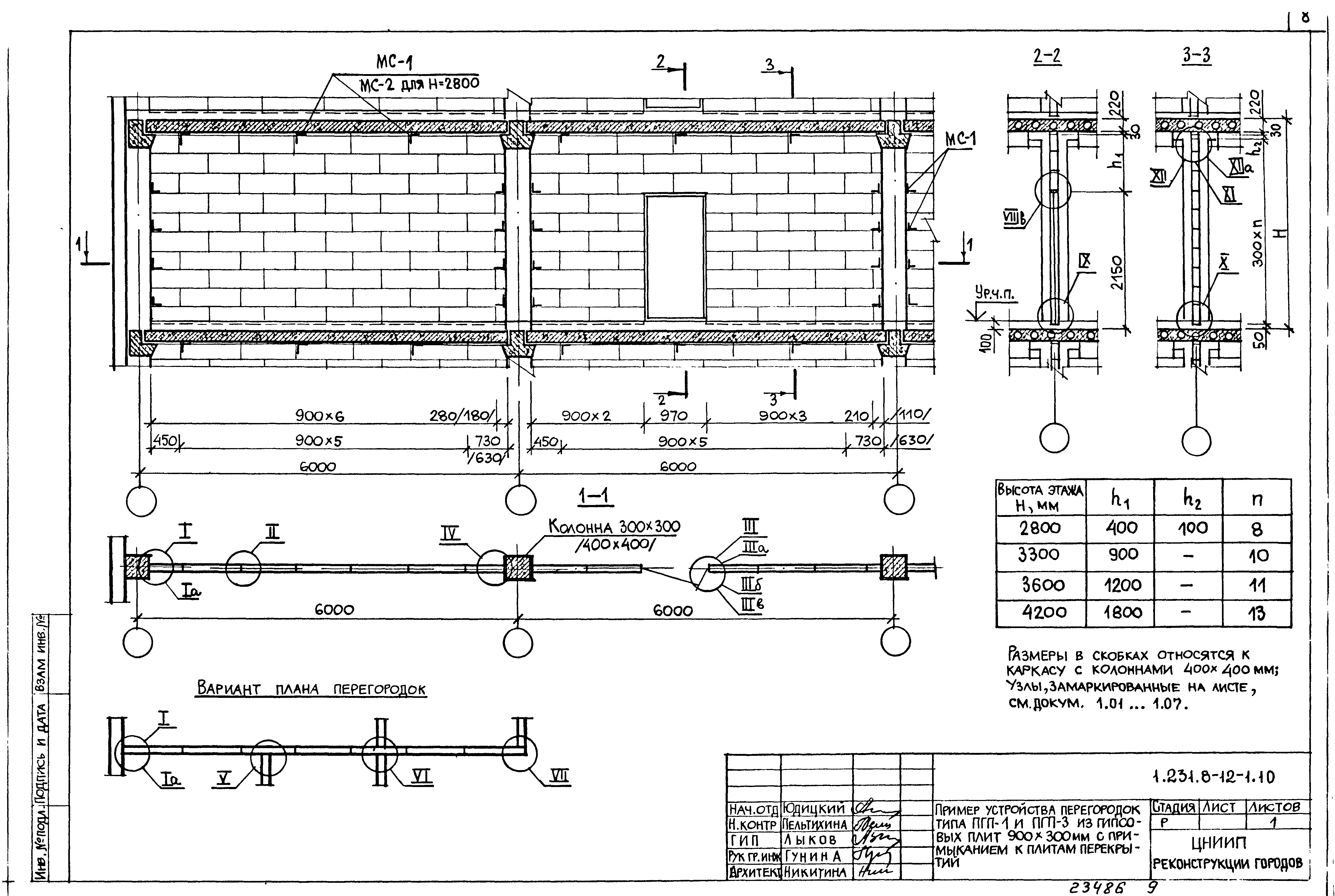
1.231.8-12-1.10 Пример устройства перегородок типа ПГП-1 и ПГП-3 из гипсовых плит 900х300 мм с примыканием к плитам перекрытий
1.231.8-12-1.20 Пример устройства перегородок типа ПГП-1 и ПГП-3 из гипсовых плит 800х400 мм с примыканием к плитам перекрытий
1.231.8-12-1.30 Пример устройства перегородок типа ПГП-1 и ПГП-3 из гипсовых плит 667х500 мм с примыканием к ригелям
1.231.8-12-1.40 Пример устройства перегородок типа ПГП-1 и ПГП-3 из гипсовых плит 900х300 мм с примыканием к ригелям
1.231.8-12-1.50 Пример устройства перегородок типа ПГП-1 и ПГП-3 из гипсовых плит 800х400 мм с примыканием к ригелям
1.231.8-12-1.01 Узлы I, II для перегородок типа ПГП-1 и ПГП-3
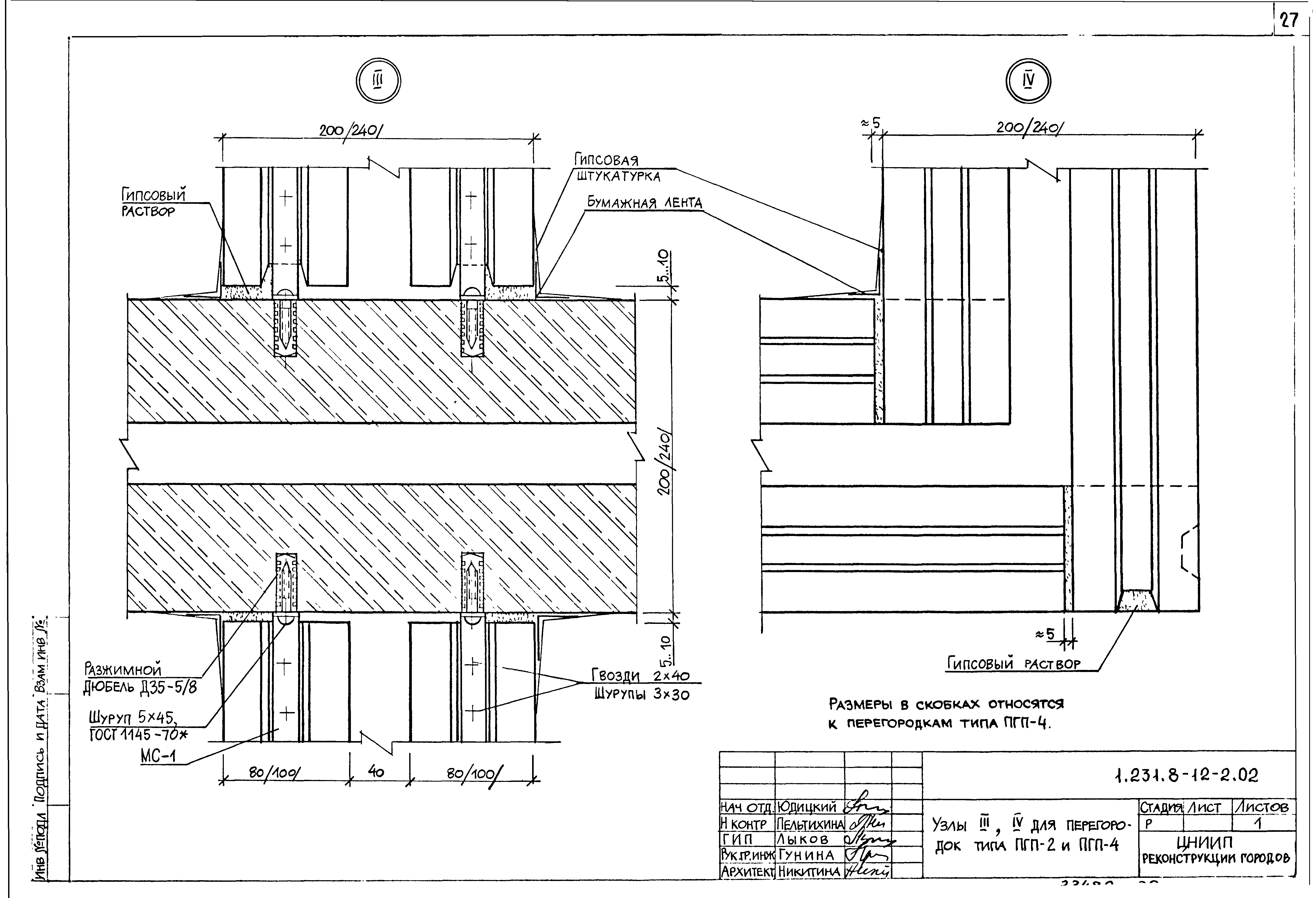
1.231.8-12-1.02 Узлы III, IIIa, IIIб для перегородок типа ПГП-1 и ПГП-3
1.231.8-12-1.03 Узлы Iа, IIIв, IV для перегородок типа ПГП-1 и ПГП-3
1.231.8-12-1.04 Узлы V, VI, VII для перегородок типа ПГП-1 и ПГП-3
1.231.8-12-1.05 Узлы VIII, VIIIa, IX, X для перегородок типа ПГП-1 и ПГП-3
1.231.8-12-1.06 Узлы XI, XIIa, XII для перегородок типа ПГП-1 и ПГП-3
1.231.8-12-1.07 Узлы VIIIa, VIIIв для перегородок типа ПГП-1
1.231.8-12-2.00 Пример устройства перегородок типа ПГП-2 и ПГП-4 из гипсовых плит 667х500 мм с примыканием к плитам перекрытий
1.231.8-12-2.10 Пример устройства перегородок типа ПГП-2 и ПГП-4 из гипсовых плит 900х300 мм с примыканием к плитам перекрытий
1.231.8-12-2.20 Пример устройства перегородок типа ПГП-2 и ПГП-4 из гипсовых плит 800х400 мм с примыканием к плитам перекрытий
1.231.8-12-2.30 Пример устройства перегородок типа ПГП-2 и ПГП-4 из гипсовых плит 667х500 мм с примыканием к ригелям
1.231.8-12-2.40 Пример устройства перегородок типа ПГП-2 и ПГП-4 из гипсовых плит 900х300 мм с примыканием к ригелям
1.231.8-12-2.50 Пример устройства перегородок типа ПГП-2 и ПГП-4 из гипсовых плит 800х400 мм с примыканием к ригелям
1.231.8-12-2.01 Узлы I, II для перегородок типа ПГП-2 и ПГП-4
1.231.8-12-2.02 Узлы III, IV для перегородок типа ПГП-2 и ПГП-4
1.231.8-12-2.03 Узлы V… VII для перегородок типа ПГП-2 и ПГП-4
1.231.8-12-2.04 Узлы Va, Vб, VIII для перегородок типа ПГП-2 и ПГП-4
1.231.8-12-2.05 Узлы IX, X, для перегородок типа ПГП-2 и ПГП-4
1.231.8-12-2.06 Узлы Vв для перегородок типа ПГП-2 и ПГП-4
1.231.8-12-3.00 Примеры установки анкерных изделий
1.231.8-12-4.00 Крючок
1.231.8-12-5.00 Дюбель разжимной
1.231.8-12-6.00 Соединительные изделия МС-1 и МС-2
1.231.8-12-7.00 Холодногнутый профиль
1.231.8-12-8.00 Соединительное изделие МС-3
1.231.8-12-9.00 Номенклатура пазогребневых гипсовых плит по ГОСТ 6428-83
Разработан: ЦНИИП реконструкции городов Госкомархитектуры
Утверждён:31.07.1987 Госкомархитектура (ЭС-7-2880)
Издан: ЦИТП Госстроя СССР (CITP, Gosstroy (USSR) 1989 г. )
Расположен в:Техническая документация Строительство Справочные документы Типовые строительные конструкции, изделия и узлы Общероссийский строительный каталог Строительные конструкции, изделия и узлы зданий и сооружений для всех видов строительства Конструкции, изделия и узлы зданий Ограждающие конструкции Перегородки
Нормативные ссылки:
Серия 1.231.8-12Серия 1.231.8-12Серия 1.231.8-12Серия 1.231.8-12Серия 1.231.8-12Серия 1.231.8-12Серия 1.231.8-12Серия 1.231.8-12Серия 1.231.8-12Серия 1.231.8-12Серия 1.231.8-12Серия 1.231.8-12Серия 1.231.8-12Серия 1.231.8-12Серия 1.231.8-12Серия 1.231.8-12Серия 1.231.8-12Серия 1.231.8-12Серия 1.231.8-12Серия 1.231.8-12Серия 1.231.8-12Серия 1.231.8-12Серия 1.231.8-12Серия 1.231.8-12Серия 1.231.8-12Серия 1.231.8-12Серия 1.231.8-12Серия 1.231.8-12Серия 1.231.8-12Серия 1.231.8-12Серия 1.231.8-12Серия 1.231.8-12Серия 1.231.8-12Серия 1.231.8-12Серия 1.231.8-12Серия 1.231.8-12Серия 1.231.8-12Серия 1.231.8-12

© 2013 Ёшкин Кот :-) Карта сайта