Информационная система
«Ёшкин Кот»

Скачать базу одним архивом
Скачать обновления
История создания базы
Карта сайта

Скачать Серия 1.231.8-11 Выпуск 1. Перегородки из гипсовых изделий. Рабочие чертежи

Дата актуализации: 10.08.2017

Серия 1.231.8-11

Выпуск 1. Перегородки из гипсовых изделий. Рабочие чертежи

Обозначение: Серия 1.231.8-11
Обозначение англ: Series 1.231.8-11
Статус:не определен законодательством
Название рус.:Выпуск 1. Перегородки из гипсовых изделий. Рабочие чертежи
Дата добавления в базу:01.09.2013
Дата актуализации:05.05.2017
Дата введения:01.07.1988
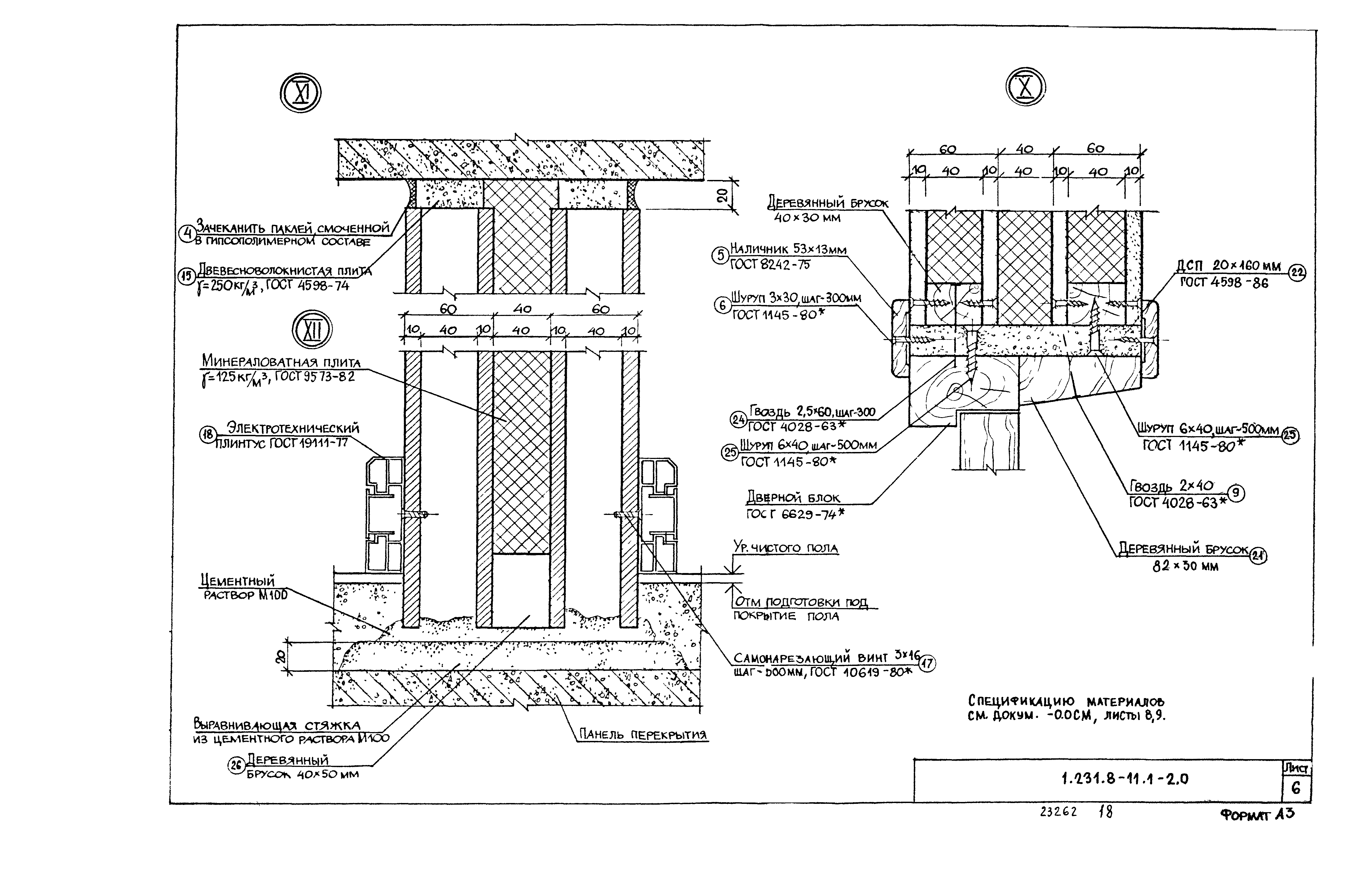
Область применения:Перегородки из экструзионных гипсоволокнистых панелей предназначены для применения в проектах общественных зданий (предприятия общественного питания, торговля, бытового обслуживания, школ, учебных, лечебных и детских учреждений), а также в гостиницах, административно-бытовых зданиях и других с высотами этажей 2,8; 3,3; 3,6 и 4,2 м
Оглавление:1.231.8-11.1-0.0 ПЗ Пояснительная записка
1.231.8-11.1-1.0 Перегородка ПГЭ-1 (фрагмент). Узлы I… XIV. Пример
1.231.8-11.1-2.0 Перегородка ПГЭ-2м (фрагмент). Узлы I… XIII. Пример
1.231.8-11.1-0.1 Соединительная деталь СД-1
1.231.8-11.1-0.2 Панель перегородочная гипсоволокнистая экструзионная
1.231.8-11.1-0.0 СМ Спецификация материалов на монтажные узлы
Разработан: ЦНИИЭП торгово-бытовых зданий и туристских комплексов
Утверждён:06.07.1988 Госкомархитектура Госстроя СССР (Goskomarkhitektura, USSR Gosstroy 190)
Издан: ЦИТП Госстроя СССР (CITP, Gosstroy (USSR) 1988 г. )
Расположен в:Техническая документация Экология СТРОИТЕЛЬНЫЕ МАТЕРИАЛЫ И СТРОИТЕЛЬСТВО Строительные элементы Стены. Перегородки. Фасады Строительство Справочные документы Типовые строительные конструкции, изделия и узлы Общероссийский строительный каталог Строительные конструкции, изделия и узлы зданий и сооружений для всех видов строительства Конструкции, изделия и узлы зданий Ограждающие конструкции Перегородки
Нормативные ссылки:
Серия 1.231.8-11Серия 1.231.8-11Серия 1.231.8-11Серия 1.231.8-11Серия 1.231.8-11Серия 1.231.8-11Серия 1.231.8-11Серия 1.231.8-11Серия 1.231.8-11Серия 1.231.8-11Серия 1.231.8-11Серия 1.231.8-11Серия 1.231.8-11Серия 1.231.8-11Серия 1.231.8-11Серия 1.231.8-11Серия 1.231.8-11Серия 1.231.8-11Серия 1.231.8-11Серия 1.231.8-11Серия 1.231.8-11Серия 1.231.8-11Серия 1.231.8-11Серия 1.231.8-11Серия 1.231.8-11Серия 1.231.8-11Серия 1.231.8-11Серия 1.231.8-11Серия 1.231.8-11Серия 1.231.8-11

© 2013 Ёшкин Кот :-) Карта сайта