| ||||||||||||||||||||||||||||||
Скачать Серия 1.231.9-10 Выпуск 8. Перегородки поэлементной сборки из гипсоволокнистых листов на металлическом каркасе. Рабочие чертежиДата актуализации: 10.08.2017
|
| Обозначение: | Серия 1.231.9-10 |
| Обозначение англ: | Series 1.231.9-10 |
| Статус: | не определен законодательством |
| Название рус.: | Выпуск 8. Перегородки поэлементной сборки из гипсоволокнистых листов на металлическом каркасе. Рабочие чертежи |
| Дата добавления в базу: | 01.09.2013 |
| Дата актуализации: | 05.05.2017 |
| Дата введения: | 01.07.1987 |
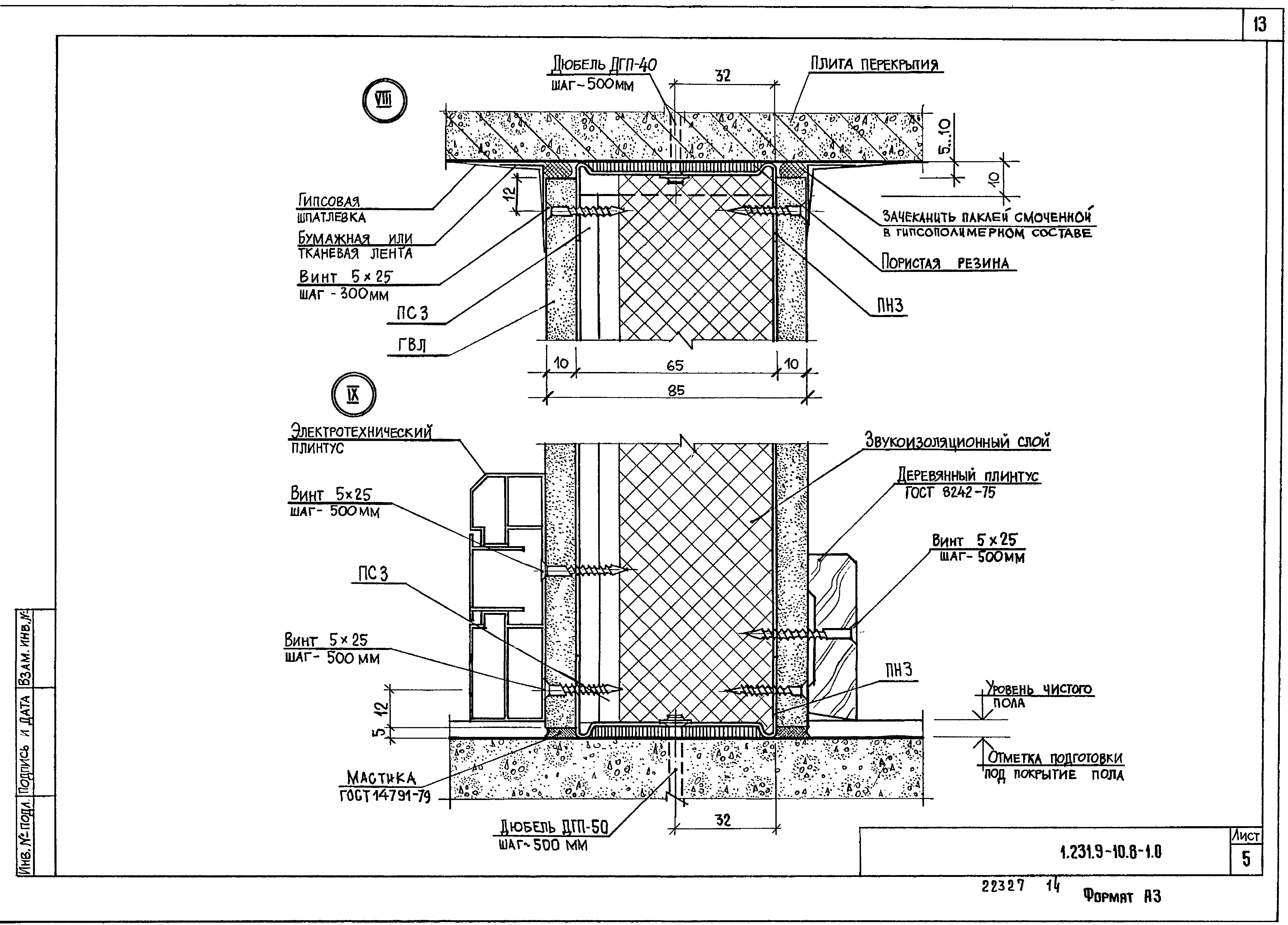
| Область применения: | Выпуск содержит перечень типов перегородок, монтажные узлы, комплектующие элементы и детали, рекомендации по заделке швов и методам отделки лицевых поверхностей |
| Оглавление: | 1.231.9-10.8-0.0 ПЗ Пояснительная записка 1.231.9-10.8-0.0 ВД Ведомость рассылочных документов 1.231.9-10.8-1.0 Перегородка ПГВМ-1м/ ПГВМ-1/ (Фрагмент). Узлы I -IX, IIa, VIIIa. Пример 1.231.9-10.8-2.0 Перегородка ПГВМ-3м/ ПГВМ-3/ (Фрагмент). Узлы I -XIV. Пример 1.231.9-10.8-3.0 Устройство деформационного шва в перегородке ПГВМ-1м 1.231.9-10.8-4.0 Устройство деформационного шва в перегородке ПГВМ-2м 1.231.9-10.8-5.0 Примеры установки анкера падающего, анкера проходного, крючка и дюбеля разжимного 1.231.9-10.8-0.1 Крючок 1.231.9-10.8-0.2 Анкер проходной 1.231.9-10.8-0.3 Анкер падающий 1.231.9-10.8-0.4 Дюбель разжимной 1.231.9-10.8-0.5 Профиль стойка ПС3… ПС7 1.231.9-10.8-0.6 Профиль направляющий ПН1, ПН3… ПН7 1.231.9-10.8-0.7 Дюбель-гвоздь пистолетный 1.231.9-10.8-0.8 Винт |
| Разработан: | ЦНИИЭП торгово-бытовых зданий и туристских комплексов |
| Утверждён: | 19.05.1987 Государственный комитет по гражданскому строительству и архитектуре при Госстрое СССР (161) |
| Расположен в: | |
| Нормативные ссылки: |
|





























