Скачать Серия 1.031.9-1 Выпуск 1. Перегородки из гипсокартонных и гипсоволокнистых листов. Рабочие чертежиДата актуализации: 10.08.2017 Серия 1.031.9-1
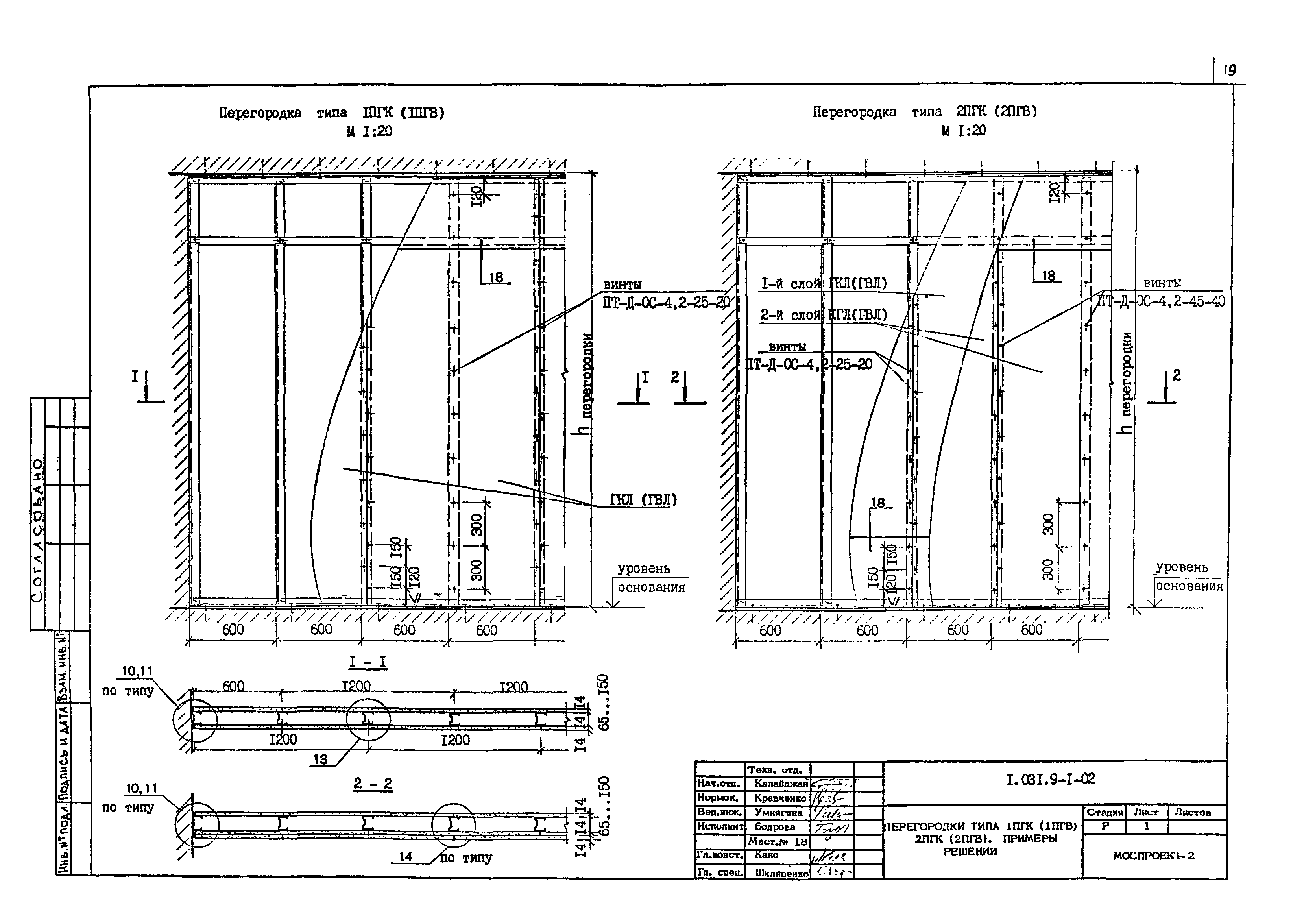
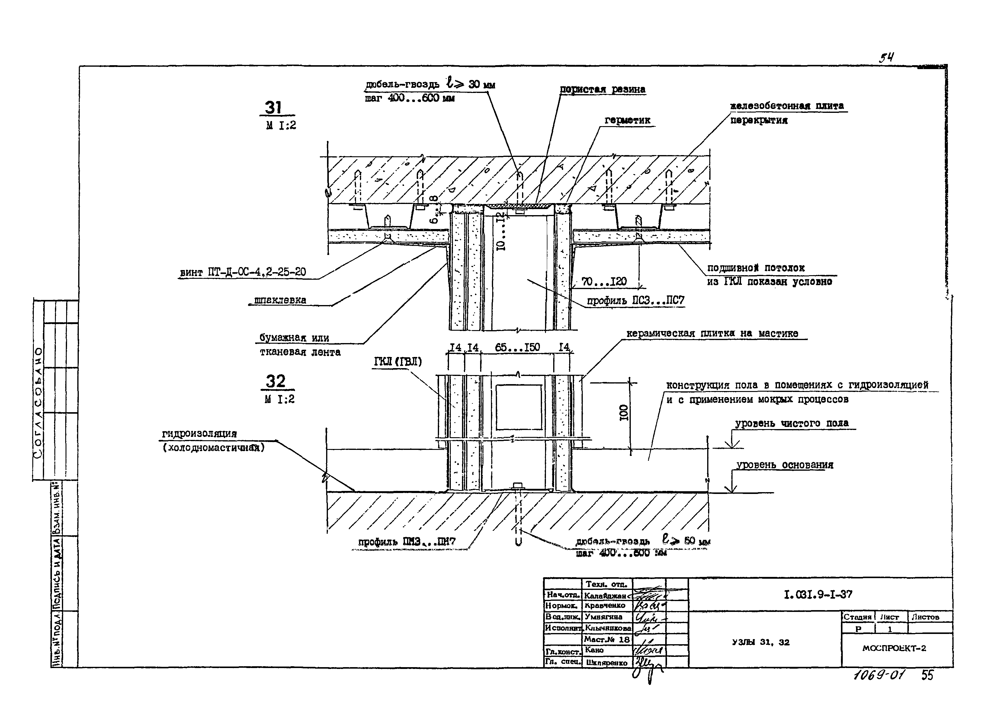
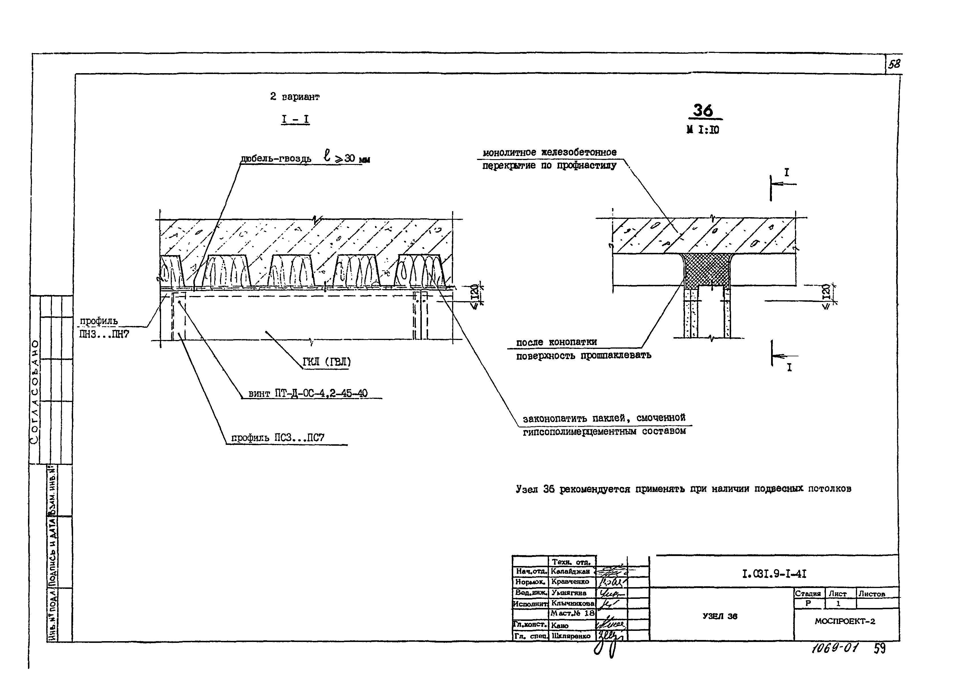
Выпуск 1. Перегородки из гипсокартонных и гипсоволокнистых листов. Рабочие чертежиОбозначение: | Серия 1.031.9-1 | Обозначение англ: | Series 1.031.9-1 | Статус: | не определен законодательством | Название рус.: | Выпуск 1. Перегородки из гипсокартонных и гипсоволокнистых листов. Рабочие чертежи | Дата добавления в базу: | 01.09.2013 | Дата актуализации: | 05.05.2017 | Дата введения: | 15.03.1993 | Область применения: | Настоящая серия содержит рабочие чертежи перегородок поэлементной сборки из гипсокартонных и гипсоволокнистых листов на металлическом каркасе для жилых, административных и производственных зданий с высотой этажа 2,8, 3,0, 3,3, 3,6, 4,2, 4,8, 6,0, 7,2 м | Оглавление: | 1.031.9-1-ПЗ Пояснительная записка 1.031.9-1-01 Схема металлического каркаса перегородок 1.031.9-1-02 Перегородки типа 1ПГК (1ПГВ), 2ПГК (2ПГВ). Примеры решения 1.031.9-1-03 Перегородки типа 3ПГК (3ПГВ), 4ПГК (4ПГВ), 5ПГК (5ПГВ), 6ПГК (6ПГВ). Примеры решения 1.031.9-1-04 Перегородки типа 7ПГК (7ПГВ), 8ПГК (8ПГВ). Примеры решения 1.031.9-1-05 Обшивка типа 1.ОГВ (1.ОГВ), 2ОГК (2ОГВ). Примеры решения 1.031.9-1-06 Сопряжение перегородок из ГКЛ (ГВЛ) в плане. Примеры решения 1.031.9-1-07 Примыкание перегородок из ГКЛ (ГВЛ) в плане. Примеры решения 1.031.9-1-08 Устройство дверного проема и крепление декоративных листовых материалов. Примеры решений 1.031.9-1-09 Крепление электрических коробок в перегородках. Примеры решений 1.031.9-1-10 Сопряжение перегородок с инженерными коммуникационными трассами. Примеры решений 1.031.9-1-11 Устройство сантехнических шахт из ограждений перегородок типа 2.ОГК (2.ОГВ). Примеры решений 1.031.9-1-12 Монтажный план ограждения шахты. Примеры решений 1.031.9-1-13 Устройство лючка в перегородках. Пример решения 1.031.9-1-14 Устройство отверстий в перегородках. Пример решения 1.031.9-1-15 Крепление кронштейнов под раковины в перегородках. Примеры решений 1.031.9-1-16 Крепление вешалки и кассеты пожарного крана. Примеры решений 1.031.9-1-17 Крепление электротехнического оборудования при массе до 5 кг. Примеры решений 1.031.9-1-18 Крепление электротехнического оборудования при массе до 150 кг и более 150 кг. Примеры решений 1.031.9-1-19 Установка встроенного и навесного шкафа. Примеры решений 1.031.9-1-20 Конструкция перегородок из ГКЛ (ГВЛ) с в = 60 д5. Примеры решения. 1.031.9-1-21 Крепление рулонных звукоизоляционных материалов. Пример решения 1.031.9-1-22 Узлы 1, 2 , 3 1.031.9-1-23 Узлы 4, 5, 6 1.031.9-1-24 Узлы 7, 8, 9 1.031.9-1-25 Узлы 10, 11 1.031.9-1-26 Узлы 12, 13 1.031.9-1-27 Узлы 14, 15 1.031.9-1-28 Узел 16 (варианты I и II) 1.031.9-1-29 Узел 16 (варианты III и IV) 1.031.9-1-30 Узлы 17, 18 1.031.9-1-31 Узлы 19, 20 1.031.9-1-32 Узлы 21, 22 1.031.9-1-33 Узлы 23, 24 1.031.9-1-34 Узлы 25, 26 1.031.9-1-35 Узлы 27, 28 1.031.9-1-36 Узлы 29, 30 1.031.9-1-37 Узлы 31, 33 1.031.9-1-38 Узел 33 1.031.9-1-39 Узел 34 1.031.9-1-40 Узел 35 1.031.9-1-41 Узел 36 1.031.9-1-42 Узел 37 1.031.9-1-43 Узел 38 1.031.9-1-44 Узел 39 1.031.9-1-45 Узлы 40, 41 1.031.9-1-46 Узлы 42, 43, 44, 45 1.031.9-1-47 Узлы 46, 47 1.031.9-1-48 Узлы 48, 49 1.031.9-1-49 Узлы 50, 51 1.031.9-1-50 Узел 52 1.031.9-1-51 Узлы 53, 54 1.031.9-1-52 Узлы 55, 56, 57 1.031.9-1-53 Узлы 58, 59, 60 1.031.9-1-54 Узлы 61, 62, 63 1.031.9-1-55 Пример оформления архитектурного плана с перегородками из ГКЛ (ГВЛ) 1.031.9-1-НИ Номенклатура изделий 1.031.9-1-СМ1 Расход материалов на 100 м квадрат. Перегородки 1.031.9-1-СМ2 Расход материалов на один элемент "добавок" 1.031.9-1-СМ3 Справочный материал | Разработан: | Моспроект-2 Главмосархитектуры
| Утверждён: | 22.10.1992 Госстрой СССР (Государственный комитет Совета Министров СССР по делам строительства) (USSR Gosstroy )
| Расположен в: |
| Нормативные ссылки: | |
                                                                                          
|