Информационная система
«Ёшкин Кот»

Скачать базу одним архивом
Скачать обновления
История создания базы
Карта сайта

Скачать Серия 1.134-2 Выпуск 6. Блоки внутренних стен из легких бетонов толщиной 16 и 20 см для жилых зданий высотой 1 - 4 этажа и общественных зданий высотой 1 - 3 этажа. Опалубочные чертежи, армирование

Дата актуализации: 10.08.2017

Серия 1.134-2

Выпуск 6. Блоки внутренних стен из легких бетонов толщиной 16 и 20 см для жилых зданий высотой 1 - 4 этажа и общественных зданий высотой 1 - 3 этажа. Опалубочные чертежи, армирование

Обозначение: Серия 1.134-2
Обозначение англ: Series 1.134-2
Статус:действует
Название рус.:Выпуск 6. Блоки внутренних стен из легких бетонов толщиной 16 и 20 см для жилых зданий высотой 1 - 4 этажа и общественных зданий высотой 1 - 3 этажа. Опалубочные чертежи, армирование
Дата добавления в базу:01.09.2013
Дата актуализации:05.05.2017
Область применения:В настоящем выпуске приведены опалубочные чертежи блоков внутренних стен из легкого бетона толщиной 16 и 20 см. Изготовление блоков внутренних стен 20 см предусматривается по поточно-агрегатной технологии, а блоки толщиной 16 см изготавливаются в кассетных установках
Оглавление:1.134-2.6.01.000 ТО Техническое описание
1.134-2.6.01.000 Блоки внутренних стен
1.134-2.6.01.000 СБ Блоки внутренних стен. Сборочный чертеж
1.134-2.6.01.000 СБ Блоки внутренних стен. Узлы
1.134-2.6.02.000 Блоки внутренних стен
1.134-2.6.02.000 СБ Блоки внутренних стен. Сборочный чертеж
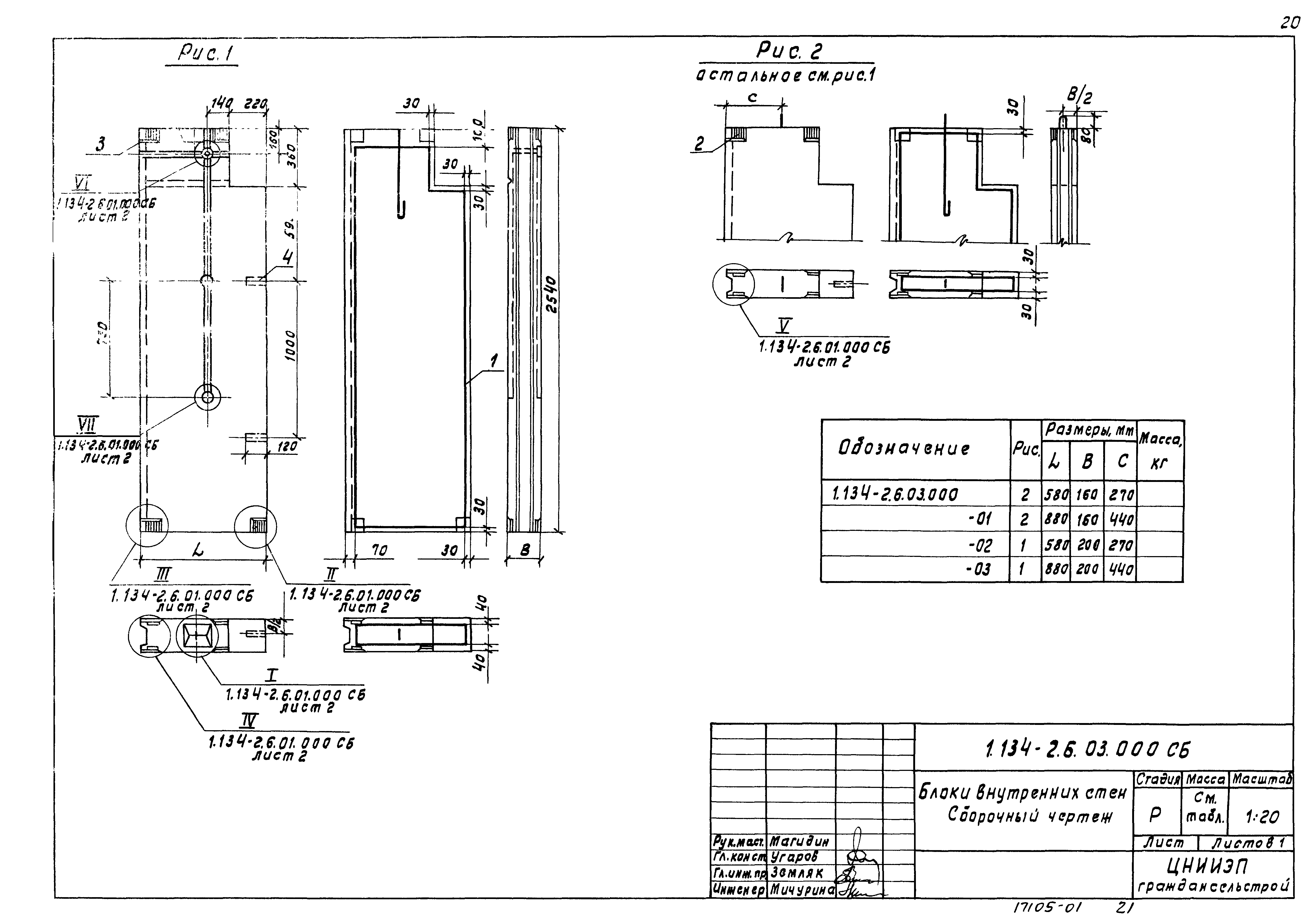
1.134-2.6.03.000 Блоки внутренних стен
1.134-2.6.03.000 СБ Блоки внутренних стен. Сборочный чертеж
1.134-2.6.04.000 Блоки внутренних стен
1.134-2.6.04.000 СБ Блоки внутренних стен. Сборочный чертеж
1.134-2.6.05.000 Блоки внутренних стен
1.134-2.6.05.000 СБ Блоки внутренних стен. Сборочный чертеж
1.134-2.6.06.000 Перемычечные блоки внутренних стен
1.134-2.6.06.000 СБ Перемычечные блоки внутренних стен. Сборочный чертеж
1.134-2.6.07.000 Блоки внутренних стен доборные
1.134-2.6.07.000 СБ Блоки внутренних стен доборные. Сборочный чертеж
1.134-2.6.08.000 Блоки внутренних стен лестничных клеток
1.134-2.6.08.000 СБ Блоки внутренних стен лестничных клеток. Сборочный чертеж
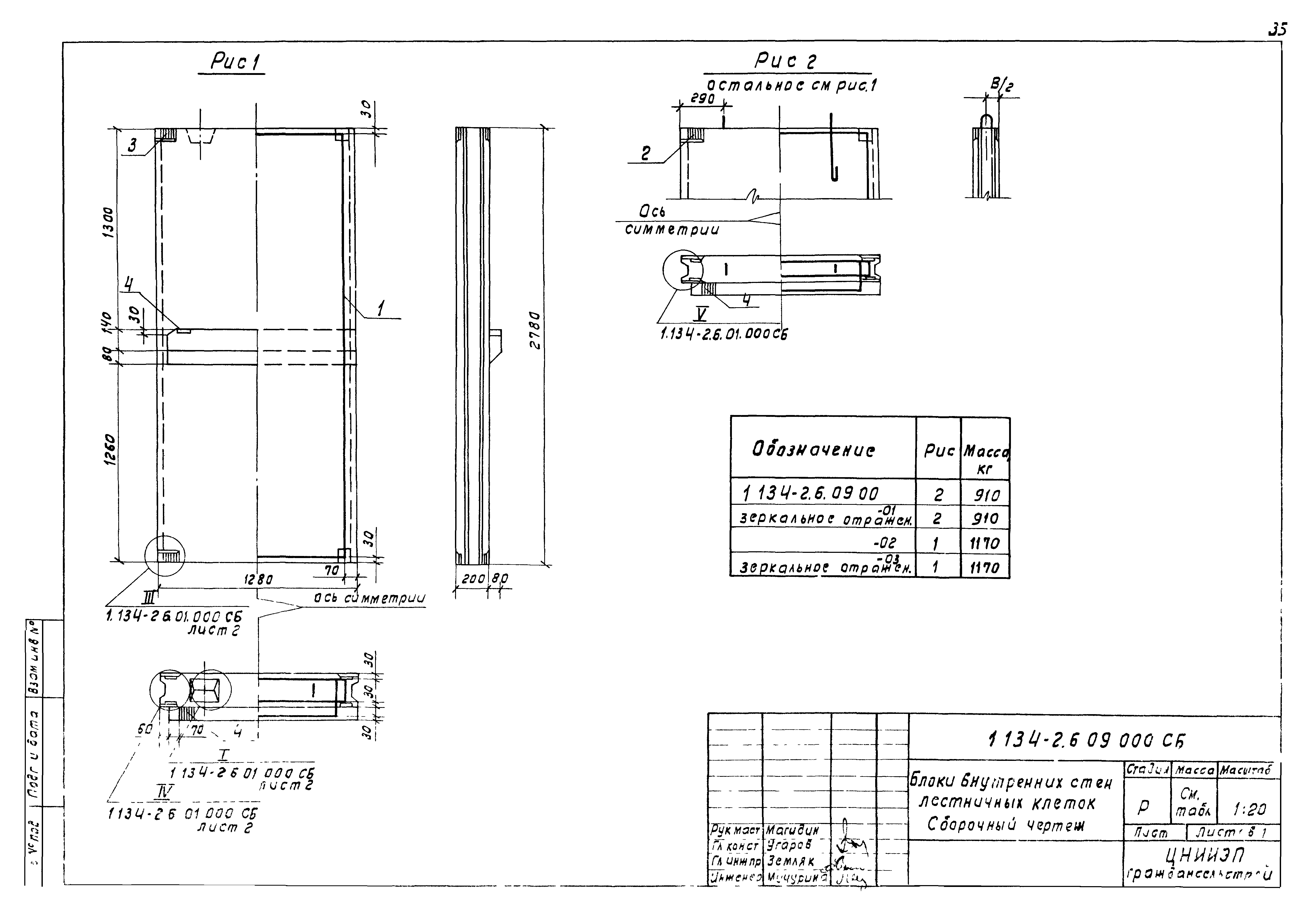
1.134-2.6.09.000 Блоки внутренних стен лестничных клеток
1.134-2.6.09.000 СБ Блоки внутренних стен лестничных клеток. Сборочный чертеж
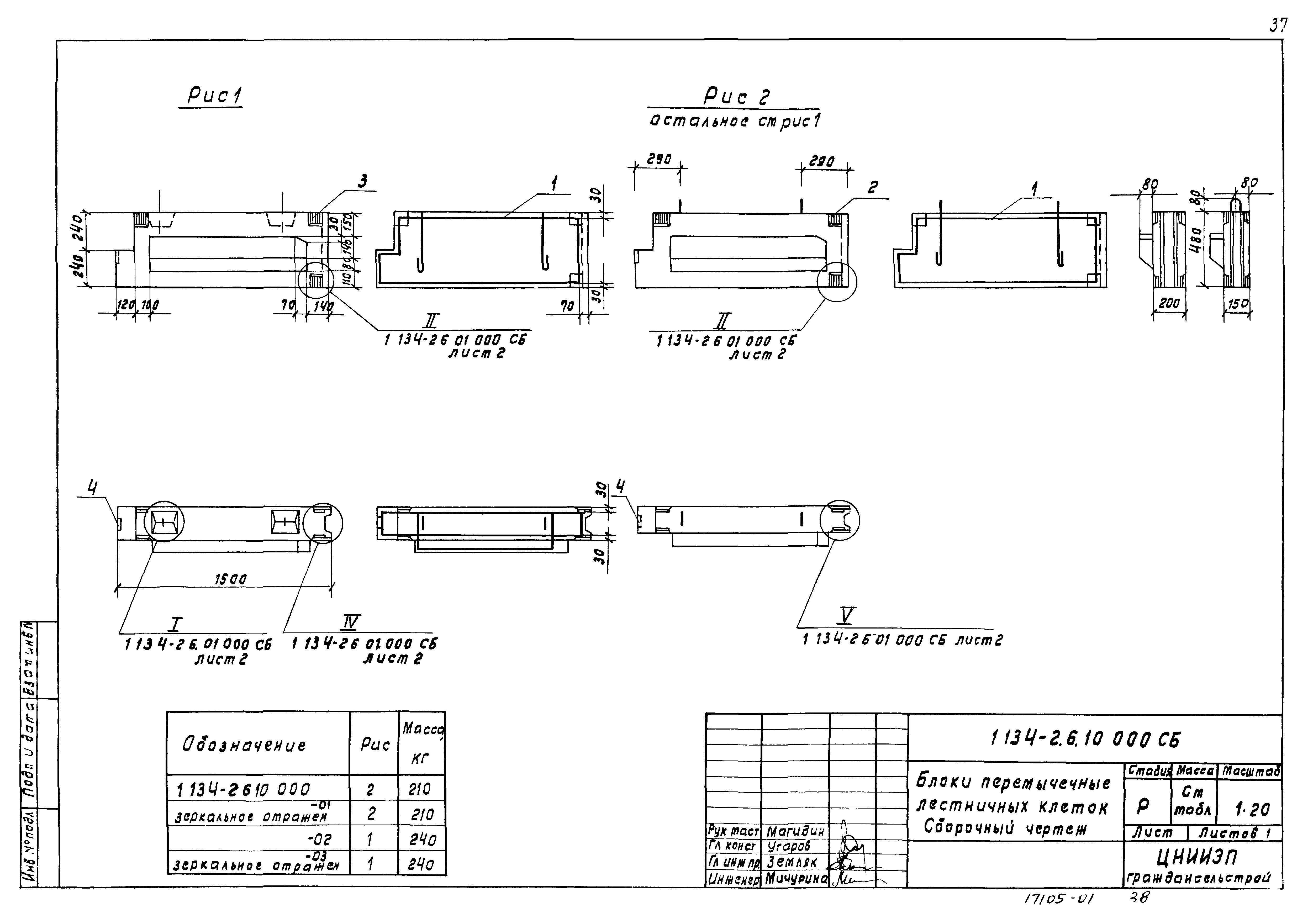
1.134-2.6.10.000 Блоки перемычные лестничных клеток
1.134-2.6.10.000 СБ Блоки перемычные лестничных клеток. Сборочный чертеж
1.134-2.6.11.000 Блоки перемычные лестничных клеток
1.134-2.6.11.000 СБ Блоки перемычные лестничных клеток. Сборочный чертеж
1.134-2.6.01.000 ВС Выборка стали
Разработан: ЦНИИЭП граждансельстрой
Утверждён:04.03.1981 Госгражданстрой (Gosgrazhdanstroy 83)
Издан: ЦИТП Госстроя СССР (CITP, Gosstroy (USSR) 1981 г. )
Расположен в:Техническая документация Строительство Справочные документы Типовые строительные конструкции, изделия и узлы Общероссийский строительный каталог Строительные конструкции, изделия и узлы зданий и сооружений для всех видов строительства Конструкции, изделия и узлы зданий Ограждающие конструкции Блоки
Нормативные ссылки:
Серия 1.134-2Серия 1.134-2Серия 1.134-2Серия 1.134-2Серия 1.134-2Серия 1.134-2Серия 1.134-2Серия 1.134-2Серия 1.134-2Серия 1.134-2Серия 1.134-2Серия 1.134-2Серия 1.134-2Серия 1.134-2Серия 1.134-2Серия 1.134-2Серия 1.134-2Серия 1.134-2Серия 1.134-2Серия 1.134-2Серия 1.134-2Серия 1.134-2Серия 1.134-2Серия 1.134-2Серия 1.134-2Серия 1.134-2Серия 1.134-2Серия 1.134-2Серия 1.134-2Серия 1.134-2Серия 1.134-2Серия 1.134-2Серия 1.134-2Серия 1.134-2Серия 1.134-2Серия 1.134-2Серия 1.134-2Серия 1.134-2Серия 1.134-2Серия 1.134-2Серия 1.134-2Серия 1.134-2Серия 1.134-2Серия 1.134-2Серия 1.134-2Серия 1.134-2

© 2013 Ёшкин Кот :-) Карта сайта