Информационная система
«Ёшкин Кот»

Скачать базу одним архивом
Скачать обновления
История создания базы
Карта сайта

Скачать Серия 1.134.1-15 Выпуск 1-4. Блоки укрупненные толщиной 200 мм. Рабочие чертежи

Дата актуализации: 10.08.2017

Серия 1.134.1-15

Выпуск 1-4. Блоки укрупненные толщиной 200 мм. Рабочие чертежи

Обозначение: Серия 1.134.1-15
Обозначение англ: Series 1.134.1-15
Статус:не определен законодательством
Название рус.:Выпуск 1-4. Блоки укрупненные толщиной 200 мм. Рабочие чертежи
Дата добавления в базу:01.09.2013
Дата актуализации:05.05.2017
Дата введения:15.03.1992
Область применения:Разработка рабочих чертежей укрупненных блоков внутренних стен для жилых зданий высотой 1 - 4 этажа и общественных зданий высотой 1 - 3 этажа
Оглавление:1.134.1-15.1-4-ТТ Технические требования
1.134.1-15.1-4-НИ Номенклатура изделий
1.134.1-15.1-4-РС Ведомость расхода стали
1.134.1-15.1-4-01 Блоки внутренних стен БВ 12.20.20-12,5т; БВ 18.20.20-12,5т; БВ 36.20.20-12,5т
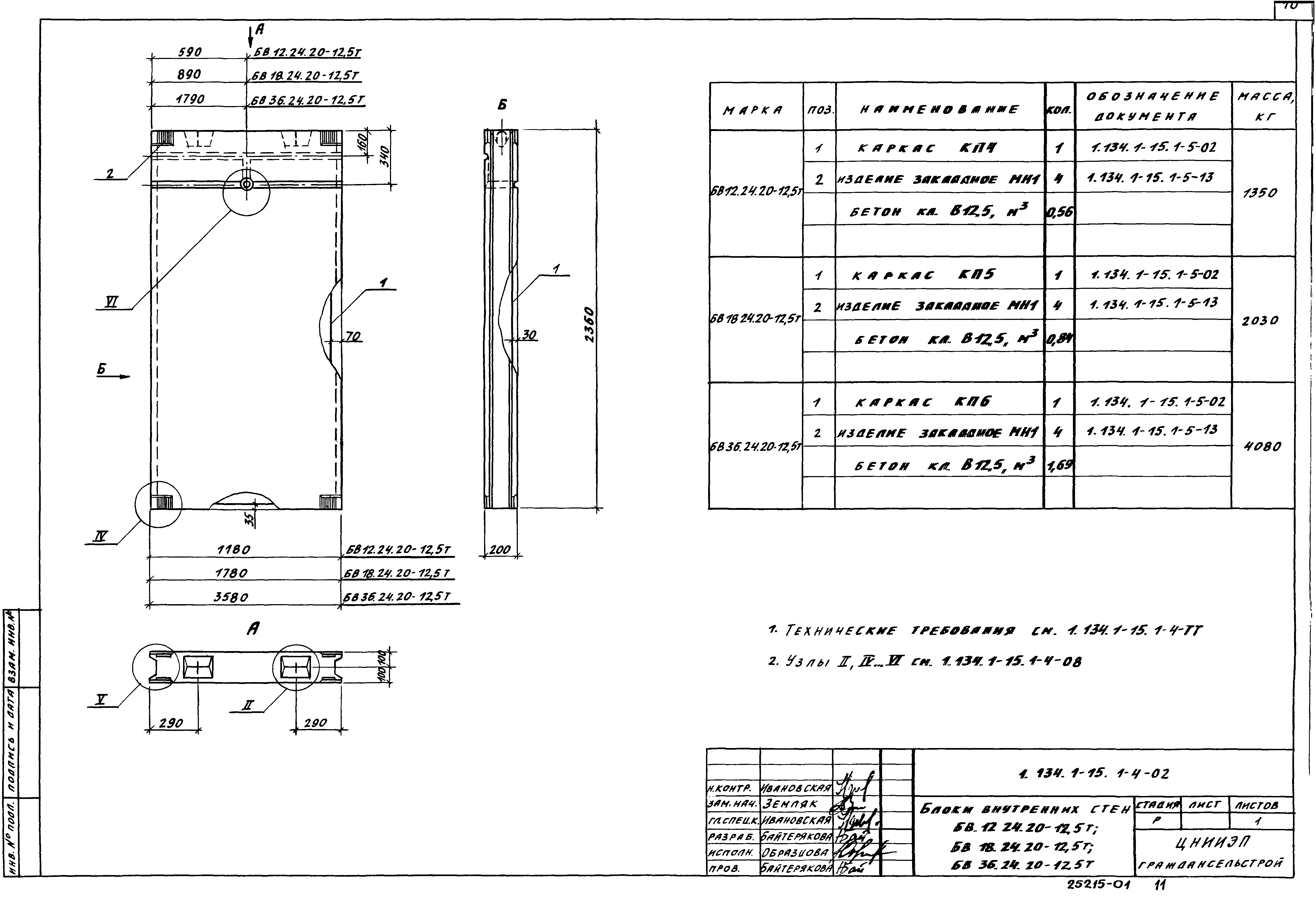
1.134.1-15.1-4-02 Блоки внутренних стен БВ 12.24.20-12,5т; БВ 18.24.20-12,5т; БВ 36.24.20-12,5т
1.134.1-15.1-4-03 Блоки внутренних стен БВ 12.26.20-12,5т; БВ 18.26.20-12,5т; БВ 36.26.20-12,5т
1.134.1-15.1-4-04 Блоки внутренних стен БВ 12.20.20-12,5т-3
1.134.1-15.1-4-05 Блоки внутренних стен БВ 12.24.20-12,5т-3
1.134.1-15.1-4-06 Блоки внутренних стен БВ 12.20.20-12,5т-4
1.134.1-15.1-4-07 Блоки внутренних стен БВ 12.24.20-12,5т-4
1.134.1-15.1-4-08 Узел I… VII
Разработан: ЦНИИЭПгражданстрой
Утверждён:08.10.1991 Госкомархитектура (136)
Издан: АПП ЦИТП (1991 г. )
Расположен в:Техническая документация Строительство Справочные документы Типовые строительные конструкции, изделия и узлы Общероссийский строительный каталог Строительные конструкции, изделия и узлы зданий и сооружений для всех видов строительства Конструкции, изделия и узлы зданий Ограждающие конструкции Блоки
Нормативные ссылки:
Серия 1.134.1-15Серия 1.134.1-15Серия 1.134.1-15Серия 1.134.1-15Серия 1.134.1-15Серия 1.134.1-15Серия 1.134.1-15Серия 1.134.1-15Серия 1.134.1-15Серия 1.134.1-15Серия 1.134.1-15Серия 1.134.1-15Серия 1.134.1-15Серия 1.134.1-15Серия 1.134.1-15Серия 1.134.1-15Серия 1.134.1-15Серия 1.134.1-15

© 2013 Ёшкин Кот :-) Карта сайта