Информационная система
«Ёшкин Кот»

Скачать базу одним архивом
Скачать обновления
История создания базы
Карта сайта

Скачать Серия 1.138-3 Выпуск 1. Карнизные плиты для жилых зданий высотой 1-4 этажа и общественных зданий высотой 1-3 этажа

Дата актуализации: 10.08.2017

Серия 1.138-3

Выпуск 1. Карнизные плиты для жилых зданий высотой 1-4 этажа и общественных зданий высотой 1-3 этажа

Обозначение: Серия 1.138-3
Обозначение англ: Series 1.138-3
Статус:действует
Название рус.:Выпуск 1. Карнизные плиты для жилых зданий высотой 1-4 этажа и общественных зданий высотой 1-3 этажа
Дата добавления в базу:01.09.2013
Дата актуализации:05.05.2017
Область применения:Рабочие чертежи железобетонных карнизных плит предназначенных для изготовления предприятиями строительной промышленности и применения в строительстве 1 - 4 этажных жилых и 1 - 3 этажных общественных сельских зданий
Оглавление:Содержание
Пояснительная записка
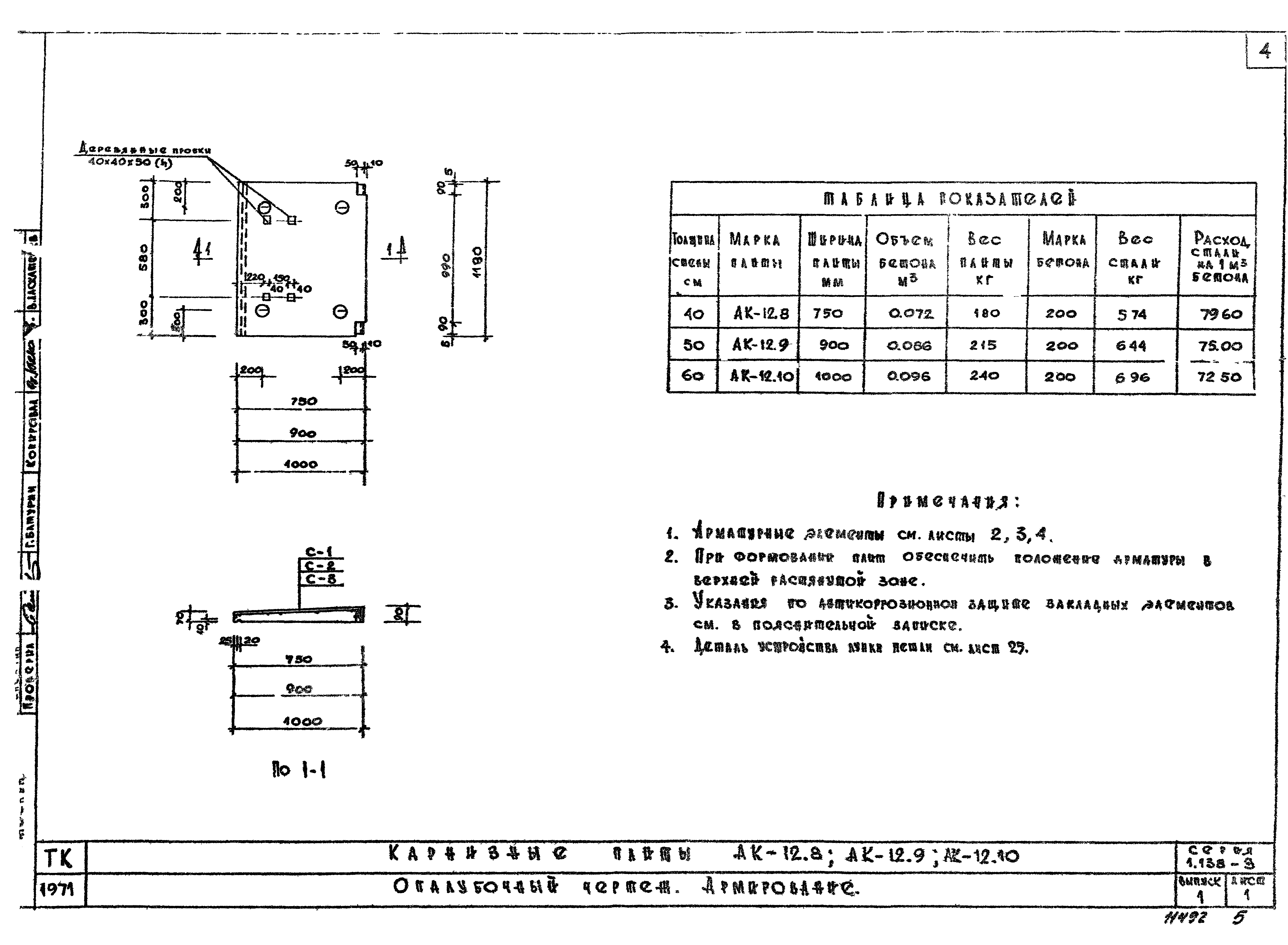
Карнизные плиты АК-12.8; АК-12.9; АК-12.10
   Опалубочный чертеж. Армирование
   Арматурные элементы ЛК-12.8
   Арматурные элементы ЛК-12.9
   Арматурные элементы ЛК-12.10
Карнизные плиты АК-15.8; АК-15.9; АК-15.10
   Опалубочный чертеж. Армирование
   Арматурные элементы ЛК-15.8
   Арматурные элементы ЛК-15.9
   Арматурные элементы ЛК-15.10
Карнизные плиты АК-18.8; АК-18.9; АК-18.10
   Опалубочный чертеж. Армирование
   Арматурные элементы ЛК-18.8
   Арматурные элементы ЛК-18.9
   Арматурные элементы ЛК-18.10
Карнизные плиты АК-21.8; АК-21.9; АК-21.10
   Опалубочный чертеж. Армирование
   Арматурные элементы ЛК-21.8
   Арматурные элементы ЛК-21.9
   Арматурные элементы ЛК-21.10
Карнизные плиты АК-23.8п; АК-24.9п; АК-25.10п
   Опалубочный чертеж. Армирование
   Арматурные элементы ЛК-23.8п
   Арматурные элементы ЛК-24.9п
   Арматурные элементы ЛК-25.9п
Карнизные плиты АК-23.8л; АК-24.9л; АК-25.10л
   Опалубочный чертеж. Армирование
   Арматурные элементы ЛК-23.8л
   Арматурные элементы ЛК-24.9л
   Арматурные элементы ЛК-25.9л
Карнизные плиты
   Деталь "А"; Деталь М-1; Петля П-1; Деталь устройства лунки петли П-1
Разработан: ЦНИИЭПгражданстрой
Утверждён:14.12.1971 Госкомитет по гражданскому строительству и архитектуре при Госстрое СССР (National Committee on Nonindustrial Construction and Architecture, USSR Gosstroy 221)
Расположен в:Техническая документация Строительство Справочные документы Типовые строительные конструкции, изделия и узлы Общероссийский строительный каталог Строительные конструкции, изделия и узлы зданий и сооружений для всех видов строительства Конструкции, изделия и узлы зданий Ограждающие конструкции Стены наружные Панели и блоки парапетов. Карнизы
Нормативные ссылки:
Серия 1.138-3Серия 1.138-3Серия 1.138-3Серия 1.138-3Серия 1.138-3Серия 1.138-3Серия 1.138-3Серия 1.138-3Серия 1.138-3Серия 1.138-3Серия 1.138-3Серия 1.138-3Серия 1.138-3Серия 1.138-3Серия 1.138-3Серия 1.138-3Серия 1.138-3Серия 1.138-3Серия 1.138-3Серия 1.138-3Серия 1.138-3Серия 1.138-3Серия 1.138-3Серия 1.138-3Серия 1.138-3Серия 1.138-3Серия 1.138-3Серия 1.138-3

© 2013 Ёшкин Кот :-) Карта сайта