Информационная система
«Ёшкин Кот»

Скачать базу одним архивом
Скачать обновления
История создания базы
Карта сайта

Скачать Серия 1.138-11с Выпуск 1-4. Панели групп С-НПТ1 и С-НПТ4 толщиной 350 мм. Рабочие чертежи

Дата актуализации: 10.08.2017

Серия 1.138-11с

Выпуск 1-4. Панели групп С-НПТ1 и С-НПТ4 толщиной 350 мм. Рабочие чертежи

Обозначение: Серия 1.138-11с
Обозначение англ: Series 1.138-11с
Статус:не определен законодательством
Название рус.:Выпуск 1-4. Панели групп С-НПТ1 и С-НПТ4 толщиной 350 мм. Рабочие чертежи
Дата добавления в базу:01.09.2013
Дата актуализации:05.05.2017
Дата введения:06.06.1980
Область применения:Панели легкобетонные предназначены для применения в 4 - 5 этажных домах в районах с сейсмичностью 7 - 9 баллов, а также высотой 9 этажей в районах с сейсмичностью 7 и 8 баллов и 7 этажей при 9 баллов
Оглавление:Содержание
Пояснительная записка
Номенклатура панелей
Панели С-НПТ1-38.28.35; С-НПТ1л-38.28.35
Арматурный блок АНТП1-38.28.35; АНТП1л-38.28.35
Панели С-НПТ1-44.28.35; С-НПТ1л-44.28.35
Арматурный блок АНТП1-44.28.35; АНТП1л-44.28.35
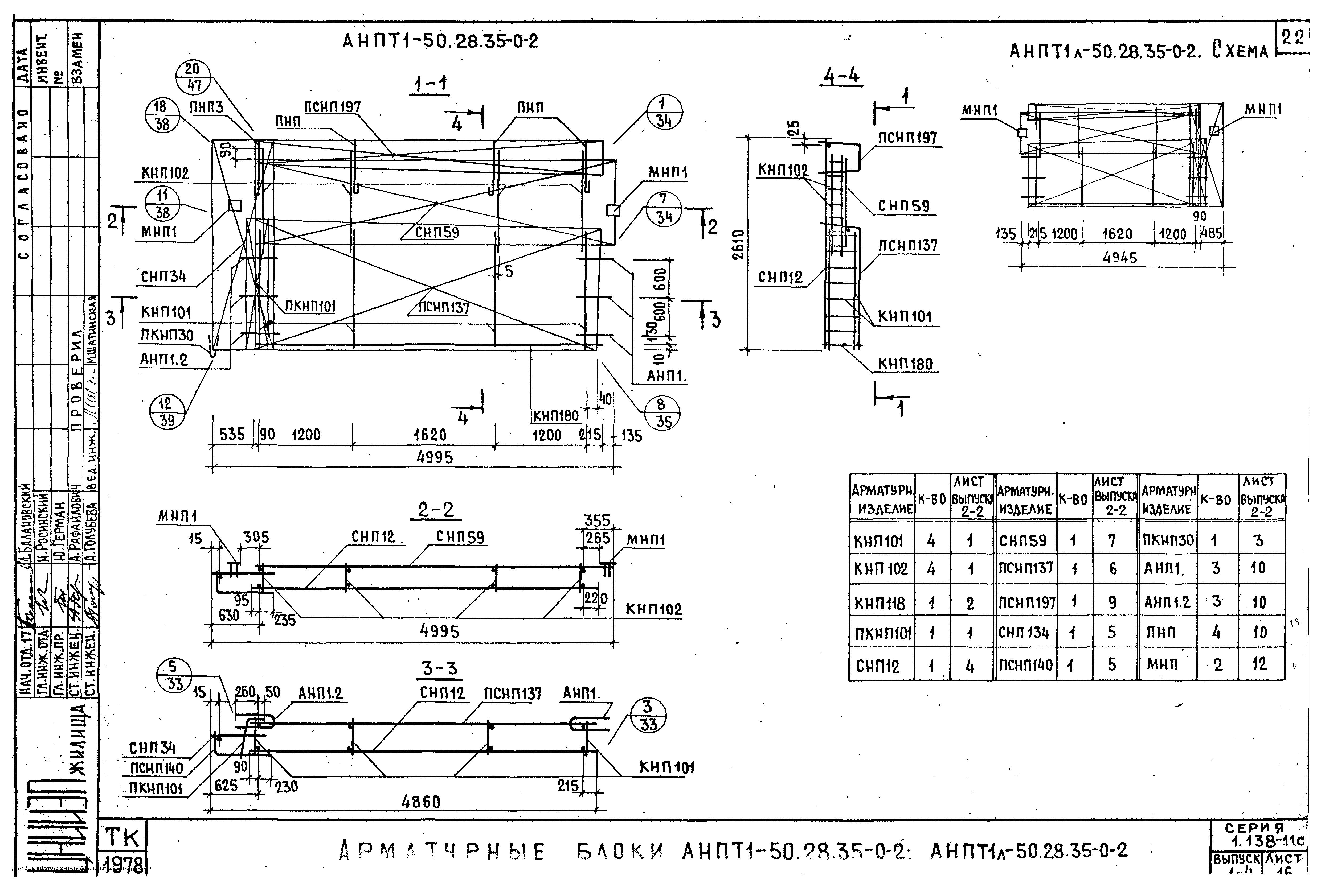
Панели С-НПТ1-50.28.35; С-НПТ1л-50.28.35
Арматурный блок АНТП1-50.28.35; АНТП1л-50.28.35
Панели С-НПТ1-56.28.35; С-НПТ1л-56.28.35
Арматурный блок АНТП1-56.28.35; АНТП1л-56.28.35
Панели С-НПТ1-62.28.35; С-НПТ1л-62.28.35
Арматурный блок АНТП1-62.28.35; АНТП1л-62.28.35
Панели С-НПТ1-38.28.35-0-2; С-НПТ1л-38.28.35-0-2
Арматурный блок АНТП1-38.28.35-0-2; АНТП1л-38.28.35-0-2
Панели С-НПТ1-44.28.35-0-2; С-НПТ1л-44.28.35-0-2
Арматурный блок АНТП1-44.28.35-0-2; АНТП1л-44.28.35-0-2
Панели С-НПТ1-50.28.35-0-2; С-НПТ1л-50.28.35-0-2
Арматурный блок АНТП1-50.28.35-0-2; АНТП1л-50.28.35-0-2
Панели С-НПТ1-56.28.35-0-2; С-НПТ1л-56.28.35-0-2
Арматурный блок АНТП1-56.28.35-0-2; АНТП1л-56.28.35-0-2
Панели С-НПТ1-62.28.35-0-2; С-НПТ1л-62.28.35-0-2
Арматурный блок АНТП1-62.28.35-0-2; АНТП1л-62.28.35-0-2
Панели С-НПТ4-12.28.35; С-НПТ4л-12.28.35
Арматурный блок АНТП4-12.28.35; АНТП4л-12.28.35
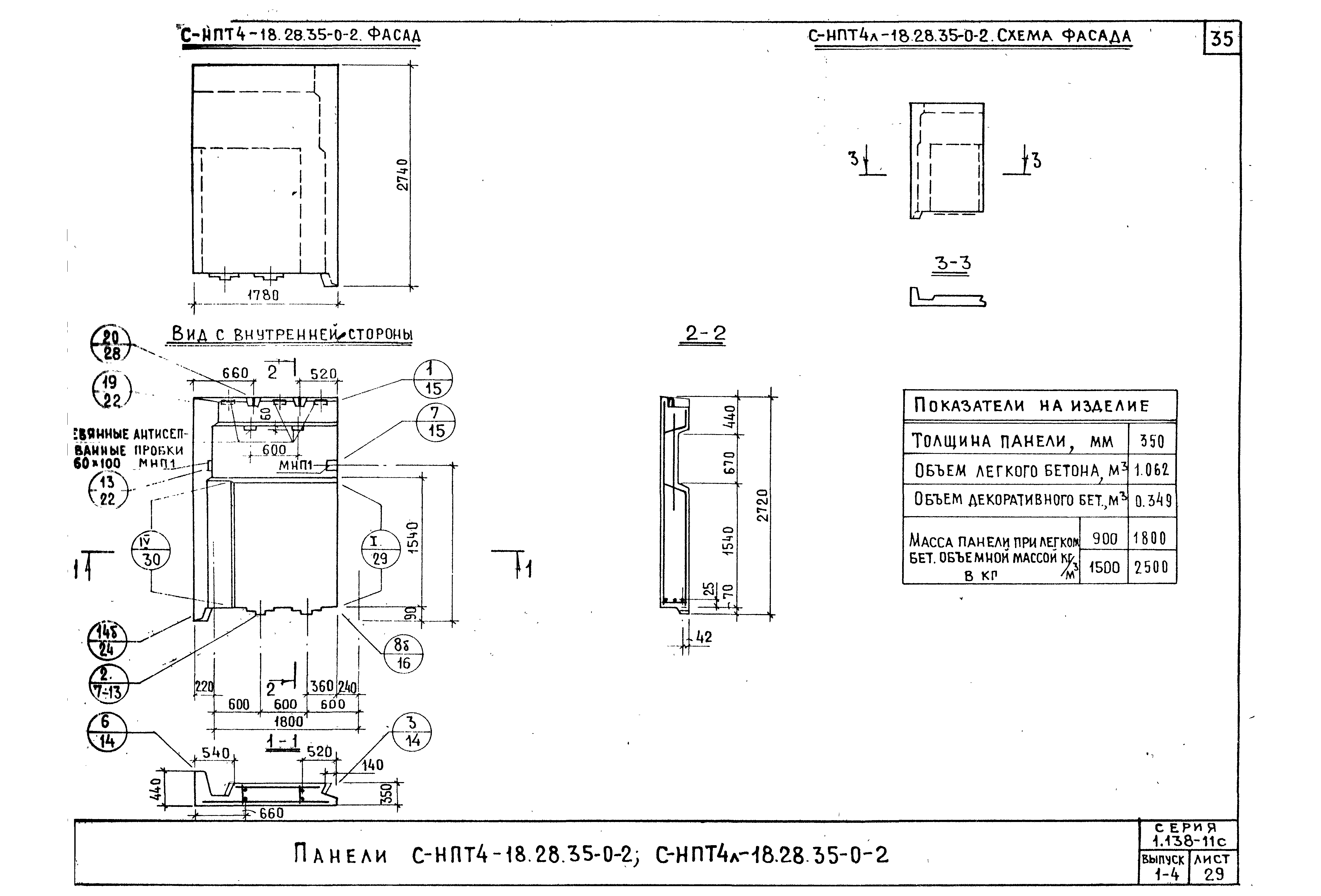
Панели С-НПТ4-18.28.35; С-НПТ4л-18.28.35
Арматурный блок АНТП4-18.28.35; АНТП4л-18.28.35
Панели С-НПТ4-24.28.35; С-НПТ4л-24.28.35
Арматурный блок АНТП4-24.28.35; АНТП4л-24.28.35
Панели С-НПТ4-12.28.35-0-2; С-НПТ4л-12.28.35-0-2
Арматурный блок АНТП4-12.28.35-0-2; АНТП4л-12.28.35-0-2
Панели С-НПТ4-18.28.35-0-2; С-НПТ4л-18.28.35-0-2
Арматурный блок АНТП4-18.28.35-0-2; АНТП4л-18.28.35-0-2
Панели С-НПТ4-24.28.35-0-2; С-НПТ4л-24.28.35-0-2
Арматурный блок АНТП4-24.28.35-0-2; АНТП4л-24.28.35-0-2
Расход стали на панели
Разработан: ЦНИИСК им. В.А. Кучеренко
ЦНИИЭП жилища
Утверждён:06.06.1980 Госгражданстрой (Gosgrazhdanstroy 149)
Расположен в:Техническая документация Строительство Справочные документы Типовые строительные конструкции, изделия и узлы Общероссийский строительный каталог Строительные конструкции, изделия и узлы зданий и сооружений для всех видов строительства Конструкции, изделия и узлы зданий Ограждающие конструкции Стены наружные Панели и блоки парапетов. Карнизы
Серия 1.138-11сСерия 1.138-11сСерия 1.138-11сСерия 1.138-11сСерия 1.138-11сСерия 1.138-11сСерия 1.138-11сСерия 1.138-11сСерия 1.138-11сСерия 1.138-11сСерия 1.138-11сСерия 1.138-11сСерия 1.138-11сСерия 1.138-11сСерия 1.138-11сСерия 1.138-11сСерия 1.138-11сСерия 1.138-11сСерия 1.138-11сСерия 1.138-11сСерия 1.138-11сСерия 1.138-11сСерия 1.138-11сСерия 1.138-11сСерия 1.138-11сСерия 1.138-11сСерия 1.138-11сСерия 1.138-11сСерия 1.138-11сСерия 1.138-11сСерия 1.138-11сСерия 1.138-11сСерия 1.138-11сСерия 1.138-11сСерия 1.138-11сСерия 1.138-11сСерия 1.138-11сСерия 1.138-11сСерия 1.138-11сСерия 1.138-11с

© 2013 Ёшкин Кот :-) Карта сайта