Информационная система
«Ёшкин Кот»

Скачать базу одним архивом
Скачать обновления
История создания базы
Карта сайта

Скачать Серия 1.432.2-32.93 Выпуск 2. Узлы. Рабочие чертежи

Дата актуализации: 10.08.2017

Серия 1.432.2-32.93

Выпуск 2. Узлы. Рабочие чертежи

Обозначение: Серия 1.432.2-32.93
Обозначение англ: Series 1.432.2-32.93
Статус:не определен законодательством
Название рус.:Выпуск 2. Узлы. Рабочие чертежи
Дата добавления в базу:01.09.2013
Дата актуализации:05.05.2017
Дата введения:01.03.1994
Область применения:В состав выпуска 2 данной работы входят рабочие чертежи узлов монтажа укрупненных элементов стены (панелей), установки окон, дверей, ворот и сопряжения их с панелями
Оглавление:1.432.2-32.93.2-ТТ Технические требования
1.432.2-32.93.2-1 Узел 1; 2. Крепление верха парапетной панели. Узел "А". Крепление парапетного ограждения
1.432.2-32.93.2-2 Узел 3… 6. Крепление панели на цоколе
1.432.2-32.93.2-3 Узел 7… 9. Крепление панели на стыке двух ярусов панели
1.432.2-32.93.2-4 Узел 10… 13
1.432.2-32.93.2-5 Узел 14; 15. Крепление панели в проемах
1.432.2-32.93.2-6 Узел 16; 17. Примыкание кровли к парапету продольной кровли и торцовой стены
1.432.2-32.93.2-7 Узел 18. Примыкание металлической стены к цоколю
1.432.2-32.93.2-8 Узел 19. Примыкание верхнего яруса панели к нижнему
1.432.2-32.93.2-9 Узел 20; 21. Сопряжение угловых панелей
1.432.2-32.93.2-10 Узел 22. Устройство температурного шва в стене
1.432.2-32.93.2-11 Узел 23… 39. Установка и сопряжение деревянных окон
1.432.2-32.93.2-12 Узел 40… 51. Установка и сопряжение стальных окон с одинарным переплетом
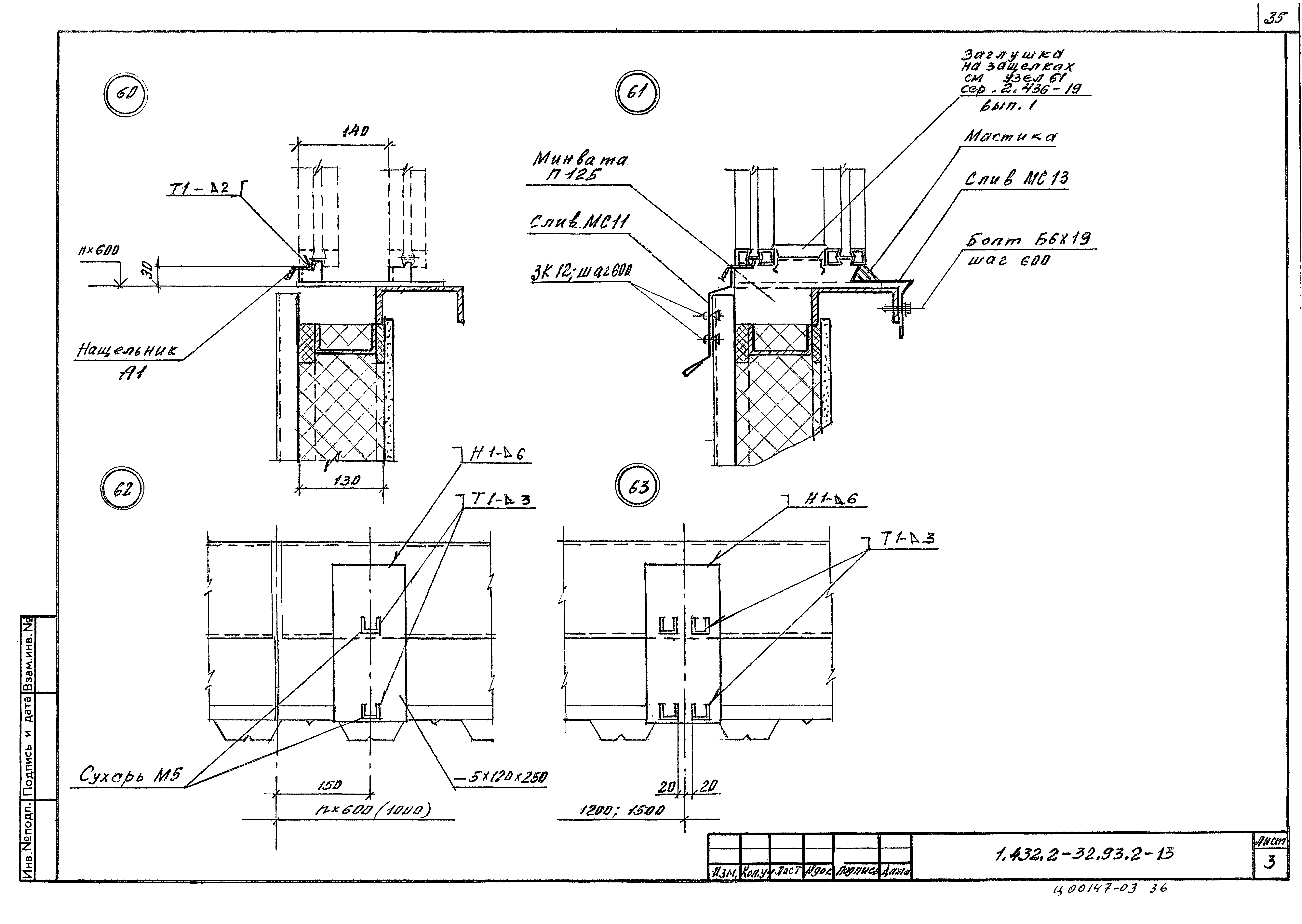
1.432.2-32.93.2-13 Узел 52… 63. Установка и сопряжение стальных окон с раздельными переплетами
1.432.2-32.93.2-14 Узел 64… 66. Установка и сопряжение деревянных дверей со стенами
1.432.2-32.93.2-15 Узел 67… 69. Установка и сопряжение металлических дверей серии 1.435.3-19 со стенами
1.432.2-32.93.2-16 Узел 70… 72. Установка и сопряжение распшных складчатых ворот серии 1.432.2-28 со стенами
1.432.2-32.93.2-17 Спецификация на узел 1… 15
1.432.2-32.93.2-18 Спецификация на узел 16… 19
1.432.2-32.93.2-19 Спецификация на узел 20… 22
1.432.2-32.93.2-20 Спецификация на узел 23… 29
1.432.2-32.93.2-21 Спецификация на узел 30… 39
1.432.2-32.93.2-22 Спецификация на узел 40… 63
1.432.2-32.93.2-23 Спецификация на узел 64… 72
Разработан: ЦНИИпромзданий
Утверждён:16.11.1993 Госстрой России (Russian Federation Gosstroy 9-3-2/240)
Расположен в:Техническая документация Строительство Справочные документы Типовые строительные конструкции, изделия и узлы Общероссийский строительный каталог Строительные конструкции, изделия и узлы зданий и сооружений для всех видов строительства Конструкции, изделия и узлы зданий Ограждающие конструкции Стены наружные Металлические и из других материалов
Нормативные ссылки:
Серия 1.432.2-32.93Серия 1.432.2-32.93Серия 1.432.2-32.93Серия 1.432.2-32.93Серия 1.432.2-32.93Серия 1.432.2-32.93Серия 1.432.2-32.93Серия 1.432.2-32.93Серия 1.432.2-32.93Серия 1.432.2-32.93Серия 1.432.2-32.93Серия 1.432.2-32.93Серия 1.432.2-32.93Серия 1.432.2-32.93Серия 1.432.2-32.93Серия 1.432.2-32.93Серия 1.432.2-32.93Серия 1.432.2-32.93Серия 1.432.2-32.93Серия 1.432.2-32.93Серия 1.432.2-32.93Серия 1.432.2-32.93Серия 1.432.2-32.93Серия 1.432.2-32.93Серия 1.432.2-32.93Серия 1.432.2-32.93Серия 1.432.2-32.93Серия 1.432.2-32.93Серия 1.432.2-32.93Серия 1.432.2-32.93Серия 1.432.2-32.93Серия 1.432.2-32.93Серия 1.432.2-32.93Серия 1.432.2-32.93Серия 1.432.2-32.93Серия 1.432.2-32.93Серия 1.432.2-32.93Серия 1.432.2-32.93Серия 1.432.2-32.93Серия 1.432.2-32.93Серия 1.432.2-32.93Серия 1.432.2-32.93Серия 1.432.2-32.93Серия 1.432.2-32.93Серия 1.432.2-32.93Серия 1.432.2-32.93Серия 1.432.2-32.93Серия 1.432.2-32.93Серия 1.432.2-32.93

© 2013 Ёшкин Кот :-) Карта сайта