Информационная система
«Ёшкин Кот»

Скачать базу одним архивом
Скачать обновления
История создания базы
Карта сайта

Скачать Серия 1.432-16 Выпуск 1. Стеновые панели. Рабочие чертежи

Дата актуализации: 10.08.2017

Серия 1.432-16

Выпуск 1. Стеновые панели. Рабочие чертежи

Обозначение: Серия 1.432-16
Обозначение англ: Series 1.432-16
Статус:cправочные материалы, мп, тпр
Название рус.:Выпуск 1. Стеновые панели. Рабочие чертежи
Дата добавления в базу:01.09.2013
Дата актуализации:05.05.2017
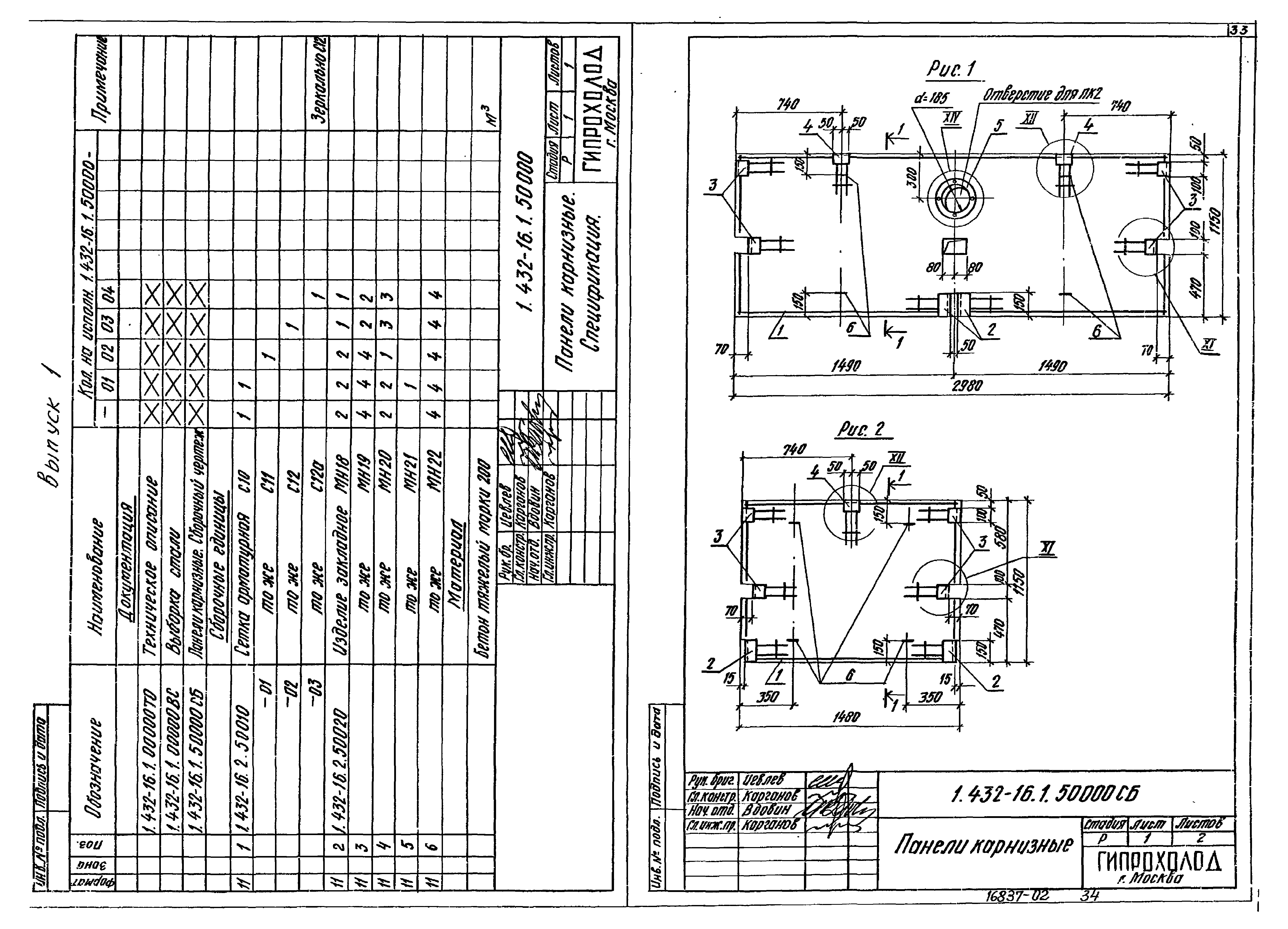
Область применения:Настоящий выпуск содержит рабочие чертежи вертикальных комплексных (с изоляцией) панелей, горизонтальной стеновой панели, угловых блоков и карнизных панелей для стен холодильников
Разработан: ЦНИИпромзданий
Гипрохолод Минторга СССР
Утверждён:22.05.1980 Госстрой СССР (Государственный комитет Совета Министров СССР по делам строительства) (USSR Gosstroy 37)
Расположен в:Техническая документация Строительство Справочные документы Типовые строительные конструкции, изделия и узлы Общероссийский строительный каталог Строительные конструкции, изделия и узлы зданий и сооружений для всех видов строительства Конструкции, изделия и узлы зданий Ограждающие конструкции Стены наружные Панели (бетонные и железобетонные)
Нормативные ссылки:
Серия 1.432-16Серия 1.432-16Серия 1.432-16Серия 1.432-16Серия 1.432-16Серия 1.432-16Серия 1.432-16Серия 1.432-16Серия 1.432-16Серия 1.432-16Серия 1.432-16Серия 1.432-16Серия 1.432-16Серия 1.432-16Серия 1.432-16Серия 1.432-16Серия 1.432-16Серия 1.432-16Серия 1.432-16Серия 1.432-16Серия 1.432-16Серия 1.432-16Серия 1.432-16Серия 1.432-16Серия 1.432-16Серия 1.432-16Серия 1.432-16Серия 1.432-16Серия 1.432-16Серия 1.432-16Серия 1.432-16Серия 1.432-16Серия 1.432-16Серия 1.432-16Серия 1.432-16

© 2013 Ёшкин Кот :-) Карта сайта