Информационная система
«Ёшкин Кот»

Скачать базу одним архивом
Скачать обновления
История создания базы
Карта сайта

Скачать Серия 1.432.1-21 Выпуск 1/96. Панели стеновые. Рабочие чертежи

Дата актуализации: 10.08.2017

Серия 1.432.1-21

Выпуск 1/96. Панели стеновые. Рабочие чертежи

Обозначение: Серия 1.432.1-21
Обозначение англ: Series 1.432.1-21
Статус:не определен законодательством
Название рус.:Выпуск 1/96. Панели стеновые. Рабочие чертежи
Дата добавления в базу:01.09.2013
Дата актуализации:05.05.2017
Дата введения:01.08.1996
Область применения:В выпуске приведены рабочие чертежи панелей и рекомендации по их изготовлению, испытанию, транспортированию и складированию. Указания по расчету и применению панелей, а также номенклатура панелей приведены в выпуске 0/96 "Материалы для проектирования"
Оглавление:1.432.1-21.1/96-ТО Техническое описание
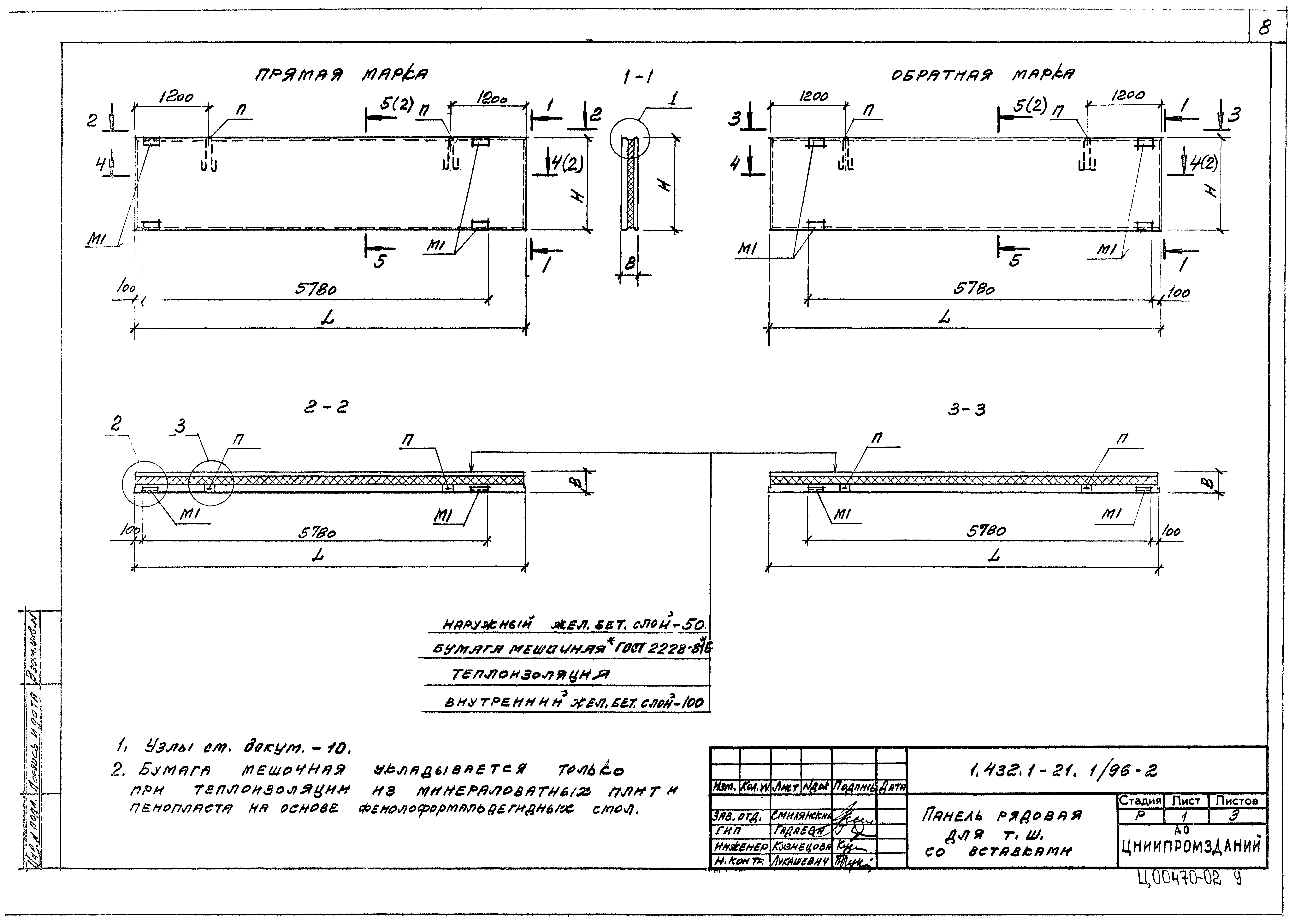
1.432.1-21.1/96-1 Панель рядовая
1.432.1-21.1/96-2 Панель рядовая для т.ш. со вставками
1.432.1-21.1/96-3 Панель рядовая для углов
1.432.1-21.1/96-4 Панель парапетная рядовая и рядовая для т.ш.
1.432.1-21.1/96-5 Панель-перемычка
1.432.1-21.1/96-6 Панель-перемычка при ленточном остеклении для т.ш. со вставкой
1.432.1-21.1/96-7 Панель-перемычка при ленточном остеклении для углов
1.432.1-21.1/96-8 Панель парапетная - перемычка
1.432.1-21.1/96-9 Простеночная панель
1.432.1-21.1/96-10 Узел 1… 9
1.432.1-21.1/96-11 Гибкая связь К4; К5
Разработан: АО ЦНИИпромзданий
Утверждён:21.05.1996 Главпроект Минстроя России (9-1-1/57)
Расположен в:Техническая документация Строительство Справочные документы Типовые строительные конструкции, изделия и узлы Общероссийский строительный каталог Строительные конструкции, изделия и узлы зданий и сооружений для всех видов строительства Конструкции, изделия и узлы зданий Ограждающие конструкции Стены наружные Панели (бетонные и железобетонные)
Заменяет собой:
Нормативные ссылки:
Серия 1.432.1-21Серия 1.432.1-21Серия 1.432.1-21Серия 1.432.1-21Серия 1.432.1-21Серия 1.432.1-21Серия 1.432.1-21Серия 1.432.1-21Серия 1.432.1-21Серия 1.432.1-21Серия 1.432.1-21Серия 1.432.1-21Серия 1.432.1-21Серия 1.432.1-21Серия 1.432.1-21Серия 1.432.1-21Серия 1.432.1-21Серия 1.432.1-21Серия 1.432.1-21Серия 1.432.1-21Серия 1.432.1-21Серия 1.432.1-21Серия 1.432.1-21Серия 1.432.1-21Серия 1.432.1-21Серия 1.432.1-21Серия 1.432.1-21Серия 1.432.1-21Серия 1.432.1-21Серия 1.432.1-21Серия 1.432.1-21Серия 1.432.1-21Серия 1.432.1-21Серия 1.432.1-21Серия 1.432.1-21Серия 1.432.1-21Серия 1.432.1-21Серия 1.432.1-21

© 2013 Ёшкин Кот :-) Карта сайта