Информационная система
«Ёшкин Кот»

Скачать базу одним архивом
Скачать обновления
История создания базы
Карта сайта

Скачать Серия 1.232.1-7 Выпуск 1-1. Часть 1. Панели трехслойные из легкого бетона на жестких связях с эффективным утеплителем. Рабочие чертежи

Дата актуализации: 10.08.2017

Серия 1.232.1-7

Выпуск 1-1. Часть 1. Панели трехслойные из легкого бетона на жестких связях с эффективным утеплителем. Рабочие чертежи

Обозначение: Серия 1.232.1-7
Обозначение англ: Series 1.232.1-7
Статус:действует
Название рус.:Выпуск 1-1. Часть 1. Панели трехслойные из легкого бетона на жестких связях с эффективным утеплителем. Рабочие чертежи
Дата добавления в базу:01.09.2013
Дата актуализации:05.05.2017
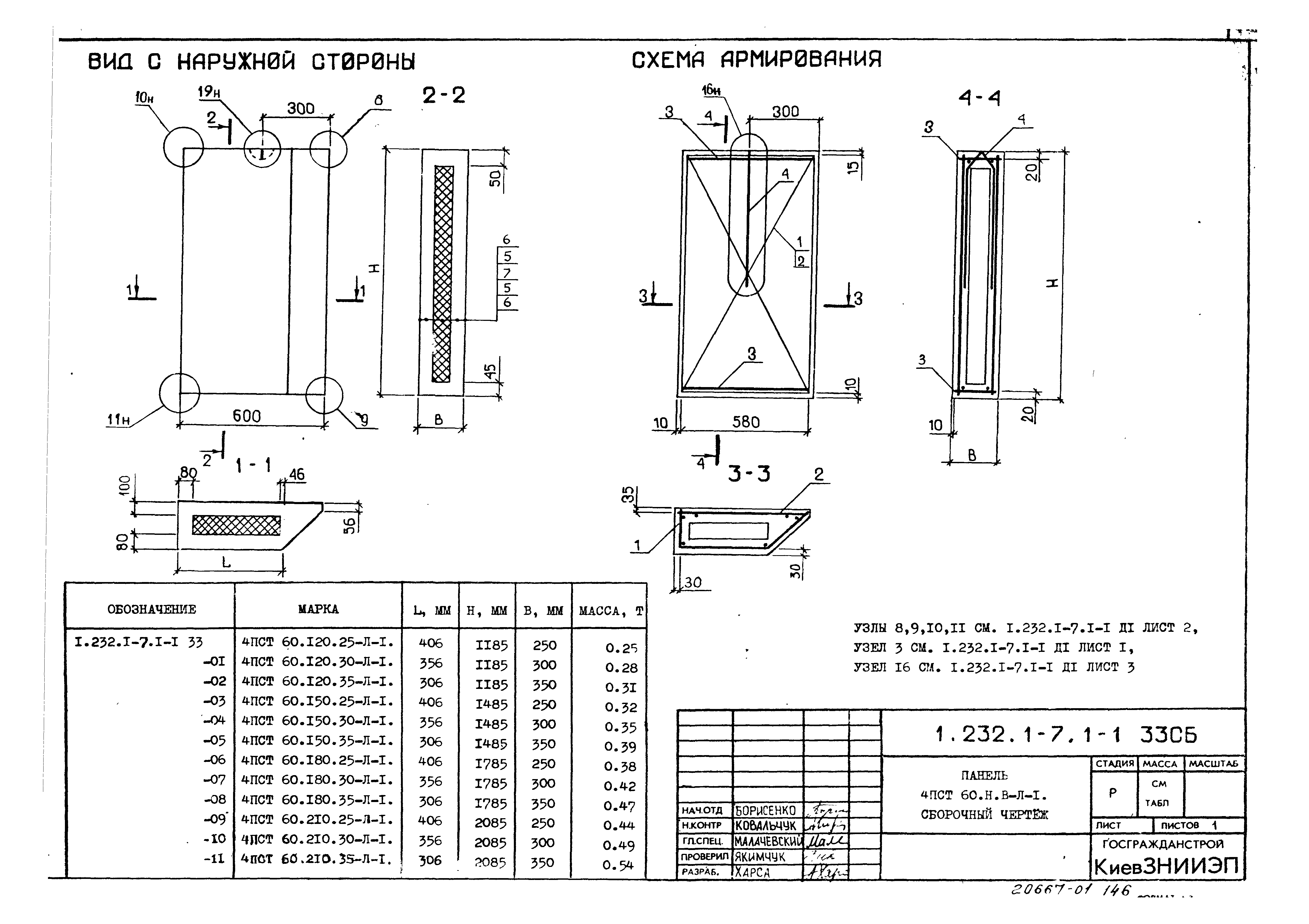
Область применения:Выпуск содержит: техническое описание, спецификации и сборочные чертежи панелей, узлы, ведомость расхода стали на панели
Разработан: НИИЖБ Госстроя СССР
КиевЗНИИЭП
ЦНИИЭП торгово-бытовых зданий и туристских комплексов
Утверждён:17.07.1985 Госгражданстрой (Gosgrazhdanstroy 209)
Расположен в:Техническая документация Строительство Справочные документы Типовые строительные конструкции, изделия и узлы Общероссийский строительный каталог Строительные конструкции, изделия и узлы зданий и сооружений для всех видов строительства Конструкции, изделия и узлы зданий Ограждающие конструкции Стены наружные Панели (бетонные и железобетонные)
Нормативные ссылки:
Серия 1.232.1-7Серия 1.232.1-7Серия 1.232.1-7Серия 1.232.1-7Серия 1.232.1-7Серия 1.232.1-7Серия 1.232.1-7Серия 1.232.1-7Серия 1.232.1-7Серия 1.232.1-7Серия 1.232.1-7Серия 1.232.1-7Серия 1.232.1-7Серия 1.232.1-7Серия 1.232.1-7Серия 1.232.1-7Серия 1.232.1-7Серия 1.232.1-7Серия 1.232.1-7Серия 1.232.1-7Серия 1.232.1-7Серия 1.232.1-7Серия 1.232.1-7Серия 1.232.1-7Серия 1.232.1-7Серия 1.232.1-7Серия 1.232.1-7Серия 1.232.1-7Серия 1.232.1-7Серия 1.232.1-7Серия 1.232.1-7Серия 1.232.1-7Серия 1.232.1-7Серия 1.232.1-7Серия 1.232.1-7Серия 1.232.1-7Серия 1.232.1-7Серия 1.232.1-7Серия 1.232.1-7Серия 1.232.1-7Серия 1.232.1-7Серия 1.232.1-7Серия 1.232.1-7Серия 1.232.1-7Серия 1.232.1-7Серия 1.232.1-7Серия 1.232.1-7Серия 1.232.1-7Серия 1.232.1-7Серия 1.232.1-7Серия 1.232.1-7Серия 1.232.1-7Серия 1.232.1-7Серия 1.232.1-7Серия 1.232.1-7Серия 1.232.1-7Серия 1.232.1-7Серия 1.232.1-7Серия 1.232.1-7Серия 1.232.1-7Серия 1.232.1-7Серия 1.232.1-7Серия 1.232.1-7Серия 1.232.1-7Серия 1.232.1-7Серия 1.232.1-7Серия 1.232.1-7Серия 1.232.1-7Серия 1.232.1-7Серия 1.232.1-7Серия 1.232.1-7Серия 1.232.1-7Серия 1.232.1-7Серия 1.232.1-7Серия 1.232.1-7Серия 1.232.1-7Серия 1.232.1-7Серия 1.232.1-7Серия 1.232.1-7Серия 1.232.1-7Серия 1.232.1-7Серия 1.232.1-7Серия 1.232.1-7Серия 1.232.1-7Серия 1.232.1-7Серия 1.232.1-7Серия 1.232.1-7Серия 1.232.1-7Серия 1.232.1-7Серия 1.232.1-7Серия 1.232.1-7Серия 1.232.1-7Серия 1.232.1-7Серия 1.232.1-7Серия 1.232.1-7Серия 1.232.1-7Серия 1.232.1-7Серия 1.232.1-7Серия 1.232.1-7Серия 1.232.1-7Серия 1.232.1-7Серия 1.232.1-7Серия 1.232.1-7Серия 1.232.1-7Серия 1.232.1-7Серия 1.232.1-7Серия 1.232.1-7Серия 1.232.1-7Серия 1.232.1-7Серия 1.232.1-7Серия 1.232.1-7Серия 1.232.1-7Серия 1.232.1-7Серия 1.232.1-7Серия 1.232.1-7Серия 1.232.1-7Серия 1.232.1-7Серия 1.232.1-7Серия 1.232.1-7Серия 1.232.1-7Серия 1.232.1-7Серия 1.232.1-7Серия 1.232.1-7Серия 1.232.1-7Серия 1.232.1-7Серия 1.232.1-7Серия 1.232.1-7Серия 1.232.1-7Серия 1.232.1-7Серия 1.232.1-7Серия 1.232.1-7Серия 1.232.1-7Серия 1.232.1-7Серия 1.232.1-7Серия 1.232.1-7Серия 1.232.1-7Серия 1.232.1-7Серия 1.232.1-7Серия 1.232.1-7Серия 1.232.1-7Серия 1.232.1-7Серия 1.232.1-7Серия 1.232.1-7Серия 1.232.1-7Серия 1.232.1-7Серия 1.232.1-7Серия 1.232.1-7Серия 1.232.1-7Серия 1.232.1-7Серия 1.232.1-7

© 2013 Ёшкин Кот :-) Карта сайта