Информационная система
«Ёшкин Кот»

Скачать базу одним архивом
Скачать обновления
История создания базы
Карта сайта

Скачать Серия 1.232.1-8 Выпуск 1-1. Панели однослойные самонесущие для зданий с высотой этажа 3,3 м. Рабочие чертежи

Дата актуализации: 10.08.2017

Серия 1.232.1-8

Выпуск 1-1. Панели однослойные самонесущие для зданий с высотой этажа 3,3 м. Рабочие чертежи

Обозначение: Серия 1.232.1-8
Обозначение англ: Series 1.232.1-8
Статус:действует
Название рус.:Выпуск 1-1. Панели однослойные самонесущие для зданий с высотой этажа 3,3 м. Рабочие чертежи
Дата добавления в базу:01.09.2013
Дата актуализации:05.05.2017
Область применения:Выпуск 1-1 содержит рабочие чертежи панелей наружных стен однорядной разрезки толщиной 350 и 400 мм для зданий с высотой этажа 3,3 м
Оглавление:1.232.1-8.1-1 00ТО Техническое описание
1.232.1-8.1-1 01 Панель 1ПСС030-3ПСС030
1.232.1-8.1-1 01 СБ Панель 1ПСС030-3ПСС030. Сборочный четреж
1.232.1-8.1-1 02 Панель 4ПСС030-6ПСС030
1.232.1-8.1-1 02 СБ Панель 4ПСС030-6ПСС030. Сборочный четреж
1.232.1-8.1-1 03 Панель 7ПСС030-9ПСС030
1.232.1-8.1-1 03 СБ Панель 7ПСС030-9ПСС030. Сборочный четреж
1.232.1-8.1-1 04 Панель 1ПСС060-2ПСС060
1.232.1-8.1-1 04 СБ Панель 1ПСС060-2ПСС060. Сборочный четреж
1.232.1-8.1-1 05 Панель 3ПСС060-4ПСС060
1.232.1-8.1-1 05 СБ Панель 3ПСС060-4ПСС060. Сборочный четреж
1.232.1-8.1-1 06 Панель 1ПССЛ30-2ПССЛ30
1.232.1-8.1-1 06 СБ Панель 1ПССЛ30-2ПССЛ30. Сборочный четреж
1.232.1-8.1-1 07 Панель 3ПССЛ30-4ПССЛ30
1.232.1-8.1-1 07 СБ Панель 3ПССЛ30-4ПССЛ30. Сборочный четреж
1.232.1-8.1-1 08 Панель ПССЛ30
1.232.1-8.1-1 08 СБ Панель ПССЛ30. Сборочный четреж
1.232.1-8.1-1 09 Панель ПСС30
1.232.1-8.1-1 09 СБ Панель ПСС30. Сборочный четреж
1.232.1-8.1-1 10 Панель ПСС30.16
1.232.1-8.1-1 10 СБ Панель ПСС30.16. Сборочный четреж
1.232.1-8.1-1 11 Панель ПСС12
1.232.1-8.1-1 11 СБ Панель ПСС12. Сборочный четреж
1.232.1-8.1-1 12 Панель ПССД 30
1.232.1-8.1-1 12 СБ Панель ПССД 30. Сборочный четреж
1.232.1-8.1-1 13 Панель 1ПССБ 30
1.232.1-8.1-1 13 СБ Панель 1ПССБ 30. Сборочный четреж
1.232.1-8.1-1 14 Панель 2ПССБ 30
1.232.1-8.1-1 14 СБ Панель 2ПССБ 30. Сборочный четреж
1.232.1-8.1-1 15 Панель 1ПССД 30
1.232.1-8.1-1 15 СБ Панель 1ПССД 30. Сборочный четреж
1.232.1-8.1-1 16 Панель 1ПСС027
1.232.1-8.1-1 16 СБ Панель 1ПСС027. Сборочный четреж
1.232.1-8.1-1 17 Панель 1ПСС028
1.232.1-8.1-1 17 СБ Панель 1ПСС028. Сборочный четреж
1.232.1-8.1-1 18 Панель 2ПСС027
1.232.1-8.1-1 18 СБ Панель 2ПСС027. Сборочный четреж
1.232.1-8.1-1 19 Панель 2ПСС028
1.232.1-8.1-1 19 СБ Панель 2ПСС028. Сборочный четреж
1.232.1-8.1-1 20 Панель ПСС024
1.232.1-8.1-1 20 СБ Панель ПСС024. Сборочный четреж
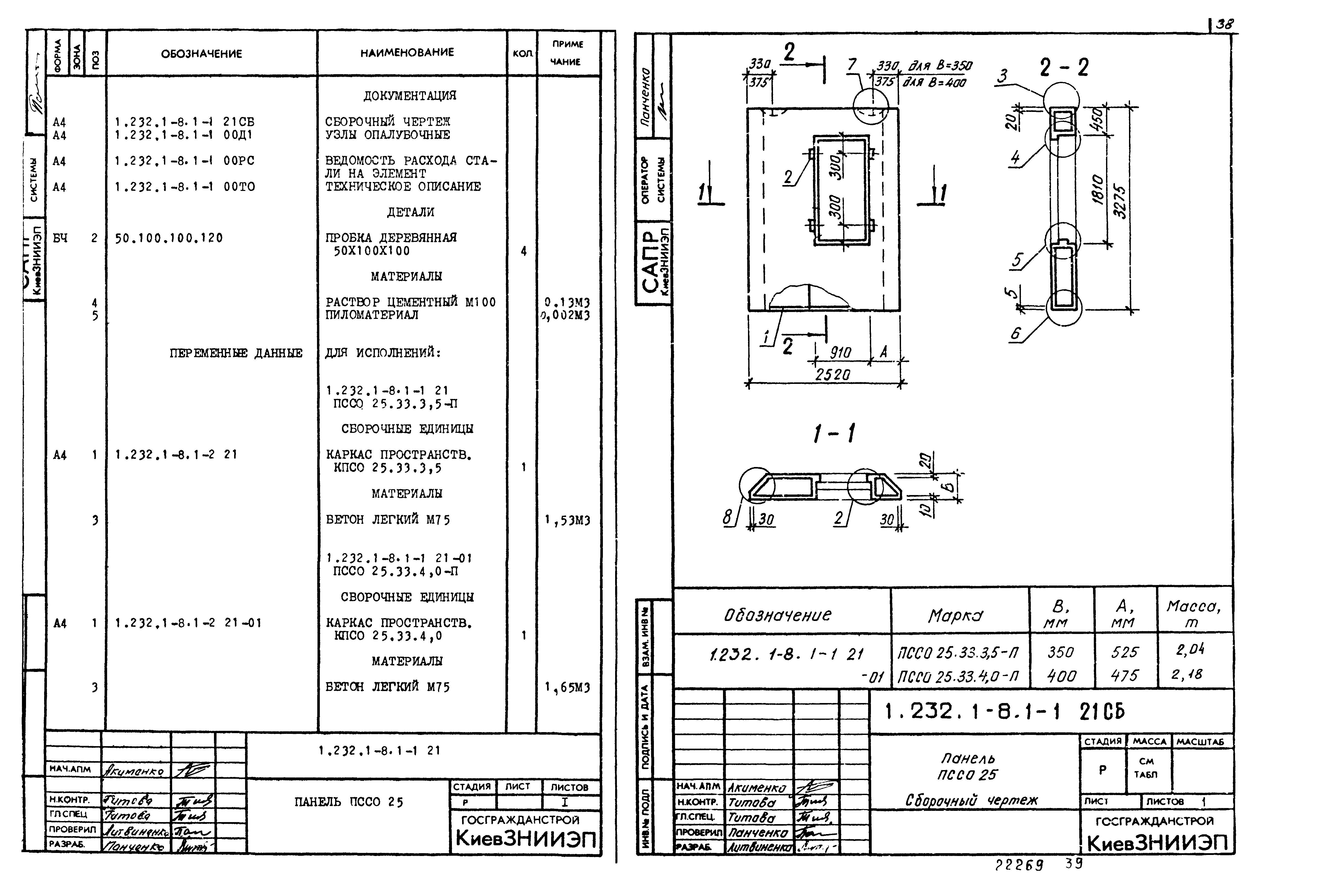
1.232.1-8.1-1 21 Панель ПСС025
1.232.1-8.1-1 21 СБ Панель ПСС025. Сборочный четреж
1.232.1-8.1-1 22 Панель 1ПСС27-1ПСС28
1.232.1-8.1-1 22 СБ Панель 1ПСС27-1ПСС28. Сборочный четреж
1.232.1-8.1-1 23 Панель 1ПСС9-1ПСС10
1.232.1-8.1-1 23 СБ Панель 1ПСС9-1ПСС10. Сборочный четреж
1.232.1-8.1-1 24 Панель 2ПСС27-2ПСС28
1.232.1-8.1-1 24 СБ Панель 2ПСС27-2ПСС28. Сборочный четреж
1.232.1-8.1-1 25 Панель 2ПСС9-2ПСС10
1.232.1-8.1-1 25 СБ Панель 2ПСС9-2ПСС10. Сборочный четреж
1.232.1-8.1-1 26 Панель ПСС24
1.232.1-8.1-1 26 СБ Панель ПСС24 . Сборочный четреж
1.232.1-8.1-1 27 Панель ПСС25
1.232.1-8.1-1 27 СБ Панель ПСС25 . Сборочный четреж
1.232.1-8.1-1 28 Панель 1ПССД27
1.232.1-8.1-1 28 СБ Панель 1ПССД27. Сборочный четреж
1.232.1-8.1-1 29 Панель 1ПССД28
1.232.1-8.1-1 29 СБ Панель 1ПССД28. Сборочный четреж
1.232.1-8.1-1 30 Панель 2ПССД27
1.232.1-8.1-1 30 СБ Панель 2ПССД27. Сборочный четреж
1.232.1-8.1-1 31 Панель 2ПССД28
1.232.1-8.1-1 31 СБ Панель 2ПССД28. Сборочный четреж
1.232.1-8.1-1 32 Панель ПССД24
1.232.1-8.1-1 32 СБ Панель ПССД24. Сборочный четреж
1.232.1-8.1-1 33 Панель ПССД25
1.232.1-8.1-1 33 СБ Панель ПССД25. Сборочный четреж
1.232.1-8.1-1 34 Панель 1ПССЛ27-2ПССЛ27
1.232.1-8.1-1 34 СБ Панель 1ПССЛ27-2ПССЛ27. Сборочный четреж
1.232.1-8.1-1 35 Панель 1ПССЛ28-2ПССЛ28
1.232.1-8.1-1 35 СБ Панель 1ПССЛ28-2ПССЛ28. Сборочный четреж
1.232.1-8.1-1 36 Панель 3ПССЛ27-4ПССЛ27
1.232.1-8.1-1 36 СБ Панель 3ПССЛ27-4ПССЛ27. Сборочный четреж
1.232.1-8.1-1 37 Панель 3ПССЛ28-4ПССЛ28
1.232.1-8.1-1 37 СБ Панель 3ПССЛ28-4ПССЛ28. Сборочный четреж
1.232.1-8.1-1 38 Панель 5ПССЛ27-5ПССЛ28
1.232.1-8.1-1 38 СБ Панель 5ПССЛ27-5ПССЛ28. Сборочный четреж
1.232.1-8.1-1 39 Панель 6ПССЛ27-6ПССЛ28
1.232.1-8.1-1 39 СБ Панель 6ПССЛ27-6ПССЛ28. Сборочный четреж
1.232.1-8.1-1 40 Панель ПССЛ24-ПССЛ25
1.232.1-8.1-1 40 СБ Панель ПССЛ24-ПССЛ25. Сборочный четреж
1.232.1-8.1-1 41 Панель ПССП24-ПССП25
1.232.1-8.1-1 41 СБ Панель ПССП24-ПССП25. Сборочный четреж
1.232.1-8.1-1 42 Панель 1ПССП27-1ПССП28
1.232.1-8.1-1 42 СБ Панель 1ПССП27-1ПССП28. Сборочный четреж
1.232.1-8.1-1 43 Панель 1ПССП9-1ПССП10
1.232.1-8.1-1 43 СБ Панель 1ПССП9-1ПССП10. Сборочный четреж
1.232.1-8.1-1 44 Панель 2ПССП28-2ПССП28
1.232.1-8.1-1 44 СБ Панель 2ПССП27-2ПССП28. Сборочный четреж
1.232.1-8.1-1 45 Панель 2ПССП9-2ПССП10
1.232.1-8.1-1 45 СБ Панель 2ПССП9-2ПССП10. Сборочный четреж
1.232.1-8.1-1 46 Панель ПССУ5.33-ПССУ6.33
1.232.1-8.1-1 46 СБ Панель ПССУ5.33-ПССУ6.33. Сборочный чертеж
1.232.1-8.1-1 47 Панель ПССУ5.16-ПССУ6.16
1.232.1-8.1-1 47 СБ Панель ПССУ5.16-ПССУ6.16. Сборочный чертеж
1.232.1-8.1-1 48 Панель ПССУ5.10-ПССУ6.10
1.232.1-8.1-1 48 СБ Панель ПССУ5.10-ПССУ6.10. Сборочный чертеж
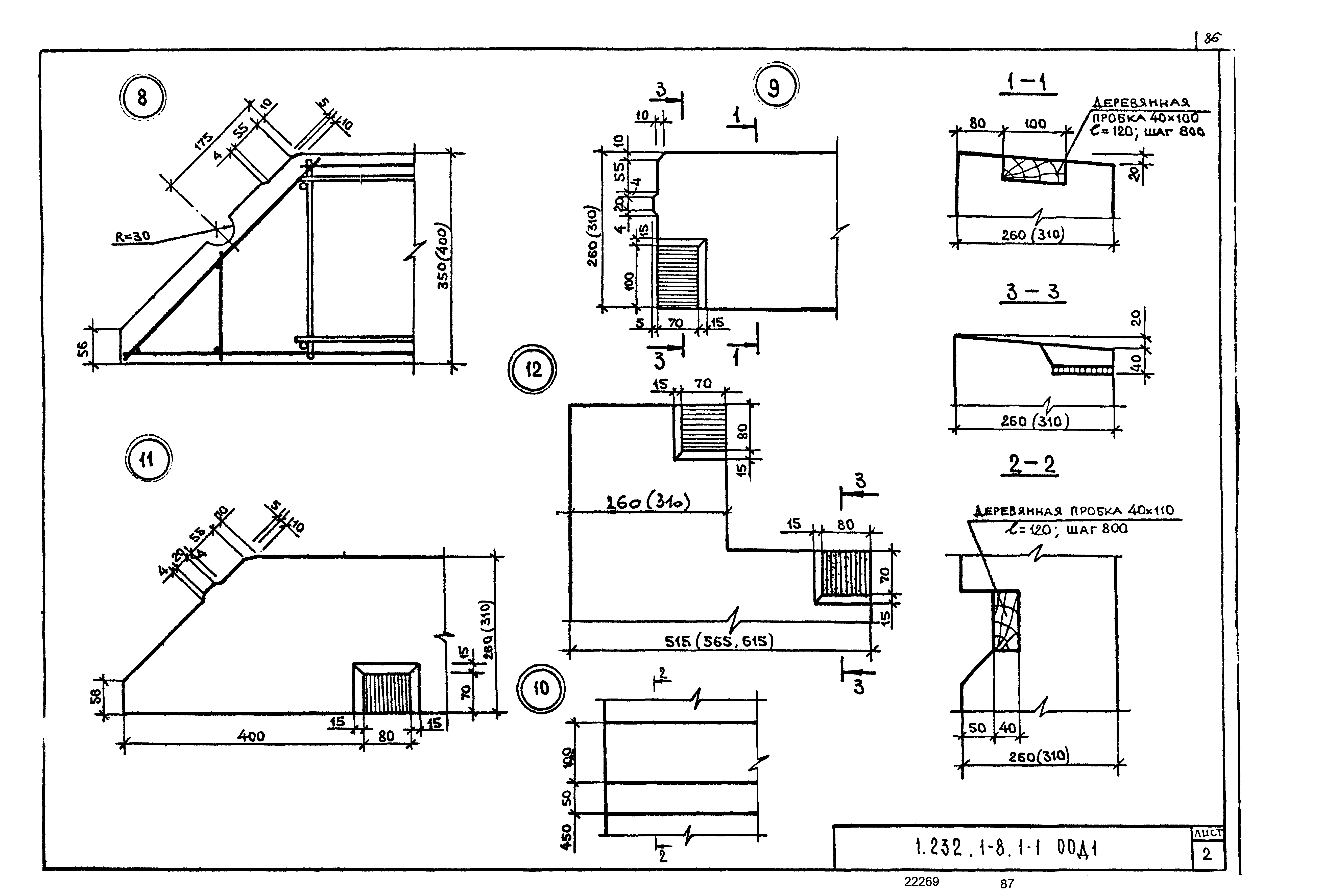
1.232.1-8.1-1 00 Д1 Узлы опалубочные
1.232.1-8.1-1 00 РС Ведомость расхода стали на элемент кг
Разработан: КиевЗНИИЭП
ЦНИИЭП торгово-бытовых зданий и туристских комплексов
Утверждён:19.05.1987 Госгражданстрой (Gosgrazhdanstroy 161)
Расположен в:Техническая документация Строительство Справочные документы Типовые строительные конструкции, изделия и узлы Общероссийский строительный каталог Строительные конструкции, изделия и узлы зданий и сооружений для всех видов строительства Конструкции, изделия и узлы зданий Ограждающие конструкции Стены наружные Панели (бетонные и железобетонные)
Нормативные ссылки:
Серия 1.232.1-8Серия 1.232.1-8Серия 1.232.1-8Серия 1.232.1-8Серия 1.232.1-8Серия 1.232.1-8Серия 1.232.1-8Серия 1.232.1-8Серия 1.232.1-8Серия 1.232.1-8Серия 1.232.1-8Серия 1.232.1-8Серия 1.232.1-8Серия 1.232.1-8Серия 1.232.1-8Серия 1.232.1-8Серия 1.232.1-8Серия 1.232.1-8Серия 1.232.1-8Серия 1.232.1-8Серия 1.232.1-8Серия 1.232.1-8Серия 1.232.1-8Серия 1.232.1-8Серия 1.232.1-8Серия 1.232.1-8Серия 1.232.1-8Серия 1.232.1-8Серия 1.232.1-8Серия 1.232.1-8Серия 1.232.1-8Серия 1.232.1-8Серия 1.232.1-8Серия 1.232.1-8Серия 1.232.1-8Серия 1.232.1-8Серия 1.232.1-8Серия 1.232.1-8Серия 1.232.1-8Серия 1.232.1-8Серия 1.232.1-8Серия 1.232.1-8Серия 1.232.1-8Серия 1.232.1-8Серия 1.232.1-8Серия 1.232.1-8Серия 1.232.1-8Серия 1.232.1-8Серия 1.232.1-8Серия 1.232.1-8Серия 1.232.1-8Серия 1.232.1-8Серия 1.232.1-8Серия 1.232.1-8Серия 1.232.1-8Серия 1.232.1-8Серия 1.232.1-8Серия 1.232.1-8Серия 1.232.1-8Серия 1.232.1-8Серия 1.232.1-8Серия 1.232.1-8Серия 1.232.1-8Серия 1.232.1-8Серия 1.232.1-8Серия 1.232.1-8Серия 1.232.1-8Серия 1.232.1-8Серия 1.232.1-8Серия 1.232.1-8Серия 1.232.1-8Серия 1.232.1-8Серия 1.232.1-8Серия 1.232.1-8Серия 1.232.1-8Серия 1.232.1-8Серия 1.232.1-8Серия 1.232.1-8Серия 1.232.1-8Серия 1.232.1-8Серия 1.232.1-8Серия 1.232.1-8Серия 1.232.1-8Серия 1.232.1-8Серия 1.232.1-8Серия 1.232.1-8Серия 1.232.1-8Серия 1.232.1-8Серия 1.232.1-8Серия 1.232.1-8Серия 1.232.1-8Серия 1.232.1-8Серия 1.232.1-8Серия 1.232.1-8Серия 1.232.1-8Серия 1.232.1-8Серия 1.232.1-8

© 2013 Ёшкин Кот :-) Карта сайта