| ||||||||||||||||||||||||||||
Скачать Серия 1.030.1-1/88 Выпуск 1-3. Панели из легких и ячеистых бетонов толщиной 300 мм для стен общественных зданий и вспомогательных зданий промышленных предприятий. Опалубка и армирование. Рабочие чертежиДата актуализации: 10.08.2017
|
| Обозначение: | Серия 1.030.1-1/88 |
| Обозначение англ: | Series 1.030.1-1/88 |
| Статус: | действует |
| Название рус.: | Выпуск 1-3. Панели из легких и ячеистых бетонов толщиной 300 мм для стен общественных зданий и вспомогательных зданий промышленных предприятий. Опалубка и армирование. Рабочие чертежи |
| Дата добавления в базу: | 01.09.2013 |
| Дата актуализации: | 05.05.2017 |
| Область применения: | Выпуск содержит технические требования, опалубочные чертежи, армирование, спецификации, опалубочные и арматурные узлы, ведомость расхода стали на панели толщиной 300 мм |
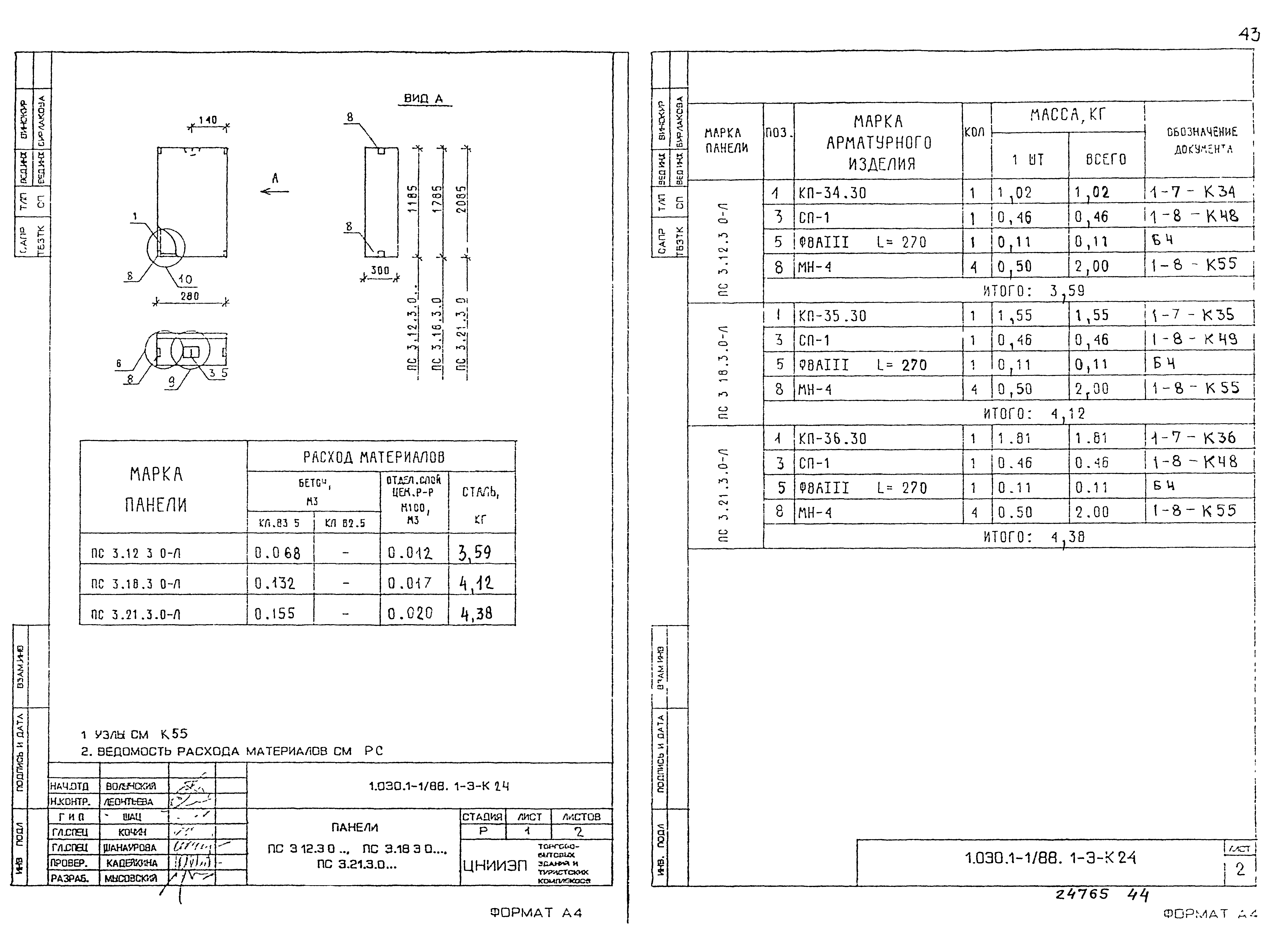
| Оглавление: | 1.030.1-1/88.1-3-ТТ Технические требования 1.030.1-1/88.1-3-К1 Панели ПС 30.6.3.0…, ПС 30.9.3.0… 1.030.1-1/88.1-3-К2 Панели ПС 30.12.3.0…, ПС 30.15.3.0… 1.030.1-1/88.1-3-К3 Панели ПС 30.18.3.0…, ПС 30.21.3.0… 1.030.1-1/88.1-3-К4 Панели ПС 60.6.3.0…, ПС 60.9.3.0… 1.030.1-1/88.1-3-К5 Панели ПС 60.12.3.0…, ПС 60.15.3.0… 1.030.1-1/88.1-3-К6 Панели ПС 60.18.3.0…, ПС 60.21.3.0… 1.030.1-1/88.1-3-К7 Панели ПС 72.9.3.0… 1.030.1-1/88.1-3-К8 Панели ПС 72.12.3.0…, ПС 72.15.3.0… 1.030.1-1/88.1-3-К9 Панели ПС 72.18.3.0…, ПС 72.21.3.0… 1.030.1-1/88.1-3-К10 Панели ПС 90.12.3.0…, ПС 90.15.3.0… 1.030.1-1/88.1-3-К11 Панели ПС 90.18.3.0…, ПС 90.21.3.0… 1.030.1-1/88.1-3-К12 Панели 1ПС 27.6.3.0…, 1ПС 27.9.3.0… 1.030.1-1/88.1-3-К13 Панели 1ПС 27.12.3.0…, 1ПС 27.15.3.0… 1.030.1-1/88.1-3-К14 Панели 1ПС 27.18.3.0…, 1ПС 27.21.3.0… 1.030.1-1/88.1-3-К15 Панели 2ПС 27.6.3.0…, 2ПС 27.9.3.0… 1.030.1-1/88.1-3-К16 Панели 2ПС 27.12.3.0…, 2ПС 27.15.3.0… 1.030.1-1/88.1-3-К17 Панели 2ПС 27.18.3.0…, 2ПС 27.21.3.0… 1.030.1-1/88.1-3-К18 Панели 1ПС 57.6.3.0…, 1ПС 57.9.3.0… 1.030.1-1/88.1-3-К19 Панели 1ПС 57.12.3.0…, 1ПС 57.15.3.0… 1.030.1-1/88.1-3-К20 Панели 1ПС 57.18.3.0…, 1ПС 57.21.3.0… 1.030.1-1/88.1-3-К21 Панели 2ПС 57.6.3.0…, 2ПС 57.9.3.0… 1.030.1-1/88.1-3-К22 Панели 2ПС 57.12.3.0…, 2ПС 57.15.3.0… 1.030.1-1/88.1-3-К23 Панели 2ПС 57.18.3.0…, 2ПС 57.21.3.0… 1.030.1-1/88.1-3-К24 Панели ПС 3.12.3.0…, ПС 3.18.3.0…, ПС 3.21.3.0… 1.030.1-1/88.1-3-К25 Панели ПС 6.12.3.0…, ПС 6.18.3.0…, ПС 6.21.3.0… 1.030.1-1/88.1-3-К26 Панели ПС 12.12.3.0…, ПС 12.18.3.0…, ПС 12.21.3.0… 1.030.1-1/88.1-3-К27 Панели ПС 12.12.3.0…-1, ПС 12.18.3.0…-1, ПС 12.21.3.0…-1 1.030.1-1/88.1-3-К28 Панели 3ПС 51.60.3.0…, 3ПС 51.90.3.0… 1.030.1-1/88.1-3-К29 Панели 3ПС 51.120.3.0…, 3ПС 51.150.3.0… 1.030.1-1/88.1-3-К30 Панели 3ПС 51.180.3.0…, 3ПС 51.210.3.0… 1.030.1-1/88.1-3-К31 Панели 4ПС 67.120.3.0…-Л, 4ПС 67.180.3.0…-Л, 4ПС 67.210.3.0…-Л 1.030.1-1/88.1-3-К32 Панели 4ПС 67.120.3.0…-Я, 4ПС 67.180.3.0…-Я, 4ПС 67.210.3.0…-Я 1.030.1-1/88.1-3-К33 Панели ПСК 60.6.3.0…, ПСК 60.9.3.0… 1.030.1-1/88.1-3-К34 Панели 1ПСК 57.6.3.0…, 1ПСК 57.9.3.0… 1.030.1-1/88.1-3-К35 Панели 2ПСК 57.6.3.0…, 2ПСК 57.9.3.0… 1.030.1-1/88.1-3-К36 Панели 1ПС 27.5.6.3.0…, 1ПС 27.5.9.3.0… 1.030.1-1/88.1-3-К37 Панели 1ПС 27.5.12.3.0…, 1ПС 27.5.15.3.0… 1.030.1-1/88.1-3-К38 Панели 1ПС 27.5.18.3.0…, 1ПС 27.5.21.3.0… 1.030.1-1/88.1-3-К39 Панели 2ПС 27.5.6.3.0…, 2ПС 27.5.9.3.0… 1.030.1-1/88.1-3-К40 Панели 2ПС 27.5.12.3.0…, 2ПС 27.5.15.3.0… 1.030.1-1/88.1-3-К41 Панели 2ПС 27.5.18.3.0…, 2ПС 27.5.21.3.0… 1.030.1-1/88.1-3-К42 Панели 1ПС 57.5.6.3.0…, 1ПС 57.5.9.3.0… 1.030.1-1/88.1-3-К43 Панели 1ПС 57.5.12.3.0…, 1ПС 57.5.15.3.0… 1.030.1-1/88.1-3-К44 Панели 1ПС 57.5.18.3.0…, 1ПС 57.5.21.3.0… 1.030.1-1/88.1-3-К45 Панели 2ПС 57.5.6.3.0…, 2ПС 57.5.9.3.0… 1.030.1-1/88.1-3-К46 Панели 2ПС 57.5.12.3.0…, 2ПС 57.5.15.3.0… 1.030.1-1/88.1-3-К47 Панели 2ПС 57.5.18.3.0…, 2ПС 57.5.21.3.0… 1.030.1-1/88.1-3-К48 Панели 3ПС 46.60.3.0…, 3ПС 46.90.3.0… 1.030.1-1/88.1-3-К49 Панели 3ПС 46.120.3.0…, 3ПС 46.150.3.0… 1.030.1-1/88.1-3-К50 Панели 3ПС 46.180.3.0…, 3ПС 46.210.3.0… 1.030.1-1/88.1-3-К51 Панели 4ПС 72.120.30-Л, 4ПС 72.180.30-Л, 4ПС 72.210.30-Л 1.030.1-1/88.1-3-К52 Панели 4ПС 72.120.30-Я, 4ПС 72.180.30-Я, 4ПС 72.210.30-Я 1.030.1-1/88.1-3-К53 Панели 1ПСК 57.5.6.3.0…, 1ПСК 57.5.9.3.0… 1.030.1-1/88.1-3-К54 Панели 2ПСК 57.5.6.3.0…, 2ПСК 57.5.9.3.0… 1.030.1-1/88.1-3-К55 Узлы 1… 14 1.030.1-1/88.1-3-РС Ведомость расхода стали |
| Разработан: | НИИЖБ Госстроя СССР ЦНИИЭП ТБЗ и ТК |
| Утверждён: | 12.03.1989 Госстрой СССР (Государственный комитет Совета Министров СССР по делам строительства) (USSR Gosstroy АЧ-10) |
| Расположен в: | |
| Нормативные ссылки: |
|

















































































































































