Информационная система
«Ёшкин Кот»

Скачать базу одним архивом
Скачать обновления
История создания базы
Карта сайта

Скачать Серия 2.110-1 Выпуск 6. Ленточные фундаменты и стены подвалов из монолитного железобетона для крупнопанельных, крупноблочных и кирпичных зданий. Материалы для проектирования

Дата актуализации: 10.08.2017

Серия 2.110-1

Выпуск 6. Ленточные фундаменты и стены подвалов из монолитного железобетона для крупнопанельных, крупноблочных и кирпичных зданий. Материалы для проектирования

Обозначение: Серия 2.110-1
Обозначение англ: Series 2.110-1
Статус:действует
Название рус.:Выпуск 6. Ленточные фундаменты и стены подвалов из монолитного железобетона для крупнопанельных, крупноблочных и кирпичных зданий. Материалы для проектирования
Дата добавления в базу:01.09.2013
Дата актуализации:05.05.2017
Область применения:В настоящем выпуске приведены конструктивные решения ленточных фундаментов и стен подвалов из монолитного железобетона бескаркасных жилых и общественных зданий, предназначенных для строительства в обычных условиях
Оглавление:2.110-.6 Содержание
2.110-1.6-01ПЗ Техническое описание
2.110-1.6-02СМ Примеры схем расположения фундаментов. Схема расположения арматурных элементов стен подполья
2.110-1.6-03СМ Детали 1+6 при монолитных фундаментах крупнопанельных зданий
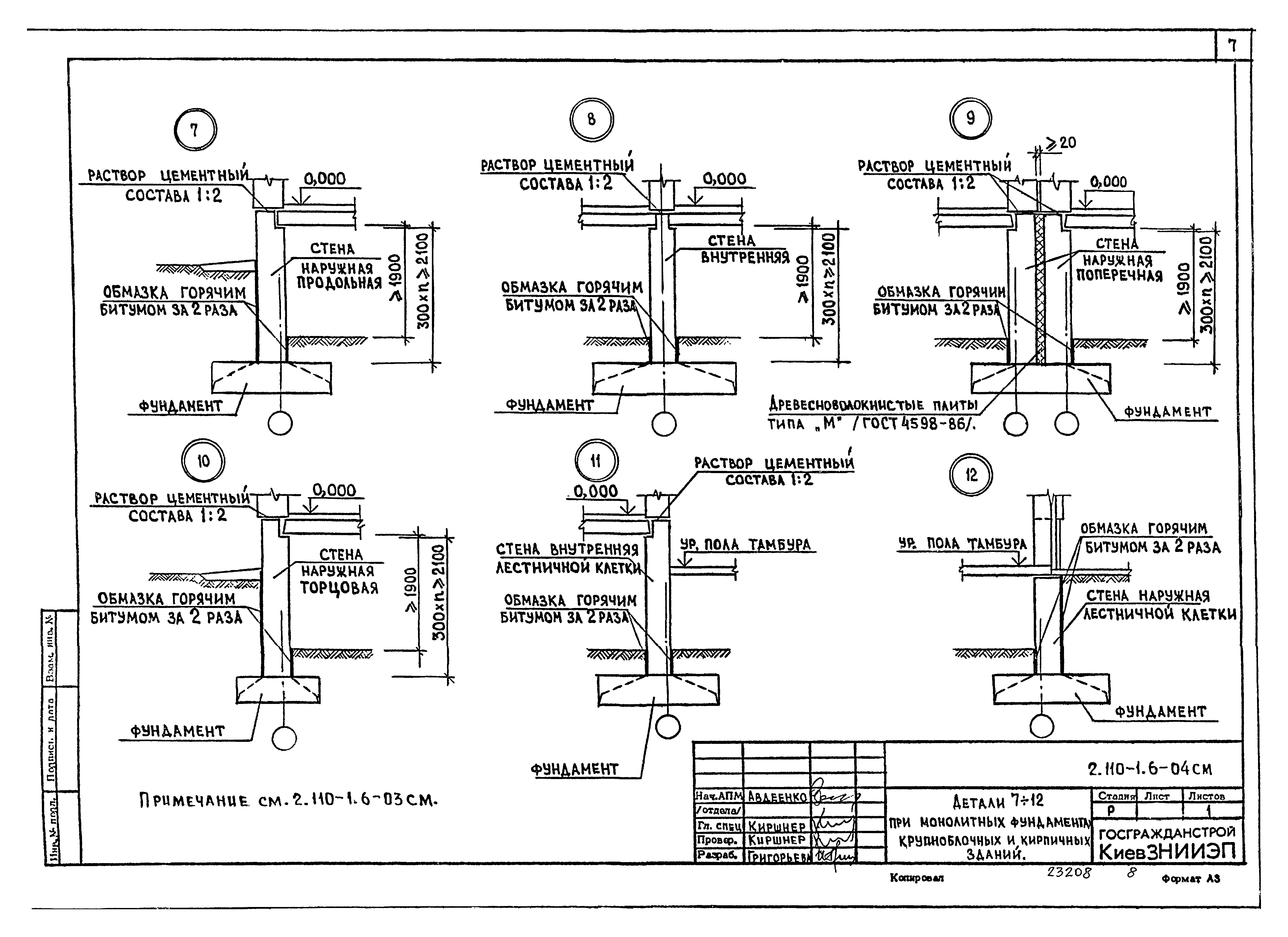
2.110-1.6-04СМ Детали 7+12 при монолитных фундаментах крупноблочных и кирпичных зданий
2.110-1.6-05СМ Детали 13+18 при сборных фундаментах крупнопанельных зданий
2.110-1.6-06СМ Детали 19+24 при сборных фундаментах крупноблочных и кирпичных зданий
2.110-1.6-07СМ Узлы I-V
Разработан: КиевЗНИИЭП
Утверждён:01.04.1988 Госкомархитектура (94)
Расположен в:Техническая документация Строительство Справочные документы Типовые строительные конструкции, изделия и узлы Общероссийский строительный каталог Строительные конструкции, изделия и узлы зданий и сооружений для всех видов строительства Конструкции, изделия и узлы зданий Конструкции нулевого цикла Детали фундаментов
Нормативные ссылки:
Серия 2.110-1Серия 2.110-1Серия 2.110-1Серия 2.110-1Серия 2.110-1Серия 2.110-1Серия 2.110-1Серия 2.110-1Серия 2.110-1Серия 2.110-1Серия 2.110-1

© 2013 Ёшкин Кот :-) Карта сайта