Информационная система
«Ёшкин Кот»

Скачать базу одним архивом
Скачать обновления
История создания базы
Карта сайта

Скачать 3РС 17-15 Панели наружных стен цокольные трехслойные с высокими теплотехническими характеристиками

Дата актуализации: 10.08.2017

3РС 17-15

Панели наружных стен цокольные трехслойные с высокими теплотехническими характеристиками

Обозначение: 3РС 17-15
Обозначение англ: 3РС 17-15
Статус:не определен законодательством
Название рус.:Панели наружных стен цокольные трехслойные с высокими теплотехническими характеристиками
Дата добавления в базу:01.09.2013
Дата актуализации:05.05.2017
Дата введения:18.03.1999
Оглавление:ЗРС17-15.ПЗ. Пояснительная записка
ЗРС17-15.НИ. Номенклатура изделий
ЗРС17-15.РС. Ведомость расхода стали
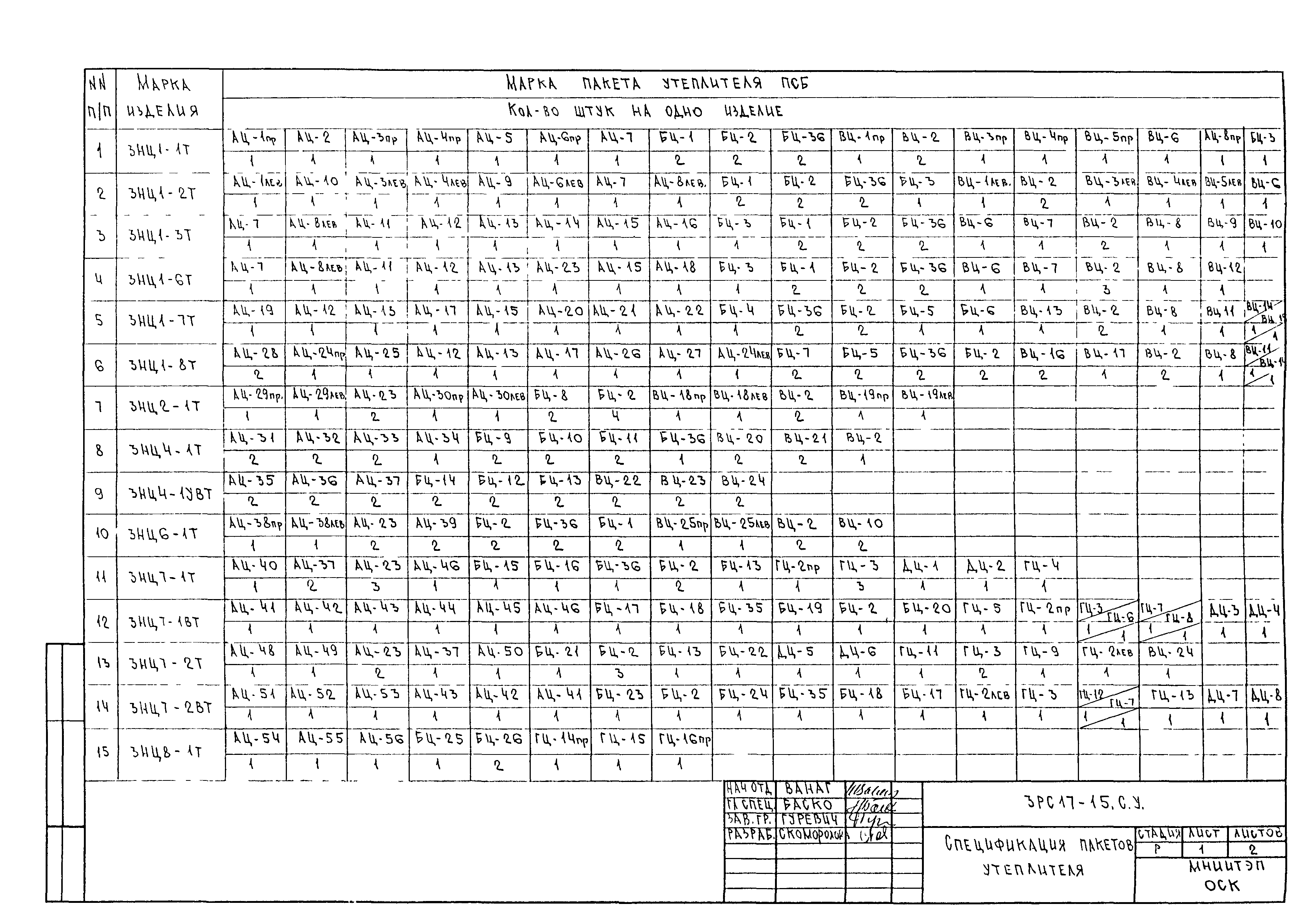
ЗРС17-15.СУ. Спецификация пакетов утеплителя
ЗРС17-15.ЗНЦ.01СБ. Панель ЗНЦ1-1т. Сборочный чертеж
ЗРС17-15.ЗНЦ.02СБ. Панель ЗНЦ1-2т. Сборочный чертеж
ЗРС17-15.ЗНЦ.03СБ. Панель ЗНЦ1-3т. Сборочный чертеж
ЗРС17-15.ЗНЦ.04СБ. Панель ЗНЦ1-6т. Сборочный чертеж
ЗРС17-15.ЗНЦ.05СБ. Панель ЗНЦ1-7т. Сборочный чертеж
ЗРС17-15.ЗНЦ.06СБ. Панель ЗНЦ1-8т. Сборочный чертеж
ЗРС17-15.ЗНЦ.07СБ. Панель ЗНЦ2-1т. Сборочный чертеж
ЗРС17-15.ЗНЦ.08СБ. Панель ЗНЦ4-1т. Сборочный чертеж
ЗРС17-15.ЗНЦ.09СБ. Панель ЗНЦ4-1увт. Сборочный чертеж
ЗРС17-15.ЗНЦ.10СБ. Панель ЗНЦ6-1т. Сборочный чертеж
ЗРС17-15.ЗНЦ.11СБ. Панель ЗНЦ7-1т. Сборочный чертеж
ЗРС17-15.ЗНЦ.12СБ. Панель ЗНЦ7-1вт. Сборочный чертеж
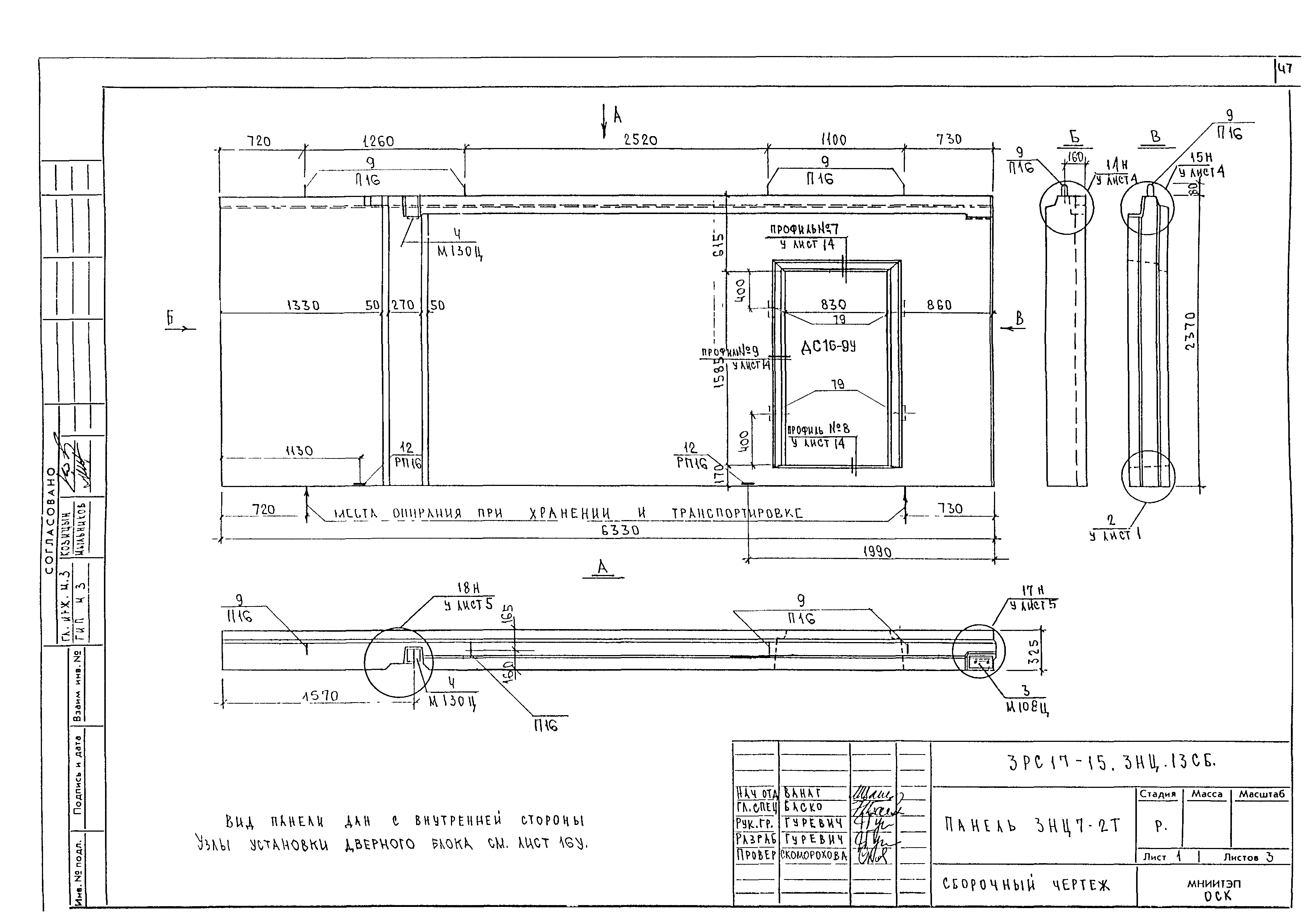
ЗРС17-15.ЗНЦ.13СБ. Панель ЗНЦ7-2т. Сборочный чертеж
ЗРС17-15.ЗНЦ.14СБ. Панель ЗНЦ7-2вт. Сборочный чертеж
ЗРС17-15.ЗНЦ.15СБ. Панели ЗНЦ8-1т, ЗНЦ8-2т. Сборочный чертеж
ЗРС17-15.ЗНЦ.16ъСБ. Панель ЗНЦ9-3т. Сборочный чертеж
ЗРС17-15.ЗНЦ.17СБ. Панели ЗНЦ10-2т, ЗНЦ10-3т. Сборочный чертеж
ЗРС17-15.ЗНЦ.18СБ. Панель ЗНЦ1-2т. Сборочный чертеж
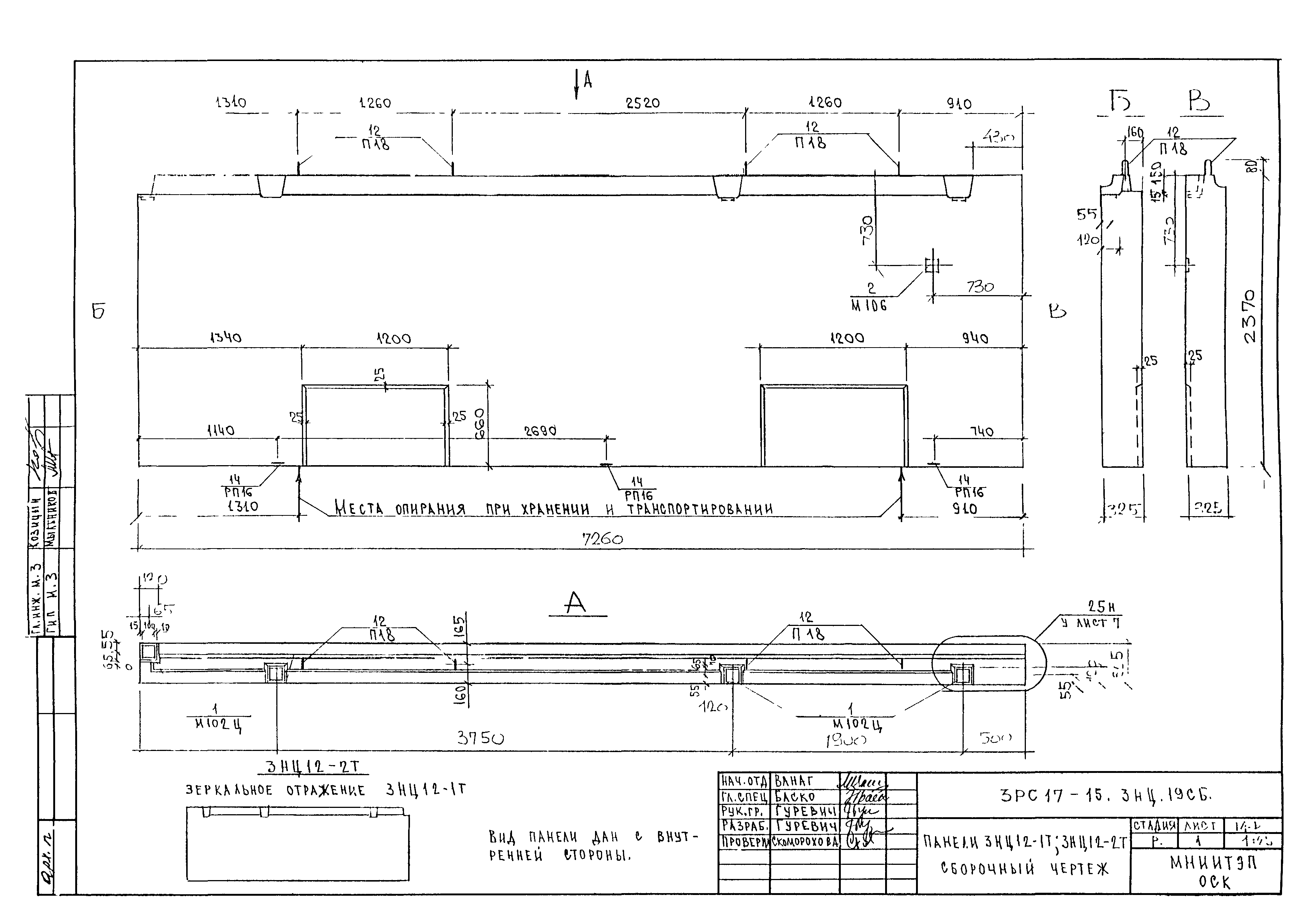
ЗРС17-15.ЗНЦ.19СБ. Панели ЗНЦ12-1т, ЗНЦ12-2т. Сборочный чертеж
ЗРС17-15.ЗНЦ.20СБ. Панель ЗНЦ13-3т. Сборочный чертеж
ЗРС17-15.ЗНЦ.21СБ. Панель ЗНЦ14-2т. Сборочный чертеж
ЗРС17-15.У. Узлы габаритные
ЗРС17-15.УУ. Узлы раскладки утеплителя
ЗРС17-15.УА. Узлы арматурные
ЗРС17-15. Каркасы. Сборочный чертеж
ЗРС17-15. Сетки. Сборочный чертеж
ЗРС17-15. Петли. Сборочный чертеж
ЗРС17-15. Закладные детали. Сборочный чертеж
ЗРС17-15.П.У. Пакеты утеплителя
ЗРС17-15. Информационная карта
Разработан: МНИИТЭП
Утверждён:18.03.1999 МНИИТЭП (MNIITEP 9-то)
Расположен в:Техническая документация Экология СТРОИТЕЛЬНЫЕ МАТЕРИАЛЫ И СТРОИТЕЛЬСТВО Строительные элементы Стены. Перегородки. Фасады Строительство Справочные документы Типовые строительные конструкции, изделия и узлы Разработанные другими министерствами, ведомствами и организациями
3РС 17-153РС 17-153РС 17-153РС 17-153РС 17-153РС 17-153РС 17-153РС 17-153РС 17-153РС 17-153РС 17-153РС 17-153РС 17-153РС 17-153РС 17-153РС 17-153РС 17-153РС 17-153РС 17-153РС 17-153РС 17-153РС 17-153РС 17-153РС 17-153РС 17-153РС 17-153РС 17-153РС 17-153РС 17-153РС 17-153РС 17-153РС 17-153РС 17-153РС 17-153РС 17-153РС 17-153РС 17-153РС 17-153РС 17-153РС 17-153РС 17-153РС 17-153РС 17-153РС 17-153РС 17-153РС 17-153РС 17-153РС 17-153РС 17-153РС 17-153РС 17-153РС 17-153РС 17-153РС 17-153РС 17-153РС 17-153РС 17-153РС 17-153РС 17-153РС 17-153РС 17-153РС 17-153РС 17-153РС 17-153РС 17-153РС 17-153РС 17-153РС 17-153РС 17-153РС 17-153РС 17-153РС 17-153РС 17-153РС 17-153РС 17-153РС 17-153РС 17-153РС 17-153РС 17-153РС 17-153РС 17-153РС 17-153РС 17-153РС 17-153РС 17-153РС 17-153РС 17-153РС 17-153РС 17-153РС 17-153РС 17-153РС 17-153РС 17-153РС 17-153РС 17-153РС 17-153РС 17-153РС 17-153РС 17-153РС 17-153РС 17-153РС 17-153РС 17-153РС 17-153РС 17-153РС 17-153РС 17-15

© 2013 Ёшкин Кот :-) Карта сайта