Информационная система
«Ёшкин Кот»

Скачать базу одним архивом
Скачать обновления
История создания базы
Карта сайта

Скачать 6ПДС Жилые блок-секции серии М6 ЭКО. Архитектурно-строительные решения. Подземная часть. Железобетонные конструкции. Детали узлов

Дата актуализации: 10.08.2017

6ПДС

Жилые блок-секции серии М6 ЭКО. Архитектурно-строительные решения. Подземная часть. Железобетонные конструкции. Детали узлов

Обозначение: 6ПДС
Обозначение англ: 6ПДС
Статус:не определен законодательством
Название рус.:Жилые блок-секции серии М6 ЭКО. Архитектурно-строительные решения. Подземная часть. Железобетонные конструкции. Детали узлов
Дата добавления в базу:01.09.2013
Дата актуализации:05.05.2017
Дата введения:01.01.1999
Оглавление:Содержание
Техническое описание
Подземная часть здания. Ведомость нормативных документов на материалы, применяемые в узлах
Монтажные связи
Схемы расположения элементов техподполья
Герметизация стыков. Вертикальный шов тип I
Герметизация стыков. Вертикальный шов тип II
Герметизация стыков. Горизонтальный шов тип III
Герметизация стыков. Горизонтальный шов тип IV
Типы стандартных сварных швов. Условные обозначения
Раздел П1. Соединение панелей наружных стен с перекрытиями. Заделка стыков
   Наружные стены 01/П1. Заделка стыка
   Наружные стены 02/П1. Заделка стыка
   Наружные стены и перекрытия 02/П1. Заделка стыка
   Наружные стены 03/П1. Заделка стыка
   Наружные стены и перекрытия 03/П1. Заделка стыка
   Наружные стены и перекрытия 04/П1. План в уровне связей
   Наружные стены 04/П1
   Наружные стены и перекрытия 04/П1. Сечение 1-1
   Наружные стены и перекрытия 05/П1. План в уровне связей
   Наружные стены 05/П1. План в уровне связей
   Наружные стены 05/П1. Сечение 1-1
   Наружные стены и перекрытия 06/П1. План в уровне связей
   Наружные стены 06/П1. План в уровне связей
   Наружные стены 06/П1. Сечение 1-1
   Наружные стены и перекрытия 07/П1. План в уровне связей
   Наружные стены 07/П1. План в уровне связей
   Наружные стены и перекрытия 07/П1. Сечение 1-1
   Наружные стены 08/П1. Заделка стыка
   Наружные стены и перекрытия 08/П1. Заделка стыка
   Наружные стены 09/П1. Заделка стыка
   Наружные стены и перекрытия 09/П1. Заделка стыка
   Наружные стены и перекрытия 09/П1. План в уровне связей
   Наружные стены 09/П1. Сечение 1-1
   Наружные стены 10/П1. Заделка стыка
   Наружные стены и перекрытия 10/П1. Заделка стыка
   Наружные стены 10/П1. План в уровне связей
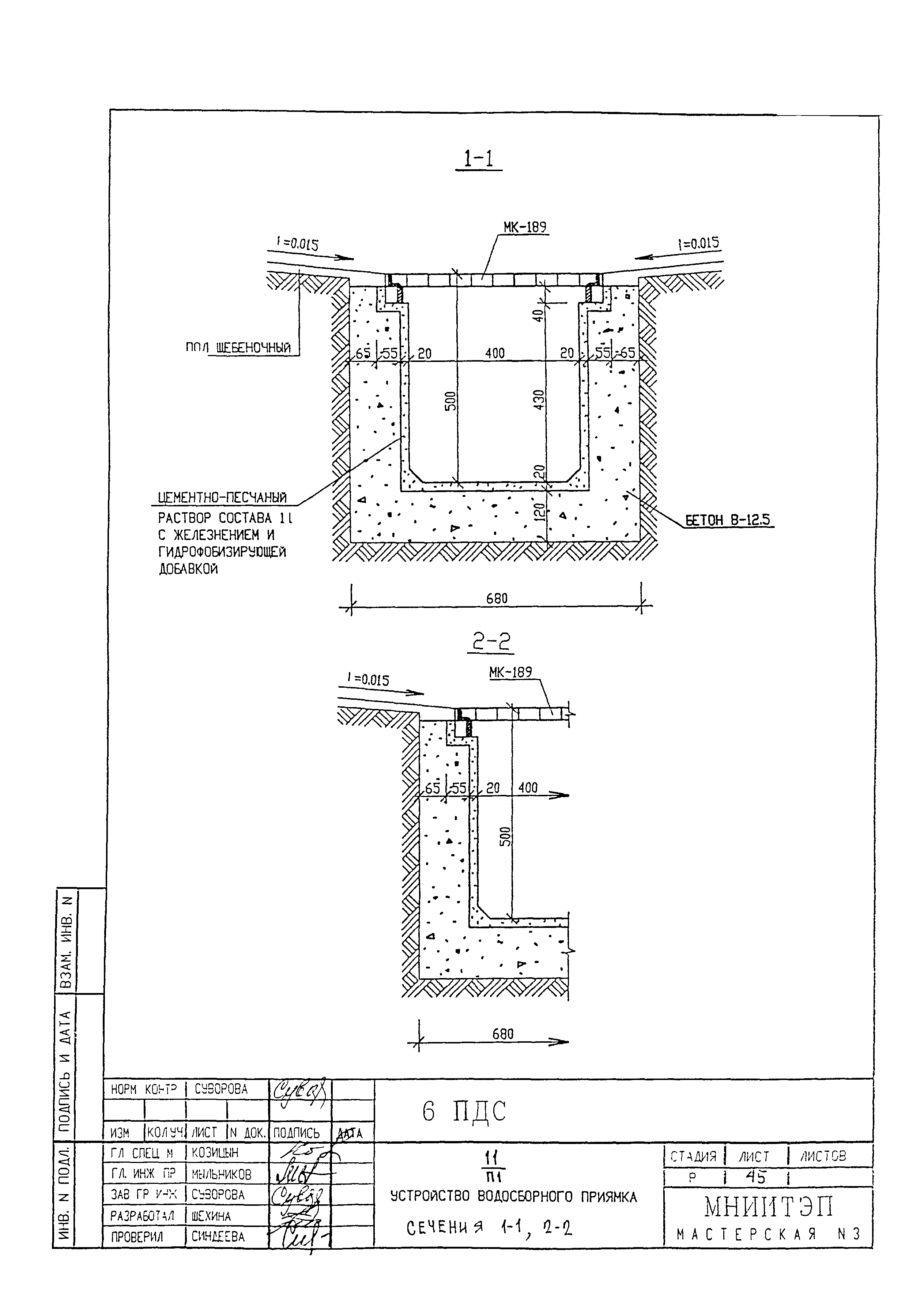
   Устройство водосборного приямка 11/П1
   Устройство водосборного приямка 11/П1. Сечения 1-1, 2-2
   Наружные стены 12/П1
   Наружные стены . Сечение 1-1/П1
   Наружные стены . Сечение 2-2/П1
   Наружные стены . Сечение 3-3/П1
   Наружные стены . Сечение 4-4/П1
   Наружные стены . Сечение 5-5/П1
Раздел П2. Соединение и заделка лифтовой шахты, блока инженерных коммуникаций, вентблоков, стояков отопления
   Схема шахты лифта
   Шахта лифта. Сечение 1-1
   Шахта лифта. Сечение 2-2
   Устройство водоотводного лотка и выпуска водостока
   Перекрытие. Установка вентблока БВ49-1
   Установка вентблока БВ49-1. Сечения 1-1, 2-2
   Перекрытие. Установка блока 6КБ-1
   Перекрытие. Заделка стояков отопления
Информационная карта
Разработан: МНИИТЭП
Утверждён:01.01.1999 МНИИТЭП (MNIITEP )
Расположен в:Техническая документация Экология СТРОИТЕЛЬНЫЕ МАТЕРИАЛЫ И СТРОИТЕЛЬСТВО Конструкции зданий Бетонные конструкции Строительство Справочные документы Типовые строительные конструкции, изделия и узлы Разработанные другими министерствами, ведомствами и организациями
6ПДС6ПДС6ПДС6ПДС6ПДС6ПДС6ПДС6ПДС6ПДС6ПДС6ПДС6ПДС6ПДС6ПДС6ПДС6ПДС6ПДС6ПДС6ПДС6ПДС6ПДС6ПДС6ПДС6ПДС6ПДС6ПДС6ПДС6ПДС6ПДС6ПДС6ПДС6ПДС6ПДС6ПДС6ПДС6ПДС6ПДС6ПДС6ПДС6ПДС6ПДС6ПДС6ПДС6ПДС6ПДС6ПДС6ПДС6ПДС6ПДС6ПДС6ПДС6ПДС6ПДС6ПДС6ПДС6ПДС6ПДС6ПДС6ПДС6ПДС6ПДС6ПДС6ПДС6ПДС

© 2013 Ёшкин Кот :-) Карта сайта