Скачать 3 НДС, часть III ш Железобетонные конструкции надземной части здания для жилых блок-секций серии П3М с 3-х слойными наружными стеновыми панелями. Детали узловДата актуализации: 10.08.2017 3 НДС, часть III ш
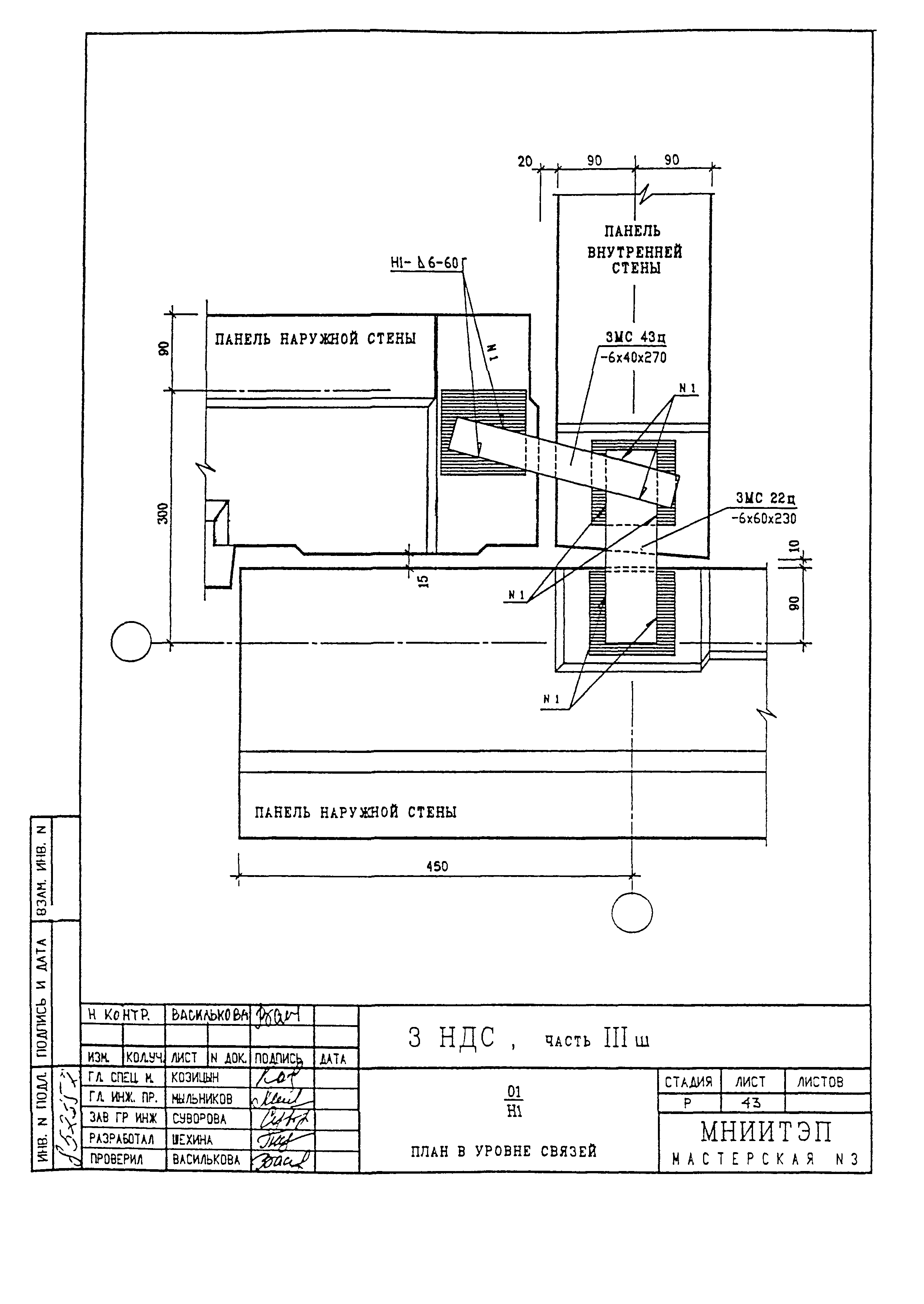
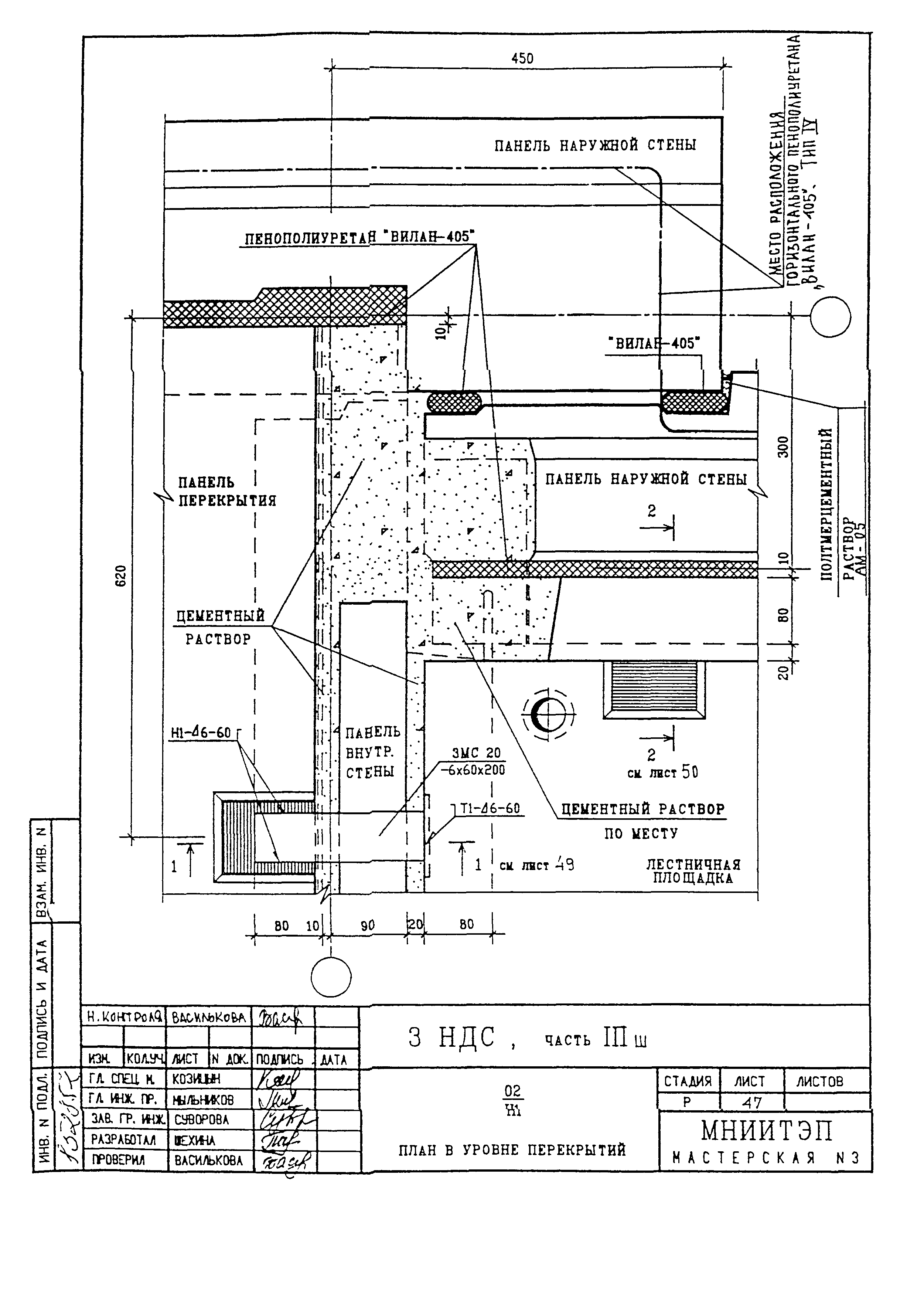
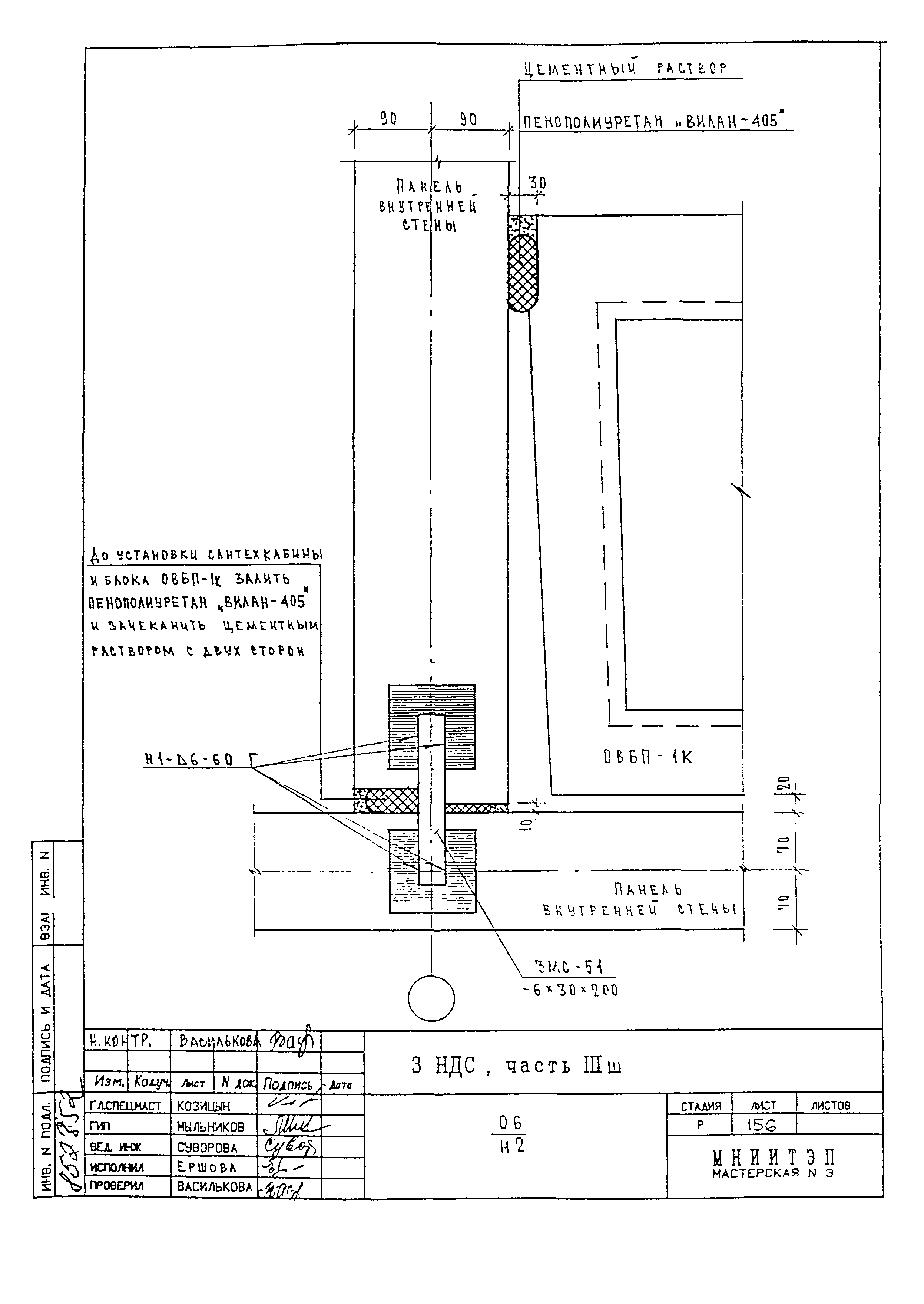
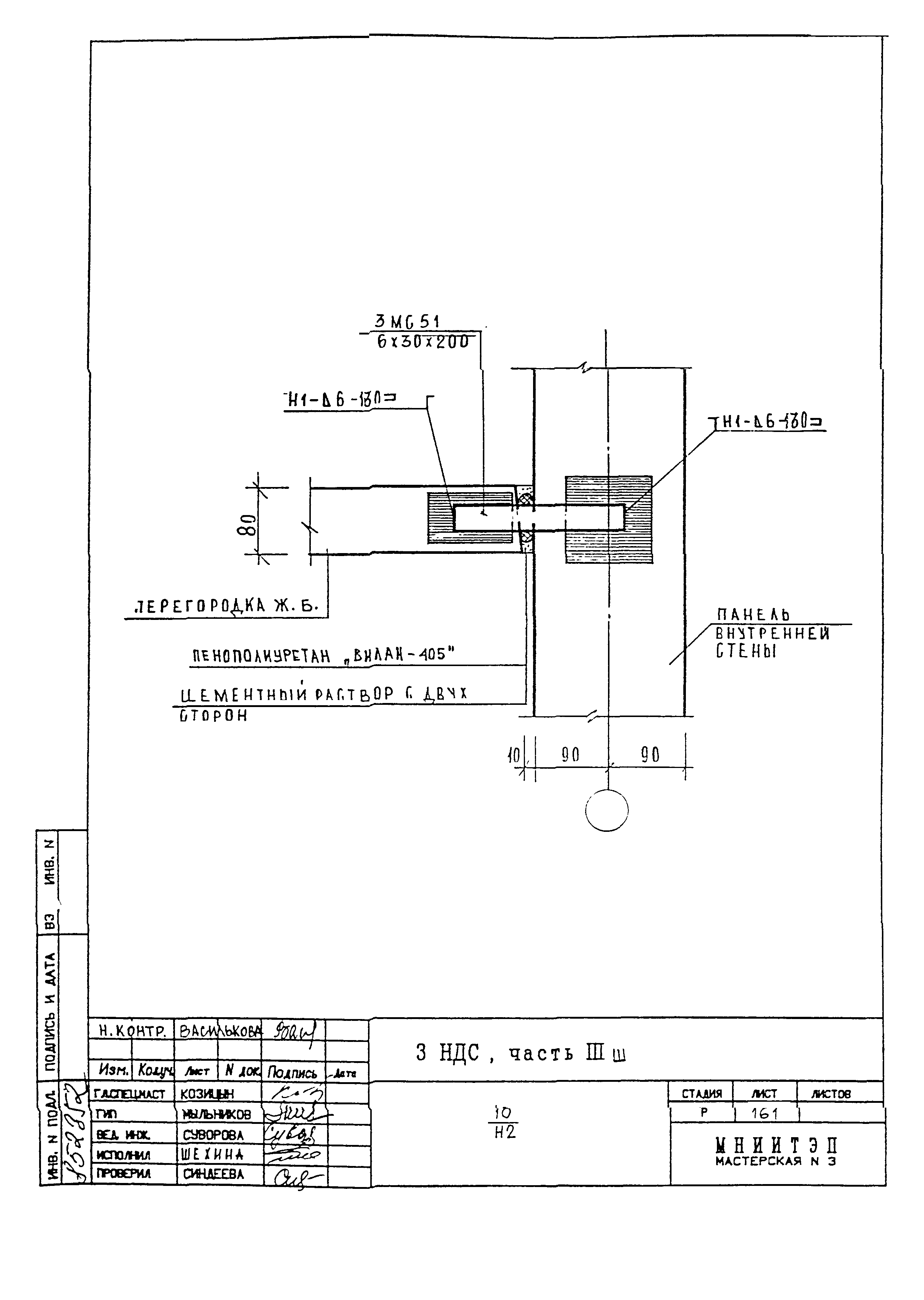
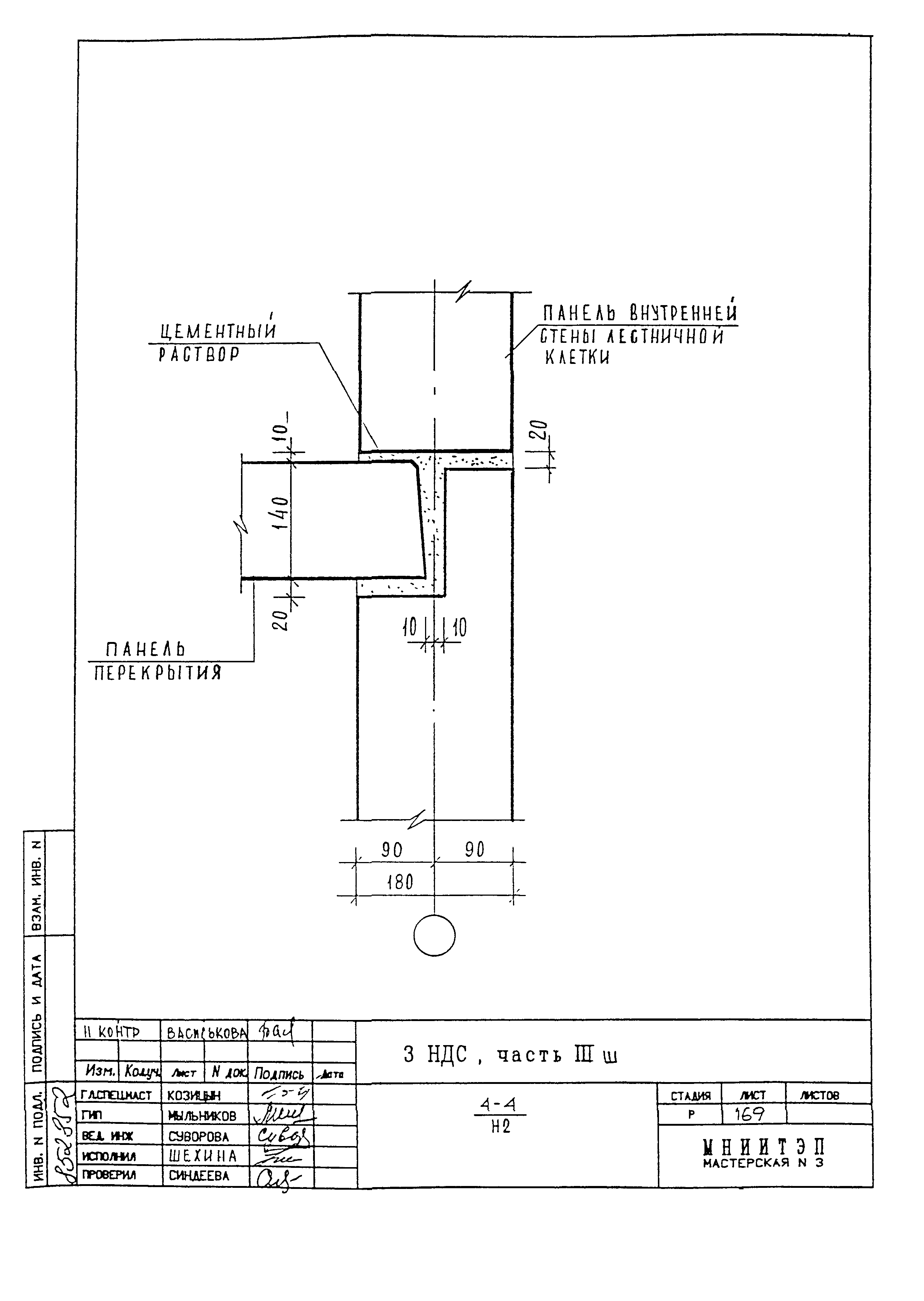
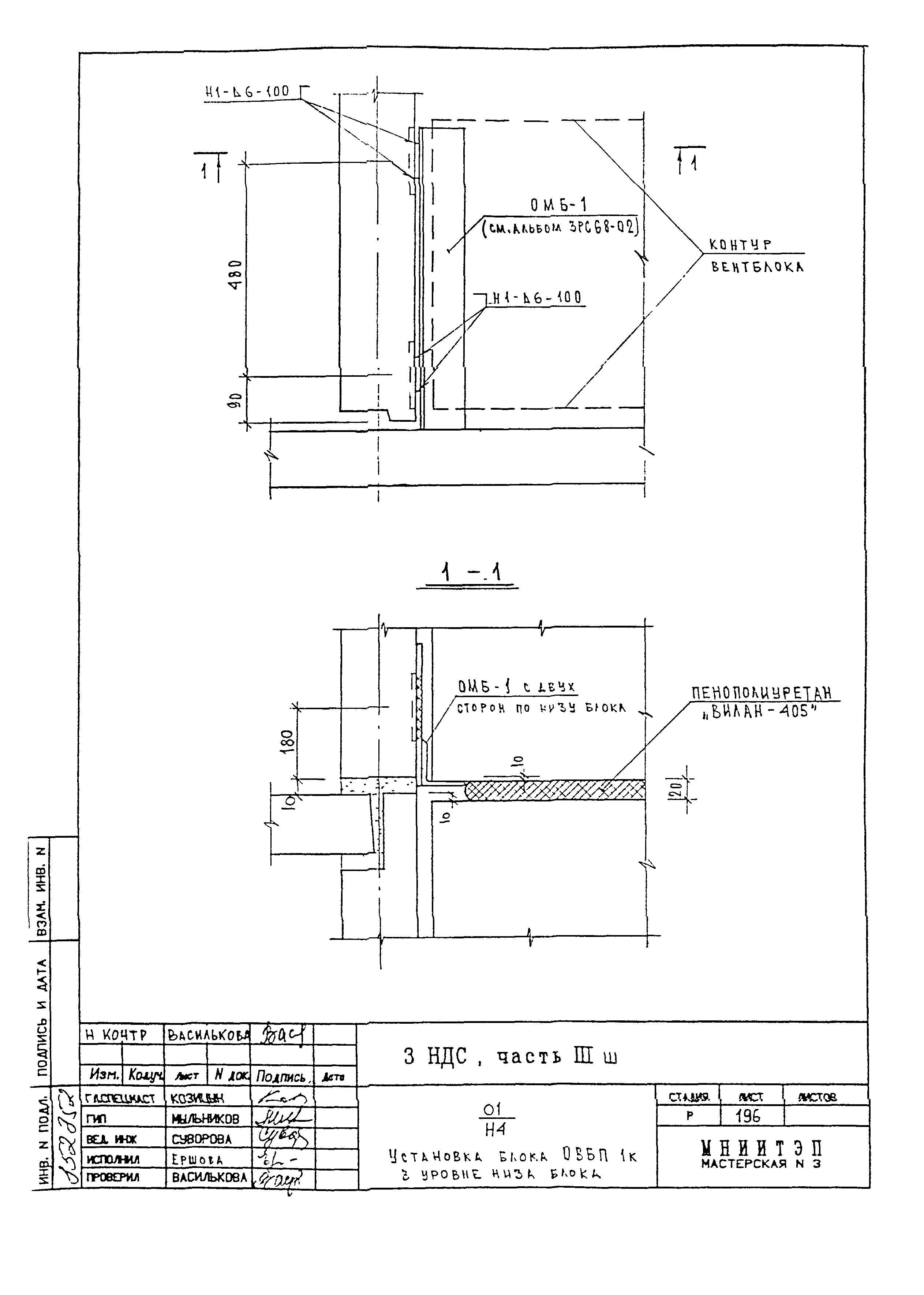
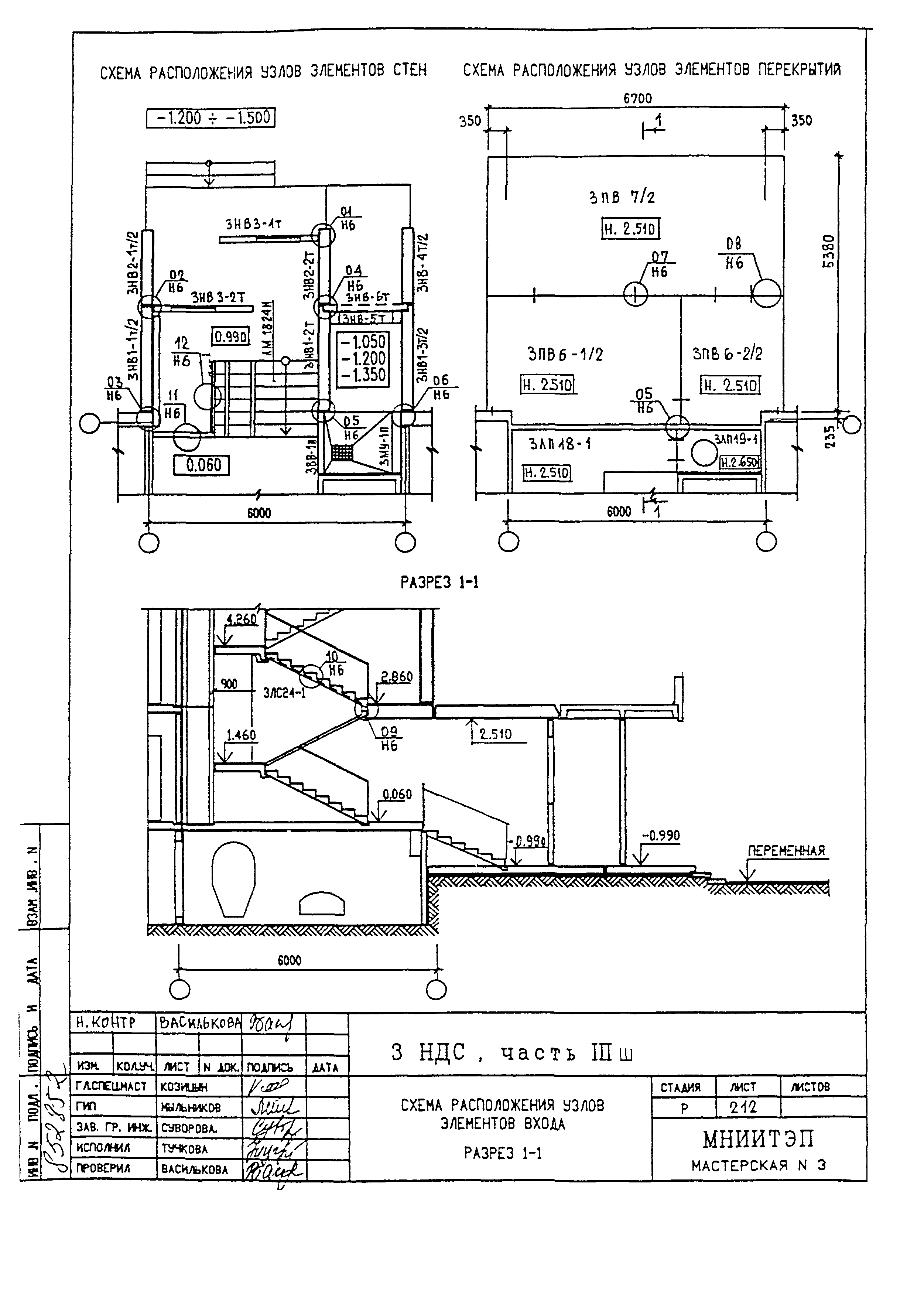
Железобетонные конструкции надземной части здания для жилых блок-секций серии П3М с 3-х слойными наружными стеновыми панелями. Детали узловОбозначение: | 3 НДС, часть III ш | Обозначение англ: | 3 НДС, часть III ш | Статус: | не определен законодательством | Название рус.: | Железобетонные конструкции надземной части здания для жилых блок-секций серии П3М с 3-х слойными наружными стеновыми панелями. Детали узлов | Дата добавления в базу: | 01.09.2013 | Дата актуализации: | 05.05.2017 | Дата введения: | 01.01.1999 | Область применения: | Альбом содержит узлы и детали сопряжений конструкций надземной части для жилых домов серии П3М производства ОАО ДСК-3 с трехслойными наружными стеновыми панелями. | Оглавление: | Содержание Техническое описание Ведомость нормативных документов на материалы, применяемые в узлах Монтажные связи Монтажные связи. Каркас замоноличивания стыка Схемы расположения элементов сборных конструкций Герметизация стыков. Вертикальный стык. Типы I - V Типы стандартных сварных швов. Условные обозначения Раздел Н1. Соединение панелей наружных стен между собой, внутренними стенами и перекрытиями. Заделка стыков. Крепление балконов и межсекционных перегородок Узлы 01 - 12, 14, 16 - 22, 26 - 32, 35 - 38, 40 Сечения 1-1 - 12-12 Спецификация монтажных связей на узел Раздел Н2. Соединение панелей внутренних стен и перегородок между собой. Заделка стыков Узлы 1 - 14, 15 Сечения 1-1 - 6-6 Спецификация монтажных связей на узел Раздел Н3. Соединение панелей перекрытий между собой Узлы 01 - 12; 14 - 17 Спецификация монтажных связей на узел Раздел Н4. Соединение и заделка лифтовой шахты, блока инженерных коммуникаций, мусоропровода и лестничного марша Узел 1 Сечения 1-1 - 7-7 Спецификация монтажных связей на узел Раздел Н5. Установка сантехнических кабин и вентблоков. Заделка стояков Узлы 1 - 6 Спецификация монтажных связей на узел Раздел Н6. Соединение и заделка стыков конструкций надземной части входа Схема расположения узлов элементов входа. Разрез 1-1 Кровля и установка обрамления козырька входа. Сечения 1-1, 2-2, 3-3 Узлы 1 - 12 Спецификация монтажных связей на узел Информационная карта | Разработан: | МНИИТЭП
| Утверждён: | 01.01.1999 МНИИТЭП (MNIITEP )
| Расположен в: |
|
                                                                                                                                                                                                                         
|