Информационная система
«Ёшкин Кот»

Скачать базу одним архивом
Скачать обновления
История создания базы
Карта сайта

Скачать 3 ВДС часть III м Установка столярных изделий в жилых блок-секциях серии П3М. Детали узлов

Дата актуализации: 10.08.2017

3 ВДС часть III м

Установка столярных изделий в жилых блок-секциях серии П3М. Детали узлов

Обозначение: 3 ВДС часть III м
Обозначение англ: 3 ВДС часть III м
Статус:не определен законодательством
Название рус.:Установка столярных изделий в жилых блок-секциях серии П3М. Детали узлов
Дата добавления в базу:01.09.2013
Дата актуализации:05.05.2017
Дата введения:01.01.1999
Область применения:Альбом содержит чертежи узлов установки и крепления к строительным конструкциям дверных блоков.
Оглавление:Содержание
Общие данные
Спецификация расходов материалов на узел
Схема расположения узлов 1-го этажа
Схема расположения узлов. Типовой этаж, машинное помещение, ЛЛУ в уровне чердака
Узел 2. Установка дверного блока УОШ 2, план, сечение 1-1
Узел 4. Установка дверного блока ДО 21-8, фрамуги Ф18, план, сечение 1-1
Узел 8. Установка дверного блока ДГ21-9, план, сечение 1-1
Узел 9. Установка дверного блока УОШ 1, план, сечение 1-1
Узел 11. Электрощитовая. Установка решетки СТД-296/1Р-150, дверного блока ДГ21-9П
Узел 15. Установка дверного блока ДС-16-9т, сечение 1-1
Узел 16. Установка дверного блока СМЗв, план, сечение 1-1
Узел 16(г). Установка дверного блока ДС16-9у, план, сечение 1-1
Узел 17. Установка дверного блока ДС19-9т, план, сечение 1-1
Узлы 18,19. Установка служебных люков ЛМ2, ЛМ4
Узел 18(г). Установка служебного люка ДЛ13-10
Узел 21. Установка дверного блока СМ36, план, сечение 1-1
Узел 27. Установка шкафа пожарных кранов ШП3
Узел 28. Крепление абонентских шкафов АШВД-6
Узел 29. Установка кухонного оборудования КВ-4, КМ5. Заделка монтажного люка сантехкабины
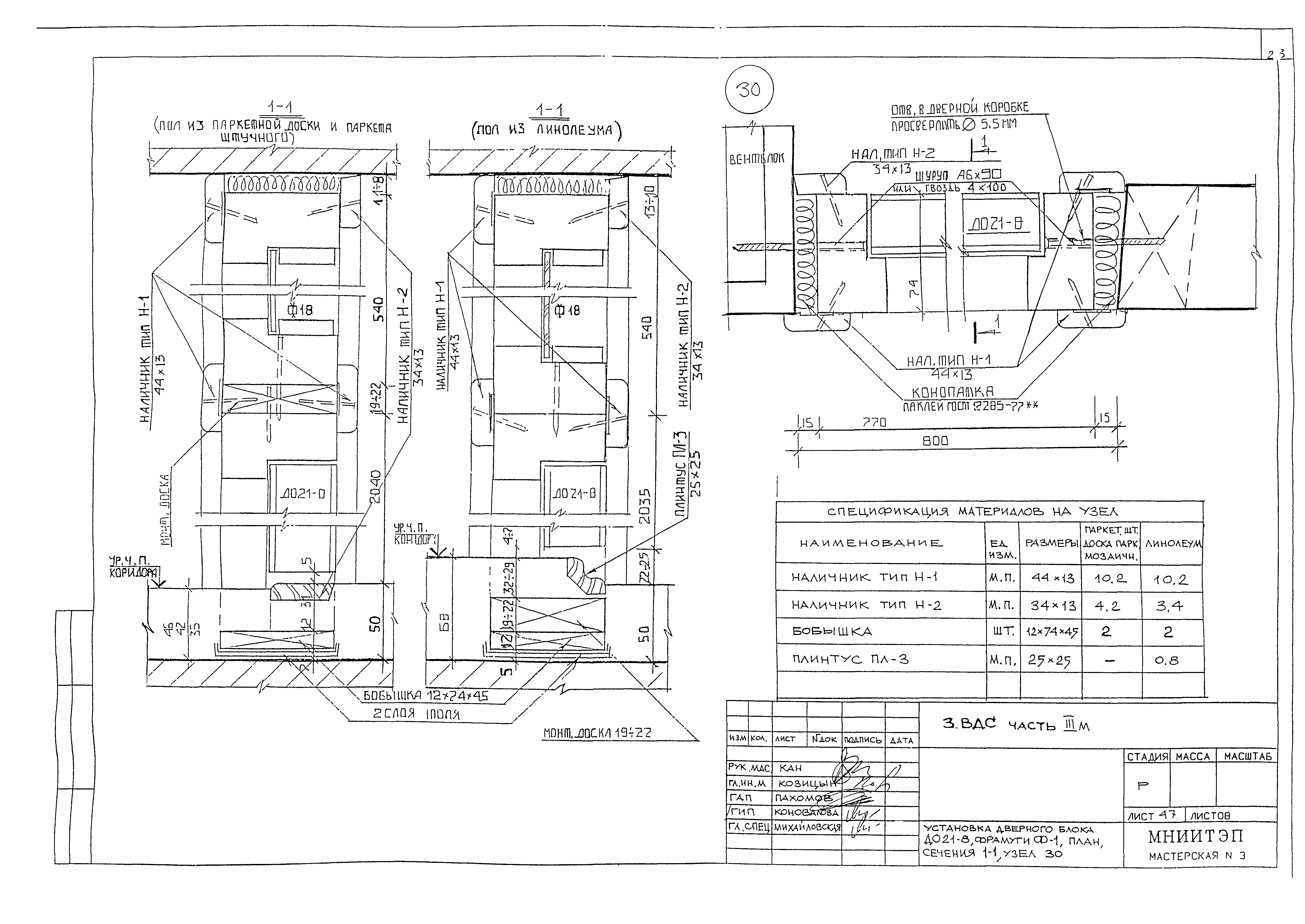
Узел 30. Установка дверного блока ДО21-8, фрамуги Ф-1, план, сечение 1-1
Узлы 31. Установка дверного блока ДГ21-7, план, сечение 1-1. Крепление ограждения лестничных маршей
Узел 32. Установка дверного блока ДГ21-9, план, сечение 1-1
Разработан: МНИИТЭП
Утверждён:01.01.1999 МНИИТЭП (MNIITEP )
Расположен в:Техническая документация Экология СТРОИТЕЛЬНЫЕ МАТЕРИАЛЫ И СТРОИТЕЛЬСТВО Строительные элементы Строительные элементы прочие Строительство Справочные документы Типовые строительные конструкции, изделия и узлы Разработанные другими министерствами, ведомствами и организациями
3 ВДС часть III м3 ВДС часть III м3 ВДС часть III м3 ВДС часть III м3 ВДС часть III м3 ВДС часть III м3 ВДС часть III м3 ВДС часть III м3 ВДС часть III м3 ВДС часть III м3 ВДС часть III м3 ВДС часть III м3 ВДС часть III м3 ВДС часть III м3 ВДС часть III м3 ВДС часть III м3 ВДС часть III м3 ВДС часть III м3 ВДС часть III м3 ВДС часть III м3 ВДС часть III м3 ВДС часть III м3 ВДС часть III м3 ВДС часть III м3 ВДС часть III м3 ВДС часть III м

© 2013 Ёшкин Кот :-) Карта сайта