Информационная система
«Ёшкин Кот»

Скачать базу одним архивом
Скачать обновления
История создания базы
Карта сайта

Скачать 6КДС Жилые блок-секции серии М6 ЭКО. Архитектурно-строительные решения. Надземная часть. Железобетонные конструкции чердака и кровли здания. Детали узлов

Дата актуализации: 10.08.2017

6КДС

Жилые блок-секции серии М6 ЭКО. Архитектурно-строительные решения. Надземная часть. Железобетонные конструкции чердака и кровли здания. Детали узлов

Обозначение: 6КДС
Обозначение англ: 6КДС
Статус:не определен законодательством
Название рус.:Жилые блок-секции серии М6 ЭКО. Архитектурно-строительные решения. Надземная часть. Железобетонные конструкции чердака и кровли здания. Детали узлов
Дата добавления в базу:01.09.2013
Дата актуализации:05.05.2017
Дата введения:01.01.1999
Оглавление:Содержание
Техническое описание
Ведомость нормативных документов на материалы, применяемые в узлах
Монтажные связи
Схемы расположения элементов сборных конструкций
Герметизация стыков. Типы I - III
Типы стандартных сварных швов. Условные обозначения
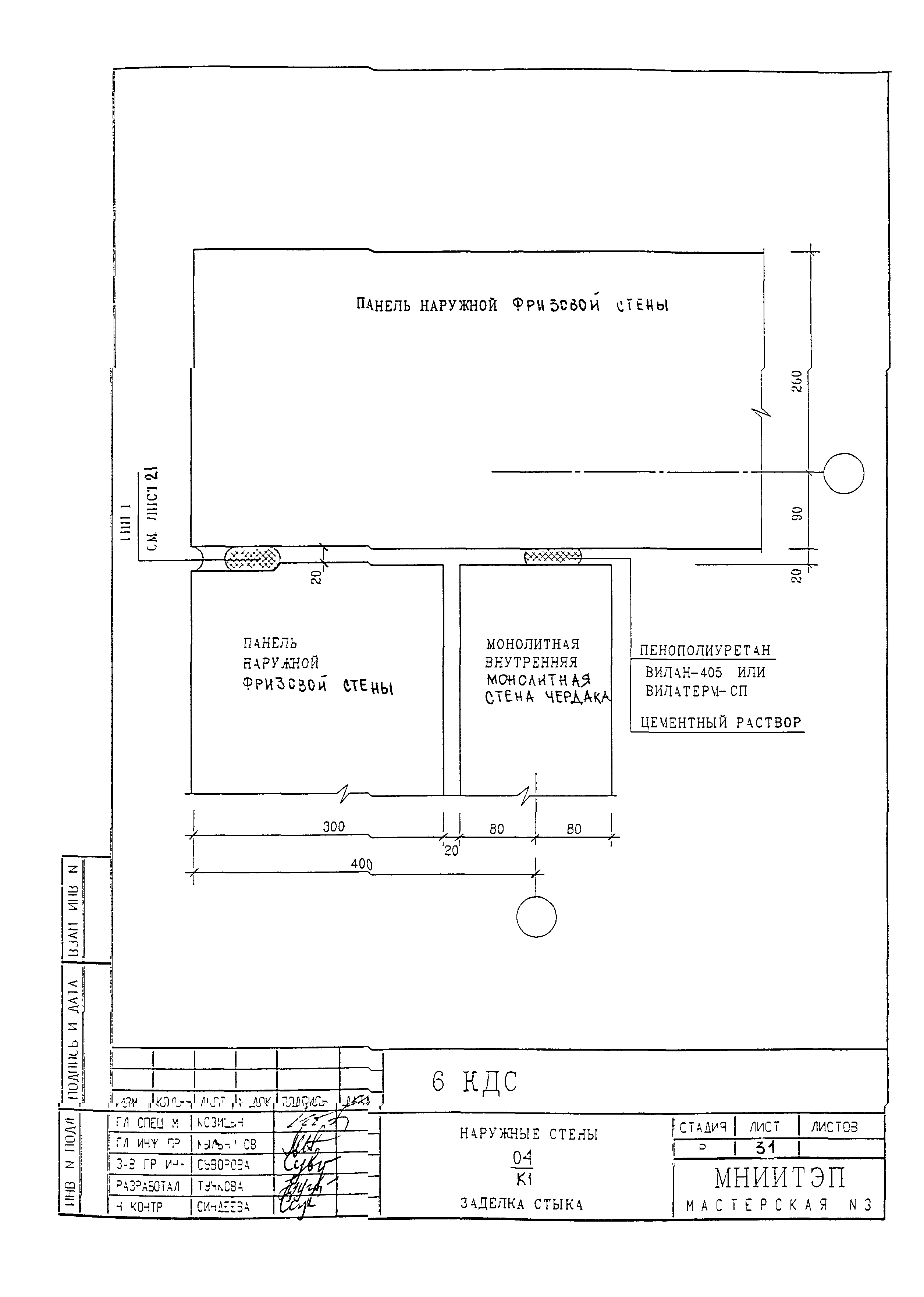
Раздел К1. Соединение фризовых панелей с несущими конструкциями чердака. Заделка стыков
   Узлы 1 - 13
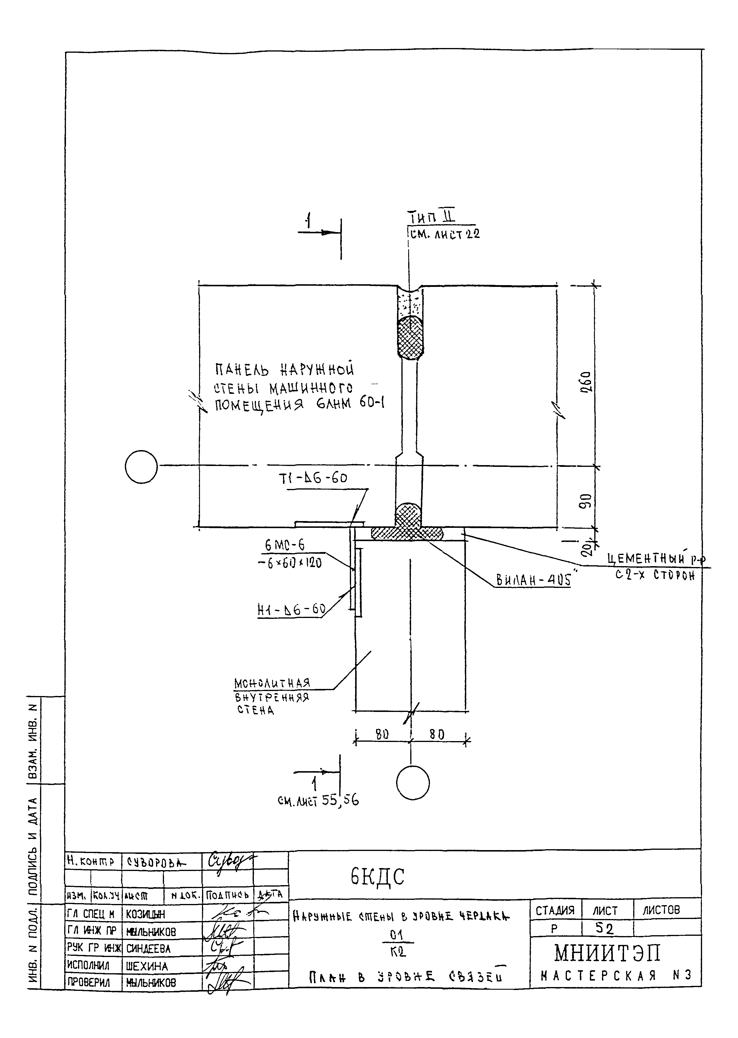
Раздел К2. Узлы и детали машинного помещения лифтов
   Узлы 1 - 12
   Сечения 1-1 - 3-3
Раздел К3. Узлы и детали кровли
   Узлы 1 - 16
Информационная карта
Разработан: МНИИТЭП
Утверждён:01.01.1999 МНИИТЭП (MNIITEP )
Расположен в:Техническая документация Экология СТРОИТЕЛЬНЫЕ МАТЕРИАЛЫ И СТРОИТЕЛЬСТВО Строительные элементы Крыши Строительство Справочные документы Типовые строительные конструкции, изделия и узлы Разработанные другими министерствами, ведомствами и организациями
6КДС6КДС6КДС6КДС6КДС6КДС6КДС6КДС6КДС6КДС6КДС6КДС6КДС6КДС6КДС6КДС6КДС6КДС6КДС6КДС6КДС6КДС6КДС6КДС6КДС6КДС6КДС6КДС6КДС6КДС6КДС6КДС6КДС6КДС6КДС6КДС6КДС6КДС6КДС6КДС6КДС6КДС6КДС6КДС6КДС6КДС6КДС6КДС6КДС6КДС6КДС6КДС6КДС6КДС6КДС6КДС6КДС6КДС6КДС6КДС6КДС6КДС6КДС6КДС6КДС6КДС6КДС6КДС6КДС6КДС6КДС6КДС6КДС6КДС6КДС6КДС6КДС6КДС6КДС6КДС6КДС6КДС6КДС6КДС6КДС6КДС6КДС6КДС6КДС6КДС6КДС6КДС6КДС6КДС6КДС6КДС6КДС

© 2013 Ёшкин Кот :-) Карта сайта