Информационная система
«Ёшкин Кот»

Скачать базу одним архивом
Скачать обновления
История создания базы
Карта сайта

Скачать РМ-2779-01 Часть I

Дата актуализации: 10.08.2017

РМ-2779-01

Часть I

Обозначение: РМ-2779-01
Обозначение англ: РМ-2779-01
Статус:не определен законодательством
Название рус.:Часть I
Дата добавления в базу:01.09.2013
Дата актуализации:05.05.2017
Дата введения:06.04.2000
Область применения:Альбом содержит рабочие чертежи наружных трехслойных становых панелей из тяжелого бетона с эффективным утеплителем, предназначенных для жилых домов серии М6 /"ЭКО"/.
Оглавление:РМ-2779-01.ч.1.ПЗ Пояснительная записка
РМ-2779-01.ч.1.НИ Номенклатура изделий
РМ-2779-01.ч.1.РС Ведомость расхода стали
РМ-2779-01.ч.1.6Н.01СБ Панели 6Н59-1м;6Н59-1-1м; 6Н59-1-2м ;6Н59-2м; 6Н59-2-1м; 6Н59-2-2м
РМ-2779-01.ч.1.6Н.02СБ Панели 6Н63-1м; 6Н63-1-1м; 6Н63-1-2м; 6Н63-2м; 6Н63-2-1м; 6Н63-2-2м
РМ-2779-01.ч.1.6Н.03СБ Панели 6Н64-1м; 6Н64-1-1м; 6Н64-2м; 6Н64-2-1м
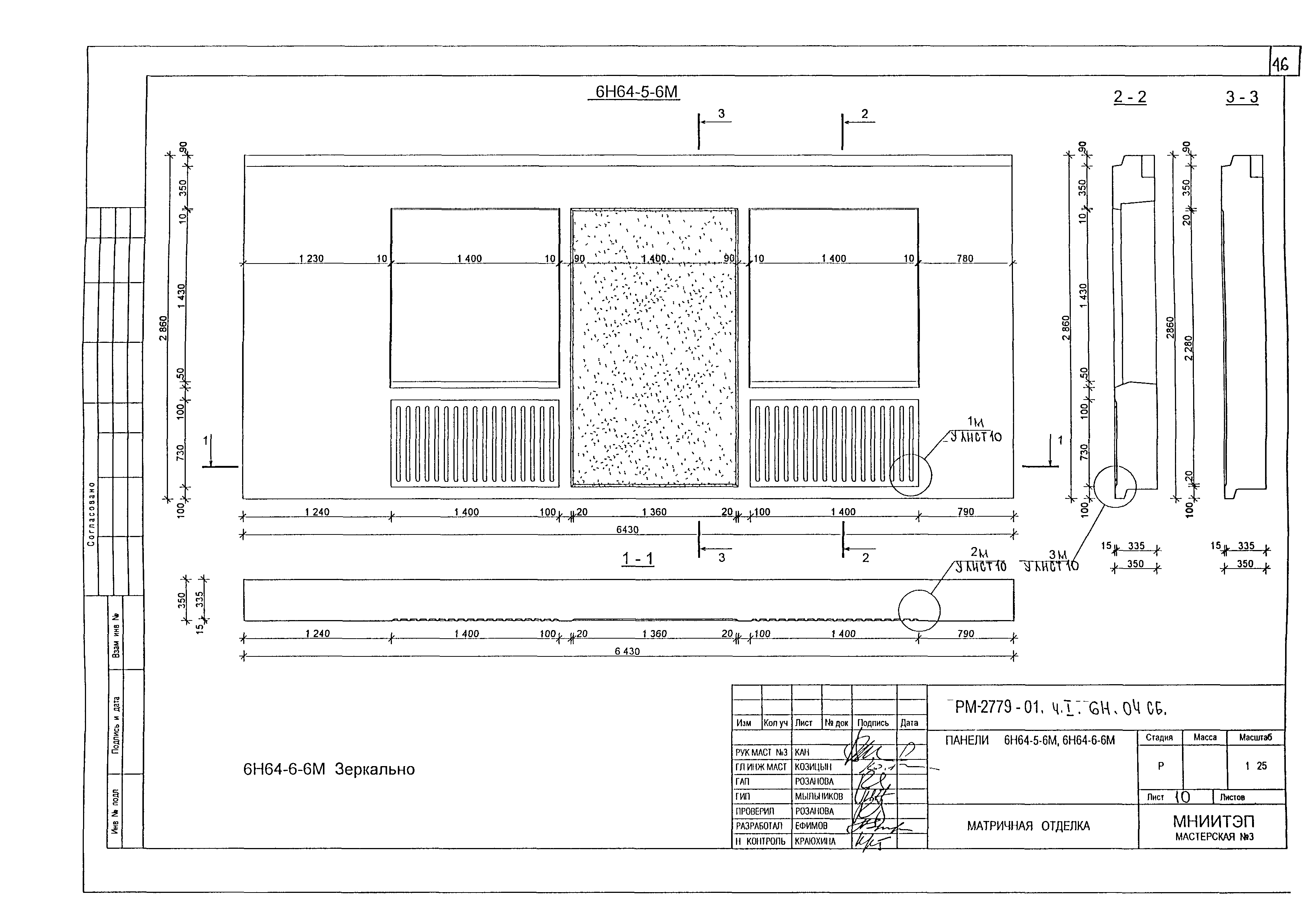
РМ-2779-01.ч.1.6Н.04СБ Панели 6H64-5-1м; 6Н64-5-2м; 6Н64-5-3м;  6Н64-5-4м; 6H64-6-1м;  6Н64-6-2М; 6Н64-6-3м; 6П64-6-4м. Панели 6Н64-5-5м; 6Н64-5-6м; 6Н64-5-7м; 6Н64-5-8м; 6Н64-6-5м; 6Н64-6-6м; 6Н64-6-7м; 6Н64-6-8м
РМ-2779-01.ч.1.6Н.05СБ Панели 6Н65-1м; 6Н65-1-1м; 6Н65-2м; 6H65-2-1м
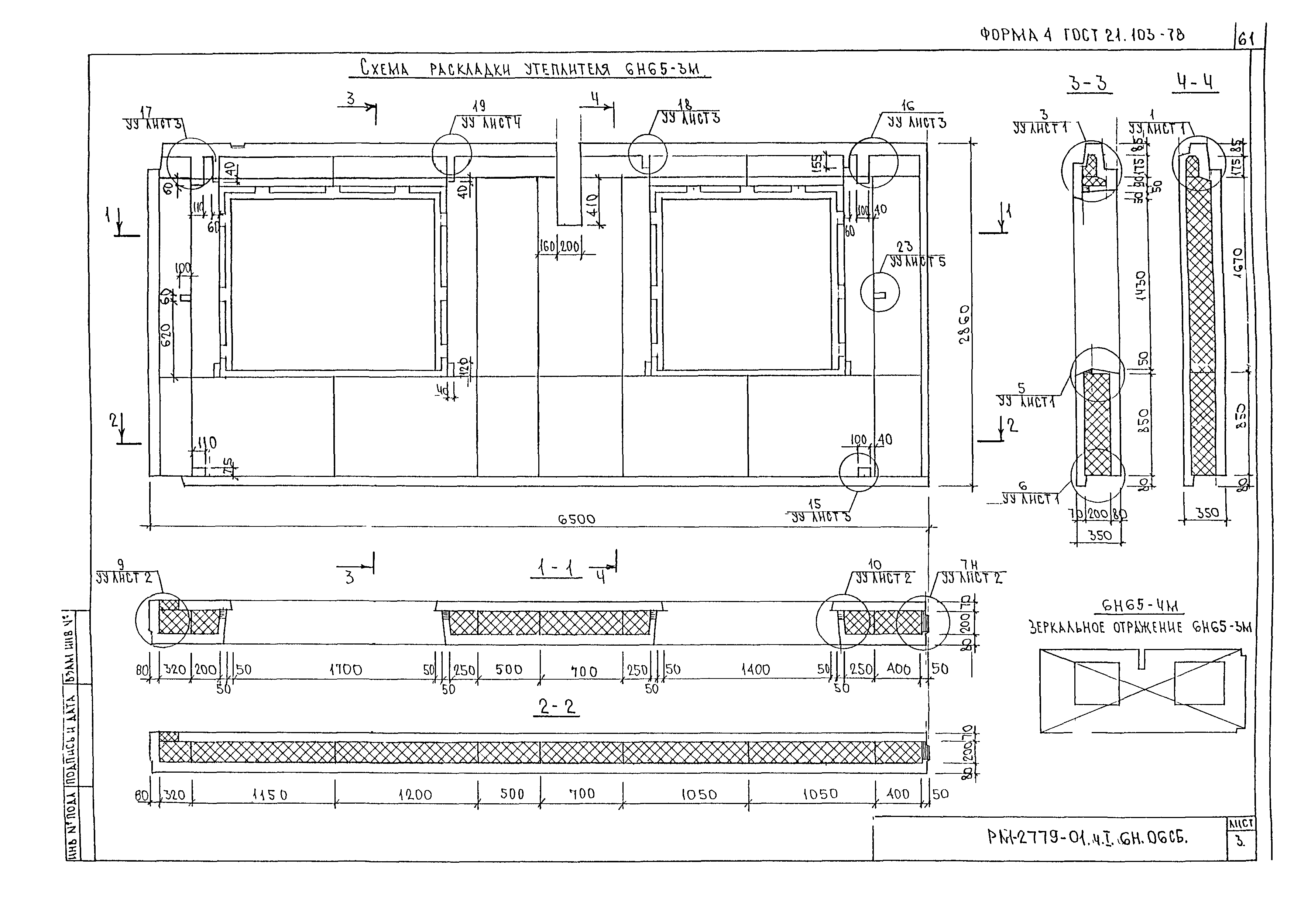
РМ-2779-01.ч.1.6Н.06СБ Панели 6Н65-3м; 6Н65-4м
РМ-2779-01.ч.1.6Н.07СБ Панели 6Н65-5; 6Н65-5м; 6Н65-6; 6Н65-6м
РМ-2779-01.ч.1.6Н.08СБ Панели 6Н69-1м; 6Н69-1-1м; 6Н69-2м; 6H69-2-1м
РМ-2779-01.ч.1.6Н.09СБ Панели 6Н69-3м; 6Н69-4м
РМ-2779-01.ч.1.6Н.10СБ Панели 6H69-5; 6Н69-5м; 6Н69-6; 6Н69-6м
РМ-2779-01.ч.1.У. Узлы габаритные
РМ-2779-01.ч.1.УУ. Узлы раскладки утеплителя
РМ-2779-01.ч.1.УА. Узлы арматурные
РМ-2779-01.ч.1. Каркасы. Сборочный чертёж
РМ-2779-01.ч.1. Сетки. Сборочный чертёж
РМ-2779-01.ч.1. Дискретная связь. Сборочный чертёж
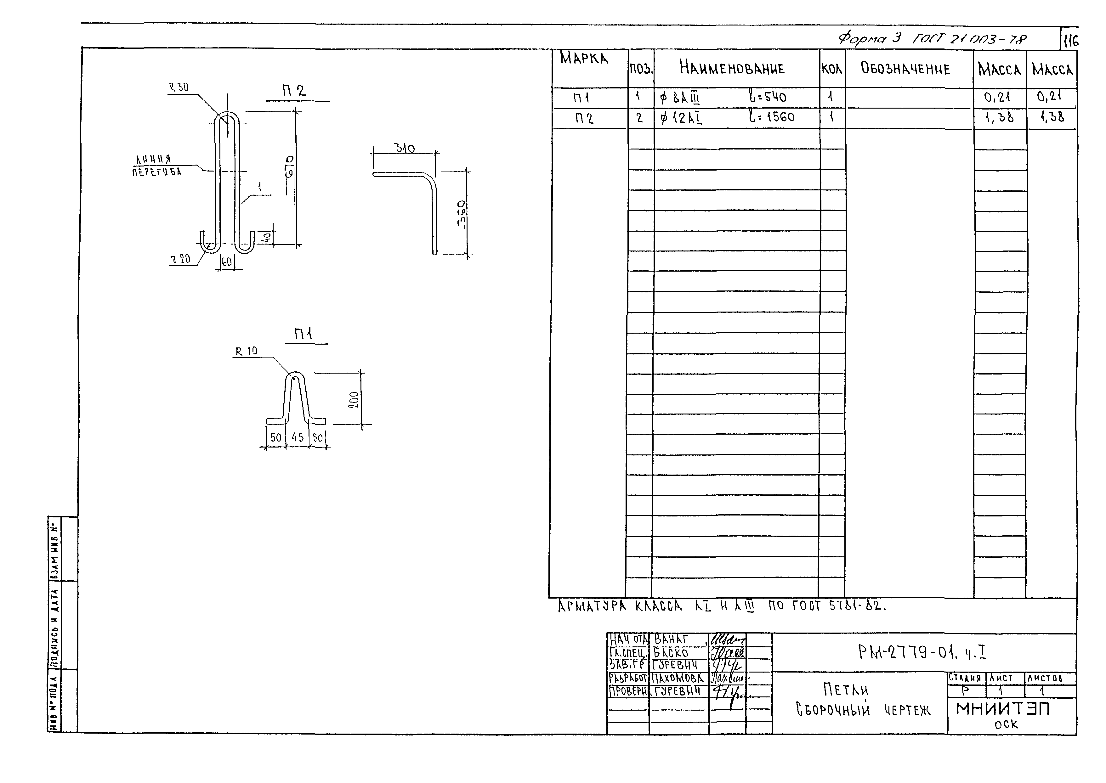
РМ-2779-01.ч.1. Петли. Сборочный чертёж
РМ-2779-01.ч.1. Закладные детали. Сборочный чертёж
РМ-2779-01.ч.1. Информационная карта
Разработан: МНИИТЭП
Утверждён:06.04.2000 МНИИТЭП (MNIITEP 17-ТО)
Расположен в:Техническая документация Экология СТРОИТЕЛЬНЫЕ МАТЕРИАЛЫ И СТРОИТЕЛЬСТВО Строительные элементы Стены. Перегородки. Фасады Строительство Справочные документы Типовые строительные конструкции, изделия и узлы Разработанные другими министерствами, ведомствами и организациями
РМ-2779-01РМ-2779-01РМ-2779-01РМ-2779-01РМ-2779-01РМ-2779-01РМ-2779-01РМ-2779-01РМ-2779-01РМ-2779-01РМ-2779-01РМ-2779-01РМ-2779-01РМ-2779-01РМ-2779-01РМ-2779-01РМ-2779-01РМ-2779-01РМ-2779-01РМ-2779-01РМ-2779-01РМ-2779-01РМ-2779-01РМ-2779-01РМ-2779-01РМ-2779-01РМ-2779-01РМ-2779-01РМ-2779-01РМ-2779-01РМ-2779-01РМ-2779-01РМ-2779-01РМ-2779-01РМ-2779-01РМ-2779-01РМ-2779-01РМ-2779-01РМ-2779-01РМ-2779-01РМ-2779-01РМ-2779-01РМ-2779-01РМ-2779-01РМ-2779-01РМ-2779-01РМ-2779-01РМ-2779-01РМ-2779-01РМ-2779-01РМ-2779-01РМ-2779-01РМ-2779-01РМ-2779-01РМ-2779-01РМ-2779-01РМ-2779-01РМ-2779-01РМ-2779-01РМ-2779-01РМ-2779-01РМ-2779-01РМ-2779-01РМ-2779-01РМ-2779-01РМ-2779-01РМ-2779-01РМ-2779-01РМ-2779-01РМ-2779-01РМ-2779-01РМ-2779-01РМ-2779-01РМ-2779-01РМ-2779-01РМ-2779-01РМ-2779-01РМ-2779-01РМ-2779-01РМ-2779-01РМ-2779-01РМ-2779-01РМ-2779-01РМ-2779-01РМ-2779-01РМ-2779-01РМ-2779-01РМ-2779-01РМ-2779-01РМ-2779-01РМ-2779-01РМ-2779-01РМ-2779-01РМ-2779-01РМ-2779-01РМ-2779-01РМ-2779-01РМ-2779-01РМ-2779-01РМ-2779-01РМ-2779-01РМ-2779-01РМ-2779-01РМ-2779-01РМ-2779-01РМ-2779-01РМ-2779-01РМ-2779-01РМ-2779-01РМ-2779-01РМ-2779-01РМ-2779-01РМ-2779-01РМ-2779-01РМ-2779-01РМ-2779-01РМ-2779-01РМ-2779-01РМ-2779-01

© 2013 Ёшкин Кот :-) Карта сайта