Информационная система
«Ёшкин Кот»

Скачать базу одним архивом
Скачать обновления
История создания базы
Карта сайта

Скачать Серия 1.117.1-20 Выпуск 1. Панели толщиной 400 и 450 мм. Рабочие чертежи

Дата актуализации: 10.08.2017

Серия 1.117.1-20

Выпуск 1. Панели толщиной 400 и 450 мм. Рабочие чертежи

Обозначение: Серия 1.117.1-20
Обозначение англ: Series 1.117.1-20
Статус:действует
Название рус.:Выпуск 1. Панели толщиной 400 и 450 мм. Рабочие чертежи
Дата добавления в базу:01.09.2013
Дата актуализации:05.05.2017
Область применения:Рабочие чертежи унифицированных однослойных цокольных панелей наружных стен предназначены для проектирования и строительства крупнопанельных жилых зданий до 9 этажей в I климатическом районе (подрайоны IА, IБ, IГ, IД) на обычных и вечномерзлых грунтах, используемых по принципу II
Оглавление:1.117.1-20.10.0.0.00 ТО Техническое описание
1.117.1-20.10.0.0.00 НИ Номенклатура
1.117.1-20.11.0.0.00 Панель стеновая наружная 1ПСН, 2ПСН
1.117.1-20.11.0.0.00 СБ Панель стеновая наружная 1ПСН, 2ПСН. Сборочный чертеж
1.117.1-20.12.0.0.00 Панель стеновая наружная 3ПСН, 4ПСН
1.117.1-20.12.0.0.00 СБ Панель стеновая наружная 3ПСН, 4ПСН. Сборочный чертеж
1.117.1-20.13.0.0.00 Панель стеновая наружная 5ПСН
1.117.1-20.13.0.0.00 СБ Панель стеновая наружная 5ПСН. Сборочный чертеж
1.117.1-20.14.0.0.00 Панель стеновая наружная 6ПСН
1.117.1-20.14.0.0.00 СБ Панель стеновая наружная 6ПСН. Сборочный чертеж
1.117.1-20.15.0.0.00 Панель стеновая наружная 7ПСН, 8ПСН, 9ПСН
1.117.1-20.15.0.0.00 СБ Панель стеновая наружная 7ПСН, 8ПСН, 9ПСН. Сборочный чертеж
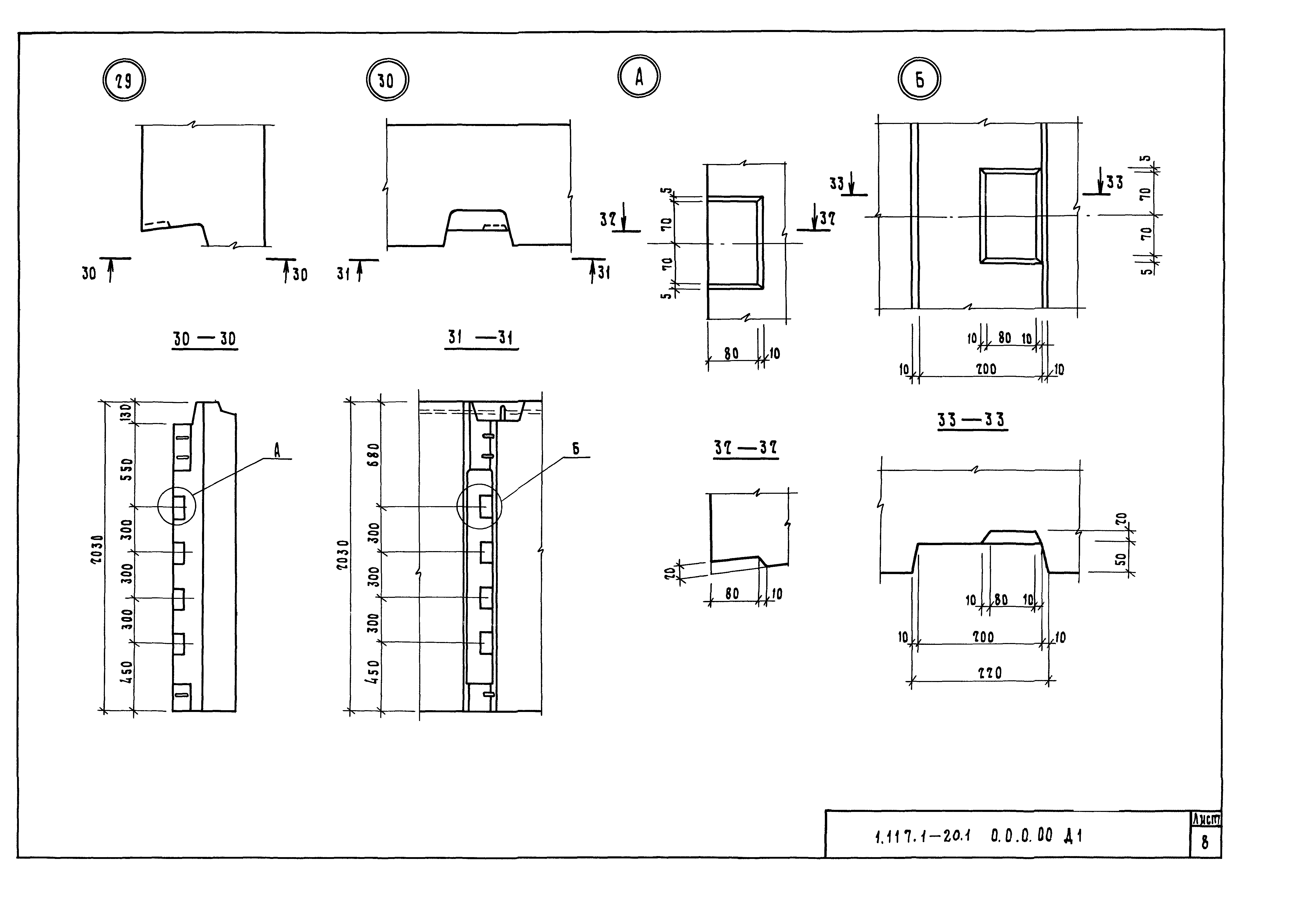
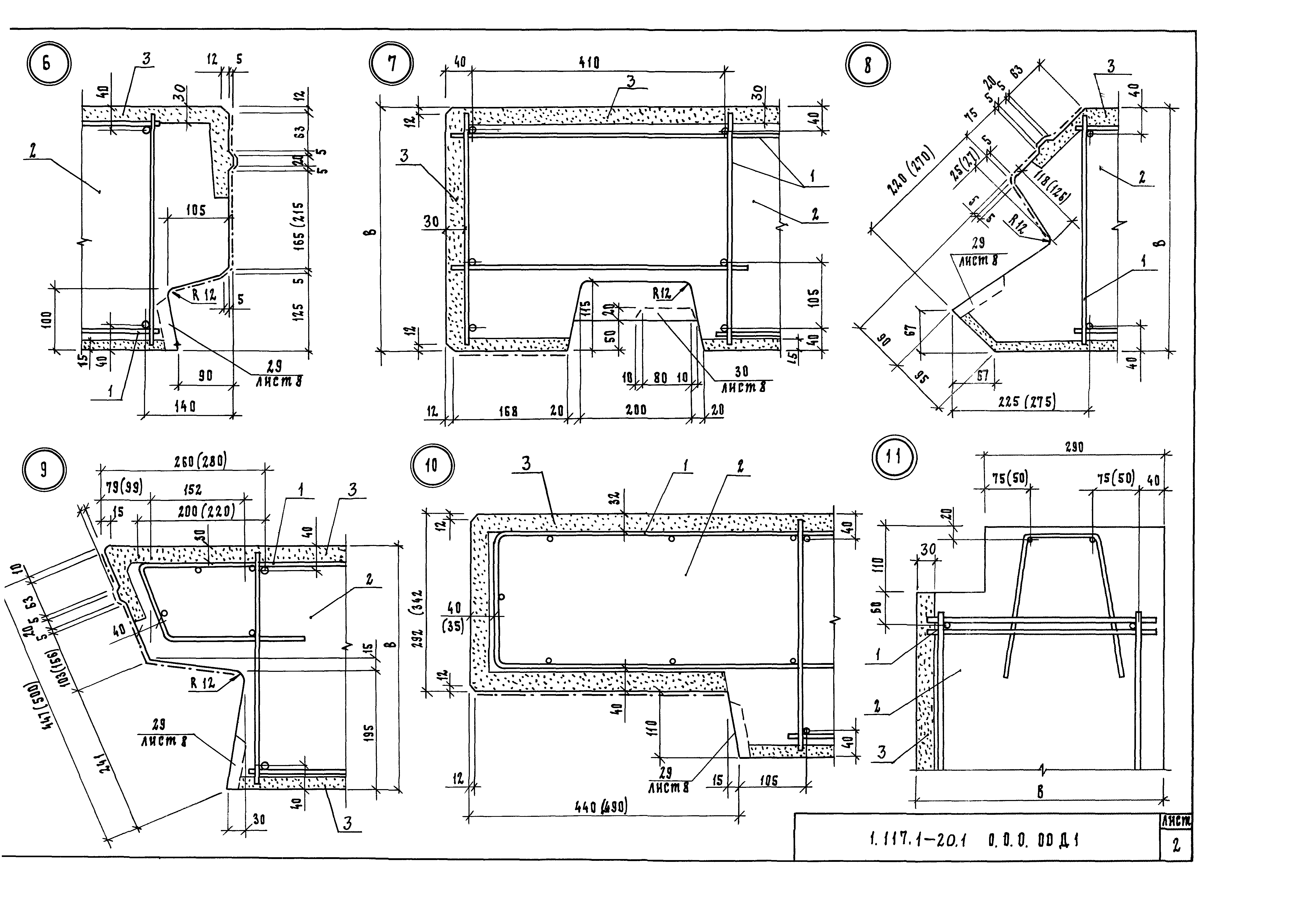
1.117.1-20.10.0.0.00 Д1 Узлы 1… 30
1.117.1-20.11.1.0.00 Каркас пространственный КП (КП1… КП8л)
1.117.1-20.11.1.0.00 СБ Каркас пространственный КП (КП1… КП8л). Сборочный чертеж
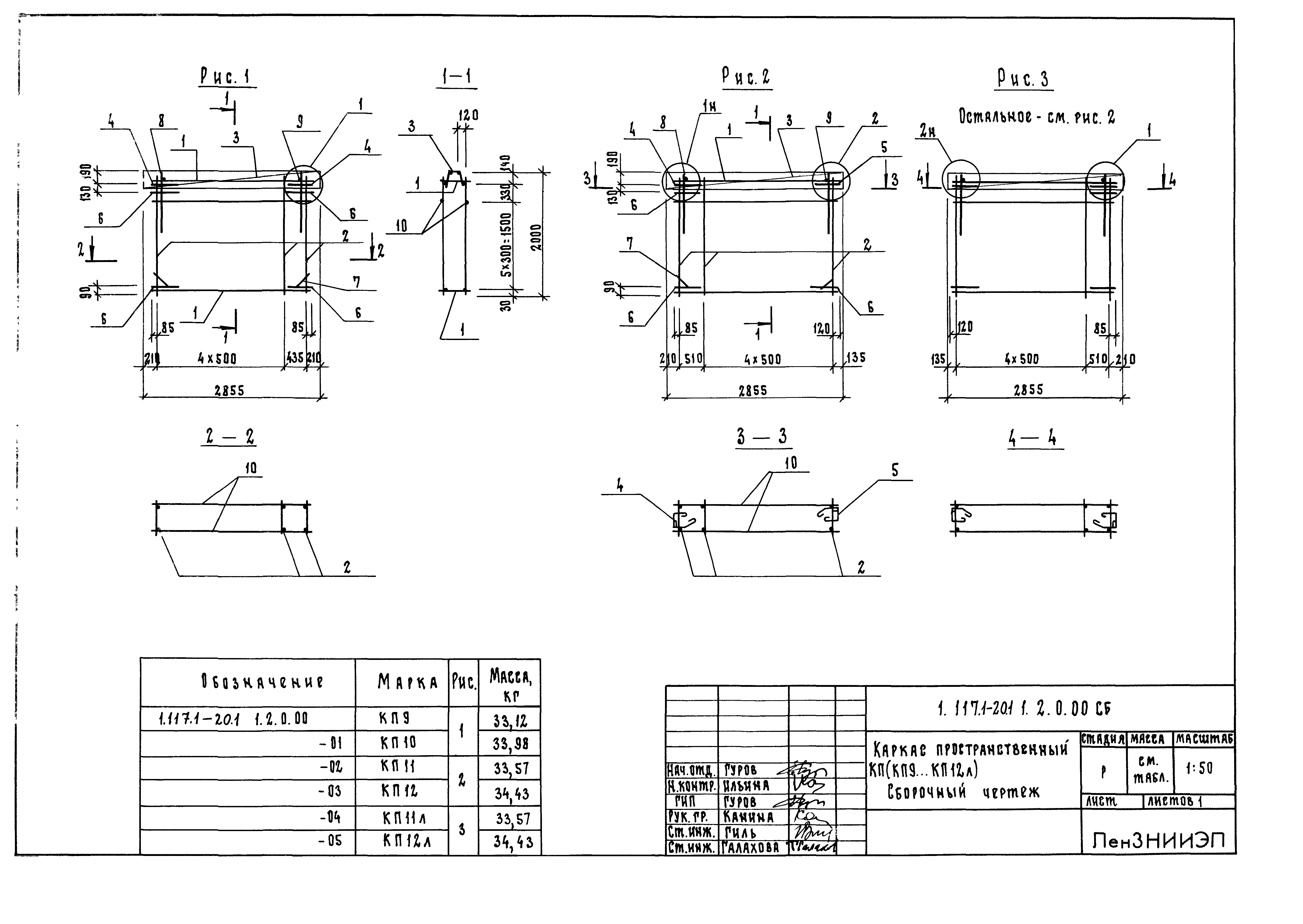
1.117.1-20.11.2.0.00 Каркас пространственный КП (КП9… КП12л)
1.117.1-20.11.2.0.00 СБ Каркас пространственный КП (КП9… КП12л). Сборочный чертеж
1.117.1-20.13.1.0.00 Каркас пространственный КП (КП13… КП16л)
1.117.1-20.13.1.0.00 СБ Каркас пространственный КП (КП13… КП16л). Сборочный чертеж
1.117.1-20.14.1.0.00 Каркас пространственный КП (КП17… КП20л)
1.117.1-20.14.1.0.00 СБ Каркас пространственный КП (КП17… КП20л). Сборочный чертеж
1.117.1-20.10.0.0.00 Д2 Узлы арматурные 1… 6
1.117.1-20.11.1.1.00 Каркас плоский КР(КР1… КР15)
1.117.1-20.11.1.1.00 СБ Каркас плоский КР(КР1… КР15). Сборочный чертеж
1.117.1-20.11.1.2.00 Сетка арматурная С(С1… С6)
1.117.1-20.11.1.2.00 СБ Сетка арматурная С(С1… С6). Сборочный чертеж
1.117.1-20.11.1.3.00 Изделие закладное Мна(Мна1… Мна4)
1.117.1-20.11.1.3.00 СБ Изделие закладное Мна(Мна1… Мна4). Сборочный чертеж
1.117.1-20.11.1.4.00 Стержень гнутый Ан(Ана1… Ана5). Петля П(П1… П3)
1.117.1-20.00.0.0.00 РС Ведомость расхода стали
1.117.1-20.00.0.0.00 РМ Ведомость расхода материалов
Разработан: ЛенЗНИИЭП Госгражданстроя
Утверждён:20.01.1986 Госгражданстрой (Gosgrazhdanstroy 23)
Расположен в:Техническая документация Экология СТРОИТЕЛЬНЫЕ МАТЕРИАЛЫ И СТРОИТЕЛЬСТВО Конструкции зданий Бетонные конструкции Строительство Справочные документы Типовые строительные конструкции, изделия и узлы Общероссийский строительный каталог Строительные конструкции, изделия и узлы зданий и сооружений для всех видов строительства Конструкции, изделия и узлы зданий Конструкции нулевого цикла Цокольные панели и блоки стен подвалов
Нормативные ссылки:
Серия 1.117.1-20Серия 1.117.1-20Серия 1.117.1-20Серия 1.117.1-20Серия 1.117.1-20Серия 1.117.1-20Серия 1.117.1-20Серия 1.117.1-20Серия 1.117.1-20Серия 1.117.1-20Серия 1.117.1-20Серия 1.117.1-20Серия 1.117.1-20Серия 1.117.1-20Серия 1.117.1-20Серия 1.117.1-20Серия 1.117.1-20Серия 1.117.1-20Серия 1.117.1-20Серия 1.117.1-20Серия 1.117.1-20Серия 1.117.1-20Серия 1.117.1-20Серия 1.117.1-20Серия 1.117.1-20Серия 1.117.1-20Серия 1.117.1-20Серия 1.117.1-20Серия 1.117.1-20Серия 1.117.1-20Серия 1.117.1-20Серия 1.117.1-20Серия 1.117.1-20Серия 1.117.1-20Серия 1.117.1-20Серия 1.117.1-20Серия 1.117.1-20Серия 1.117.1-20Серия 1.117.1-20Серия 1.117.1-20Серия 1.117.1-20Серия 1.117.1-20Серия 1.117.1-20Серия 1.117.1-20Серия 1.117.1-20Серия 1.117.1-20Серия 1.117.1-20Серия 1.117.1-20Серия 1.117.1-20Серия 1.117.1-20Серия 1.117.1-20Серия 1.117.1-20Серия 1.117.1-20Серия 1.117.1-20Серия 1.117.1-20Серия 1.117.1-20Серия 1.117.1-20

© 2013 Ёшкин Кот :-) Карта сайта