| ||||||||||||||||||||||||||||||
Скачать Серия 1.412.1-11 Выпуск 1. Подколонники сборно-монолитные. Рабочие чертежиДата актуализации: 10.08.2017
|
| Обозначение: | Серия 1.412.1-11 |
| Обозначение англ: | Series 1.412.1-11 |
| Статус: | не определен законодательством |
| Название рус.: | Выпуск 1. Подколонники сборно-монолитные. Рабочие чертежи |
| Дата добавления в базу: | 01.09.2013 |
| Дата актуализации: | 05.05.2017 |
| Дата введения: | 01.06.1993 |
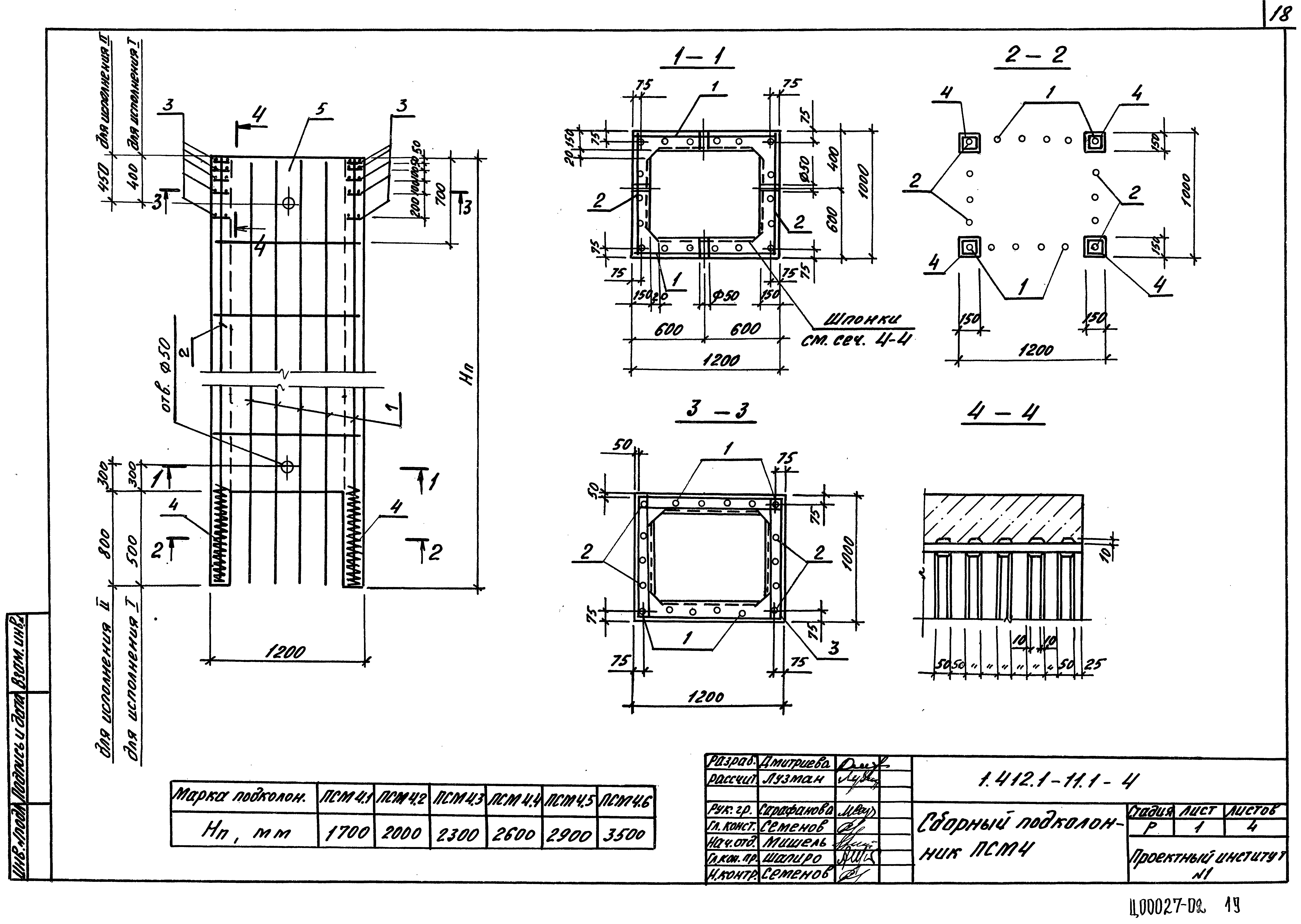
| Область применения: | Настоящий выпуск содержит рабочие чертежи сборных подколонников замкнутого прямоугольного коробчатого сечения /подколонник типа ПСМ/, а также рабочие чертежи арматурных изделий |
| Оглавление: | 1.412.1-11.1-ТТ Технические требования 1.412.1-11.1-1 Сборный подколонник ПСМ1 1.412.1-11.1-2 Сборный подколонник ПСМ2 1.412.1-11.1-3 Сборный подколонник ПСМ3 1.412.1-11.1-4 Сборный подколонник ПСМ4 1.412.1-11.1-5 Сетка С2-1… С2-4 1.412.1-11.1-6 Сетка С2-5… С2-8 1.412.1-11.1-7 Сетка С2-9… С2-12 1.412.1-11.1-8 Сетка С2-13… С2-16 1.412.1-11.1-9 Сетка С2-17… С2-20 1.412.1-11.1-10 Сетка С2-21… С2-24 1.412.1-11.1-11 Сетка С2-25… С2-28 1.412.1-11.1-12 Сетка С2-29… С2-32 1.412.1-11.1-13 Сетка С2-33… С2-36 1.412.1-11.1-14 Сетка С2-37… С2-40 1.412.1-11.1-15 Сетка С2-41… С2-44 1.412.1-11.1-16 Сетка С2-45… С2-48 1.412.1-11.1-17 Сетка С2-49… С2-52 1.412.1-11.1-18 Сетка С2-53… С2-56 1.412.1-11.1-19 Сетка С2-57… С2-60 1.412.1-11.1-20 Сетка С2-61… С2-64 1.412.1-11.1-21 Сетка С2-65… С2-68 1.412.1-11.1-22 Сетка С2-69… С2-72 1.412.1-11.1-23 Сетка С2-73… С2-76 1.412.1-11.1-24 Сетка С2-77… С2-80 1.412.1-11.1-25 Сетка С2-81… С2-84 1.412.1-11.1-26 Сетка С2-85… С2-88 1.412.1-11.1-27 Сетка С2-89… С2-92 1.412.1-11.1-28 Сетка С2-93… С2-96 1.412.1-11.1-29 Сетка С3-1… С3-3 1.412.1-11.1-30 Сетка С3-4… С3-6 1.412.1-11.1-31 Сетка С3-7… С3-9 1.412.1-11.1-32 Сетка С3-10… С3-12 1.412.1-11.1-33 Сетка С4-1… С4-6 1.412.1-11.1-34 Сетка С4-7… С4-11 1.412.1-11.1-35 Спираль СП1 1.412.1-11.1-РС Ведомость расхода стали |
| Разработан: | Проектный институт № 1 Минстроя СССР |
| Утверждён: | 21.12.1992 Минстрой России (Russian Federation Minstroy 9-1/397) |
| Расположен в: | |
| Нормативные ссылки: |
|

















































