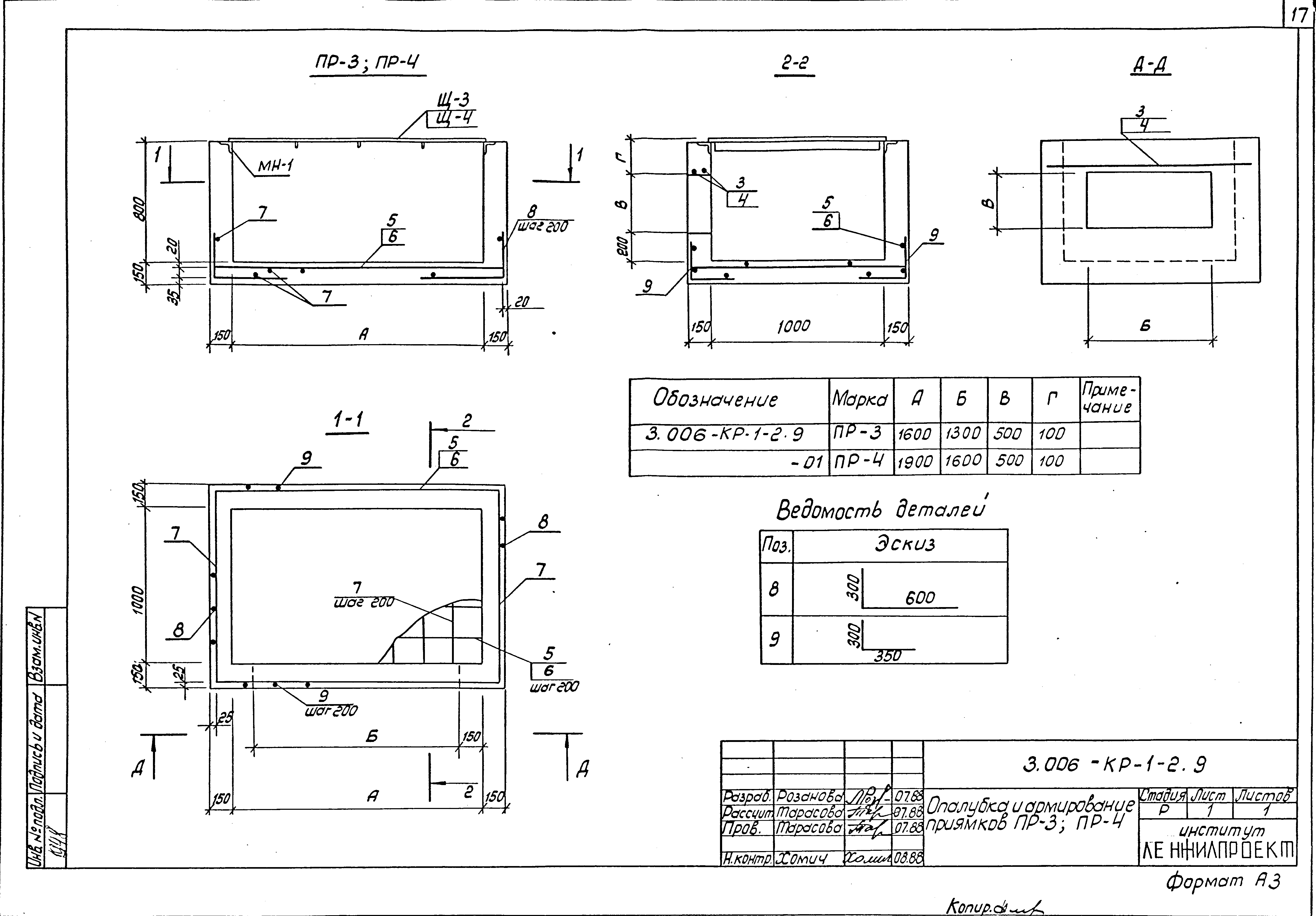
Скачать Серия 3.006-КР-1 Выпуск 2. Монолитные приямки. Рабочие чертежиДата актуализации: 10.08.2017 Серия 3.006-КР-1
Выпуск 2. Монолитные приямки. Рабочие чертежиОбозначение: | Серия 3.006-КР-1 | Обозначение англ: | Series 3.006-КР-1 | Статус: | не действует | Название рус.: | Выпуск 2. Монолитные приямки. Рабочие чертежи | Дата добавления в базу: | 01.09.2013 | Дата актуализации: | 05.05.2017 | Разработан: | Ленжилпроект Ленгорисполкома
| Утверждён: | 18.08.1988 Ленжилпроект (28)
| Расположен в: |
|
                     
|