Информационная система
«Ёшкин Кот»

Скачать базу одним архивом
Скачать обновления
История создания базы
Карта сайта

Скачать Типовые материалы для проектирования 902-09-46.88 Альбом VI. Строительные изделия для армирования перепадных камер

Дата актуализации: 10.08.2017

Типовые материалы для проектирования 902-09-46.88

Альбом VI. Строительные изделия для армирования перепадных камер

Обозначение: Типовые материалы для проектирования 902-09-46.88
Обозначение англ: 902-09-46.88
Статус:cправочные материалы, мп, тпр
Название рус.:Альбом VI. Строительные изделия для армирования перепадных камер
Дата добавления в базу:01.09.2013
Дата актуализации:05.05.2017
Дата введения:20.03.1989
Оглавление:Содержание
КЖ.И.1СБ Сетка арматурная С1
КЖ.И.1 Сетка арматурная С1
КЖ.И.2СБ Сетка арматурная С2
КЖ.И.2Сетка арматурная С2
КЖ.И.РС1 Ведомость расхода стали
КЖ.И.3СБ Сетка арматурная С1
КЖ.И.3СБ Ведомость стержней
КЖ.И.3 Сетка арматурная С1
КЖ.И.4СБ Сетка арматурная С2
КЖ.И.4 Сетка арматурная С2
КЖ.И.5СБ Сетка арматурная С3
КЖ.И.5 Сетка арматурная С3
КЖ.И.РС2 Ведомость расхода стали
КЖ.И.б Сетка арматурная С1
КЖ.И.7СБ Сетка арматурная С4
КЖ.И.7 Сетка арматурная С4
КЖ.И.8СБ Сетка арматурная С2 и С3
КЖ.и.8СБ Ведомость стержней С2 и С3
КЖ.И.8 Сетки арматурная С2 и С3
КЖ.И.9 Сетка арматурная С5
КЖ.И.10 Сетка арматурная С6
КЖ.И.11СБ Сетка арматурная С7
КЖ.И.11СБ Ведомость стержней С7
КЖ.И.11 Сетка арматурная С7
КЖ.И.12СБ Сетка арматурная С8
КЖ.И.12 Сетка арматурная С8
КЖ.И.13СБ Сетка арматурная С9
КЖ.И.13 Сетка арматурная С9
КЖ.И.14СБ Сетка арматурная С10
КЖ.И.14 Сетка арматурная С10
КЖ.И.РС3 Ведомость расхода стали
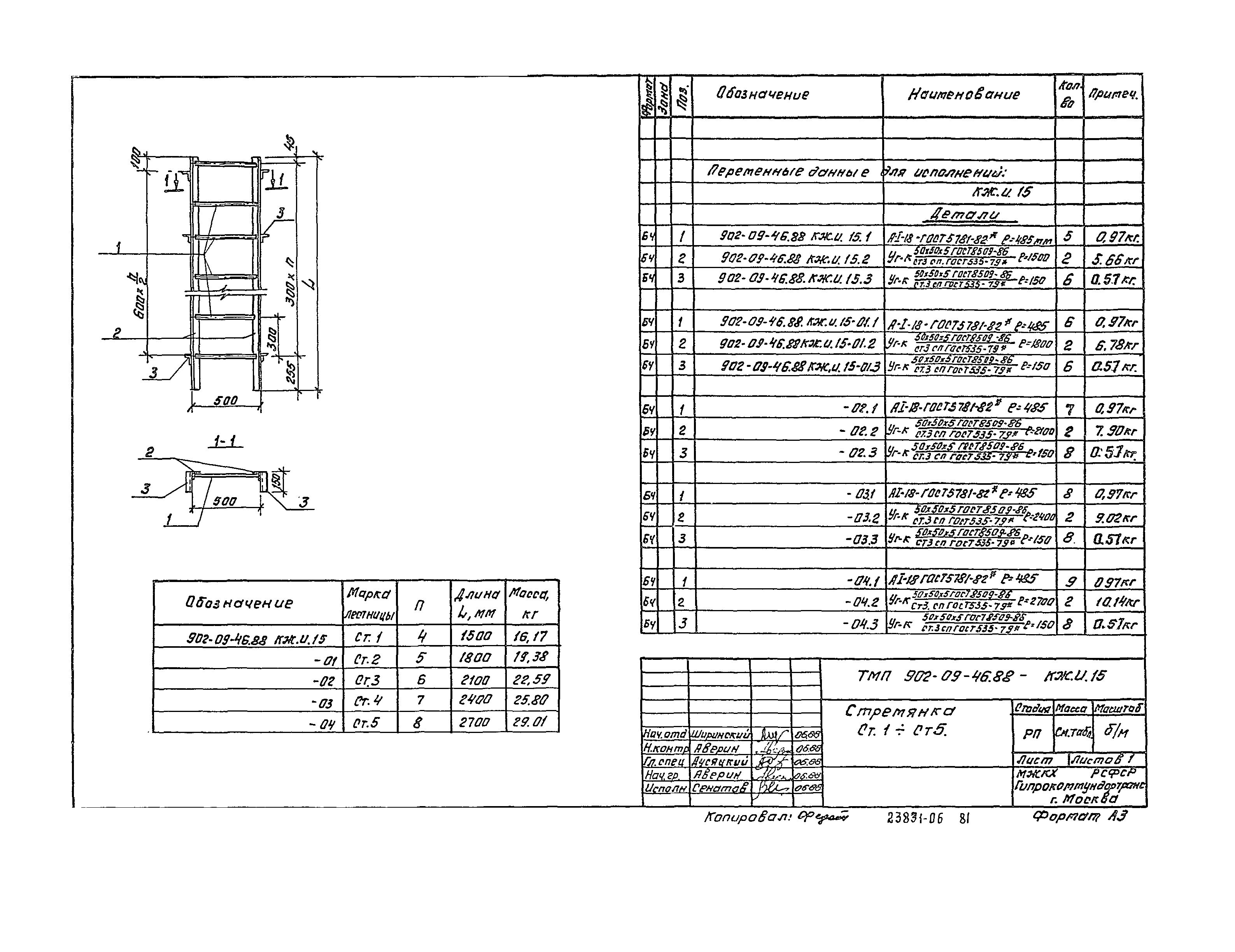
КЖ.И.15 Стремянка Ст1 - Ст5
КЖ.И.16 Закладная деталь
ТУ Технические условия
Разработан: Гипрокоммундортранс Минжилкомхоза РСФСР
Утверждён:20.03.1989 Министерство жилищно-коммунального хозяйства Московской области (70)
Издан: ЦИТП Госстроя СССР (CITP, Gosstroy (USSR) 1989 г. )
Расположен в:Техническая документация Экология ГРАЖДАНСКОЕ СТРОИТЕЛЬСТВО Строительство дорог Строительство дорог, прочие аспекты Строительство Справочные документы Типовые строительные конструкции, изделия и узлы Общероссийский строительный каталог Промышленные предприятия, здания и сооружения Здания и сооружения санитарно-технические Канализация Сооружения для очистки производственных сточных вод Здания и сооружения разные
Заменяет собой:
Типовые материалы для проектирования 902-09-46.88Типовые материалы для проектирования 902-09-46.88Типовые материалы для проектирования 902-09-46.88Типовые материалы для проектирования 902-09-46.88Типовые материалы для проектирования 902-09-46.88Типовые материалы для проектирования 902-09-46.88Типовые материалы для проектирования 902-09-46.88Типовые материалы для проектирования 902-09-46.88Типовые материалы для проектирования 902-09-46.88Типовые материалы для проектирования 902-09-46.88Типовые материалы для проектирования 902-09-46.88Типовые материалы для проектирования 902-09-46.88Типовые материалы для проектирования 902-09-46.88Типовые материалы для проектирования 902-09-46.88Типовые материалы для проектирования 902-09-46.88Типовые материалы для проектирования 902-09-46.88Типовые материалы для проектирования 902-09-46.88Типовые материалы для проектирования 902-09-46.88Типовые материалы для проектирования 902-09-46.88Типовые материалы для проектирования 902-09-46.88Типовые материалы для проектирования 902-09-46.88Типовые материалы для проектирования 902-09-46.88Типовые материалы для проектирования 902-09-46.88Типовые материалы для проектирования 902-09-46.88Типовые материалы для проектирования 902-09-46.88Типовые материалы для проектирования 902-09-46.88Типовые материалы для проектирования 902-09-46.88Типовые материалы для проектирования 902-09-46.88Типовые материалы для проектирования 902-09-46.88Типовые материалы для проектирования 902-09-46.88Типовые материалы для проектирования 902-09-46.88Типовые материалы для проектирования 902-09-46.88Типовые материалы для проектирования 902-09-46.88Типовые материалы для проектирования 902-09-46.88Типовые материалы для проектирования 902-09-46.88Типовые материалы для проектирования 902-09-46.88Типовые материалы для проектирования 902-09-46.88Типовые материалы для проектирования 902-09-46.88Типовые материалы для проектирования 902-09-46.88Типовые материалы для проектирования 902-09-46.88Типовые материалы для проектирования 902-09-46.88Типовые материалы для проектирования 902-09-46.88Типовые материалы для проектирования 902-09-46.88Типовые материалы для проектирования 902-09-46.88Типовые материалы для проектирования 902-09-46.88Типовые материалы для проектирования 902-09-46.88Типовые материалы для проектирования 902-09-46.88Типовые материалы для проектирования 902-09-46.88Типовые материалы для проектирования 902-09-46.88Типовые материалы для проектирования 902-09-46.88Типовые материалы для проектирования 902-09-46.88Типовые материалы для проектирования 902-09-46.88Типовые материалы для проектирования 902-09-46.88Типовые материалы для проектирования 902-09-46.88Типовые материалы для проектирования 902-09-46.88Типовые материалы для проектирования 902-09-46.88Типовые материалы для проектирования 902-09-46.88Типовые материалы для проектирования 902-09-46.88Типовые материалы для проектирования 902-09-46.88Типовые материалы для проектирования 902-09-46.88Типовые материалы для проектирования 902-09-46.88Типовые материалы для проектирования 902-09-46.88Типовые материалы для проектирования 902-09-46.88Типовые материалы для проектирования 902-09-46.88Типовые материалы для проектирования 902-09-46.88Типовые материалы для проектирования 902-09-46.88Типовые материалы для проектирования 902-09-46.88Типовые материалы для проектирования 902-09-46.88Типовые материалы для проектирования 902-09-46.88Типовые материалы для проектирования 902-09-46.88Типовые материалы для проектирования 902-09-46.88Типовые материалы для проектирования 902-09-46.88Типовые материалы для проектирования 902-09-46.88Типовые материалы для проектирования 902-09-46.88Типовые материалы для проектирования 902-09-46.88Типовые материалы для проектирования 902-09-46.88Типовые материалы для проектирования 902-09-46.88Типовые материалы для проектирования 902-09-46.88Типовые материалы для проектирования 902-09-46.88Типовые материалы для проектирования 902-09-46.88Типовые материалы для проектирования 902-09-46.88Типовые материалы для проектирования 902-09-46.88Типовые материалы для проектирования 902-09-46.88Типовые материалы для проектирования 902-09-46.88Типовые материалы для проектирования 902-09-46.88

© 2013 Ёшкин Кот :-) Карта сайта