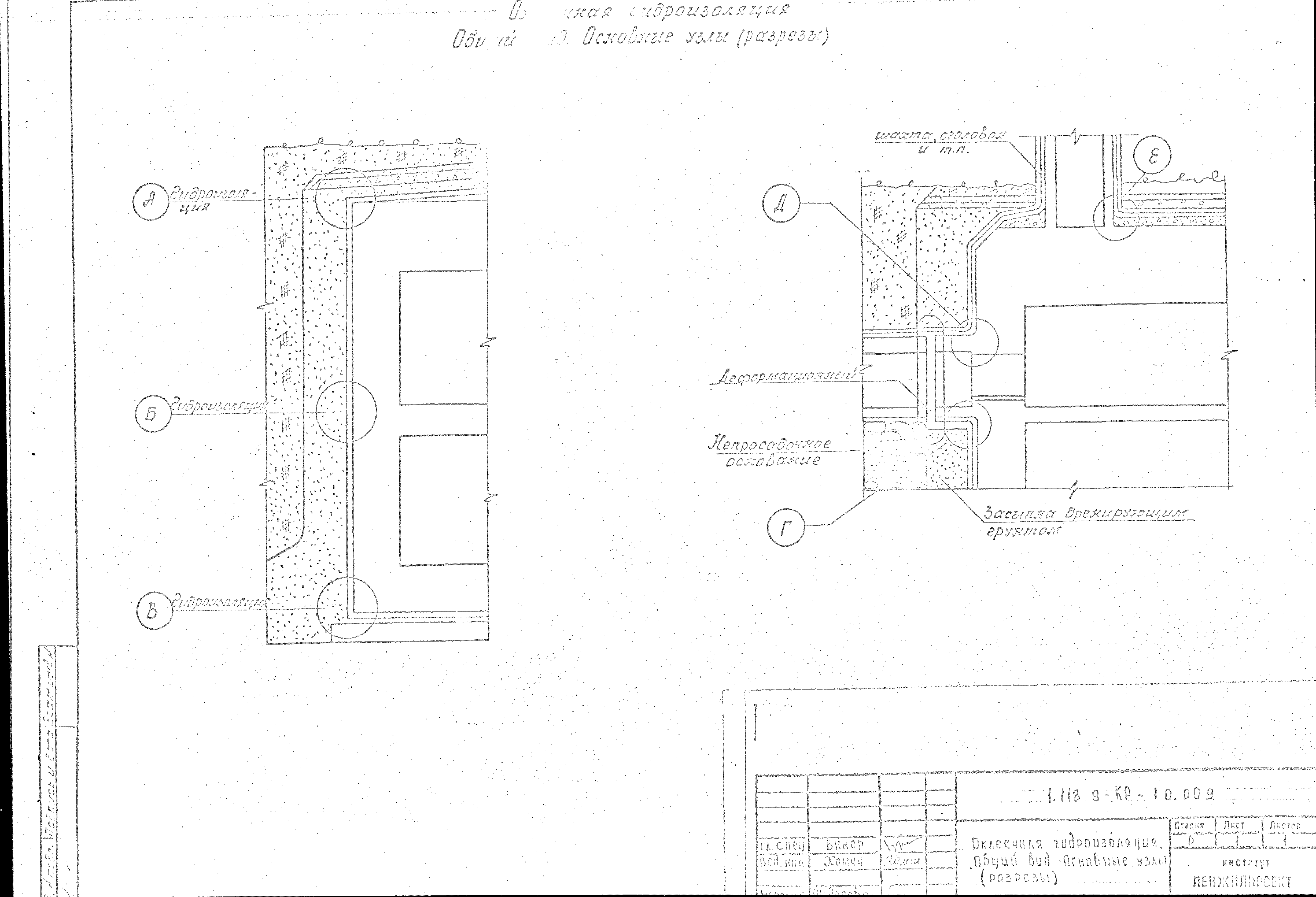
Скачать Серия 1.118.9-КР-1 Выпуск 0. Материалы по проектированию и устройству гидроизоляции подваловДата актуализации: 10.08.2017 Серия 1.118.9-КР-1
Выпуск 0. Материалы по проектированию и устройству гидроизоляции подваловОбозначение: | Серия 1.118.9-КР-1 | Обозначение англ: | Series 1.118.9-КР-1 | Статус: | не действует | Название рус.: | Выпуск 0. Материалы по проектированию и устройству гидроизоляции подвалов | Дата добавления в базу: | 01.09.2013 | Дата актуализации: | 05.05.2017 | Разработан: | Ленжилпроект Ленгорисполкома
| Утверждён: | 01.01.1983 Ленжилпроект
| Расположен в: |
|
                             
|