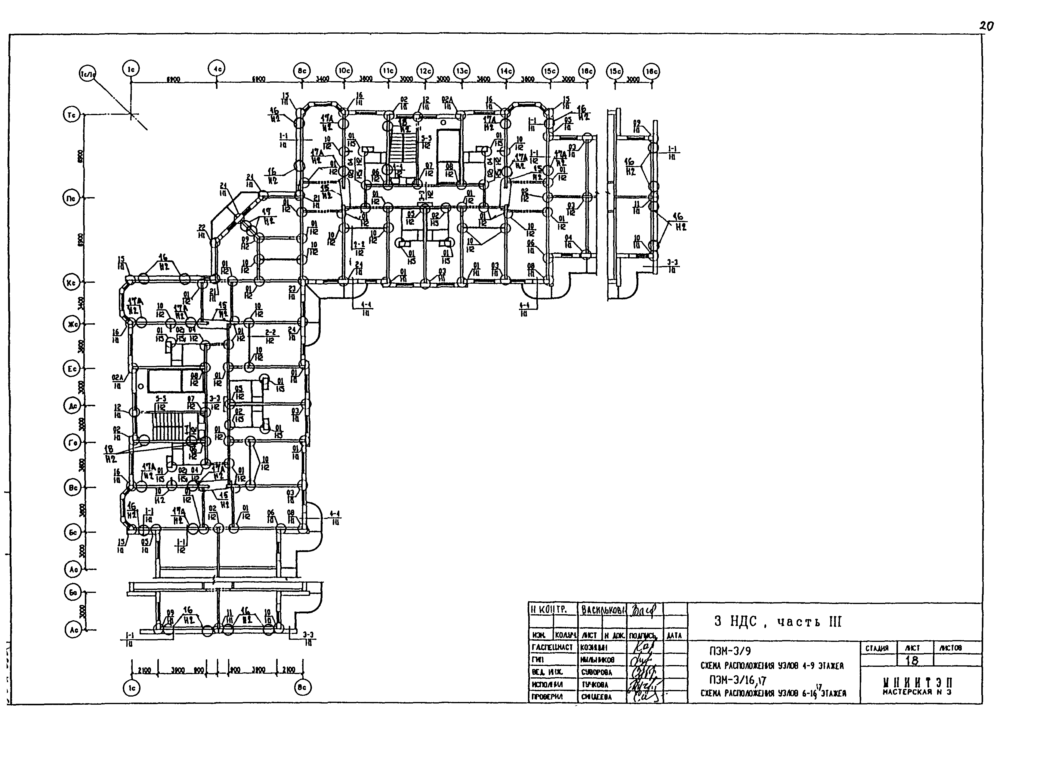
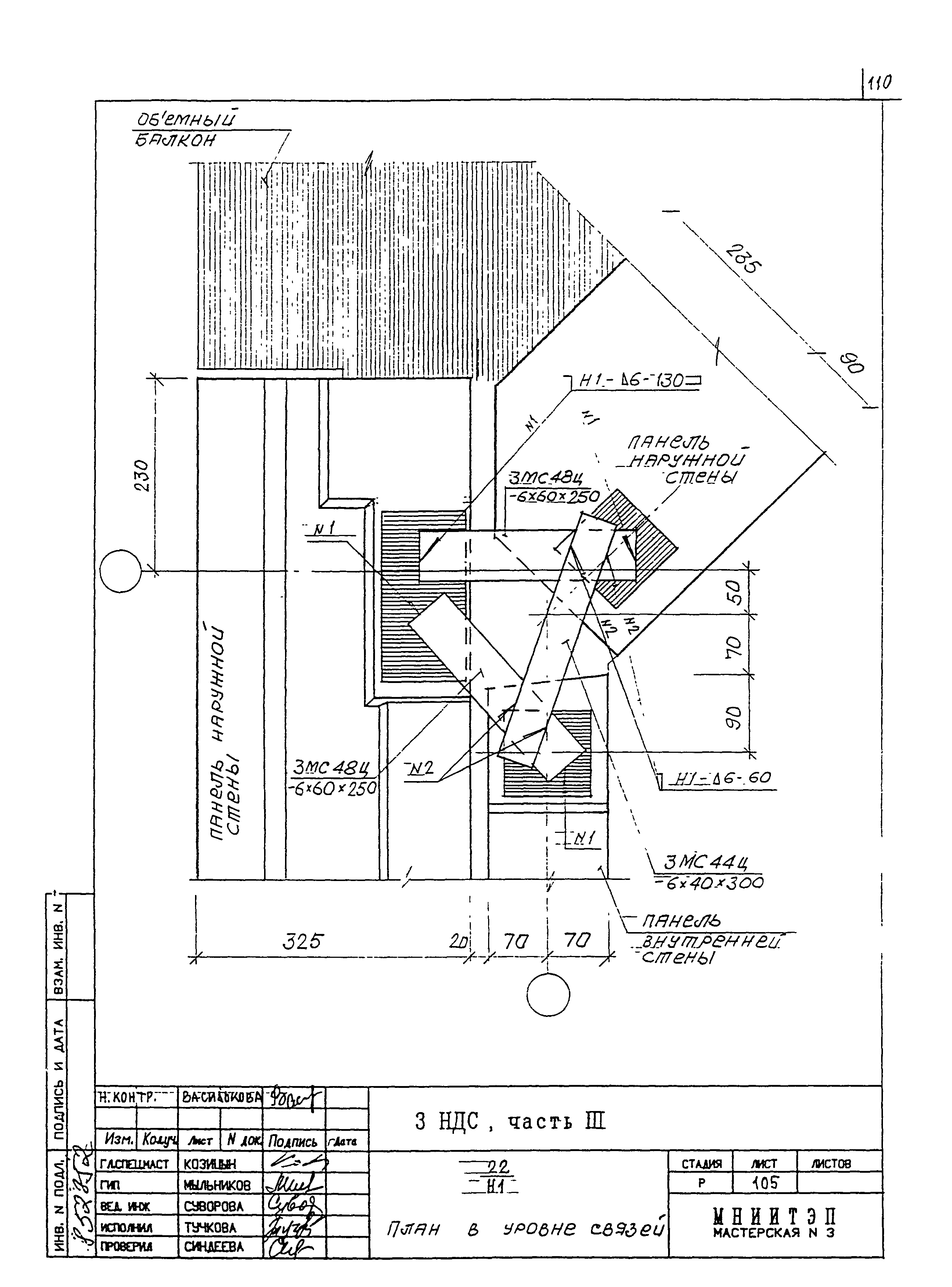
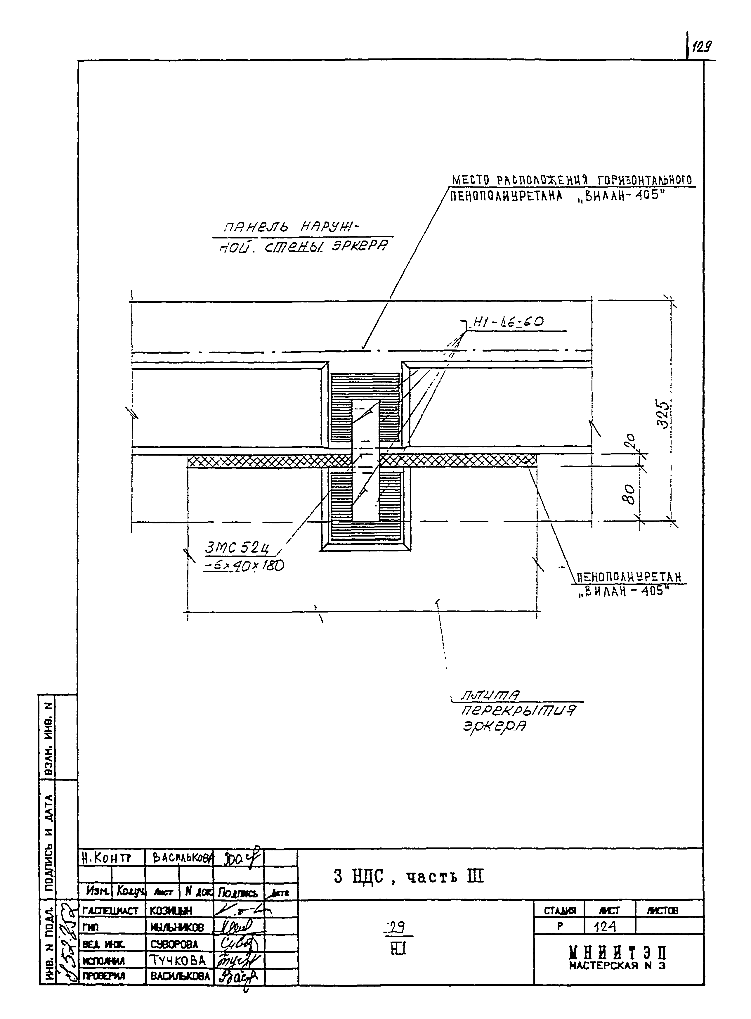
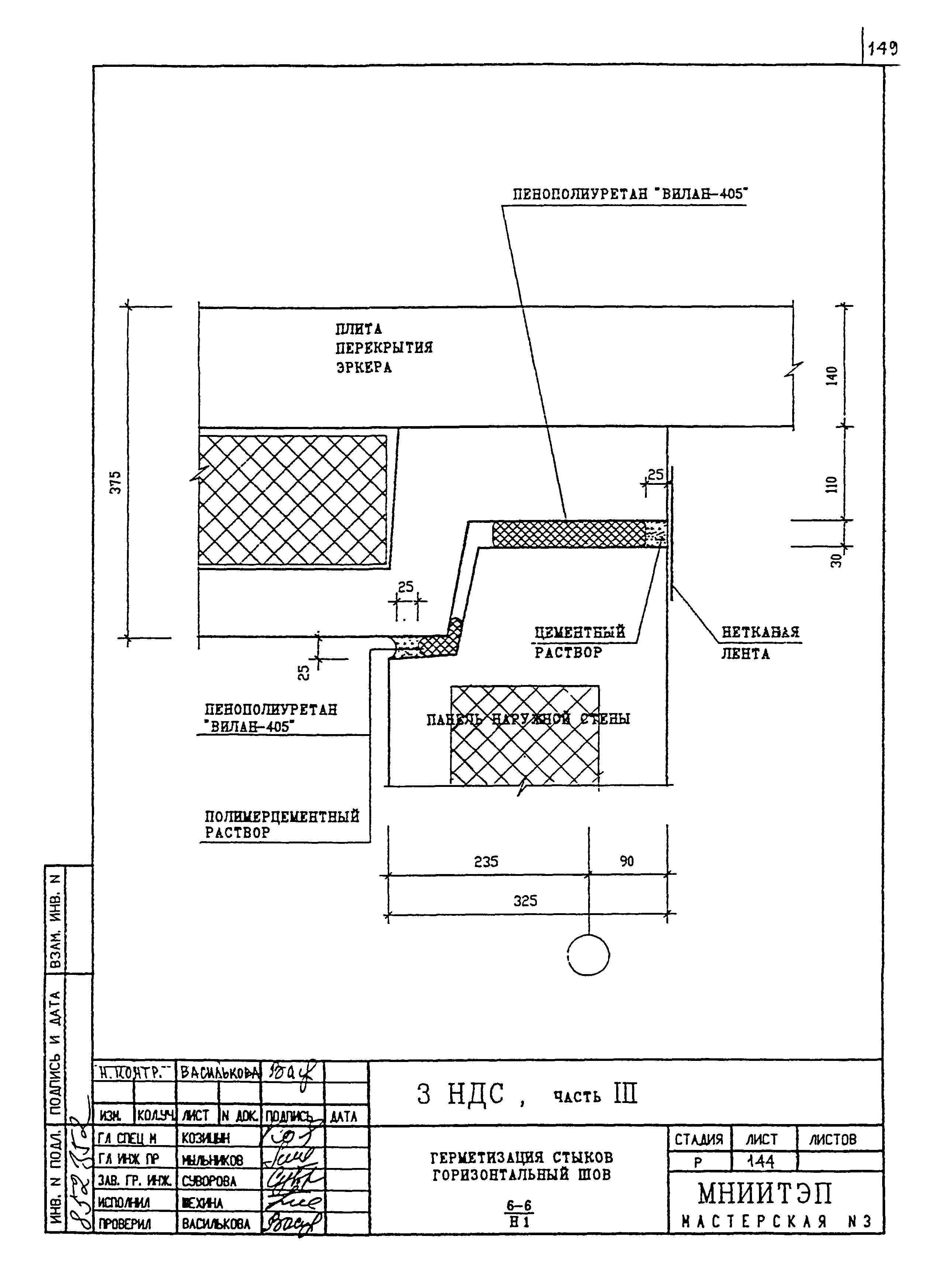
Скачать 3 НДС, часть III Железобетонные конструкции надземной части здания для жилых блок-секций серии П3М с 3-х слойными наружными стеновыми панелями. Вариант по защите здания от прогрессирующего обрушения. Детали узловДата актуализации: 10.08.2017 3 НДС, часть III
Железобетонные конструкции надземной части здания для жилых блок-секций серии П3М с 3-х слойными наружными стеновыми панелями. Вариант по защите здания от прогрессирующего обрушения. Детали узловОбозначение: | 3 НДС, часть III | Обозначение англ: | 3 НДС, часть III | Статус: | не определен законодательством | Название рус.: | Железобетонные конструкции надземной части здания для жилых блок-секций серии П3М с 3-х слойными наружными стеновыми панелями. Вариант по защите здания от прогрессирующего обрушения. Детали узлов | Дата добавления в базу: | 01.09.2013 | Дата актуализации: | 05.05.2017 | Дата введения: | 01.01.2003 | Разработан: | МНИИТЭП
| Утверждён: | 01.01.2003 МНИИТЭП (MNIITEP )
| Расположен в: |
|
                                                                                                                                                                                                                                                                        
|